Zugängliche, wirtschaftliche, funktionelle und einladende Konstruktion.
Nachdem das alte Pfadfinderheim in Wolfurt durch einen Brand zerstört wurde, wurde ein Neubau an anderer Stelle notwendig. Das neue Gebäude liegt in der Nähe der Bregenzer Ach im Wiesenvorland und ist südseitig durch eine höher gelegene Zufahrtsstraße erschlossen. Das zweigeschossige Gebäude steht auf der Wiese ca. 1,20 m unterhalb dieser Straße. Von dieser erschließt eine Treppe sowie eine behindertengerechte Rampe das Hauptgeschoss (Obergeschoss). Dadurch ist es möglich das Haus barrierefrei ohne den Einbau eines Liftes zu benutzen, da alle Räume über Rampen erschließbar sind.
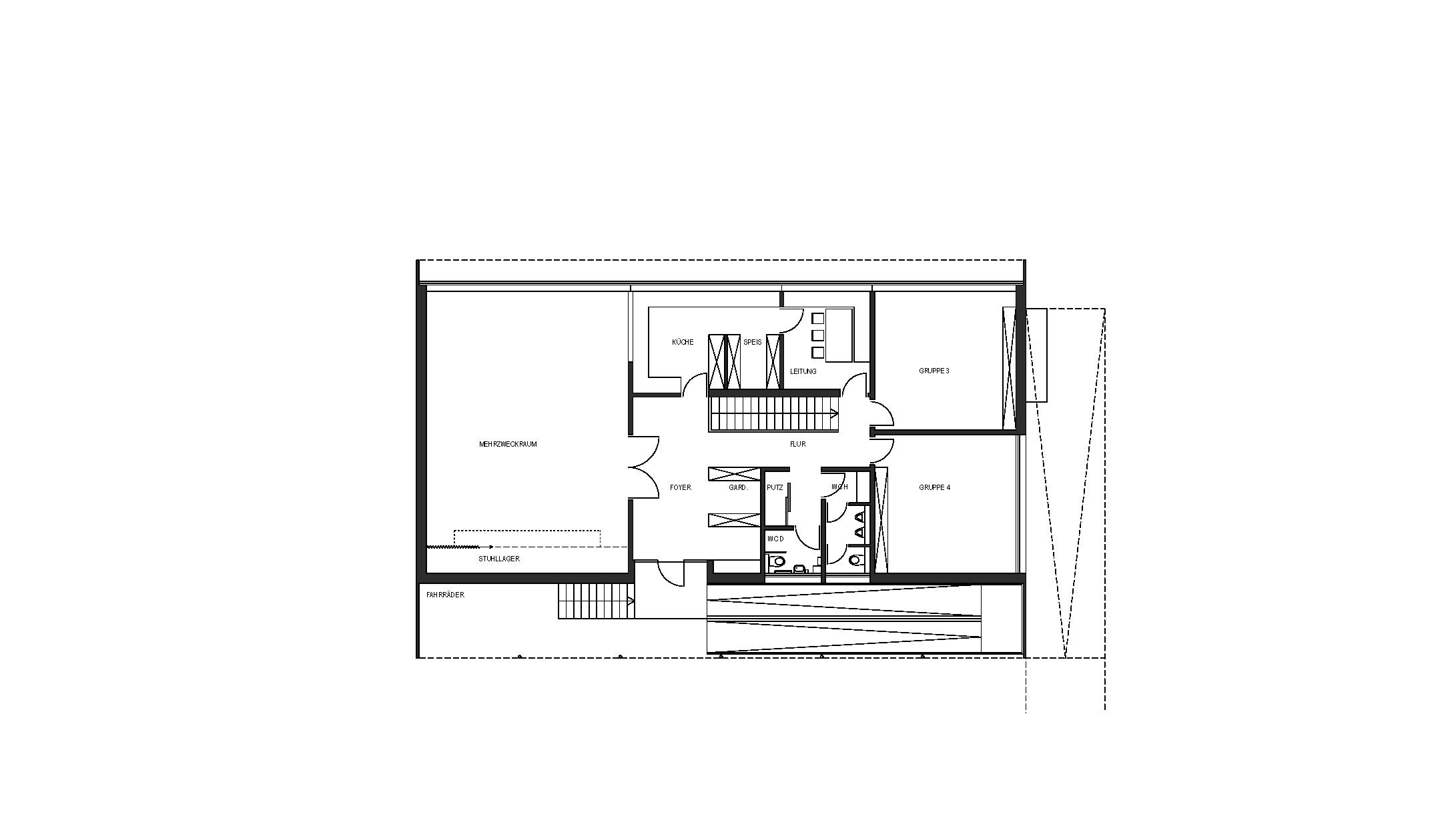
Im Hauptgeschoss befinden sich ein Veranstaltungsraum mit anschließender Küche, eine Sanitäranlage sowie zwei Gruppenräume. Im Erdgeschoss befinden sich ebenfalls zwei Gruppenräume, Lagerräume, eine Sanitäranlage (von außen für Pfadfinderlager zugänglich), sowie ein kleiner überdeckter Außenraum.
Der Anspruch an die Planung bestand einerseits in einer möglichst kompakten und energetisch optimierten Bauform, welche eine Passivhaus-Konzeption ermöglichen sollte und andererseits in einfachen konstruktiven Lösungen und Materialisierungen, die einen hohen Selbstbauanteil zuließen. Aus diesem Grund, sowie aus ökologischen Überlegungen war ein Holzbau sehr nahe liegend. Die Materialwahl war auch durch die Vorgabe äußerster Sparsamkeit beeinflusst, was den Ausdruck des Hauses sehr mitbestimmt. Sichtbar belassene OSB-Platten im Innenbereich, geschliffene Estriche sowie einfache Wandbeläge in den Nasszellen und teilweise Fassadenflächen mit farbbeschichteten OSB-Platten bezeugen dies.
Eingebaut ist eine kontrollierte Gebäudelüftung mit Wärmerückgewinnung, die restliche Energie wird über einen Pelletofen bereit gestellt. Dieser liegt vis à vis der verglasten Eingangstüre, womit das Feuer des Ofens auch von außen sichtbar ist – eine kleine Erinnerung an den Brand des alten Pfadfinderheimes und ein anschauliches Beispiel, mit wie wenig Energie ein solches Haus auch beheizt werden kann.





