Von der Werkstatt in einem Stück mit allen Auslässen an die Baustelle: drei Etagen hohe Installations-Kerne in Holz-Kastenelementen.
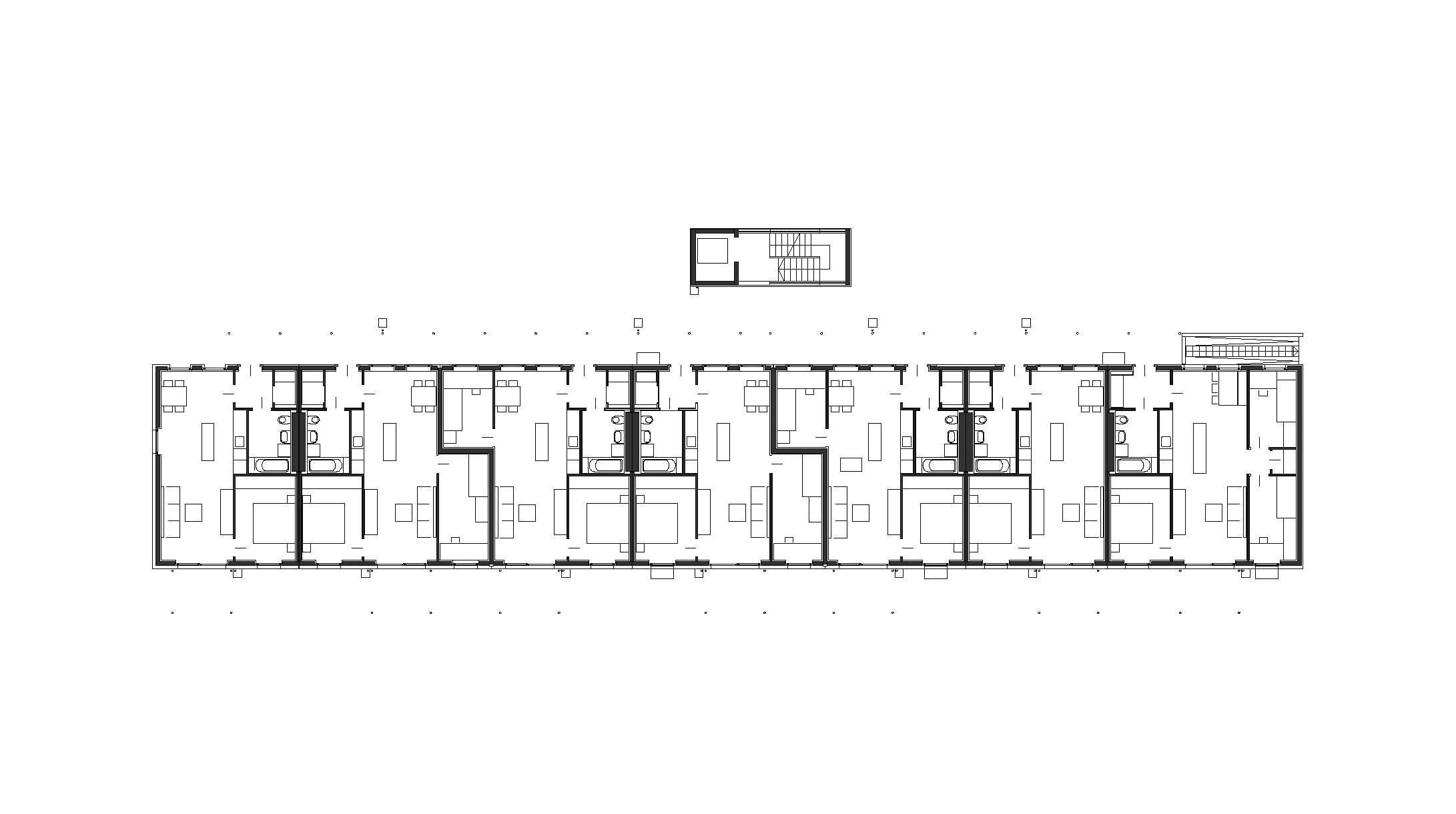
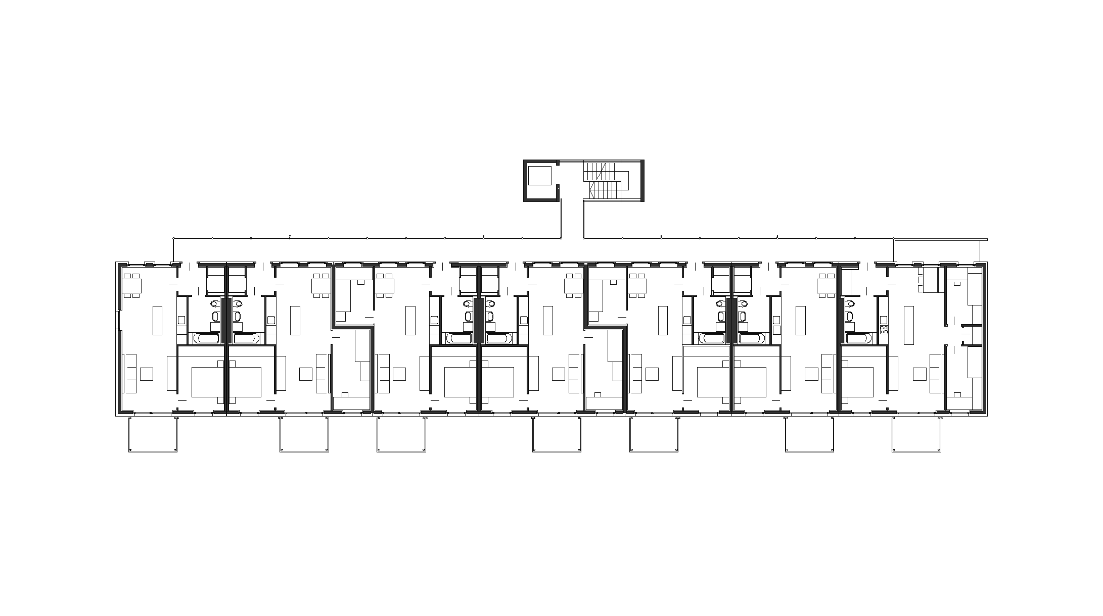
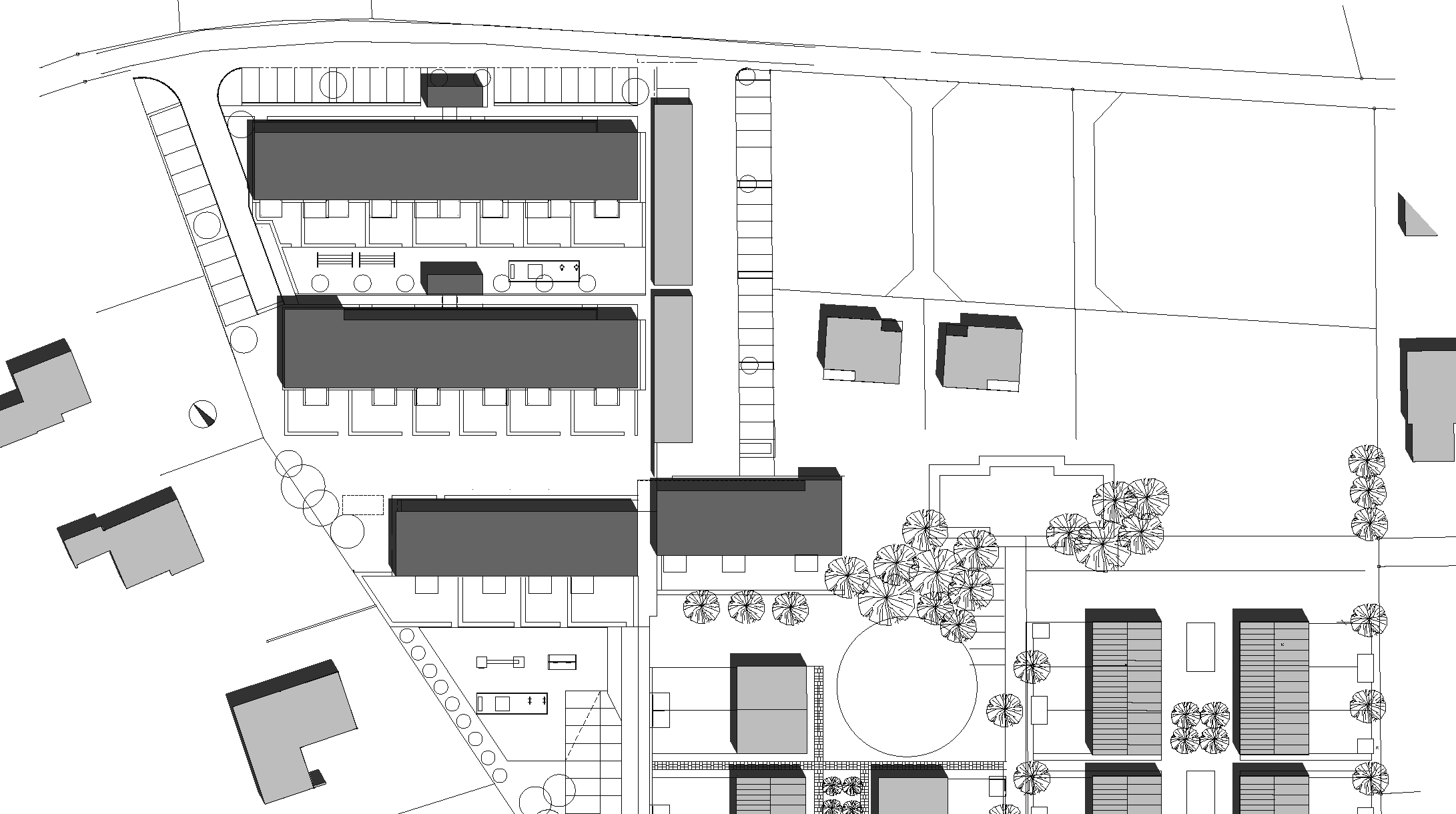
Diese Anlage in Ludesch wurde – etwa zeitgleich mit dem Bau in Telfs-Schlichtling – als Folgeauftrag nach Wolfurt- Neudorfstraße mit demselben Bauträger errichtet. Sie bringt eine weitere Variante des Typus mit pragmatischen Grundrissen und primärer Orientierung der Wohnungen nach Südwesten. Eine Neuerung bedeuten die bis zu den Wandauslässen in der Werkstatt vorgefertigten Installations- Kerne. Die 2,80 m breiten und drei Etagen hohen Elemente wurden in einem Stück geliefert und als Erstes auf die Kellerdecken gesetzt. Die Haustechnik ist insgesamt anspruchsvoller und bietet Solaranlagen für Warmwasser, Pellets-Biomasseheizung, Kalt- und Warmwasserzähler zur individuellen Kontrolle, Fotovoltaik in der Fassade des südlichsten Traktes. Die schwierige Grundstücksform ist durch breite Grünräume, Spielflächen und ebenerdige Wohngärten gut genützt. Bei den Stiegenhäusern sind bereits konstruktive Schächte vorgesehen, die, wenn sich später eine zusätzliche Finanzierungsmöglichkeit ergibt, zum Einbau von Liften genützt werden können.









