Zurückhaltende Erweiterung einer Festhalle.
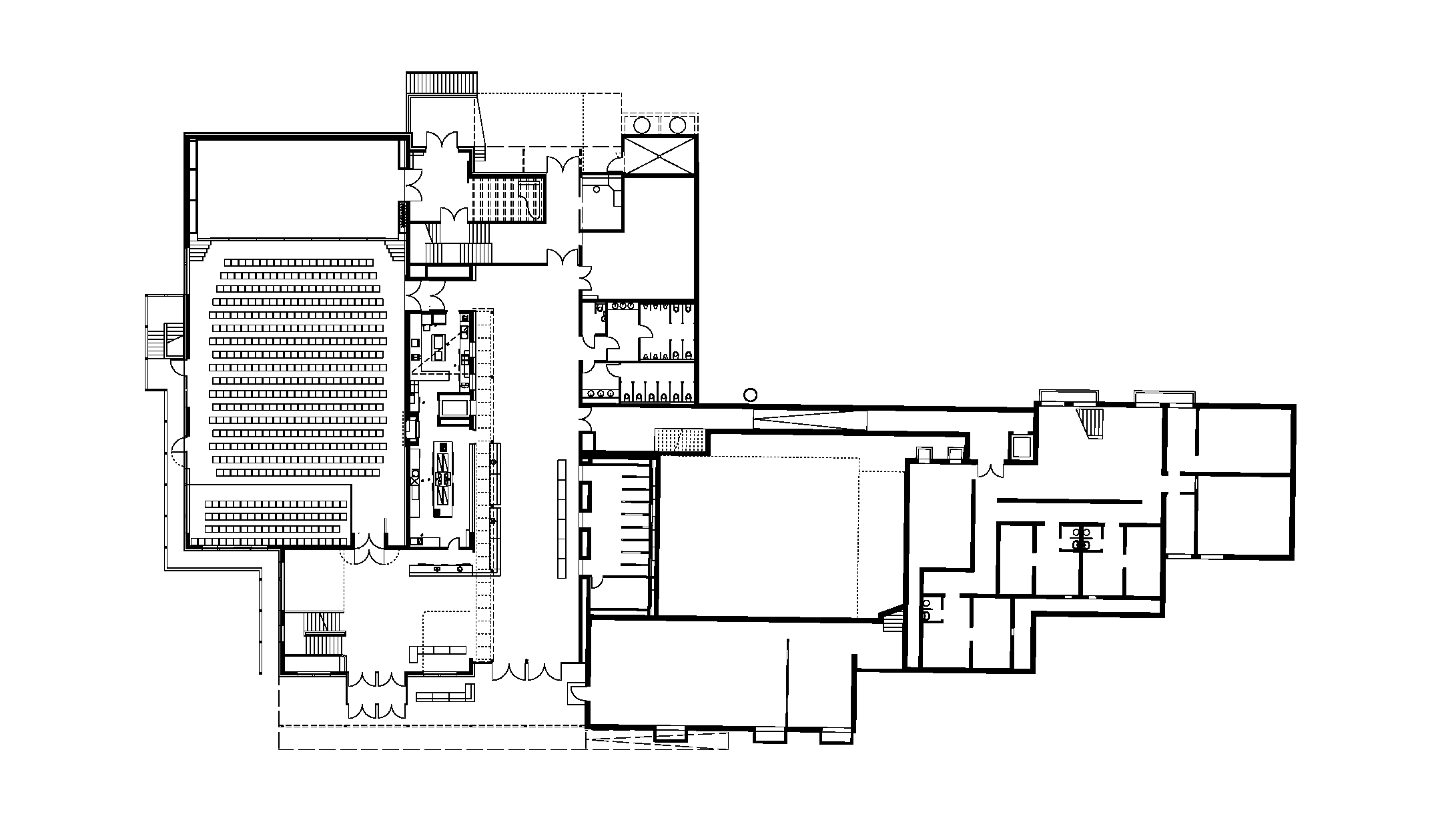
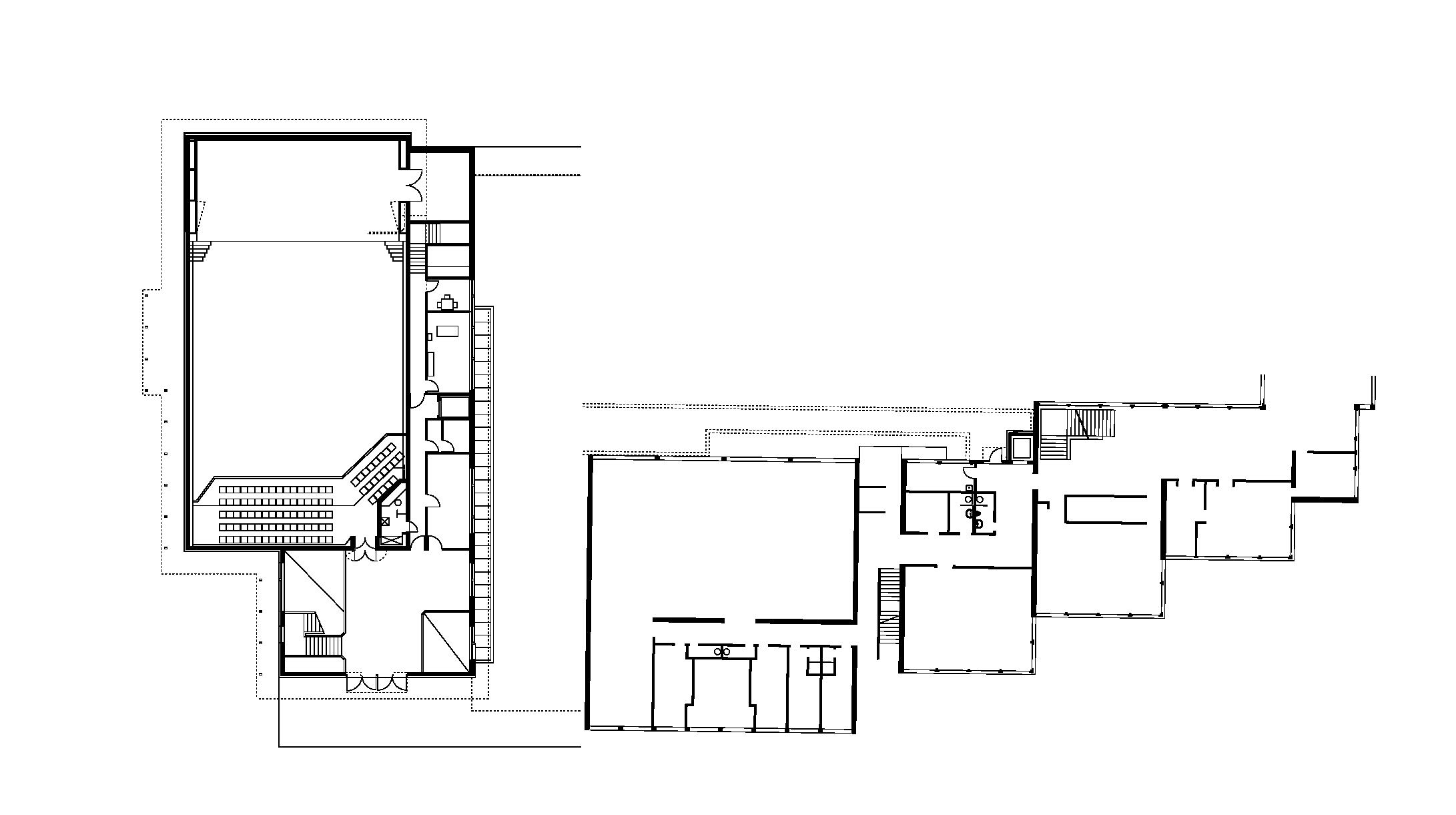
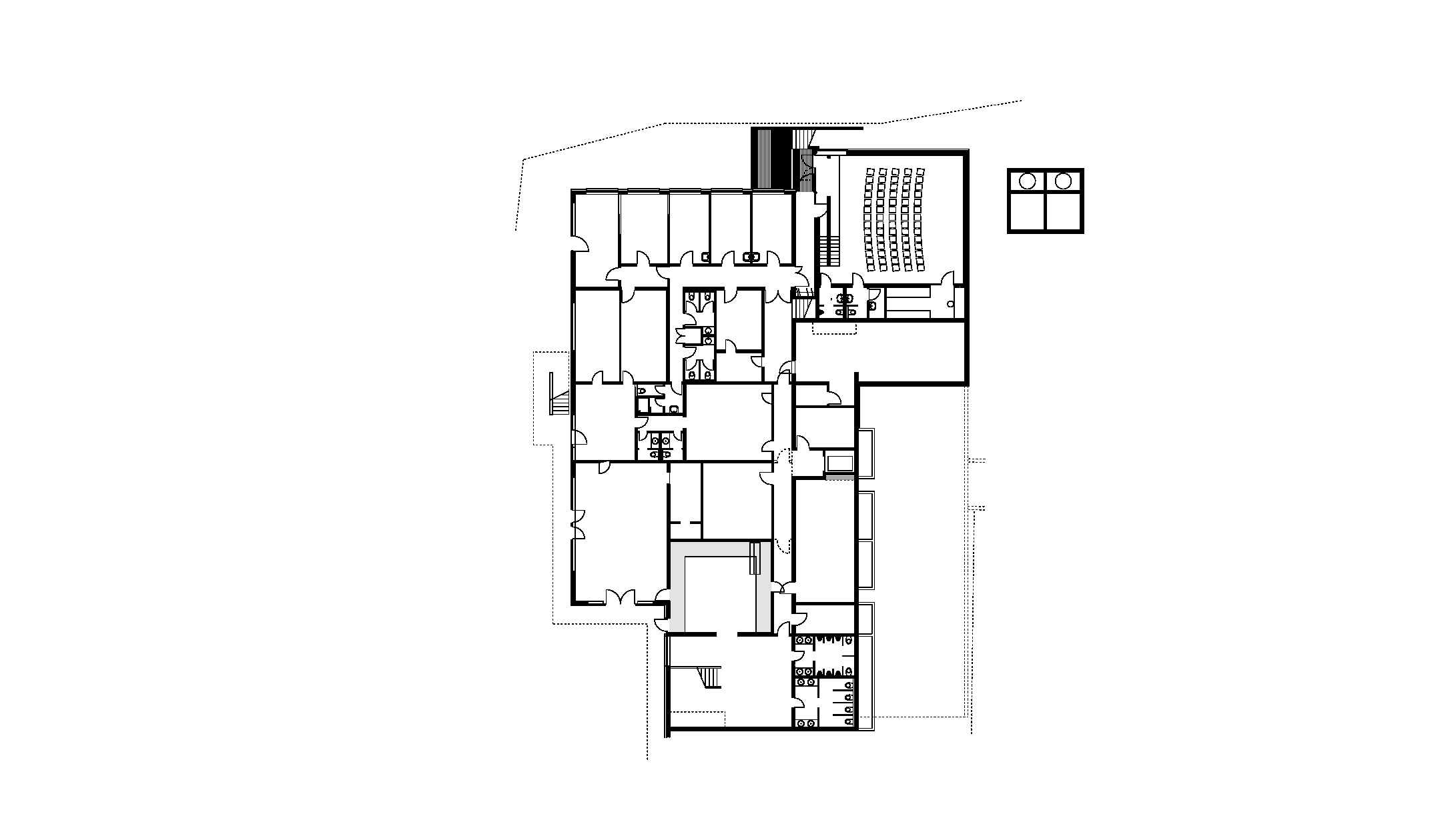
Das ursprüngliche Projekt von DI Bartle Moosbrugger aus dem Jahre 1984 war für eine reibungslose Abwicklung diverser Aktivitäten insbesondere für die Schubertiade zu klein geworden. So wurde der Saal um sieben Meter verlängert und die Nebenräume, insbesondere das Foyer großzügig erweitert.
Die architektonische Herausforderung bestand darin, die Qualität des Bestandes zu halten, und die neuen Räume so behutsam anzufügen, ohne das gewohnte Bild des Saales, der ja mittlerweile einen hohen Bekanntheitsgrad hat, zu verändern. Damit erklärt sich auch der zurückhaltende und dienende Gestaltungsansatz bei den neu hinzugefügten Teile.










