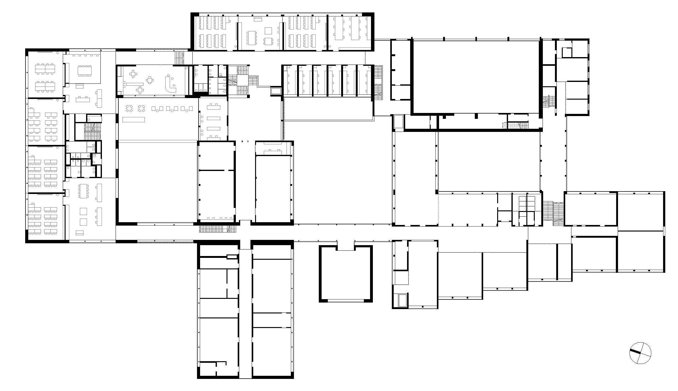
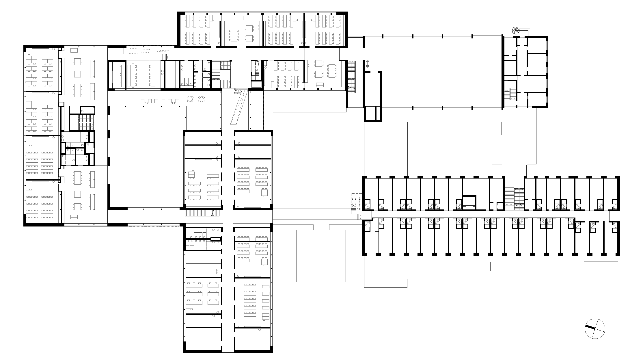
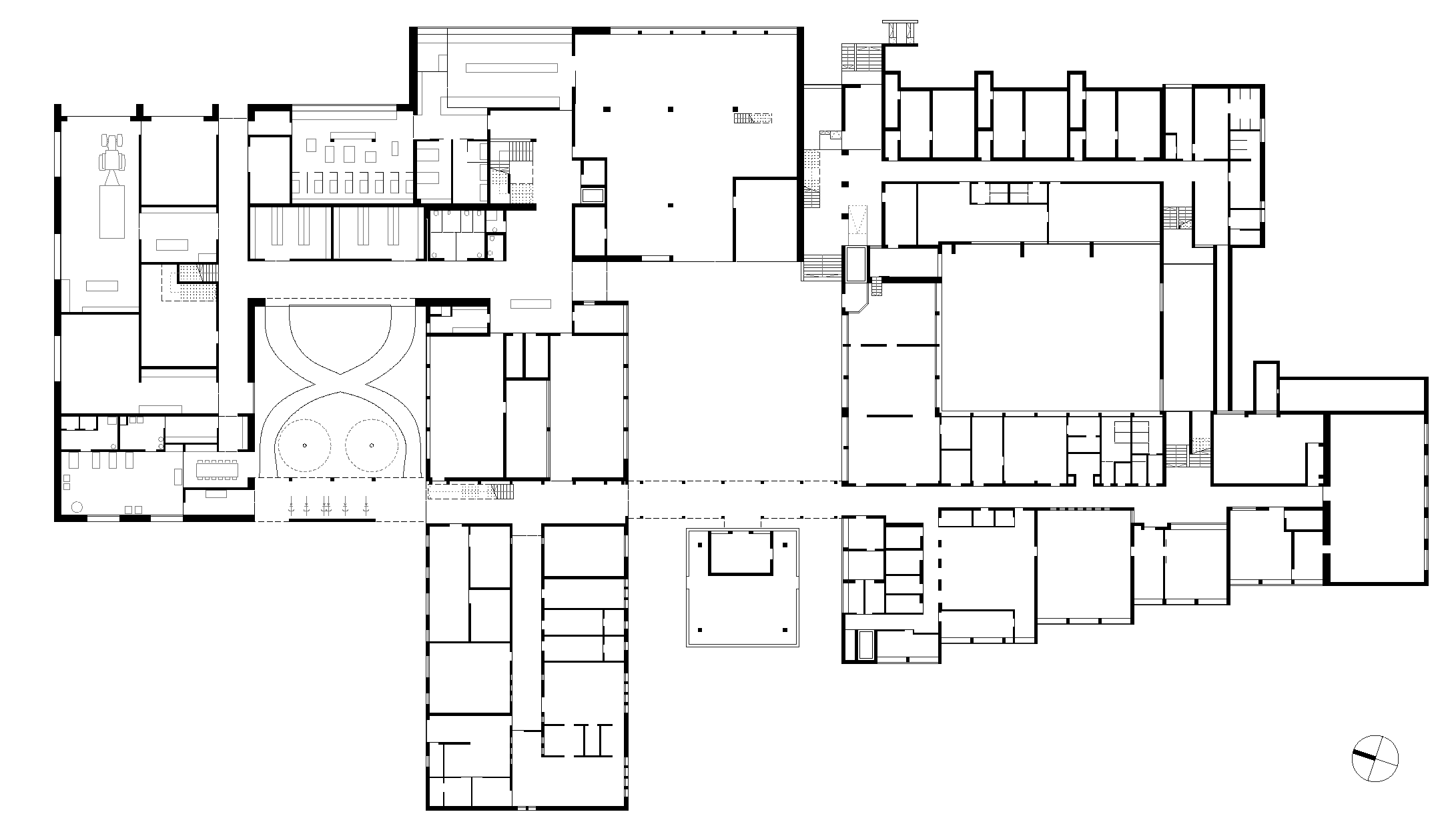
Flexible Lernlandschaft mit Freiraum.
Am nordwestlichen Siedlungsrand der Stadt Hohenems entstand ab den 1970er Jahren eine land- und forstwirtschaftliche Fachschule mit angeschlossenem Internat als zentrale Ausbildungsstätte für Vorarlberg. Um der dynamischen Entwicklung des bäuerlichen Schul- und Bildungszentrums Rechnung zu tragen, musste das Gebäude während der folgenden Jahrzehnte mehrmals umgeplant und vergrößert werden. So wurde bereits im Jahr 2006 die zergliederte Bausubstanz durch bedacht gestaltete Eingriffe und Ergänzungen in klare Strukturen gefasst, um sich als kompakt gefasste Hof-Typologie selbstbewusst von seiner heterogen bebauten Umgebung abzugrenzen.
Der neu errichtete Klassentrakt erweitert diesen Bestand in Sinne einer Stärkung der vorhandenen räumlichen Potentiale. Er ergänzt die gegebene Erschließungsstruktur zu einem Rundgang und formt so einen weiteren Innenhof, welcher durch den naturbelassenen Garten und großzügig dimensionierte Terrassen als geschützter Erholungsraum für die Schüler konzipiert ist.
Während im massiv ausgeführten Sockelgeschoss vorwiegend Technik- und Werkräume untergebracht sind, wurden die beiden darüber liegenden Stockwerke als offene und flexible Lernlandschaften mit naturbelassenen Holzoberflächen und hellen Bodenbelägen gestaltet. Um die Trennung der Klassenzimmer von den angrenzenden Gemeinschaftsflächen nur durch räumlich formulierte Möbeleinbauten realisieren zu können, übernehmen deckengleiche Träger und Stahlstützen die statischen Lasten der tragenden Mittelachsen. Dieser Gebäudeteil ist wie der Zubau der letzten Erweiterungsphase in Brettstapelbauweise mit akustisch wirksamen Massivholzdecken gefügt, wobei die Decke über dem Erdgeschoss als Holz-Beton-Verbund gefertigt ist, um Schwingungen zu reduzieren. Auch die bewährte Fassadengestaltung aus dunkelrot gestrichenen sägerauen Holzlatten wurde wieder übernommen und durch neue Elemente sinnvoll ergänzt, um eine gestalterische und konstruktive Konsistenz für das gesamte Schulhaus zu etablieren
































