Eine komplette Überarbeitung von Funktion und Form.
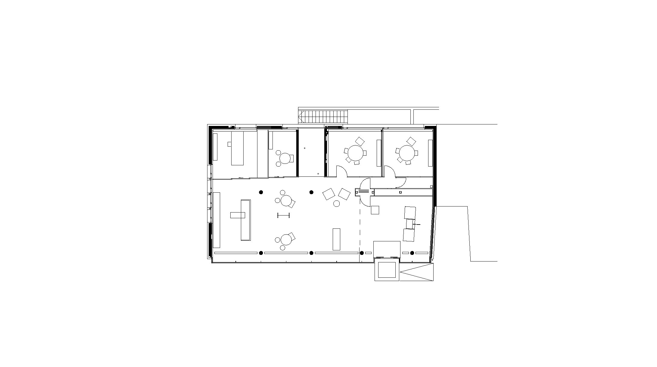
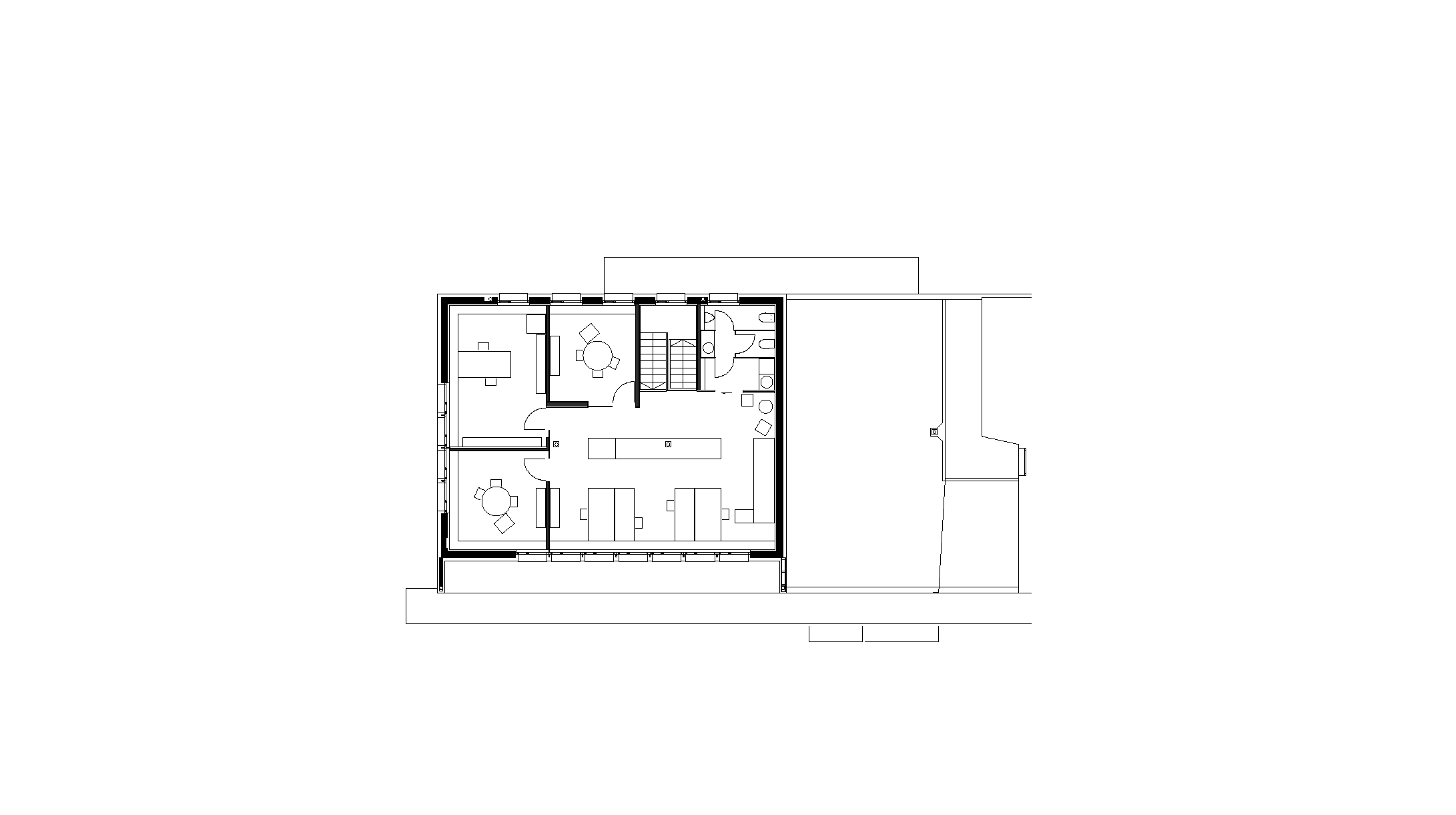
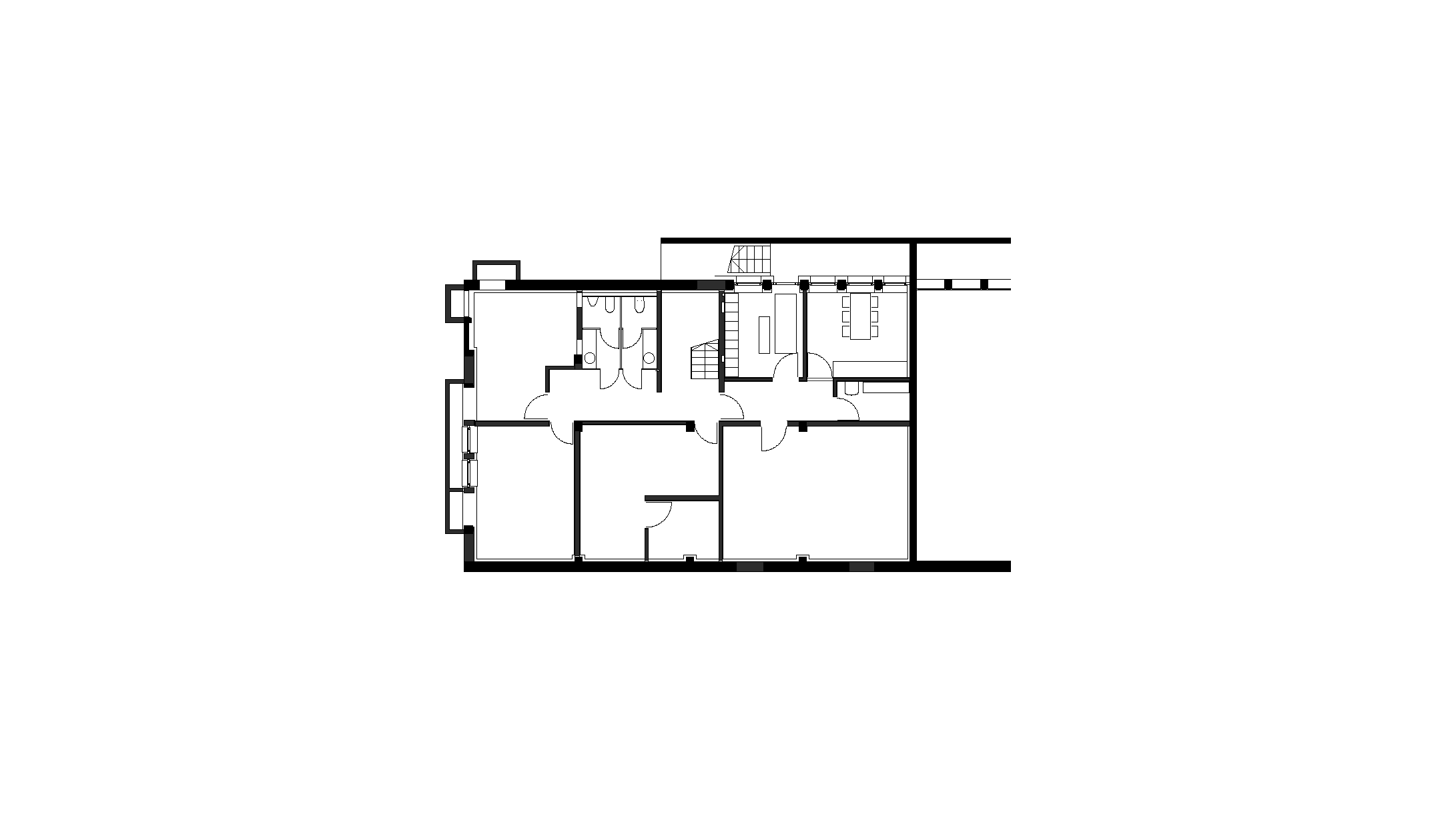
Durch die neue Funktion die dem Gebäude gegeben werden sollte, musste es bis auf Außenwände und die Rohdecken komplett ausgehöhlt werden. Es bekam eine neue Vertikalerschließung in Form eines offenen Stiegenhauses. Im EG befinden sich die Schalterhalle, der SB-Bereich und Beratungszimmer. Im OG befinden sich die Büroräumlichkeiten und im UG der Tresorraum, Teeküche, Angestelltenzugang inklusive deren Garderoben sowie Technikräume. Die Fassade wurde mit einem Vollwärmeschutz versehen, das Vordach wurde als dünne Betonscheibe neu formuliert.







