Nach innen wachsen
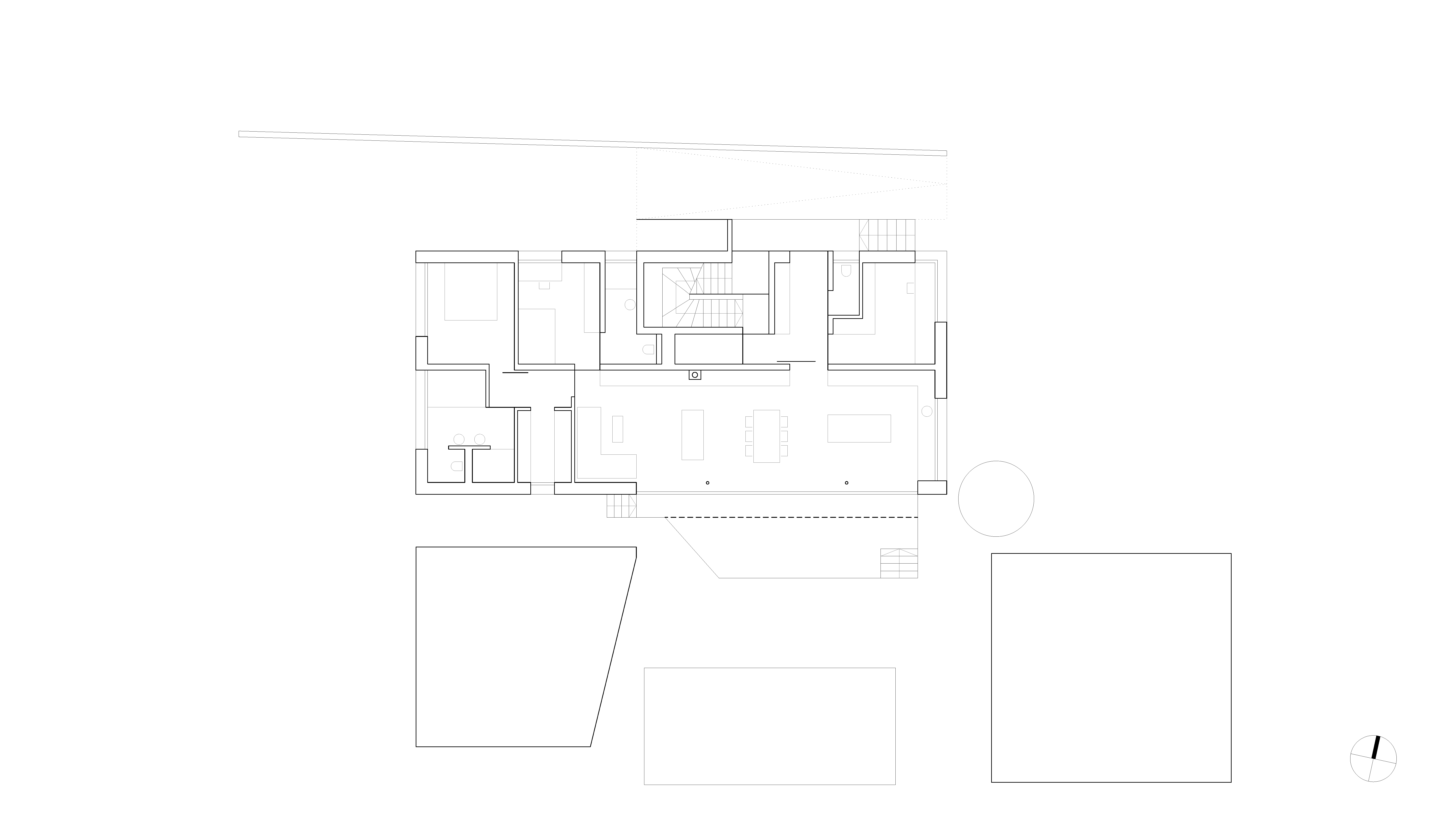
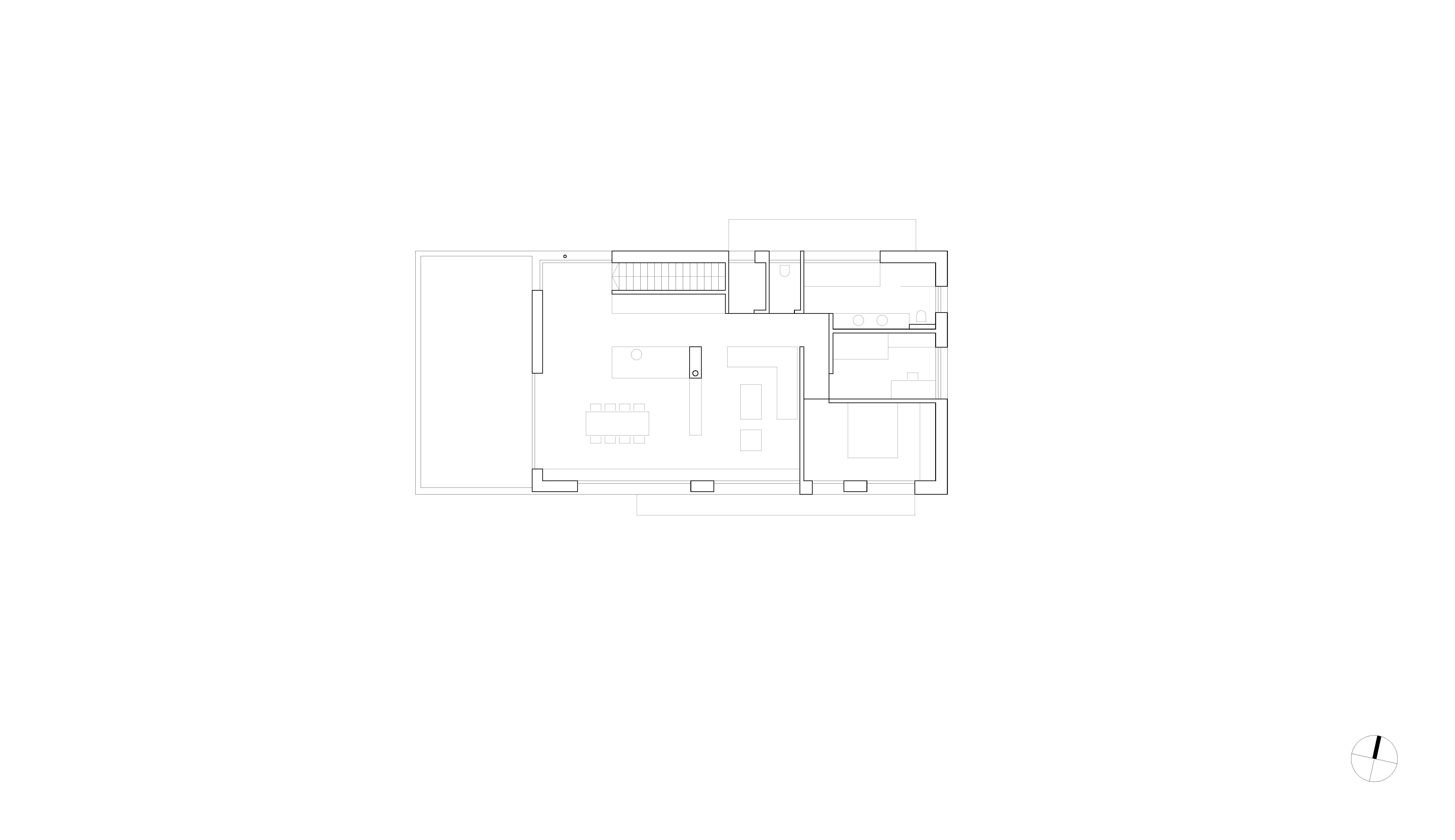
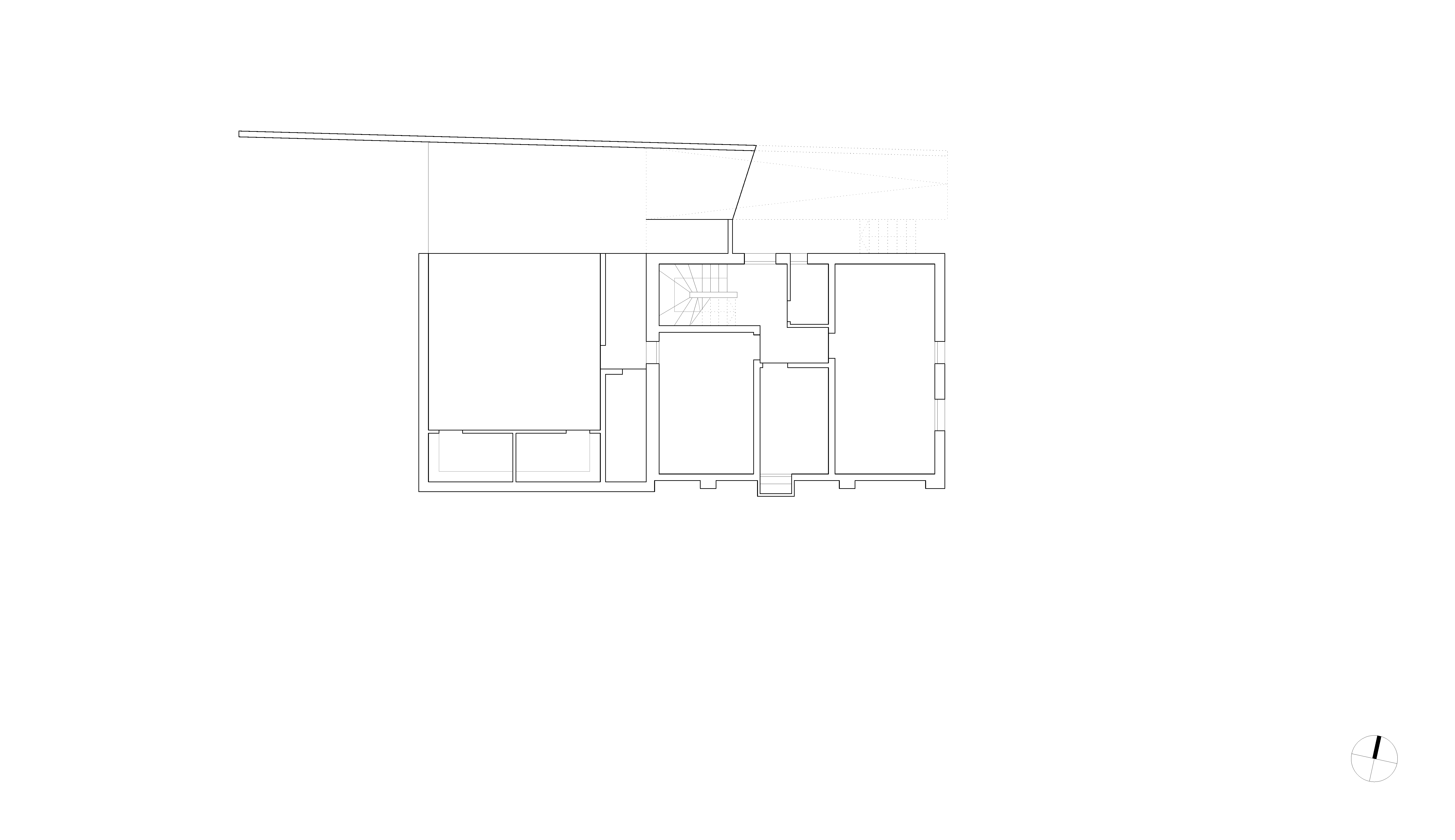
Das zentrale Wohnquartier östlich des Marktplatzes von Dornbirn wird durch eine Vielfalt von Gebäuden aus unterschiedlichen Epochen geprägt, welche die sukzessive Entwicklung des Stadtbezirkes widerspiegeln. Da eine Verdichtung der baulichen Substanz notwendig ist, um den grünen Charakter des Viertels zu bewahren, wurde das bestehende Einfamilienhaus bis zur Kellerdecke abgetragen und das Untergeschoß durch eine Doppelgarage erweitert. Dieser Sockel aus Stahlbeton dient als Fundierung für eine dreistöckige Holzkonstruktion, die vier Wohneinheiten beherbergt. Die Aufenthalts- und Schlafräume orientieren sich überwiegend nach Süden oder Westen, um eine optimale Besonnung und Aussicht zu garantieren. Während die Innenräume mit hochwertigen Materialien ausgekleidet wurden, sind die Fassaden mit einer lasierten, sägerauen Schalung aus Weißtanne belegt, die sich in die gewachsene Umgebung einfügt.














