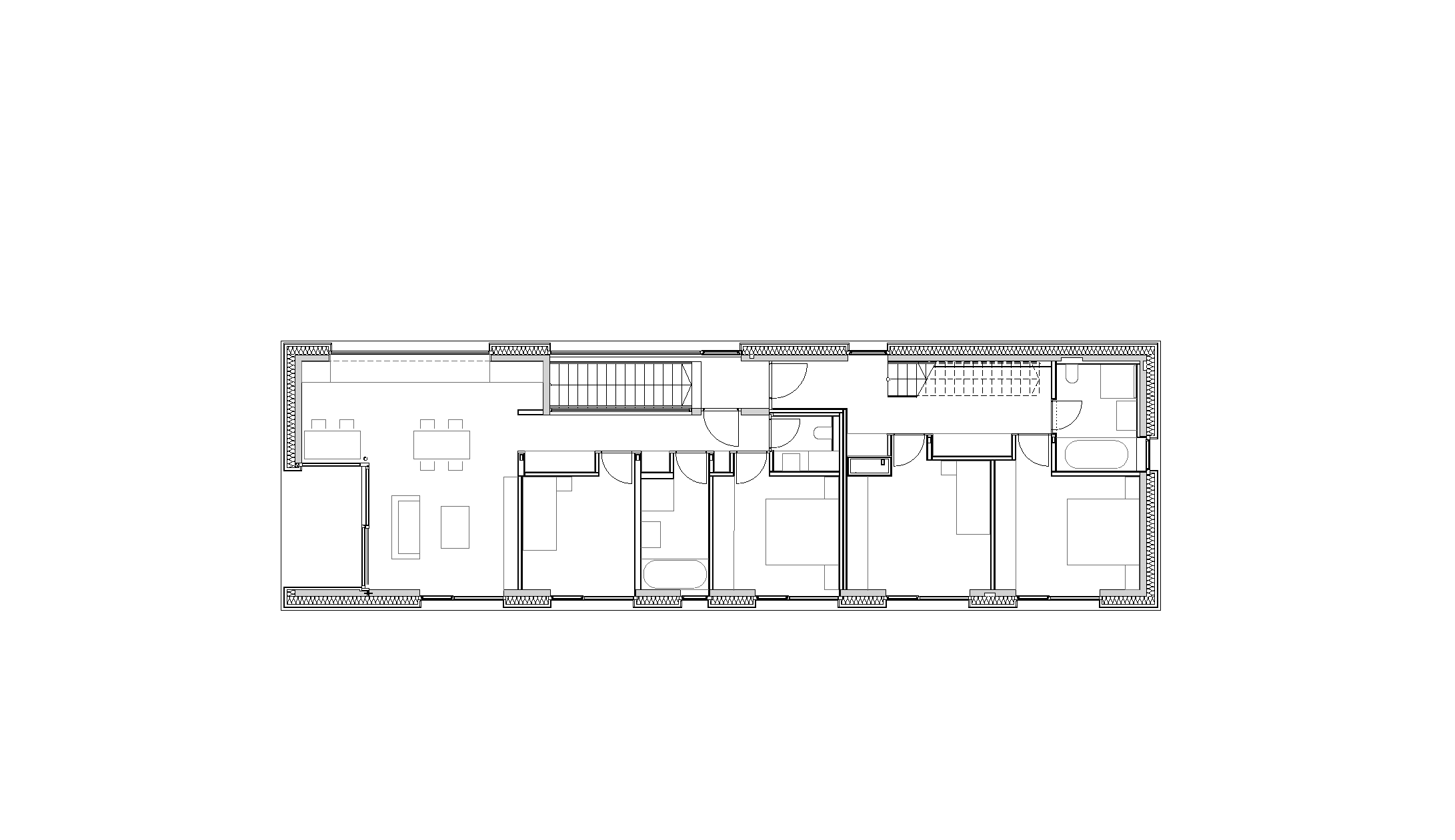
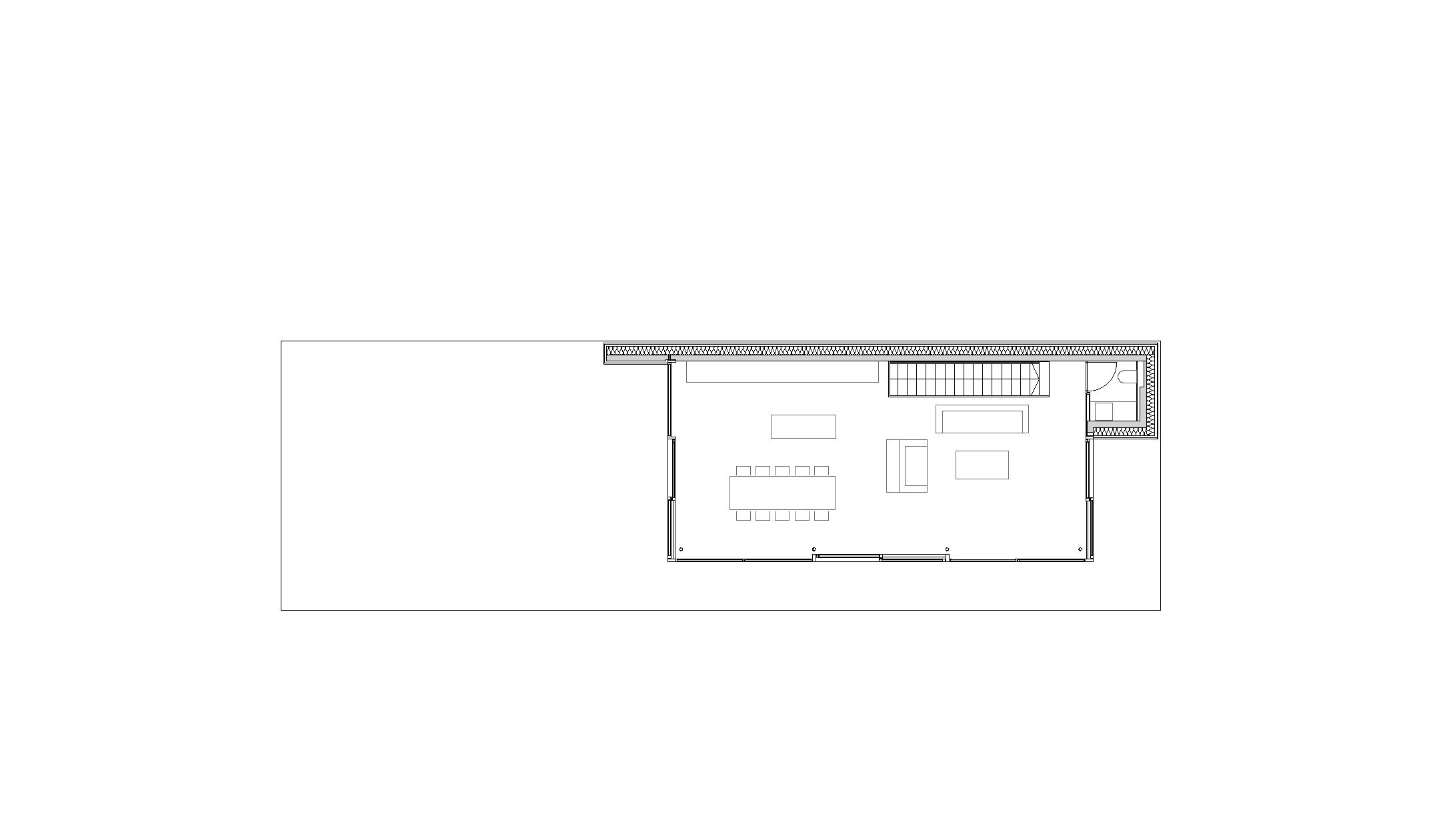
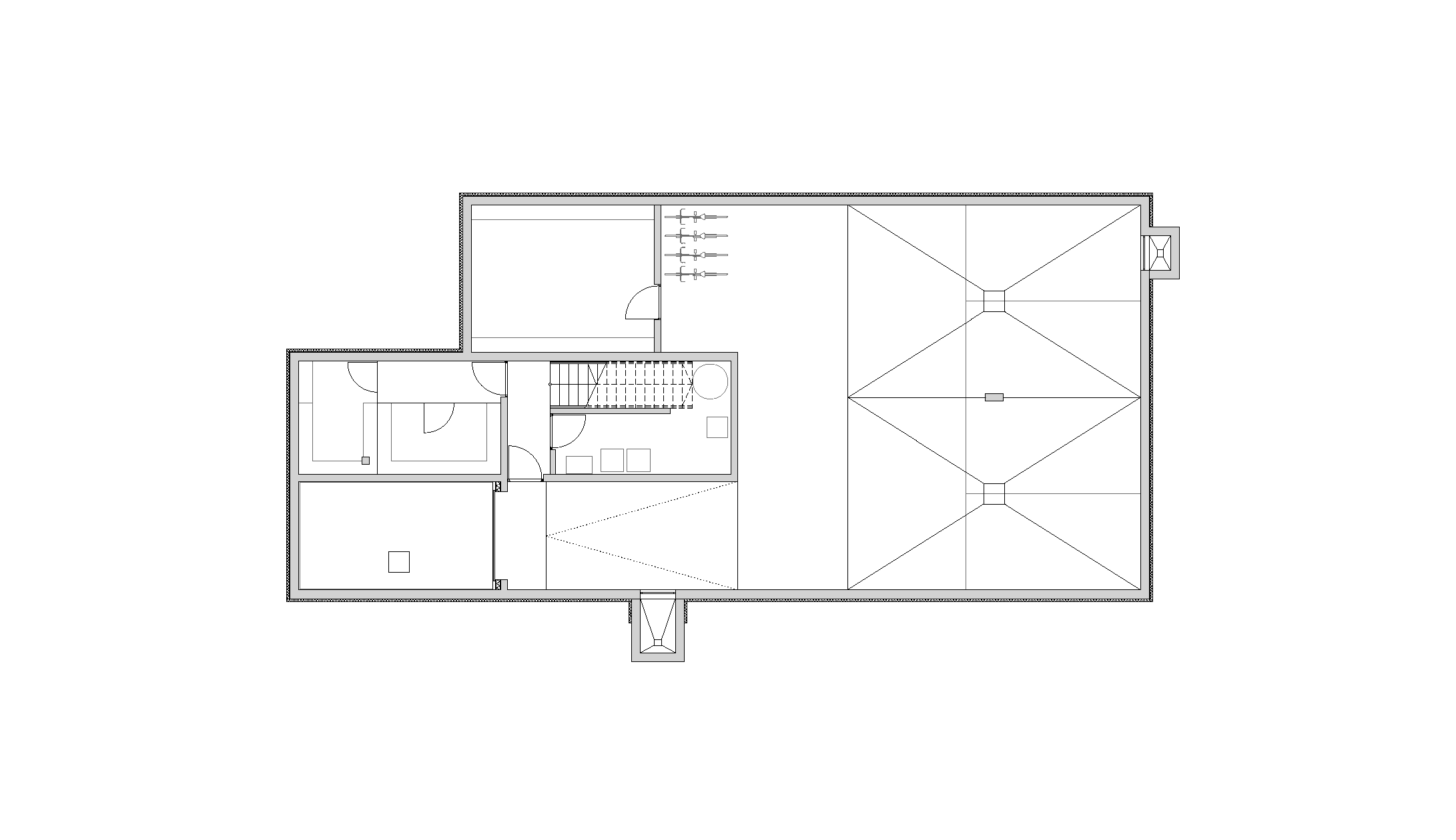
Stockachgasse, Bregenz

Stockachgasse, Bregenz
Bauherrschaft
Dr. Johannes Eberle, Bern
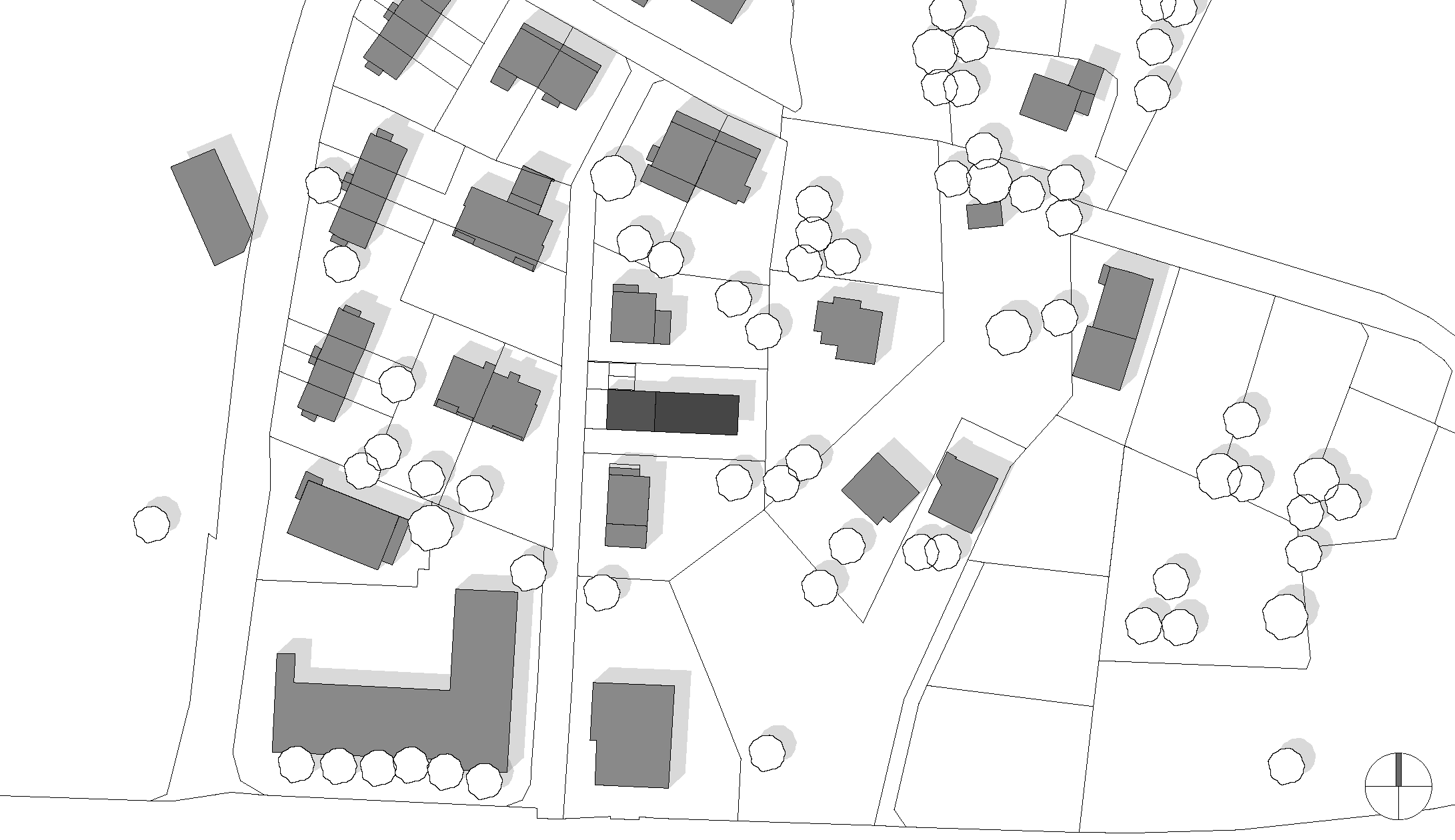
Standort
Bregenz
Fertigstellung
2013
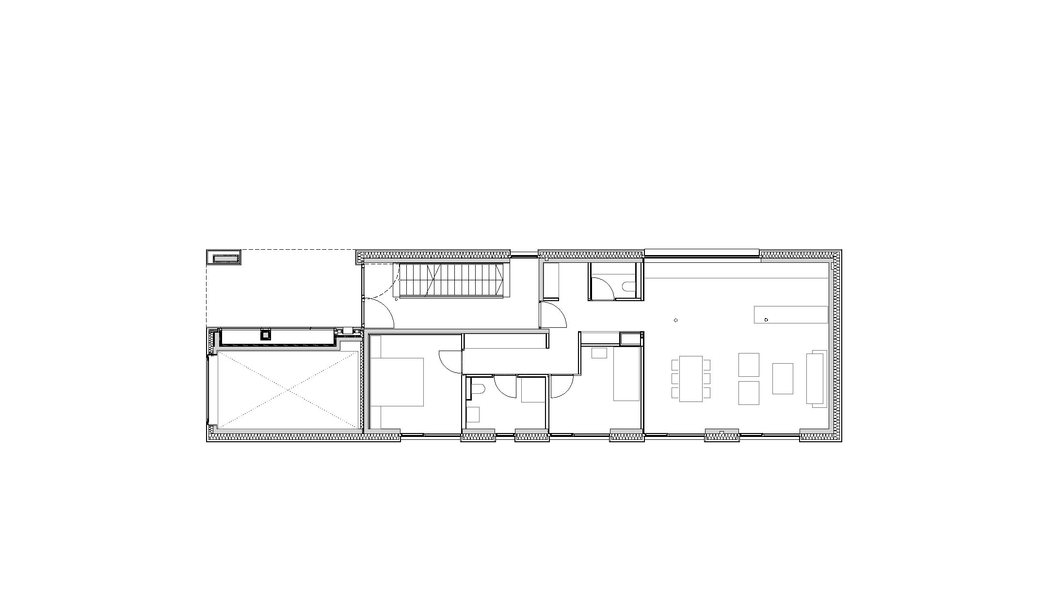
Projektdaten
WNF 289,14 m², NGF 523,45 m²,
BGF 709 m², BRI 2.195 m³
Energie 22 kWh/m²a

 

 

Stockachgasse, Bregenz
Stockachgasse, Bregenz
Stockachgasse, Bregenz
Stockachgasse, Bregenz
Weitere Projekte