Transparent und funktional gestaltet.
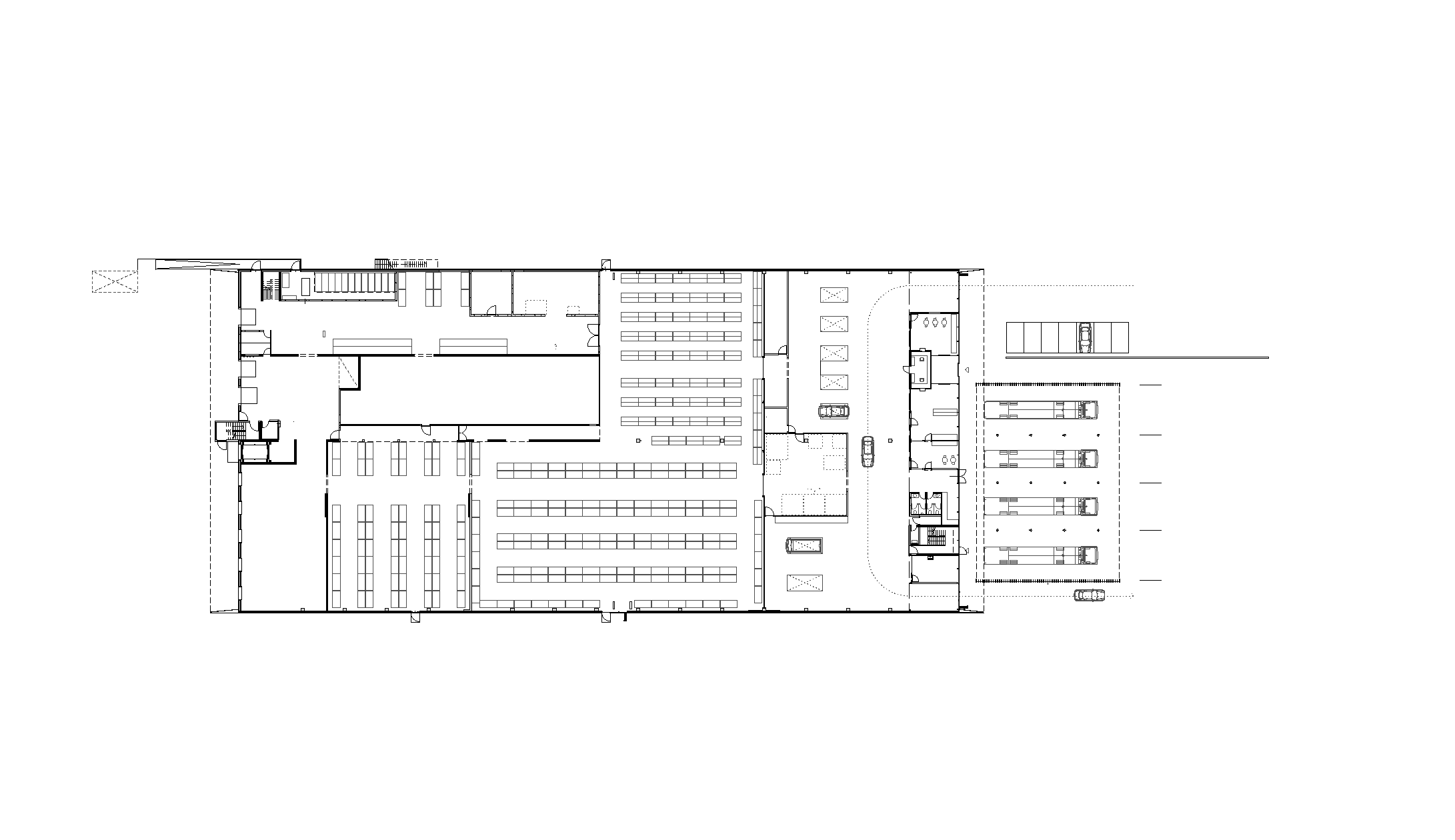
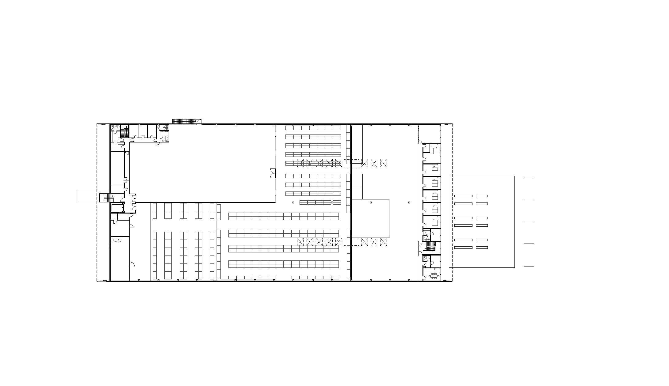
Im Zuge der Umsiedlung des Betriebes in einen ehemaligen Lebensmittelgroßmarkt wurde die Reifenservicehalle auf dem davor liegenden Parkplatz errichtet. In diesem von drei Seiten geschützten Flugdach können die Reifenservicearbeiten für LKW´s durchgeführt werden. Das Flugdach steht vor der Eingangsglasfassade, womit es notwendig war, das Gebäude möglichst leicht und transparent zu gestalten. Auf eingespannten Stahlbetonstützen sind Hauptträger aufgelegt, an welche die nur 6 cm breiten sehr eng gelegten Nebenträger eingebunden werden. Diese Nebenträger liegen im Seitenfassadenbereich direkt auf Stützen in derselben Stärke. Der Windschutz dieser lamellenartigen Wand wird mit in die Stützen eingeklemmten Acrylglasplatten bewerkstelligt.







