Unterschiedliche Bauten geben dem Straßendorf eine funktionale, räumliche Mitte, umfassen einen vielfältig nutzbaren Platzraum.
Ein 250 Jahre altes Holz-Stein-Haus war lange Schule und Pfarrhof, wurde jetzt Bücherei, Gemeindeamt und Krankenpflegestation, bleibt auch Pfarrkanzlei.
Von den lang gestreckten, mit flachen Satteldächern gedeckten Bauernhöfen unterschieden sich die öffentlichen Gebäude – Schulen, Gemeindehäuser – im Bregenzerwald unter anderem durch den Zuschnitt und die Höhe der Baukörper und auch durch die Deckung mit steilen Walmoder Pyramidendächern. Auch der im 18. Jahrhundert erbaute Pfarrhof in Schnepfau ist auf den ersten Blick an diesen Merkmalen erkennbar. Er steht gegenüber der Pfarrkirche, bildet den westlichen Abschluss des Dorfplatzes.
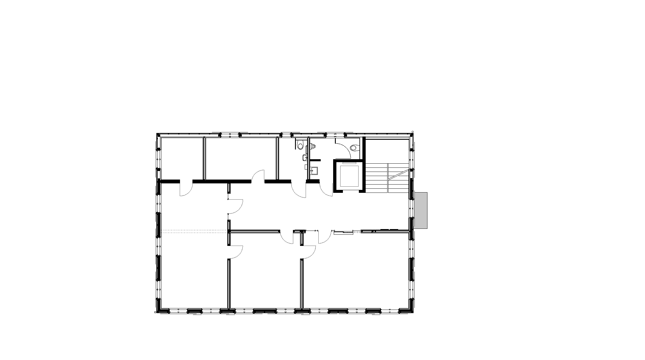
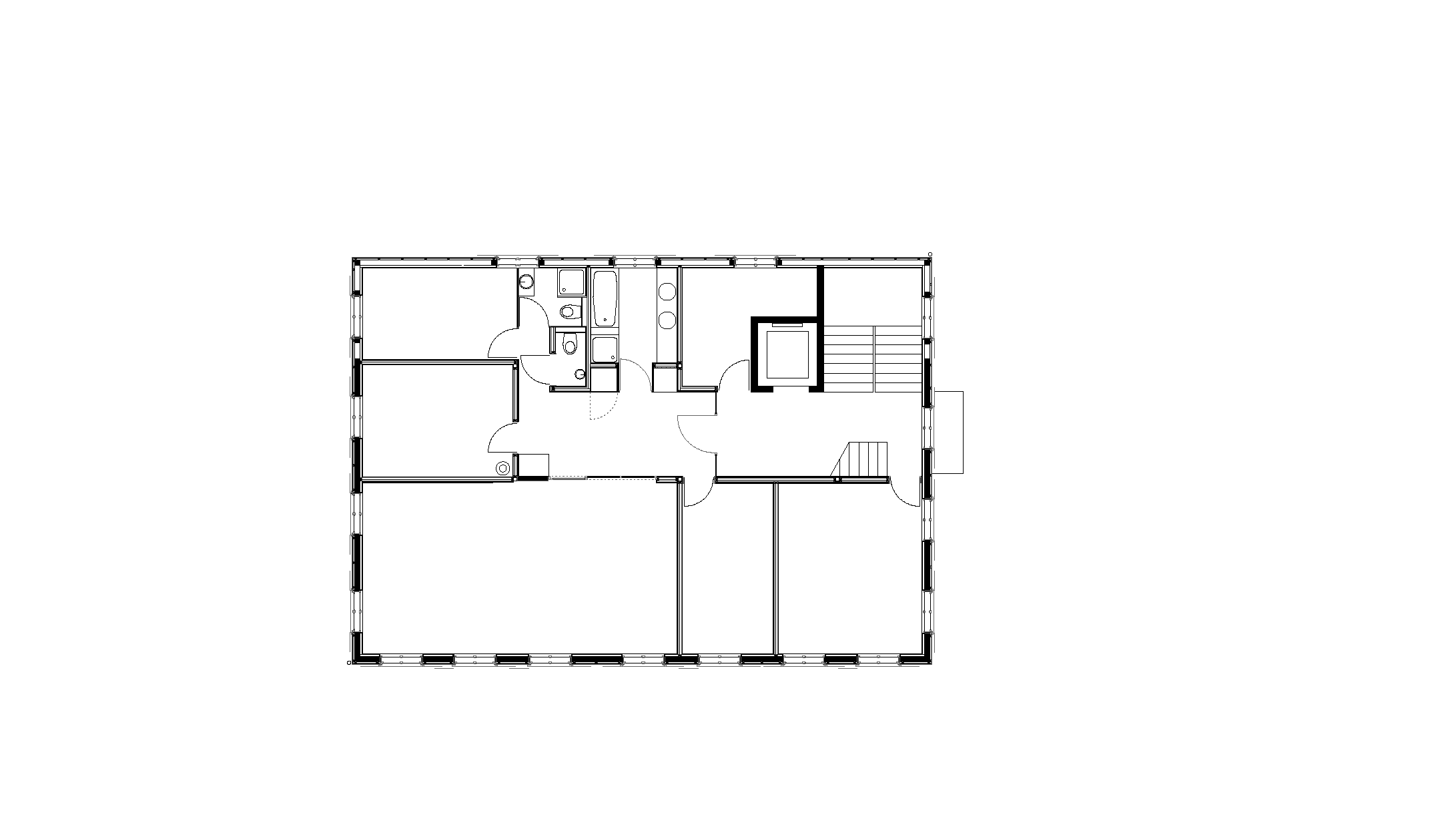
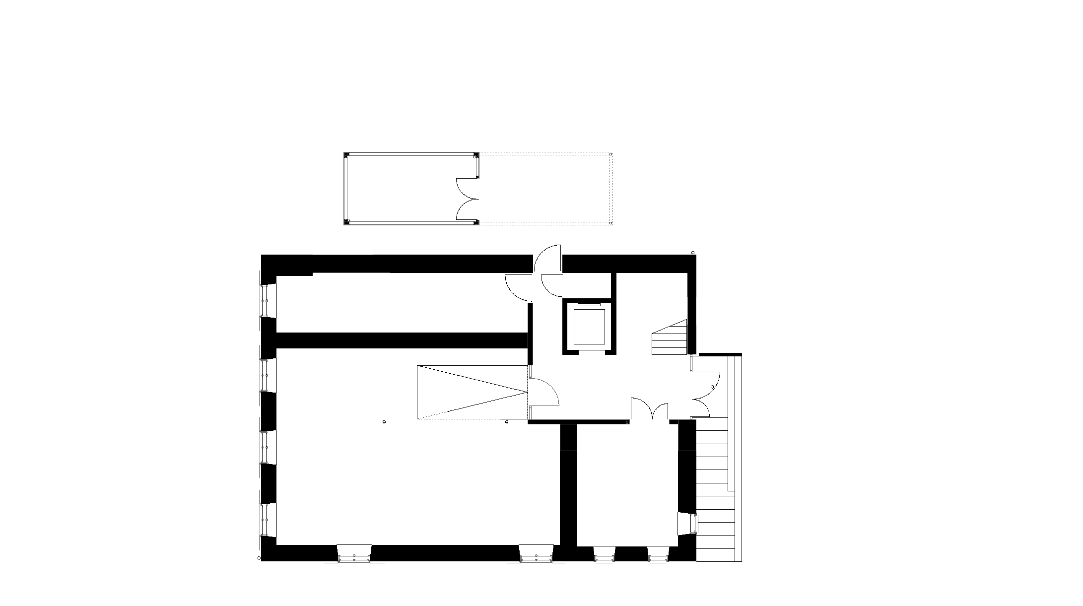
Im Jahr 2000 erwarb die Gemeinde das Haus und revitalisierte es mit der Einbringung weiterer öffentlicher Nutzungen: Im massiv gebauten Erdgeschoss wurden Bücherei und Krankenpflegeverein einquartiert, im ersten, in Holz gefügten Stockwerk amtiert die Gemeindeverwaltung, im zweiten Stock befinden sich das Pfarrbüro und eine Wohnung. All das brauchte eine Umstellung der inneren Erschließung. In der Nordostecke wurde ein neues Treppenhaus mit Lift eingefügt. Die Decke über dem ersten Stock musste etwas angehoben und dort auch die Höhenlage der Fenster korrigiert werden, ohne die Fassadenproportion zu verändern. In Abstimmung mit dem Denkmalamt wurde möglichst viel Substanz erhalten, die neuen Teile – fest wie mobil – wurden handwerklich aber in eindeutig zeitgenössischem Habitus implantiert.









