Bauen mit Holz – Eine überzeugende Ökobilanz.
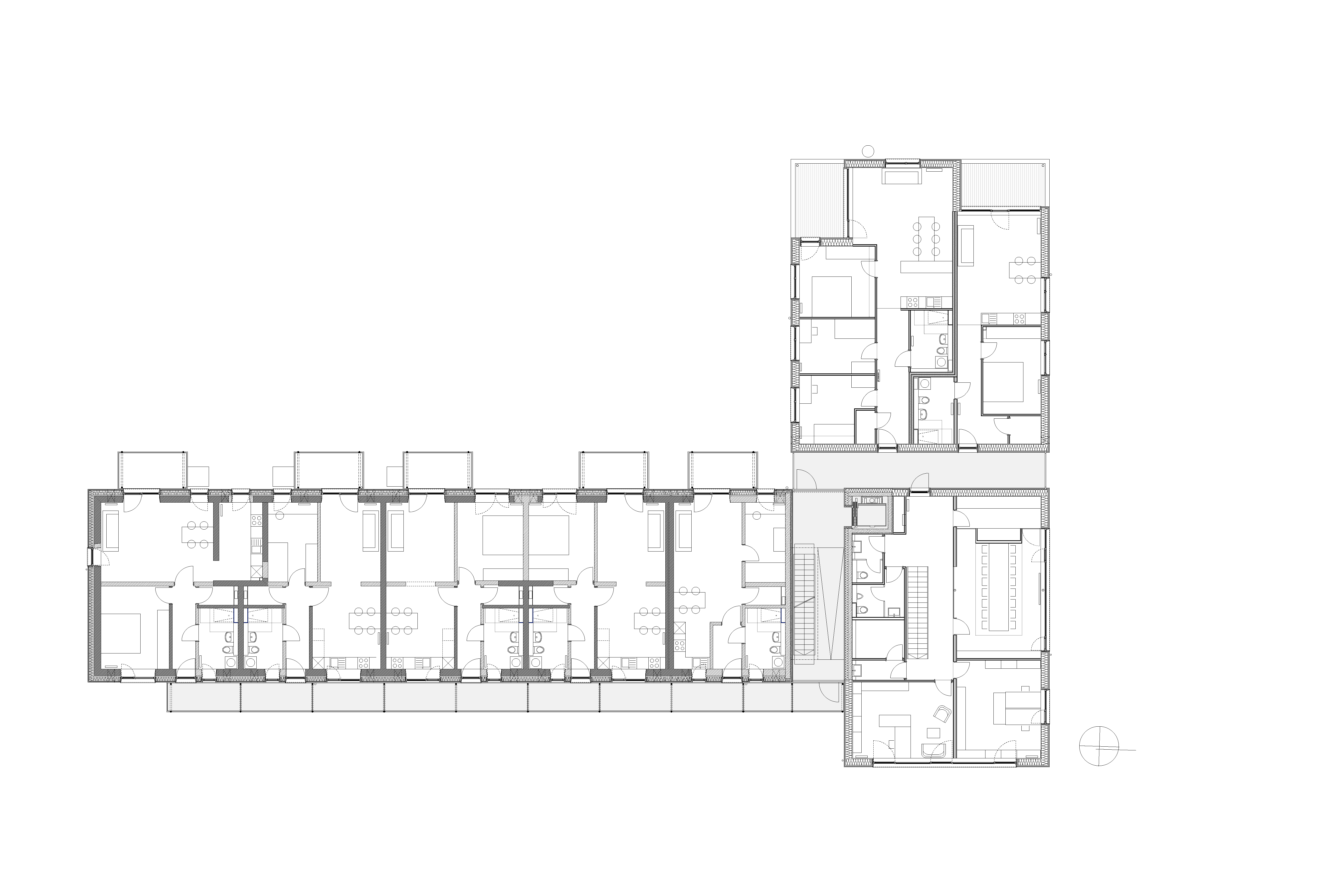
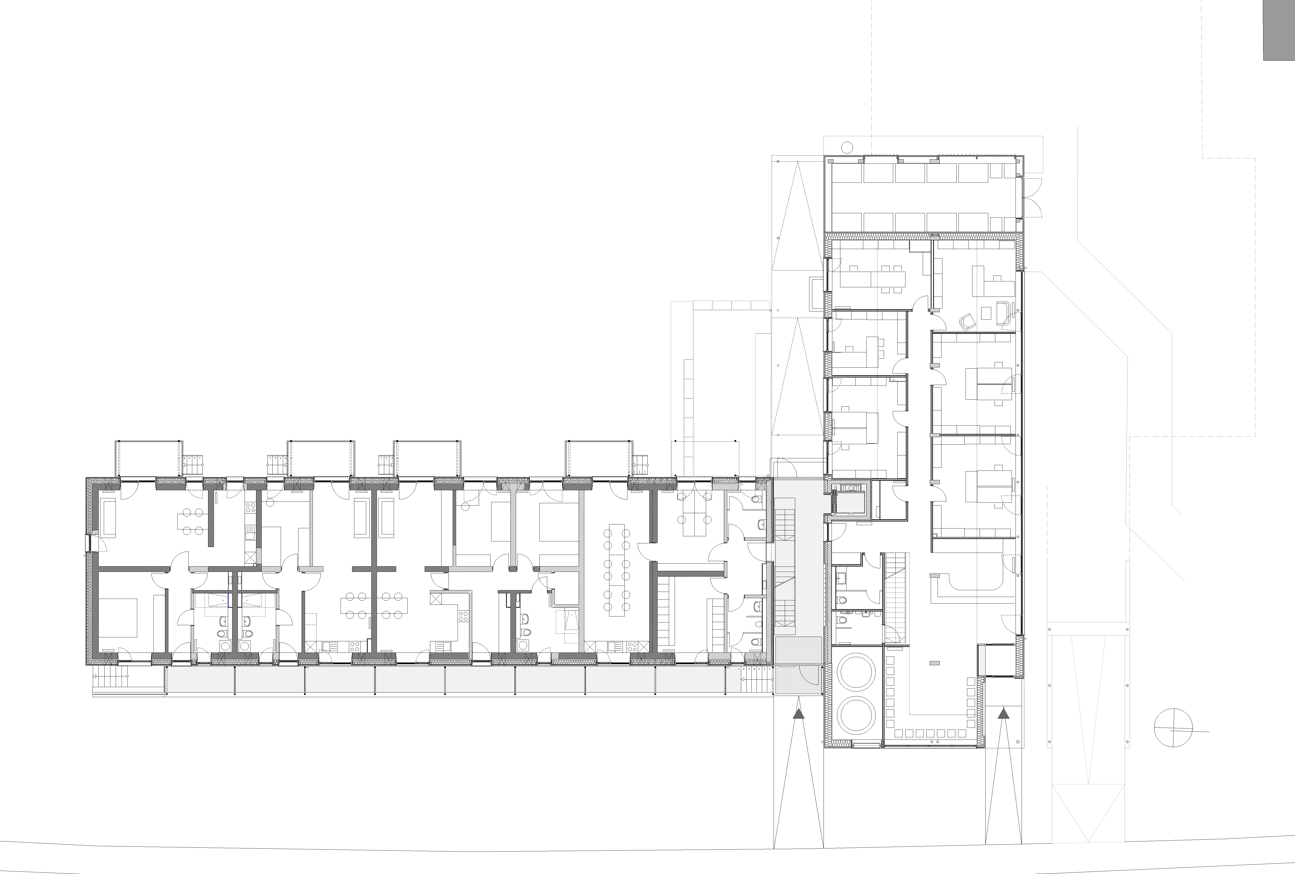
Bei diesem Bau wurde erstmals in München ein viergeschossiges Wohn- bzw. Bürogebäude mit sichtbaren Holzdecken ausgeführt. Im Erdgeschoss sowie im östlichen Teil des 1. Obergeschosses befindet sich die Hausverwaltung der GWG München Sendling-Westpark-Hadern. Alle weiteren Flächen sind frei finanzierten Mietwohnungen vorbehalten. Auf Grund der gemischten Nutzung in einem Gebäude waren sowohl konstruktiv als auch bauphysikalisch sehr komplexe Herausforderungen zu meistern. Darüber hinaus ist das Gebäude nach den neuesten Erkenntnissen des modernen Holzbaus konstruiert: Auf den tragenden vorgefertigten Rahmenholzwänden und Einzelstutzen lagern Stahlträger, auf denen wiederum Brettsperrholzelemente verlegt wurden. Deren Unterseite bleibt sichtbar und verleiht den Wohnungen einen besonderen Charakter.
»Mit der Modellerneuerung der GWG, Münchens derzeit größtes Holzprojekt, erzielt bestmögliche Wertschöpfung und Effizienz in Bauweise und Betrieb, bei verdoppelter Wohnfläche und Energiereduktion um Faktor 15.«
Lichtblau Architekten, München
Das Konstruktionsmaterial des Hauses zeigt sich offen. Die Außenhülle wurde im Werk vorgefertigt, ihre Wärmedämmung entspricht den Passivhausanforderungen. Die Verschalung der Fassaden erfolgte mit sägerau belassenen, senkrechten, grau lasierten Fichtenbrettern. Auf Grund langjähriger Erfahrung mit dieser Art von Außenverkleidung kann von einer langen Haltbarkeit und niedrigen Erhaltungskosten ausgegangen werden. Auch hier soll die Fassade den Holzbau erlebbar machen, die farbige Behandlung ist der Integration in den Kontext geschuldet und ein behutsamer, gesteuerter Vorgriff auf den charakteristischen Alterungsprozess des Holzes. Vergleiche von Gebäuden in konventioneller Bauweise, die zahlreiche Bauprodukte aus endlichen Rohstoffen enthalten, und Gebäuden mit einem hohen Anteil an Bauelementen aus nachwachsenden Rohstoffen haben die erheblichen Entlastungspotenziale aufgezeigt, welche die Letzteren für das Ökosystem bieten.
Warum baut die GWG München heute – wieder – in Holz? Bereits in den 90er-Jahren hat die GWG München Wohngebäude in Holzsystembauweise im Rahmen des experimentellen Wohnungsbaus erfolgreich erstellt. Die Entstehung dieses neuen Projekts hat eine längere Geschichte. In unserem Siedlungsgebiet Sendling-Westpark-Hadern modernisieren wir seit einigen Jahren kontinuierlich unsere Bestände. Dabei wurden Gebäude komplett umgebaut, aber auch abgerissen und durch Neubauten ersetzt.
Weiterlesen
Aus der Überzeugung, dass der Holzbau in städtischen Quartieren zu Unrecht eine sehr geringe Verbreitung hat, entschieden wir uns, für die Planung der Modernisierung unserer Bestandsbauten Zwischen Fernpaßstraße und Badgasteiner Straße, ein Experiment mit dem Lehrstuhl für Holzbau der Technischen Universität München, zu wagen.
Im Wintersemester 2006/07 bearbeiteten Studenten die Modernisierung und Erweiterung des Quartiers als Entwurf. Die Grundidee war, die massiv gebauten Bestandsgebäude durch Holzkonstruktionen so zu erweitern, dass zeitgemäße Wohnungsgrundrisse realisiert und gleichzeitig Gebäudeergänzungen geschaffen werden konnten. Zusätzlich sollte der Erweiterungsbau, in dem die örtliche Hausverwaltung Sendling-Westpark-Hadern unterzubringen war, komplett in Holzsystembauweise erstellt werden. Die Entwürfe wurden Grundlage für eine spätere Weiterbearbeitung und bauliche Umsetzung durch das Büro Kaufmann. Lichtblau Architekten, München, Schwarzach. Holz ist nicht nur ein sehr umweltschonendes Baumaterial, es ist auch ein „sympathischer Baustoff.
Da die GWG München ihre Verantwortung nicht nur in der Bewältigung der sozialen Aufgaben der Wohnungspolitik sieht, sondern auch in der Lösung der umweltrelevanten Fragen im Wohnungsbau, war dieser Schritt nur folgerichtig.
Seit vielen Jahren investiert die GWG München viel Geld in die Sanierung und auch in die energetische Verbesserung ihrer Bestände. Damit leistet sie einen wichtigen Beitrag zur Reduzierung von CO2-Emissionen in München.
Bei der Auswahl der Baukonstruktionen ist diese Thematik ebenfalls bedeutsam. Denn die Erzielung hoher Dammwerte zur Energieeinsparung bei den Wohngebäuden erfordert nicht nur einen hohen Aufwand bei den Investitionen, sondern auch einen hohen Energieeinsatz bei der Herstellung und Verarbeitung der Baumaterialien. Das Material Holz bietet hier beste Voraussetzungen, die Umweltbelastung deutlich und auf Dauer zu reduzieren. Allerdings sind natürlich schwierige Details wie z. B. beim Brandschutz, Feuchteschutz und Schallschutz zu losen. Mit unserem neuen Gebäude soll demonstriert werden, dass das umweltfreundliche Baumaterial „Holz“ selbst im mehrgeschossigen Bau überzeugend und rationell eingesetzt werden kann.
»Die Innenraumgestaltung wurde konsequent aus Gründen der Nachhaltigkeit in Holz ausgeführt. Denn die Verwendung des Materials soll sichtbar und erlebbar sein. Das Ergebnis ist ein interessantes und gelungenes Pilotprojekt in Holzbauweise. Wie immer in solchen Fällen gibt es noch einiges zu verbessern. Diese Erkenntnis soll uns jedoch ermutigen, diese umweltfreundliche Bauweise weiterzuentwickeln und zu verbessern.«
Hans-Otto Kraus
Die Siedlung der GWG München in Sendling- Westpark stammt aus einer Zeit dringlicher Wohnraumschaffung in den 50er-Jahren des letzten Jahrhunderts. Den Bestand bilden klassische Massivbauten mit drei Geschossen. Die innen liegenden Treppen erschließen jeweils zwei Wohnungen pro Geschoss. Zur Beheizung dienten Einzelöfen. Die Häuser sind voll unterkellert und teils mit Altziegeln aus dem Kriegsschutt gemauert und verputzt. Auf den Mauern liegen dünne, hellhörige Betondecken. Die Gebäude befinden sich nach über fünfzig Jahren noch weitgehend im Originalzustand, der Wärmebedarf ist etwa dreimal so hoch wie die angestrebten Neubauwerte.
Ein Großteil des gesamten Wohnbaubestandes in Deutschland ist funktional überholt, im Betrieb aufwendig, energetisch unzulänglich und entspricht nicht mehr den heutigen Wohnbedürfnissen. Die wichtigste Bauaufgabe der Zukunft liegt somit in der Bestandserneuerung bzw. ihrer Sanierung. Diese ist aber kaum finanzierbar, wenn nicht bestehende Wohnanlagen nachverdichtet werden können und damit erst das finanzielle Potenzial gegeben ist, um aufwendige Sanierungsmaßnahmen umsetzen zu können.
Wünschenswert ist dies darüber hinaus, weil dadurch das Ausufern der Stadt ins Umland abgebremst und die notwendige urbane Dichte der Wohnquartiere mit all den daraus resultierenden Vorteilen geschaffen werden kann.
Folgende Ziele wurden für das Sanierungsvorhaben an der Badgasteiner Straße festgelegt:
- weitest gehender Erhalt bestehender Primarstrukturen (graue Energie/Abfallvermeidung)
- Vergrößerung der vermietbaren Wohnflache um 50 Prozent
- Schaffung eines marktgerechten Wohnungsmix mit attraktiven Zuschnitten
- Senkung des Energiebedarfs unter 50 Prozent des Neubaubestandes
- Barrierefreiheit aller Wohnungen
- Restenergiebedarf weitgehend CO2-neutral
- einfache, sichere Technik bei hoher Behaglichkeit
- möglichst umfassende Verwendung nachwachsender Rohstoffe
- Integration haustechnischer und solaraktiver Komponenten
Alle vorangegangenen Ziele sollen über diverse Förderprogramme kostenneutral erreicht werden.
Die unvermeidlichen Mehrkosten für die Prototypen mit dem „Prädikat Nachhaltigkeit“ sollen über diverse einschlägige Zuschüsse minimiert werden.
Nach eingehender Analyse der unterschiedlichen Bestandsbauten kristallisierte sich die Notwendigkeit differenzierter Vorgehensweisen heraus. So wurden im ersten Bauabschnitt die zwei östlich gelegenen Gebäude entkernt, grundsaniert, teilweise aufgestockt und um einen neuen, dazu quer stehenden Neubau erweitert.
Der Sagezahnbau wird im zweiten Bauabschnitt komplett abgerissen und durch einen neuen Holzbau ersetzt. Nach Abschluss der Neu- und Ergänzungsbaumaßnahmen werden die Außenräume durch die neuen räumlichen Abschlüsse klarer formuliert – es entstehen besser strukturierte, ansprechend wohnliche Hofe.
Auf Grund der großen Gebäudeabstände war die Aufstockung ohne Beeinträchtigung der räumlichen Qualität möglich, ebenso ist nach wie vor eine gute Besonnung garantiert.
Diese umfangreichen Maßnahmen bedeuten eine grundlegende Veränderung des architektonischen Erscheinungsbildes der gesamten Anlage. Auf Grund der hohen energetischen Anforderungen wurde der Bestand mit einer neuartigen Dämmung eingekleidet. Vorgefertigte Holzfassadenelemente samt Dämmschicht wurden an den bestehenden gemauerten Baukörper montiert. Diese dämmende Hülle wie auch die kompletten Außenwände der Aufstockung wurden in einer vorgefertigten Systembauweise ausgeführt. Die Fassade aus senkrechten, sagerauen, lasierten Brettern erzeugt ein charakteristisches, warmes Fassadenbild. Farblich kräftige Balkon- und Laubengangbrüstungen mit glatter Metalloberfläche stehen im Kontrast zur zurückhaltenden Fassade.










