Das Haus liegt inmitten einer typischen Rheintalgemeinde. Die Umgebung ist von kleineren Wohnbauten, der Dorfkirche und noch unbebauten Wiesen geprägt. Ein Nussbaum markiert den Übergang zum Grundstück des Elternhauses. Dort lebt der Vater des Bauherren, welcher als „örtlicher Bauaufseher“ immer mehr in das Projekt hineingewachsen ist.
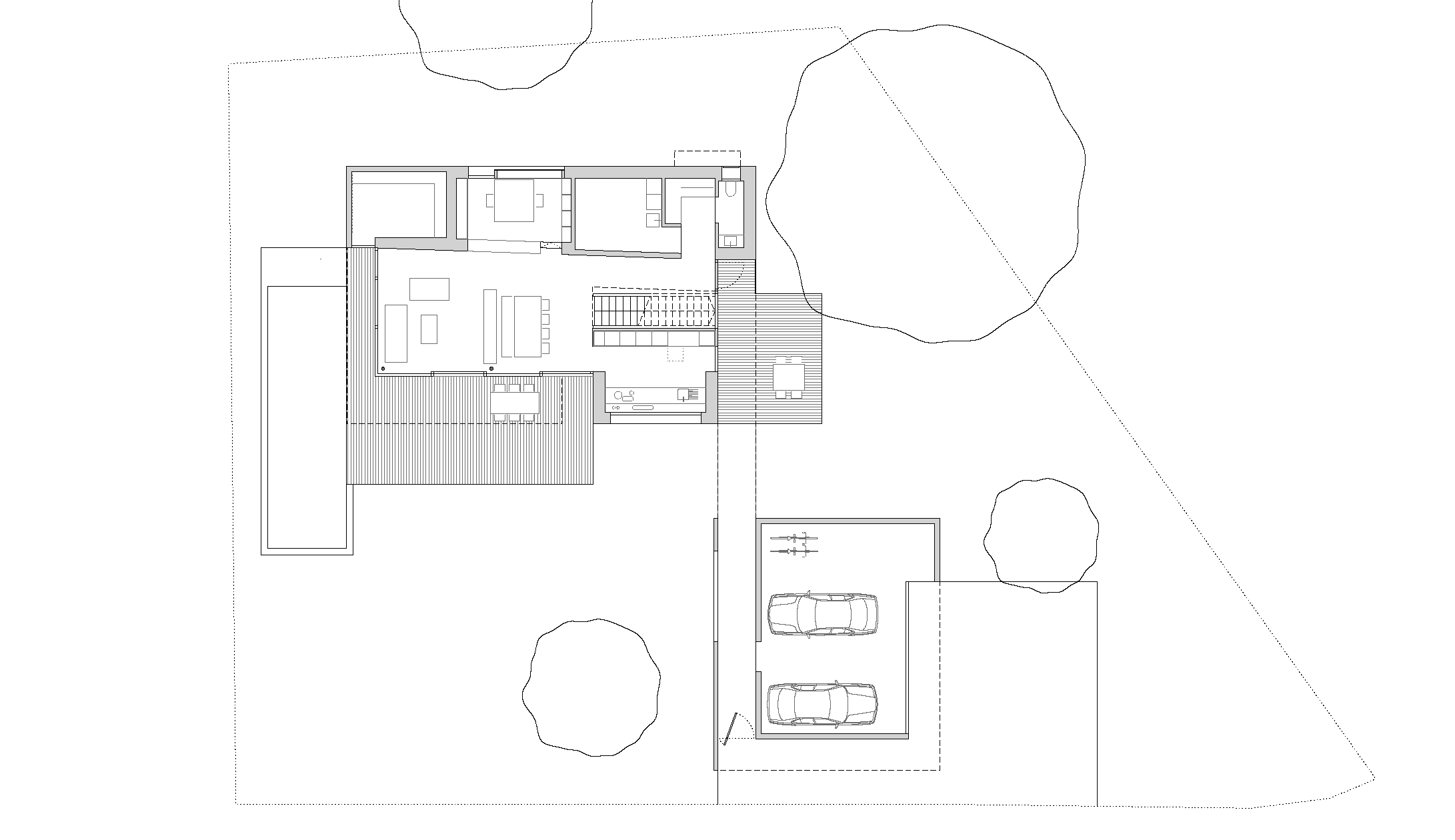
Im Sinne einer guten Nachbarschaft sollte ein geschützter Außenraum zwischen beiden Häusern geschaffen werden. Dafür wurde die Garage direkt an die Straße gerückt, wodurch auch der westliche Wohngarten räumlich gefasst wurde. Von der Garage aus erfolgt auch der Zugang zum Haus. Über eine Pendeltüre und einen halboffenen Durchgang gelangt man über die „Frühstück-Veranda“ zur Haustüre.
»Ein Haus, das Grenzen zwischen Innen und Außen verschwimmen lässt, dabei aber immer klare Linien findet und sich auf Weißtanne, Eiche, Glas und Kupfer verlässt. Ein Haus mitten im Dorf, das dennoch Weitblick verspricht: unerwartete Ausblicke eröffnen sich auf die Berge, die Basilika und das vielfältige Spiel der Jahreszeiten. Ein Haus, das Hand in Hand mit dem Architekten und den Handwerkern gebaut wurde, und am Schluss das unbezahlbare Gefühl, das es nicht irgendein Haus ist. Es ist unser Haus.«
Bauherr R.
Außen von einem Schindelkleid umgeben, setzt sich die Oberfläche aus naturbelassenem Tannenholz auch im Innenraum fort. Trotz der nach allen Seiten großzügigen Verglasungen, schafft das Holz beim Betreten die gewünschte heimelige Atmosphäre. Programm war offenes Wohnen mit vielfältigen Bezügen zum sehr schönen Außenraum also die Inszenierung der unterschiedlichen Qualitäten des Feiraumes. Ebenfalls Die Bauherren wollten die Allgemeinbereiche möglichst offen, mit klarer Trennung zu den Individualräumen. Im Planungsgespräch wird dann die zentrale Küche zum „Cockpit“ und die erhöhte Arbeitsfläche während der Bauzeit zum „DJ-Pult“.
Weiterlesen
Ist es im Erdgeschoss Offenheit, so sollten im Obergeschoss natürliches Licht und gezielte Ausblicke auf Nussbaum und Bergbasilika eine angenehme Stimmung vermitteln.
Die atmosphärische Qualität der Laube zwischen Badezimmer und Schlafzimmer veranlasste die Bauherren den dort vorgesehene Whirlpool zugunsten eines zusätzlichen Sitzplatzes wegzulassen. Waren zu Beginn noch drei gleichwertige Kinderzimmer gewünscht, entwickelten sich in den ausführlichen Planungsgesprächen ganz individuelle Raumkonfigurationen, so ein „Nussbaum-, Erker- und Balkonzimmer“.
Ergebnis des offener Planungsprozess ist ein Haus mitten im Ort, das generationenübergreifendes Zusammenleben ermöglicht, gut nutzbare Außenräume bietet und den Aspekt der Nachhaltigkeit durch eine ökologische Materialwahl, Niedrigenergiehausstandard und Energiegewinnung über Erdsonden mit Wärmepumpe berücksichtigt.

















