Räumliche Fülle in schlichter Hülle.
Das Haus für eine Bewegungstherapeutin und einen Musikpädagogen sollte ganz nach den individuellen Bedürfnissen seiner Bewohner gestaltet werden. Doch im neu erschlossenen Baugebiet war bereits eine große Zahl von Planungsparametern durch eng gefasste gesetzliche Bestimmungen festgelegt. So bestand eine Herausforderung des Projektes darin, innerhalb dieses strikt vorgegebenen Rahmens ein hohes Maß an Eigenständigkeit und Kreativität zu entfalten.
»Viele bauen nur einmal im Leben. Daher ist es für uns selbstverständlich, sich auf das einzulassen, was der Bauherr will – er sammelt über Jahre seine Wünsche, wir schauen und filtern heraus, was umsetzbar ist.«
Andreas Ströhle MSc
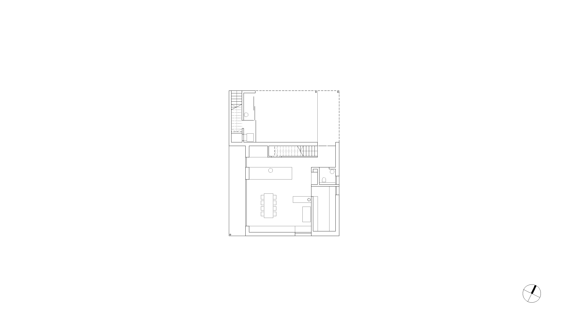
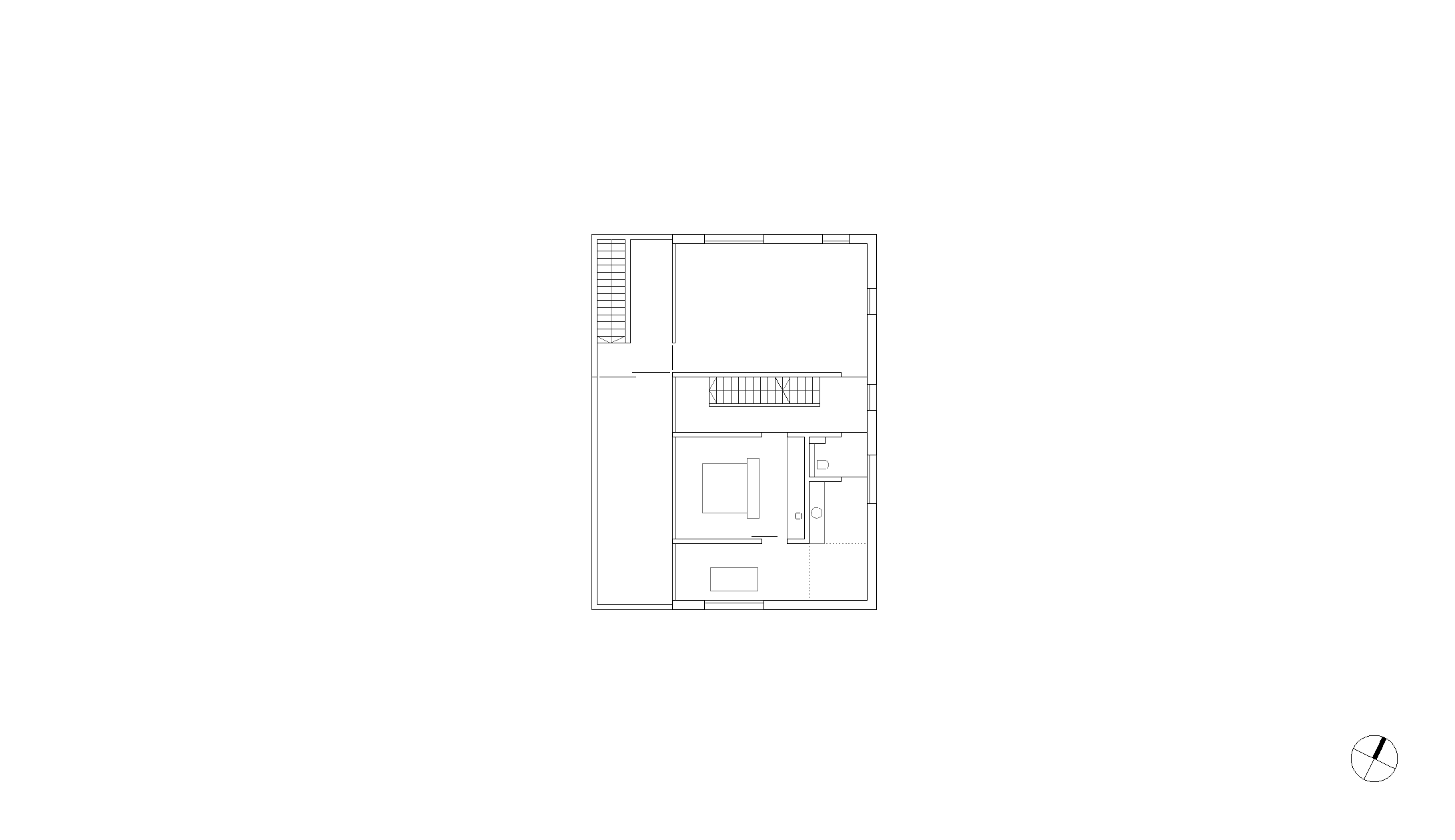
Der Baugrund liegt am westlichen Rand einer Siedlung und ist von weitläufigen Wiesen und dicht bewachsenen Hainen und Obstgärten gesäumt. Der zurückhaltende Holzbau orientiert sich zur großzügigen Landschaft, seine präzise gesetzten und formulierten Öffnungen gewähren bedacht inszenierte Ausblicke in den Grünraum. Während das Erdgeschoss mit Koch- und Essbereich als kompakt organisierter Ort der Begegnung gedacht wurde, bietet das Obergeschoss Rückzug und Intimität in offen zugeordneten Räumen zum Schlafen, Lesen und Baden. Die gut proportionierten Atelierbereiche im Dachgeschoss sowie ein frei bespielbares Extra-Zimmer schaffen eine angeregte und doch konzentrierte Arbeitsatmosphäre.
Der eigentliche Reichtum des Gebäudes ist für den Betrachter der schlichten Hülle jedoch nur zu erahnen, denn die thermisch isolierte Kernstruktur wird durch ein variables Raumgefüge aus geschlossenen und offenen Volumina ergänzt. Diese bieten je nach Jahreszeit unterschiedliche Möglichkeiten der Nutzung, im Sommer erweitert sich das Haus nach außen. So verwandelt sich die zweistöckige, mit Glasziegeln gedeckte Loggia in eine kühle Schlafoase, der Vorraum zur Außentreppe dient als Freiluft-Atelier und die Terrasse wird zum gedeckten Sitzplatz mit Blick in den Gemüse- und Blumengarten.






















