Qualitätvolles Wohnen mit reduziertem Budget.
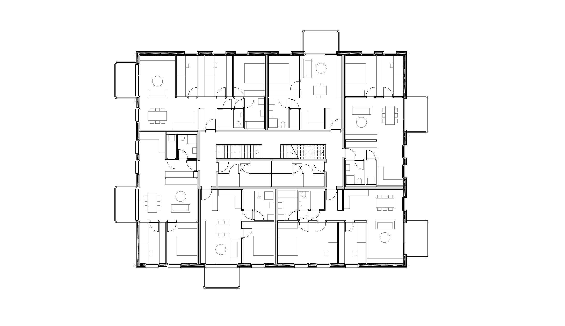
Das Sonderwohnbauprogramm des Landes Vorarlberg sieht vor, gemeinnützige Projekte zu entwickeln, die durch intelligente Planung, scharfe Kostenkalkulationen und kurze Bauphasen zu aussergewöhnlich günstigen Konditionen vermietet werden können. Die Pilotplanung des Vorhabens bietet 17 Wohnungen zwischen 50 und 90 Quadratmeter, welche in einem kompakten Solitär am Fuss des Ardetzenbergs gefasst wurden.
Der Baukörper ist an die nördliche Grundstücksgrenze gesetzt, um gegen Süden Raum für eine einladende Gartenanlage mit Kinderspielplätzen und Gemüsebeeten zu schaffen. Die Wohneinheiten gruppieren sich um einen zentralen Erschliessungstrakt, in welchem auch die Abstellflächen angelegt sind. Jedes Apartment verfügt über ein bis drei Schlafzimmer und einen grosszügig konzipierten, offenen Wohn-Ess-Kochbereich mit direkter Verbindung zu einem privaten Aussenraum.
Auf Unterkellerung, Tiefgarage und Lift wurde aus Kostengründen verzichtet, da nicht an der Qualität von Konstruktion oder Ausstattung gespart werden sollte. Das Niedrigenergiehaus ist in Hybridbauweise errichtet, um den massiven Kern legt sich eine Aussenhülle aus wärmegedämmten Multibox-Elementen, die mit Brettern verschalt wurden. Massive Diagonaldübeldecken bilden die horizontalen Raumabschlüsse und zeigen eine ansprechende Untersicht aus Fichtenlamellen, als Bodenbelag wurde Eichenparkett verlegt.
Hochwertige Materialien bestimmen auch die Gestaltung der gemeinschaftlichen Bereiche. Die kaskadenförmige Treppe läuft durch einen lichtdurchfluteten Erschliessungsschacht, der von einer fein verputzten Schale umschlossen wird. Die Gangflächen sind mit schallabsorbierendem Teppich belegt, die Wohnungstüren in ansprechenden Farben lackiert.
Durch dieses Projekt konnte deutlich gemacht werden, dass qualitätvolles Wohnen auch mit reduziertem Budget möglich ist, wenn Planer klare Prioritäten setzen, bei welchen Aspekten gespart werden kann, ohne das Wohlbefinden der Bewohner zu beeinträchtigen.








