Aufrechterhaltung der traditionellen Fassade, mit einem ökologischen und hölzernen „Herz“.
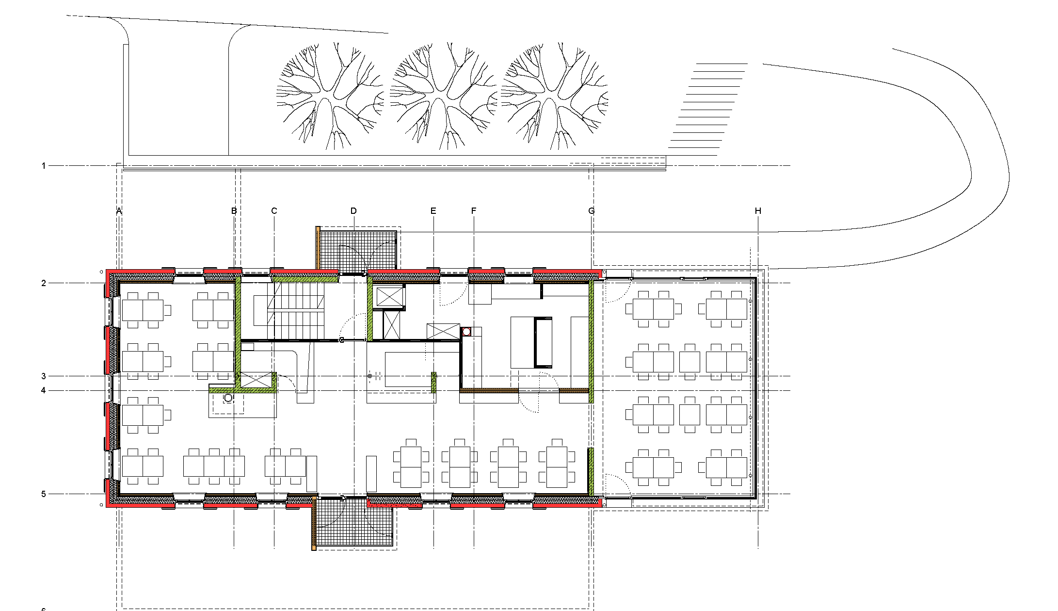
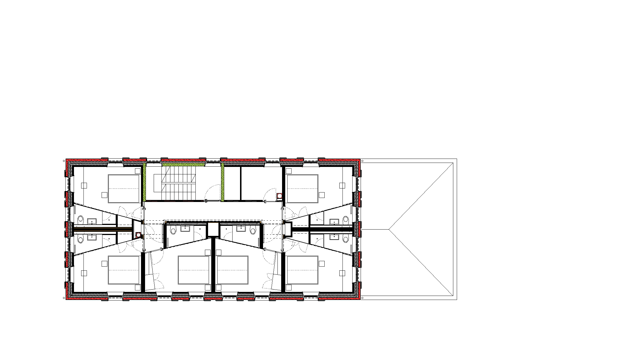
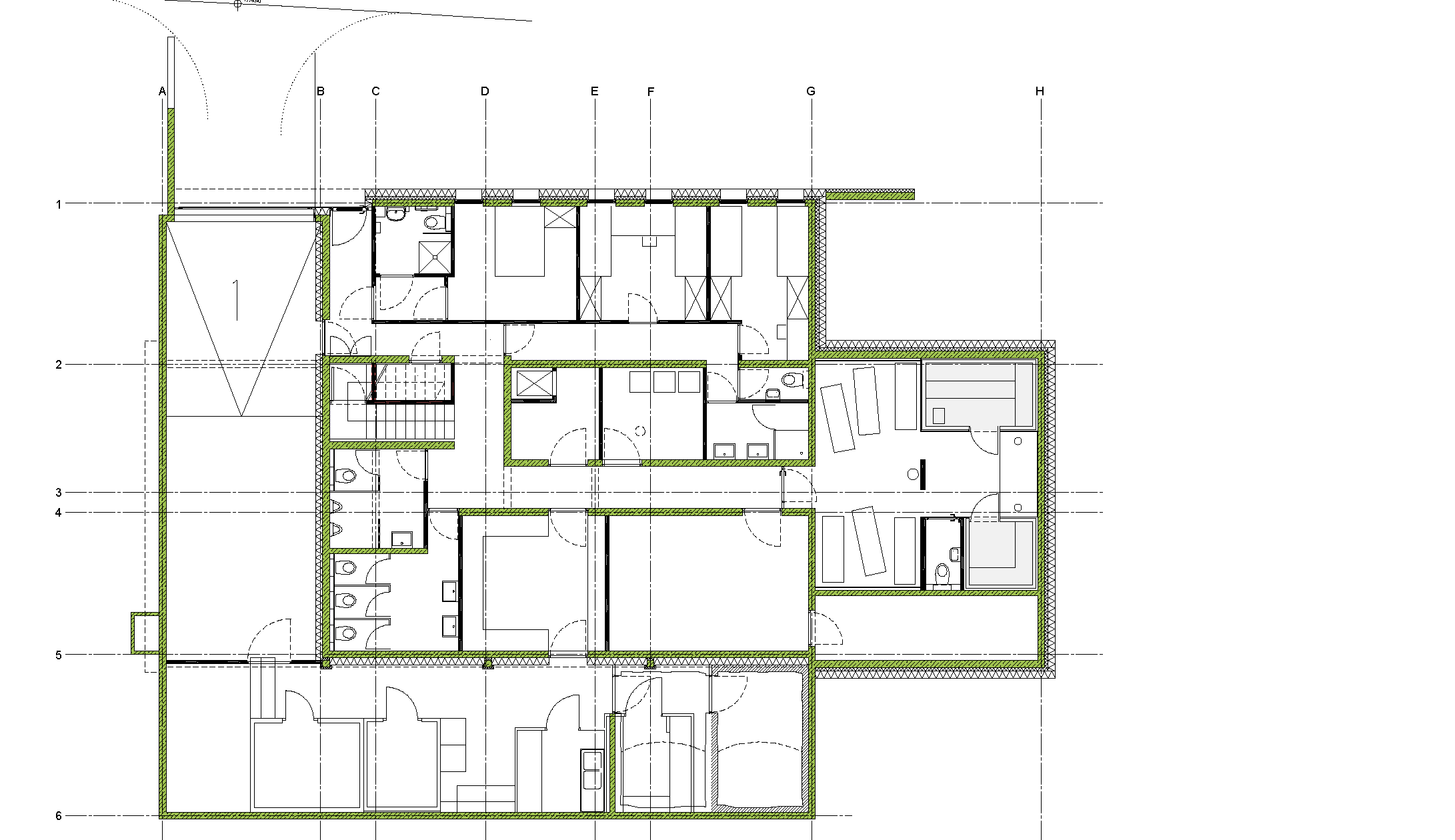
Für einen Architekten der es gewohnt ist, sein kreatives Potenzial für die Entwicklung von neuer, zeitgemäßer Architektur zu verwenden, stellte diese Aufgabe eine ungewöhnliche Herausforderung dar. Eigentlich war eine Rekonstruktion erlaubt, in Größe und Aussehen durfte es kaum Veränderungen geben, dennoch musste ein neues funktionierendes Hotel mit all seinen zeitgemäßen Anforderungen entstehen. Die Hülle also begrenzte den Spielraum, daher galt es, möglichst rationell und sparsam die neue Funktion in das enge Korsett zu bringen. Entstanden ist ein kleines, überschaubares und sehr familiäres und gemütliches Berghotel, das auf einfachste Art ein ganz besonderes Erlebnis bietet.
»Die geforderte Aufgabe, das alte Kleid neu zu füllen, nahmen wir gerne an. Entstanden ist ein modernes, nachhaltiges Gebäude, das sich zurücknimmt und zeitlos und bescheiden den äußeren Einflüssen trotzt. Im Vordergrund steht der Hintergrund: die einmalige Kulisse.«
DI Juliane Wiljotti
Während also nach außen das „alte Bild“ bewahrt wurde, wurde das Bauwerk nach modernsten Methoden konzipiert, mit besonderem Augenmerk auf umfassende Nachhaltigkeit. So ist der Kern des Hauses aus massivem Fichtenholz gebaut. Diese tragenden bis zu 14 cm starken Holzelemente sind immer sichtbar und bilden somit die warme und wohnliche Hülle in dieser rauen Umgebung. Diese Holzelemente wurden im Werk vorgefertigt und in sehr kurzer Zeit montiert.
Weiterlesen
Das konstruktive hölzerne „Herz“ wurde dann mit einer 28 cm dicken wärmedämmenden Schicht umhüllt, welche wiederum von einer 12 cm starken Ziegelwand geschützt ist. Diese ist verputzt und entspricht somit dem Aussehen des alten Hotels.
Das ökologische, weiche und warme Material Holz bietet somit dem Gast ein natürlich angenehmes Ambiente und wird vom harten und widerstandsfähigen Baustoff Ziegel geschützt. Diese Bauweise spart viel „graue Energie“, also Energie für die Errichtung und Produktion des Bauwerkes, denn Holz ist aus Sonnenenergie entstanden.
Die optimal gedämmte Gebäudehülle garantiert auch, dass für die Beheizung des Hauses sehr wenig Energie notwendig ist. Hier ist ein so genanntes „Passivhaus“ entstanden. Einfach gesagt braucht dieses Gebäude nur noch zwischen 10 und 20 % der Heizenergie verglichen mit herkömmlichen Objekten. Neben der optimalen Wärmedämmung und speziellen Fenstern mit 3-fach Verglasung wird dies durch eine besondere Haustechnik erreicht. Kernstück dabei ist eine Lüftungsanlage, die das Gebäude mit der notwendigen Frischluft versorgt und die Energie aus der Abluft, die normalerweise verloren geht, über Wärmetauscher wieder dem Gebäude zurückgibt. Zusammen mit einer Heizung, die ihre Energie aus dem Erdreich also aus tief in den Fels gebohrten Erdsonden bezieht, ist hier ein energetisches und ökologisches Vorzeigeprojekt entstanden.










