Eine Demonstration der regionalen Baukultur an einem einzigartigen Ort.
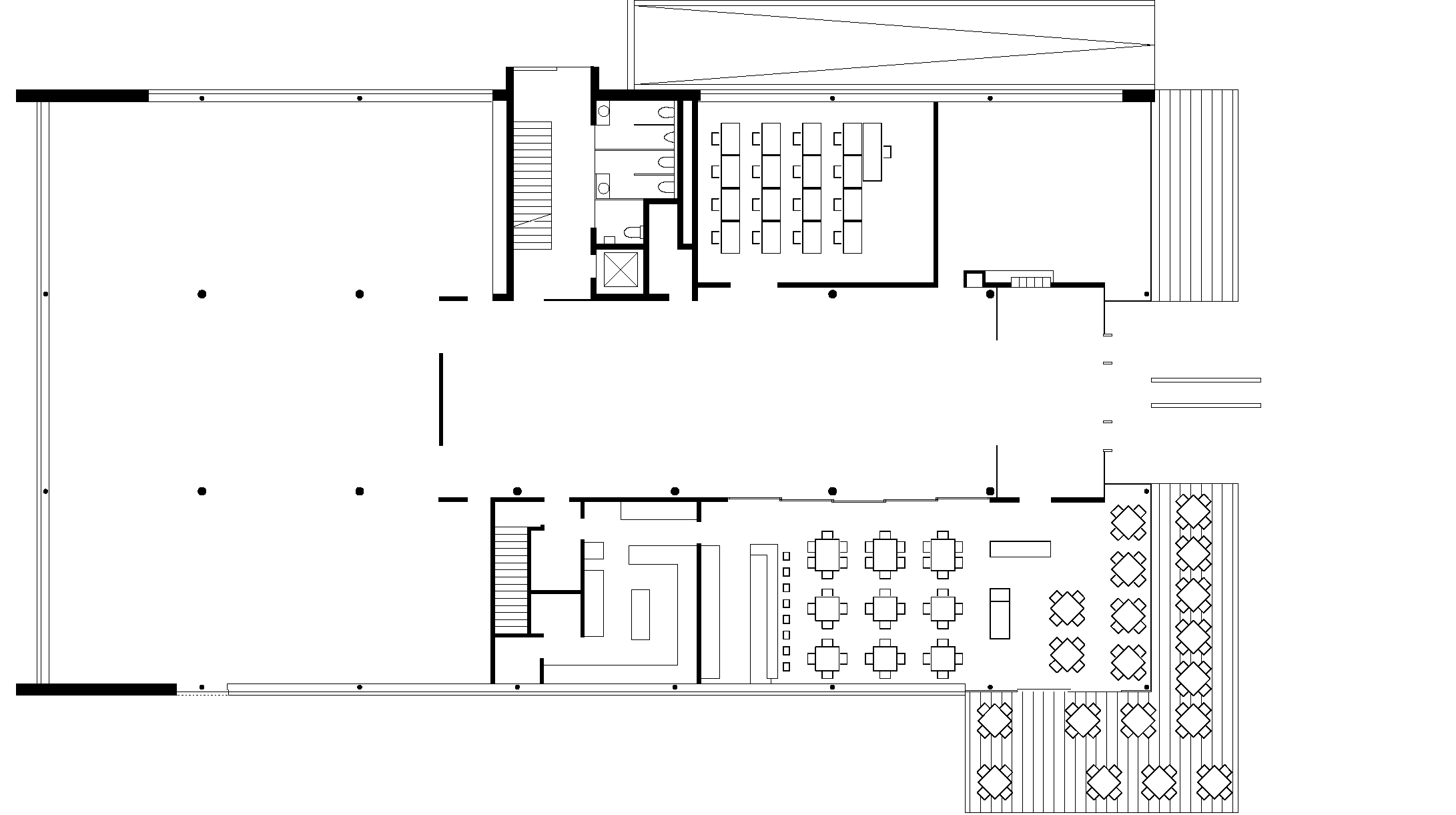
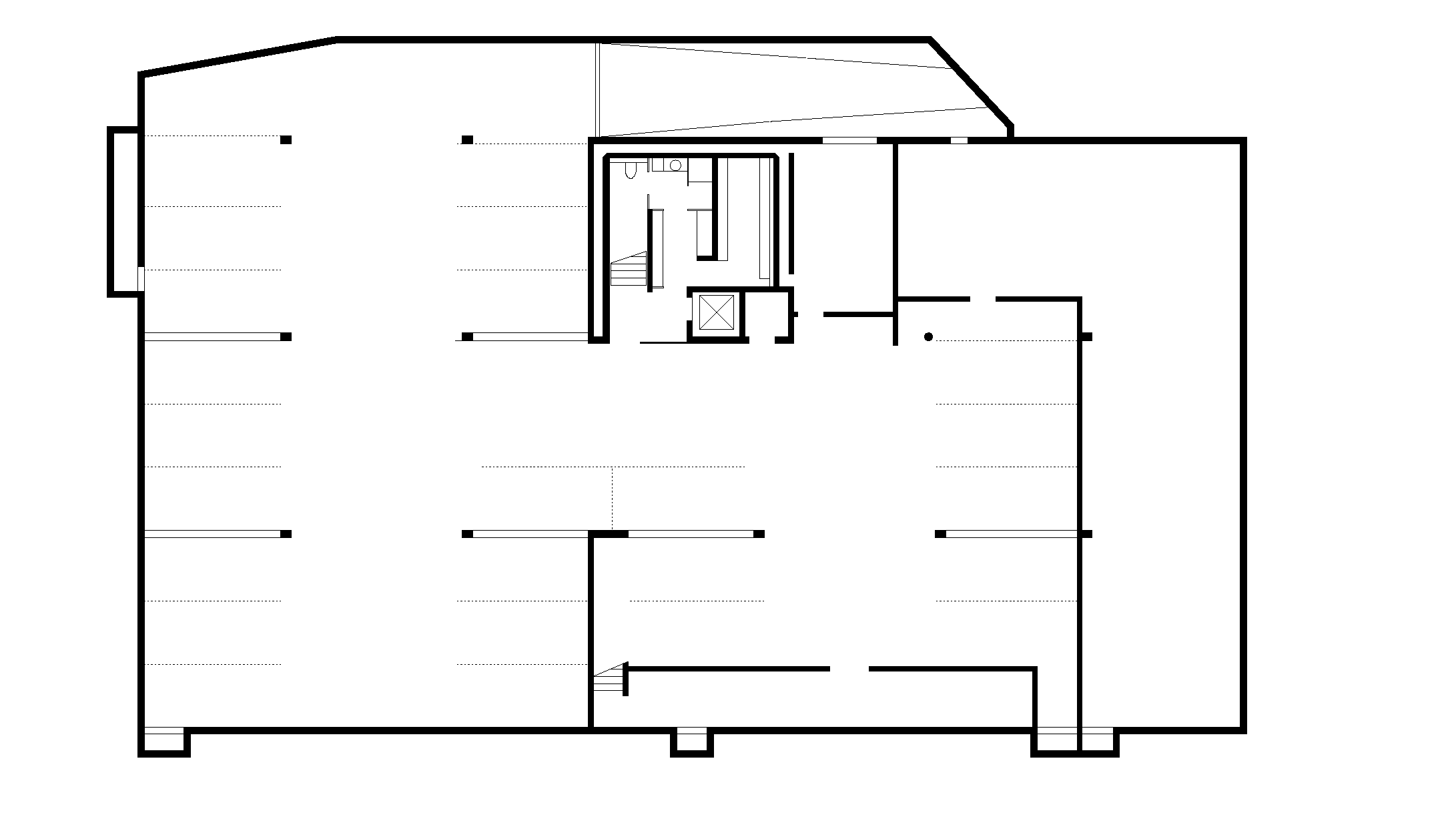
Am Standort des Bahnhofes der aufgelassenen Bregenzerwaldbahn, die vor 100 Jahren neue Impulse in den Ort brachte, wurde ein Dienstleistungszentrum errichtet, welches die Abwanderung von qualifizierten Arbeitsplätzen in der Region bremsen soll.
Ein naturholzverkleideter Bau mit zentraler multifunktionaler Erschließungshalle, flexibler Bürostruktur und engagierten Energiekonzept mit Lüftung und Biomasse-Fernwärmeanschluß versucht sich in die gebaute Umgebung zu integrieren.
Gebäude dieser Art werden in einem sehr strengen wirtschaftlichen Korsett errichtet. Das es dennoch möglich war, ein Projekt zu entwickeln, das architektonischen Grundsätzen ebenso wie den Anforderungen des besonderen Standortes entspricht, ist nicht zuletzt auf die Offenheit des Bauherren zurückzuführen.
Dies gilt insbesondere für die Materialisierung des Gebäudes, welche in unbehandeltem Holz erfolgte und somit eine Reaktion auf die baukulturelle Situation des Bregenzerwaldes darstellt.









