Inatura – Erlebnis Naturschau Dornbirn.
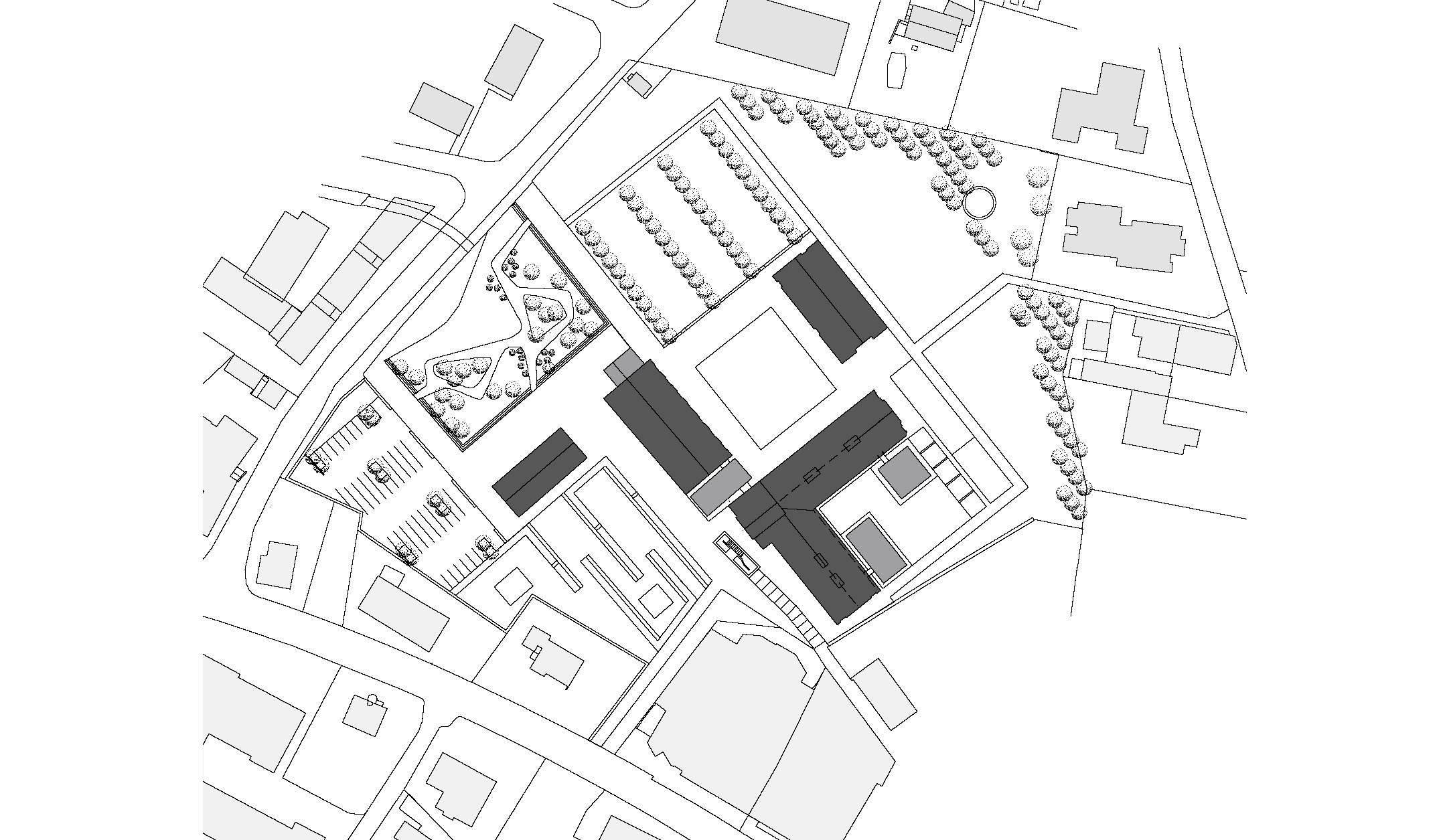
Der Umbau Rüschwerke in Dornbirn umfasste die Rückführung des Gebäudekomplexes auf die ursprüngliche Substanz und dessen sorgsame Adaptierung. Mit Ausnahme der Alten Montagehalle wird das gesamte Areal von der Naturschau Dornbirn genutzt. Im Zuge dieser Neunutzung waren drei Zubauten an die bestehenden Gebäude geplant: Technik, Lagerräume und Büros bei der Dreherei, Vorführsaal zwischen Dreherei und Gießereien, Büros und Ausstellungsflächen bei der Neuen Gießerei.
»Das ist kein Ort für ein glattes, behübschtes Museum.«
Helmut Dietrich
»Was mich so fasziniert: Diese vier Architekten können Gefühle erzeugen!«
Margit Schmid
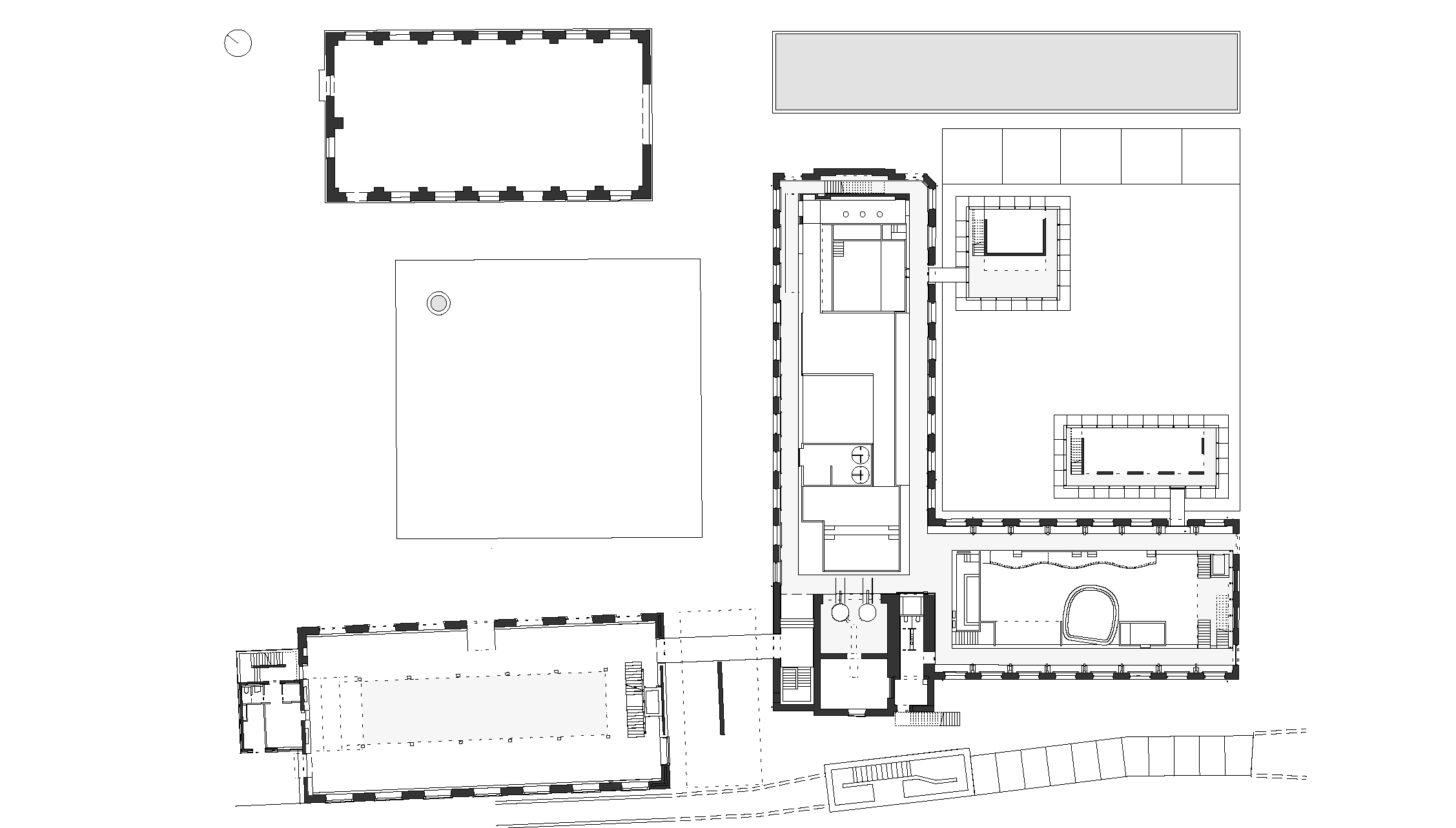
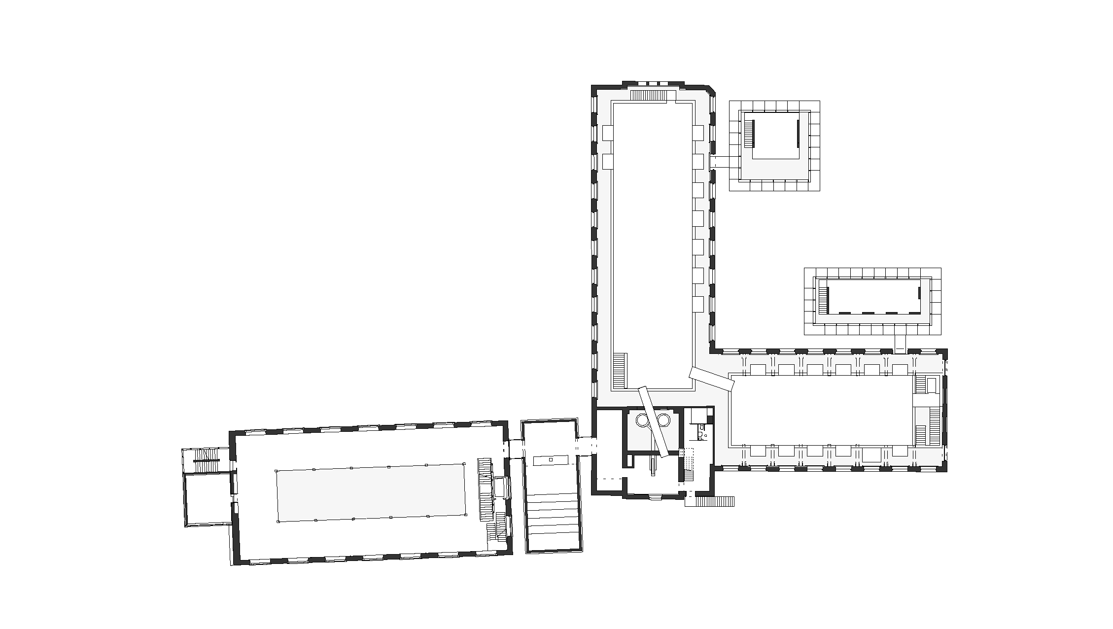
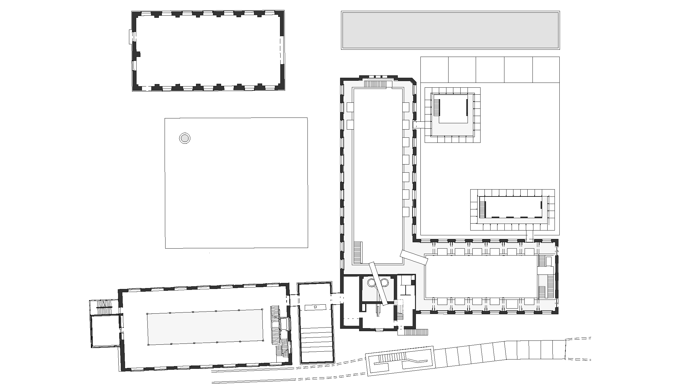
Der Haupteingang ins Museum erfolgt über den nordwestseitig gelegenen Hof über die Jahngasse und befindet sich mittig gelegen in der Dreherei. Im Erdgeschoss liegen in der Eingangshalle Ticketschalter, Wechselausstellung, Cafeteria und Museumsshop, im ersten Obergeschoss ist die Sonderausstellung situiert. Die weiteren Obergeschosse sind dem Publikum nicht zugänglich, dort befinden sich die Bibliothek (nur zu Studienzwecken) und die Verwaltung.
Weiterlesen
Der eigentliche Rundgang im Museum beginnt im dazwischengeschobenen Vorführsaal, der Dreherei und Gießerei verbindet. Über dem konservierten Bereich der Hochöfen betritt der Museumsbesucher die neu errichtete Zwischenebene. Die Wegführung bezieht auch den Neubau mit ein und ermöglicht den Einblick in die Arbeit der Naturwissenschaftler.
Das Erdgeschoss der beiden Gießereien wurde abgesenkt und bleibt aus technischen Gründen auf Distanz zu den Außenmauern, und mittels Rampen wird der Besucher in das Untergeschoss der Dreherei zurückgeführt. Die Anbindung an Fluchttreppen wird über Brücken bewerkstelligt. Die Schmiede umfasst die Werkstätte und die Studiensammlung. Der Dreherei vorgelagert befindet sich die zentrale Hackschnitzelanlage, die auch umliegende städtische Gebäude mit Heizenergie versorgt.




















