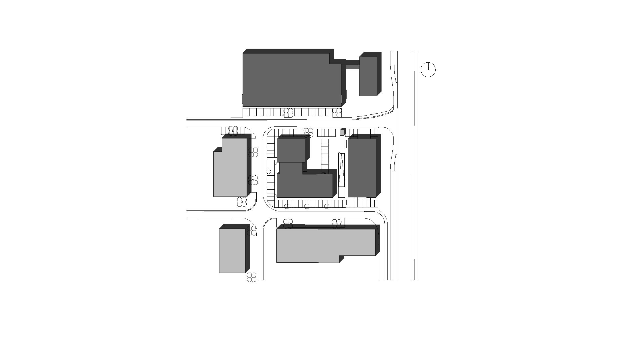
Ein weithin sichtbarer Turm, ein vorgelagerter Platz und gemeinsam nutzbare Einrichtungen – das Impulszentrum Interpark-Focus ist der neue verwaltungstechnische und architektonische Mittelpunkt eines Gewerbegebietes in Feldkirch-Röthis.
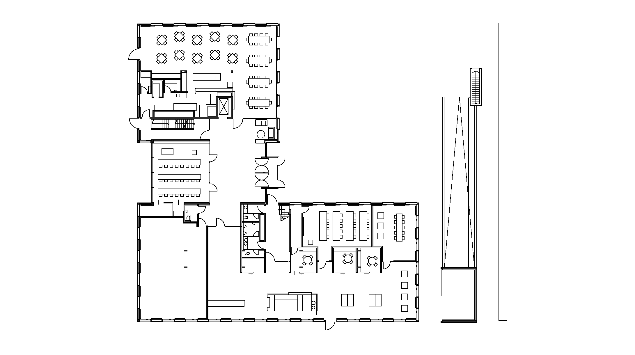
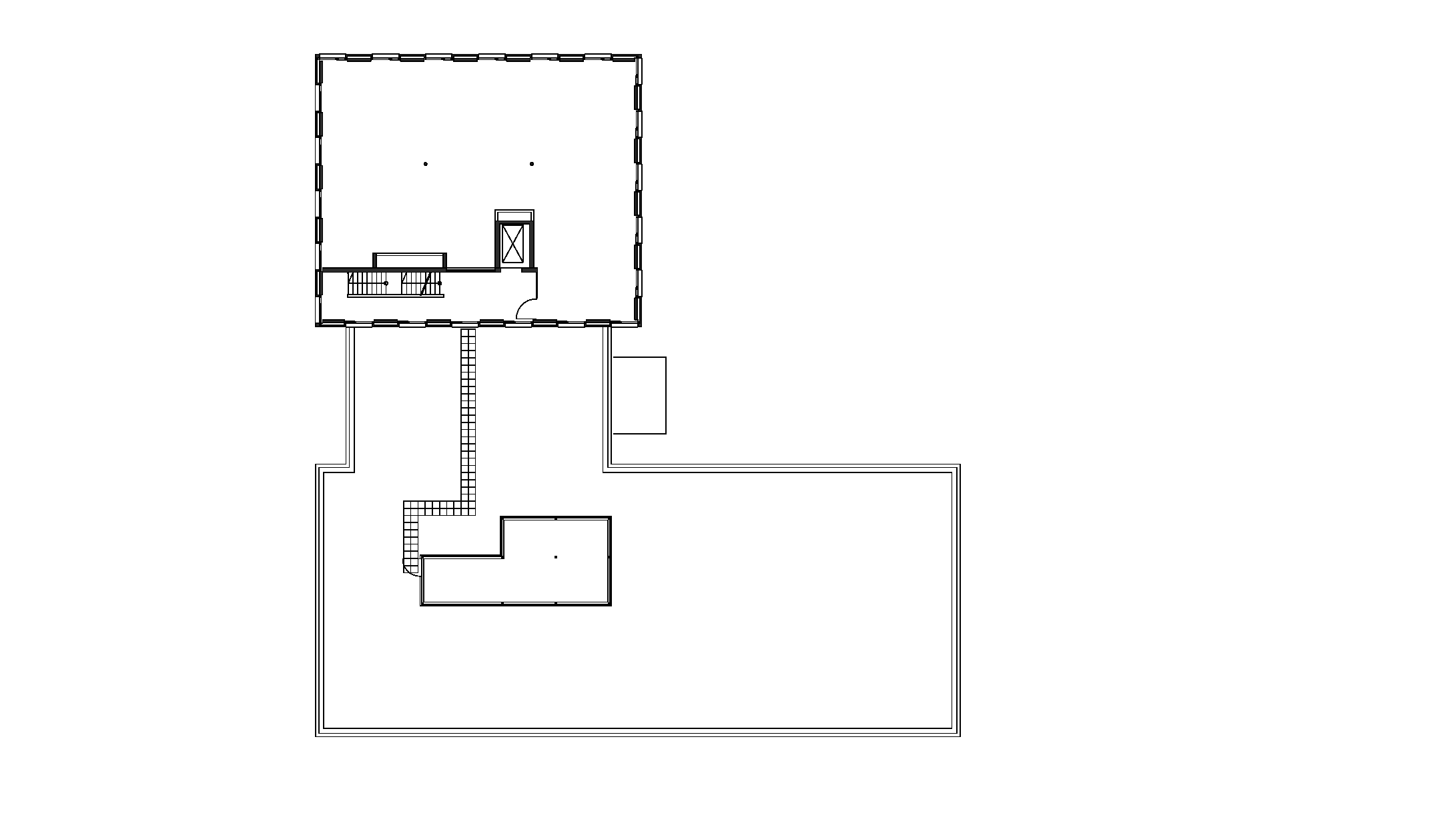
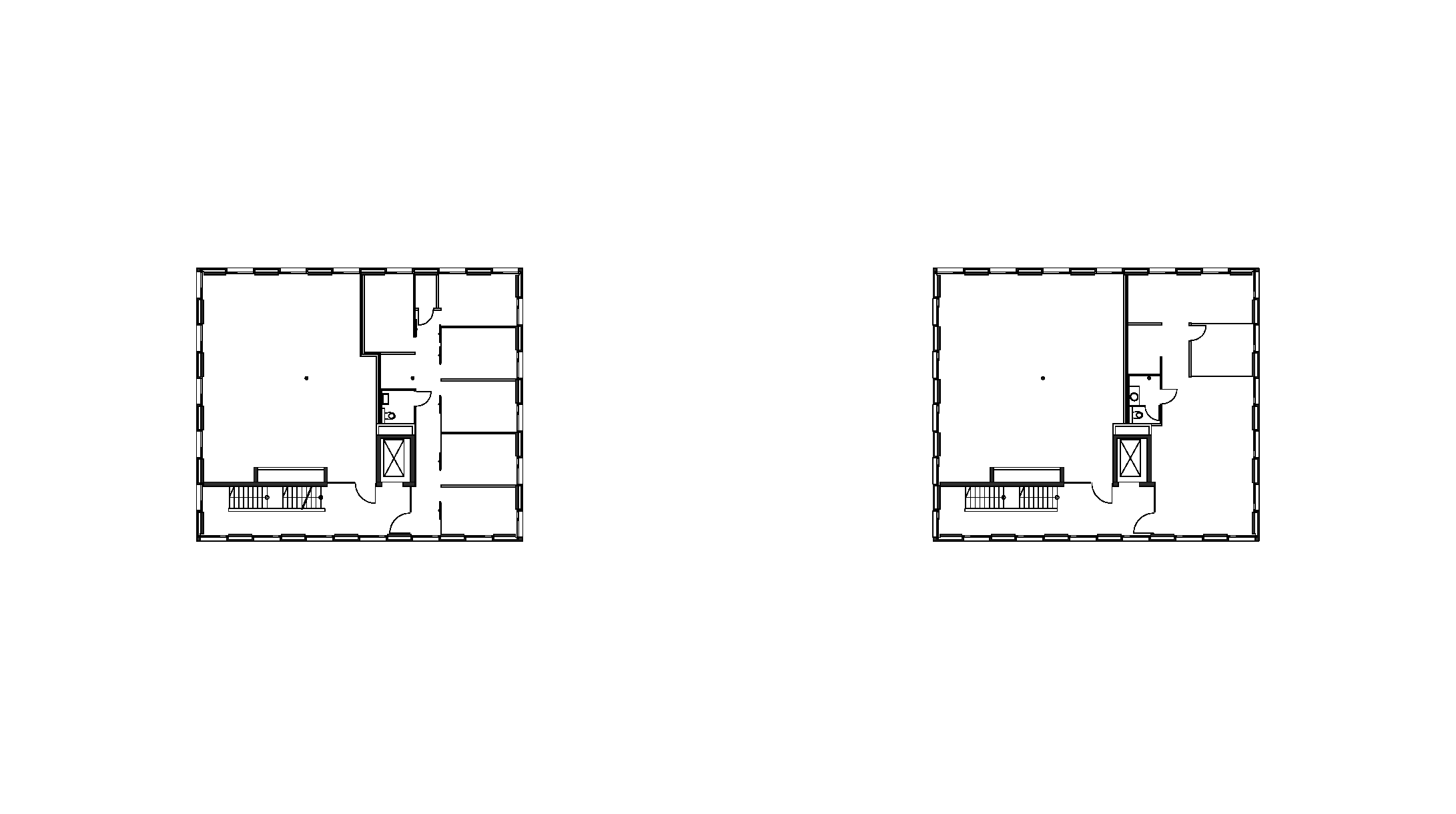
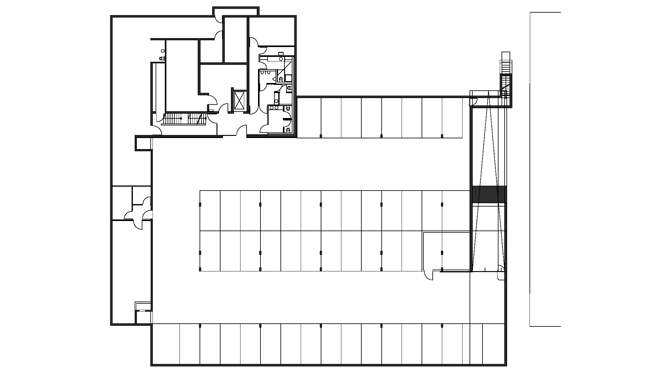
Der „Interpark Focus“ – eine von PRISMA Zentrum für Standort- und Regionalentwicklung GmbH, der Gemeinde Röthis und dem Land Vorarlberg betriebene, strukturierte Ansiedlung von Unternehmen auf einem ca. 120.000 m² großem Areal im Vorarlberger Rheintal – erhielt mit dem am Zufahrtspunkt zum Gewerbepark errichteten „Impulszentrum“ seinen klar definierten Mittelpunkt. Ein sechsgeschossiger Turmbaukörper mit ca. 2.700 m² vermietbarer Bürofläche und ein dreigeschossiger Längstrakt für die Firma calimax sind durch eine Glasspange verbunden, in der sich der Haupteingang befindet. Über ein lichtdurchflutetes Foyer sind die gemeinsam von den hier angesiedelten Unternehmen nutzbaren Seminarräumlichkeiten und ein ebenerdig im Turmbau untergebrachtes Restaurant erschlossen. Die kubischen Baukörper wurden aus dreischaligen Stahlbeton-Fertigteilen realisiert, die mit wenigen Stahlstützen im Inneren die Stahlbetondecken tragen und damit eine freie Grundrisseinteilung und eine hohe Flexibilität in der Nutzung gewährleisten. Indem diese Fertigteile geschossweise zueinander versetzt sind, werden die Fassaden rhythmisch strukturiert und den Baukörpern ein charakteristisches Erscheinungsbild verliehen, das in Dialog zu dem benachbarten, ebenfalls vom Büro Hermann Kaufmann ausgeführten Betriebsgebäude der Firma Jura („Interpark Focus 1“) tritt. Der die umgebende Bebauung überragende Turm ist das weithin sichtbare, identifikationsstiftende Wahrzeichen des Gewerbeparks und gleichzeitig durch die hier situierten Infrastruktureinrichtungen und den vorgelagerten Platz wesentlicher Ort des Treffens und Kommunizierens.










