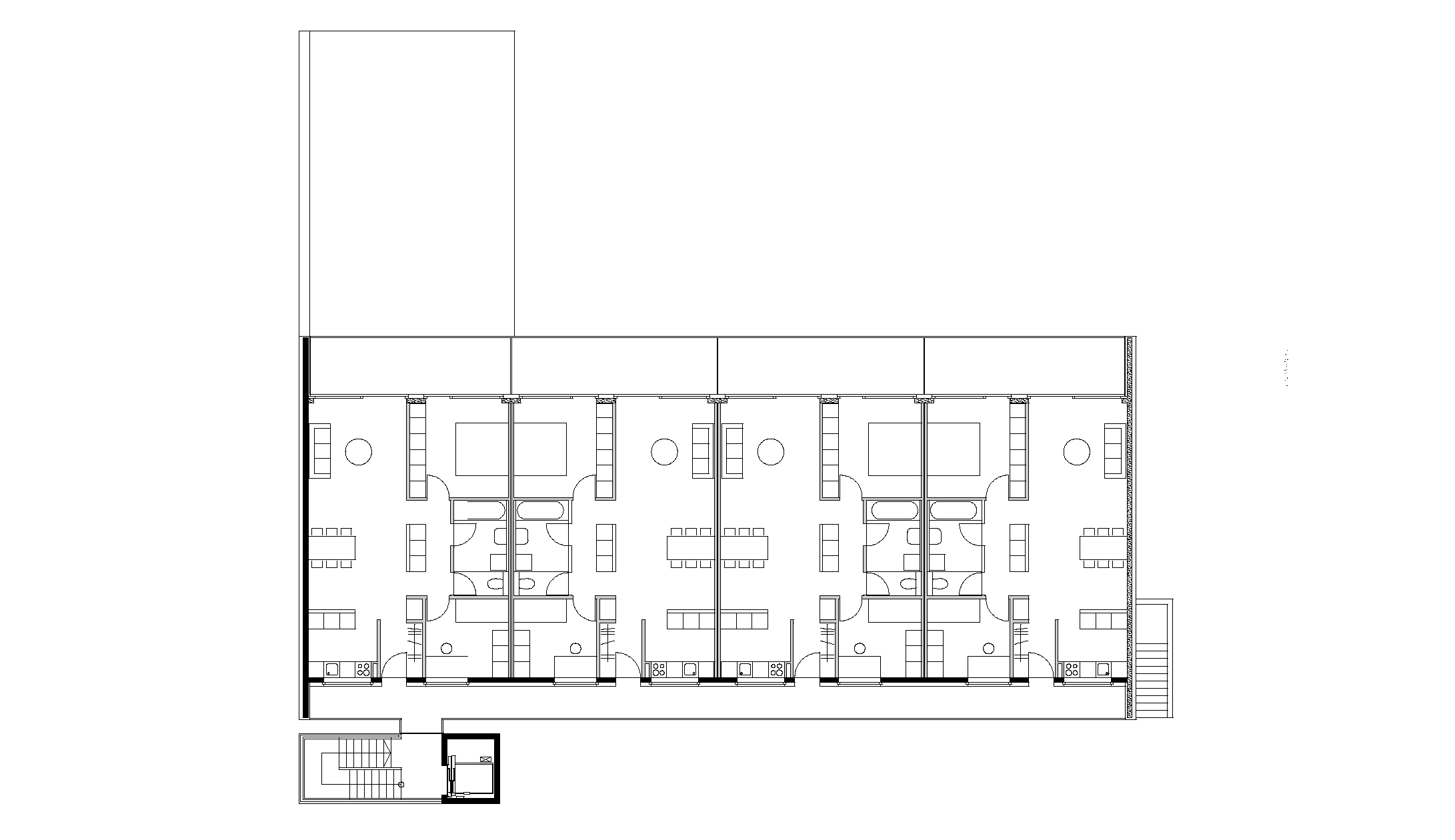
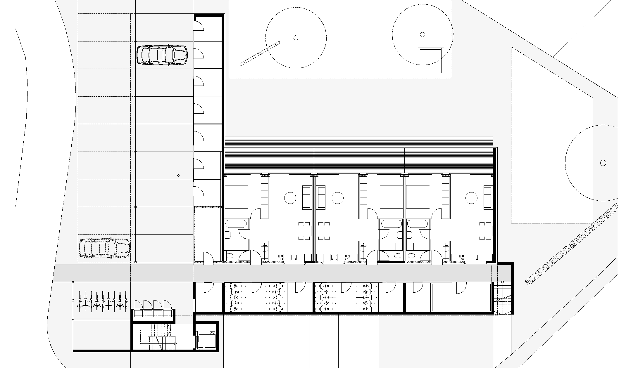
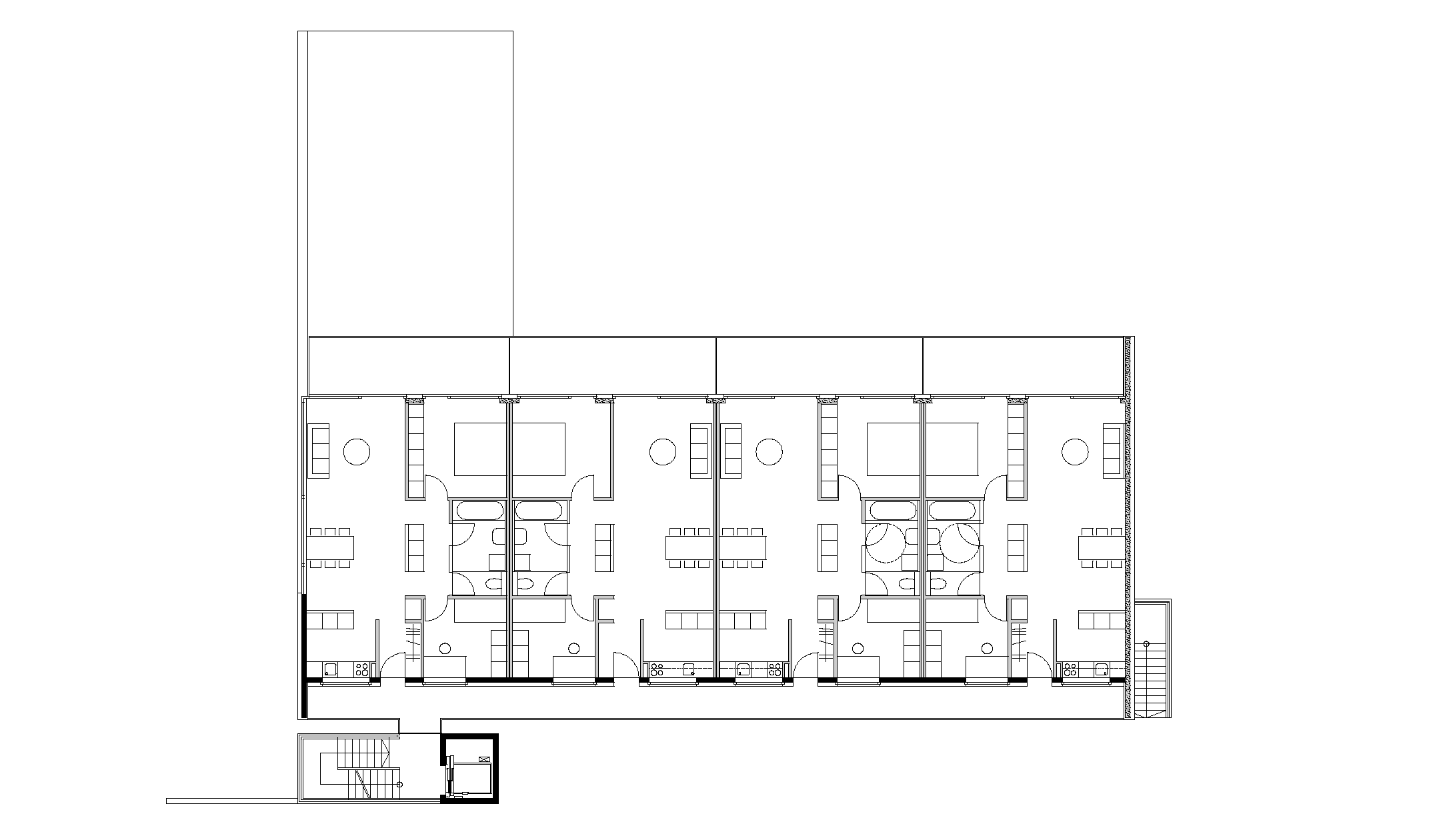
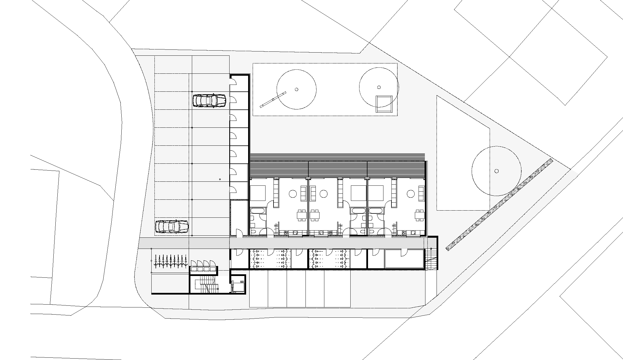
Kesselstraße, Wolfurt

Kesslerstrasse, Wolfurt
Bauherrschaft
Alpenländische Heimstätte, Feldkirch
Standort
Wolfurt
Fertigstellung
2008

Projektdetails

Projektbegleitung
Projektleitung
Mitarbeit
DI Christoph Dünser, DI Sven Meller
Rechte
Foto
HK Architekten
Weitere Projekte