Holzelemente und Betonslelett- im Hybrid zu Offenheit und Energieeffizienz.
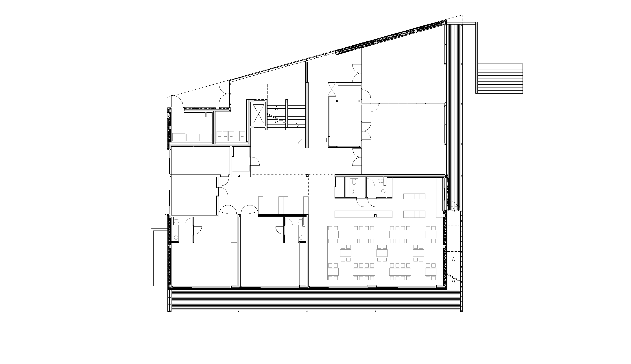
Durch die neue Wohnbebauung wurde ein weiterer Kindergarten für den Ortsteil Rum notwendig. Das Haus der Kinder bildet mit den beiden Wohnbauten einen dreiseitig umschlossenen Hof, einen halböffentlichen Platz, mit Spielbereichen für die Kinder und Wegen zu den Wohnanlagen. Die komplette Unterkellerung bietet Tiefgarage und Nebenräume für alle.
»Die Luftqualität und Lichtqualität verbessert die Lernbereitschaft und die Konzentrationsfähigkeit der Kinder.«
Holzbaupreis Tirol, 2015
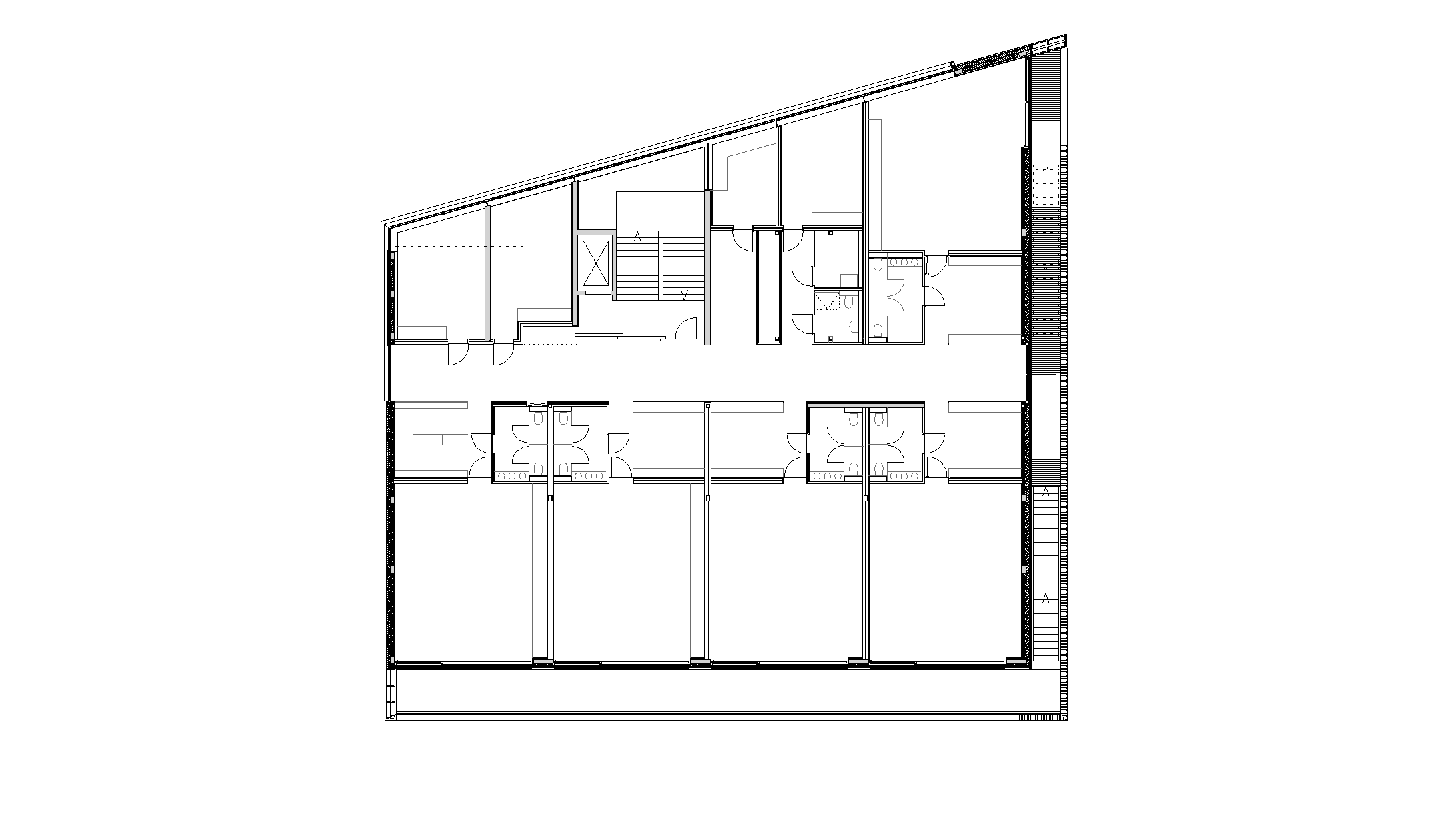
Das Raumangebot umfasst fünf Kindergarten-, zwei Krippengruppenräume, Bewegungsraum, einen großzügigen Essbereich mit Küche – all dies öffnet sich über große Schiebeverglasungen zu Garten oder Terrassen – und Ruheräume. Akzente bei Möbeln und Wandtäfer in den Garderoben setzt Weißtanne, in den ansonsten weiß gestrichenen Räumlichkeiten. Eichenholzlamellen, vom Keller bis ins Obergeschoß, teilen die zweiläufige Haupttreppe, das Shed auf dem Flachdach bringt Nordlicht ins Innere.
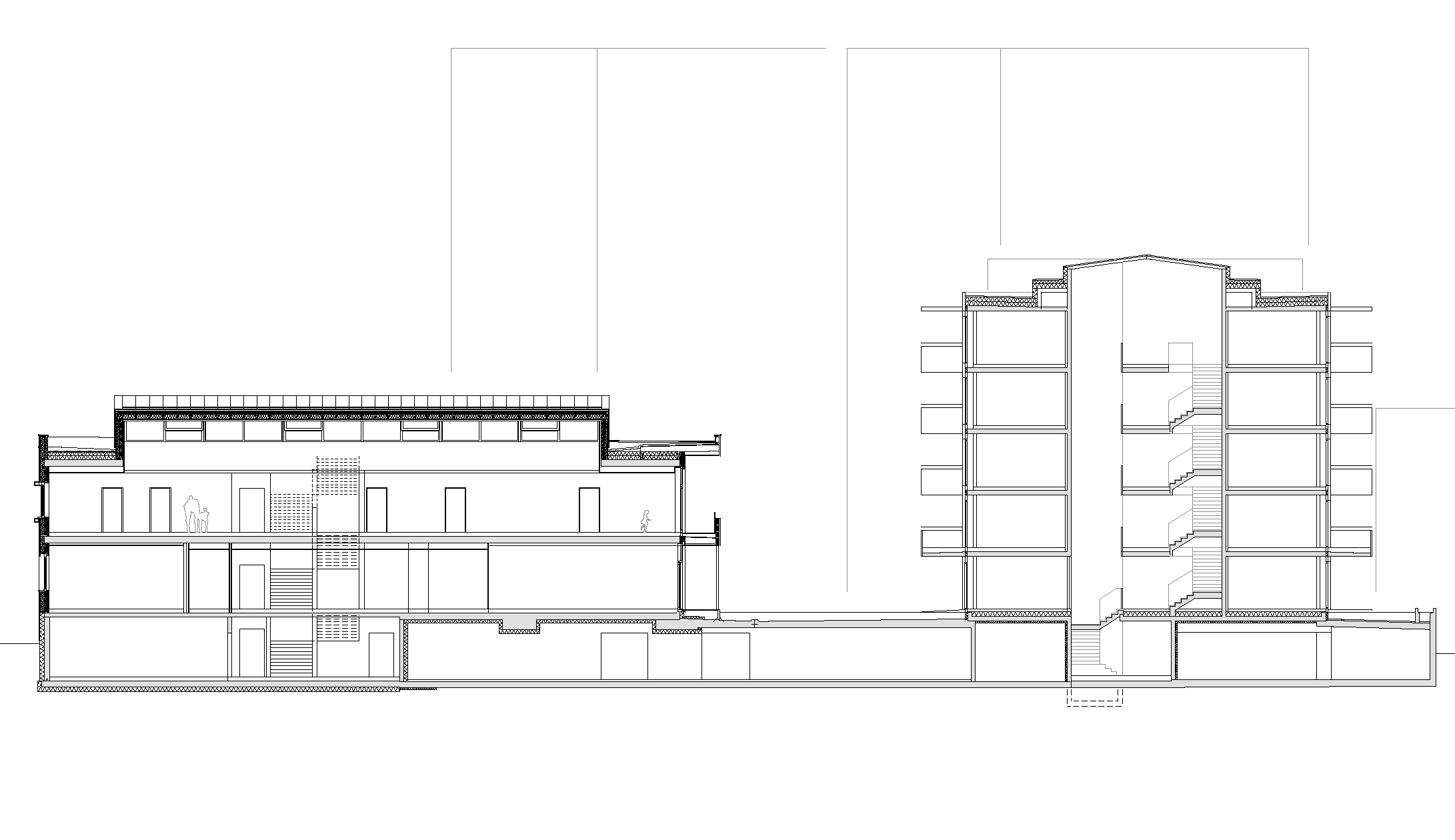
Der zweigeschossige Beton-Holz-Hybridbau mit Holzfertigteilwänden, wird in der äußersten Schicht mit weißen Melaminharzplatten verkleidet, die zurückgesetzten, großzügig verglasten Flächen zu Terrassen und Balkonen, mit Lärchenholz. Eine Freitreppe verläuft unauffällig, jedoch räumlich interessant innerhalb der Gebäudehülle, mit außen weiß gestrichenen Holzlamellen im Obergeschoß. Fröhliches Apfelgrün begrüßt die Eintretenden, die grafischen Bordüren des Aufprallschutzes bei Glasflächen finden sich hier stark vergrößert wieder.
Das Gebäude erreicht Passivhausstandard.










