Pionierbeispiel einer vorgefertigten Tafelbauweise aus unverleimten, mit diagonalen Holzdübeln verbundenen Massivholzprofilen.
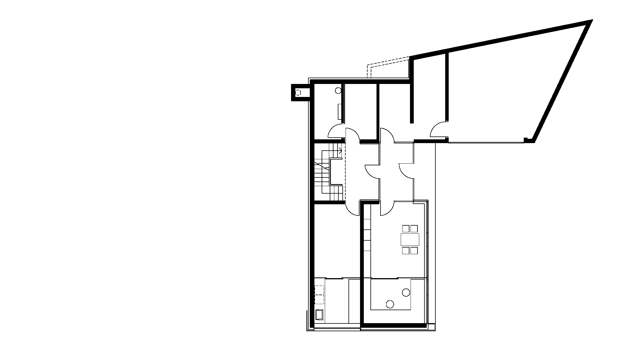
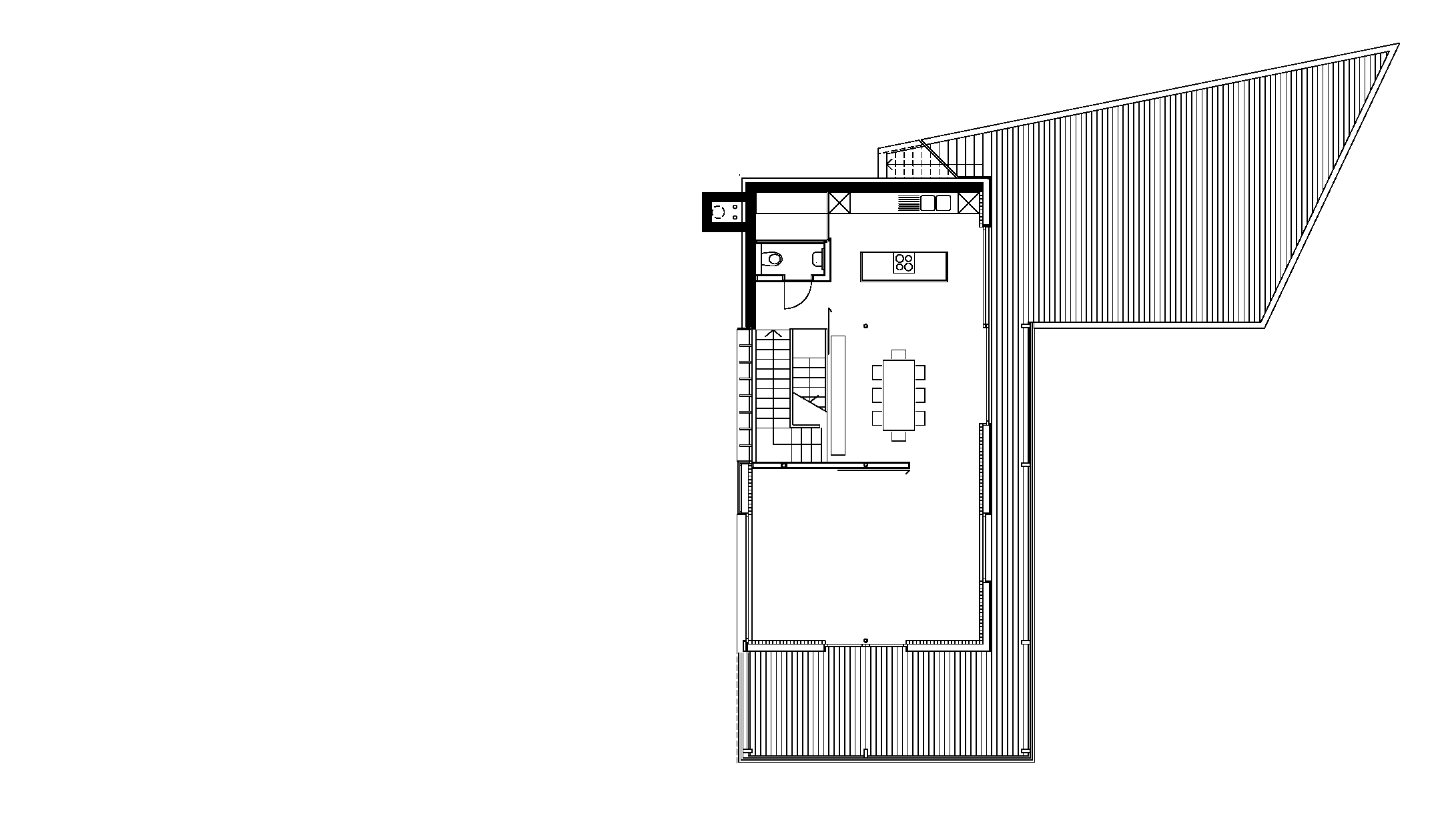
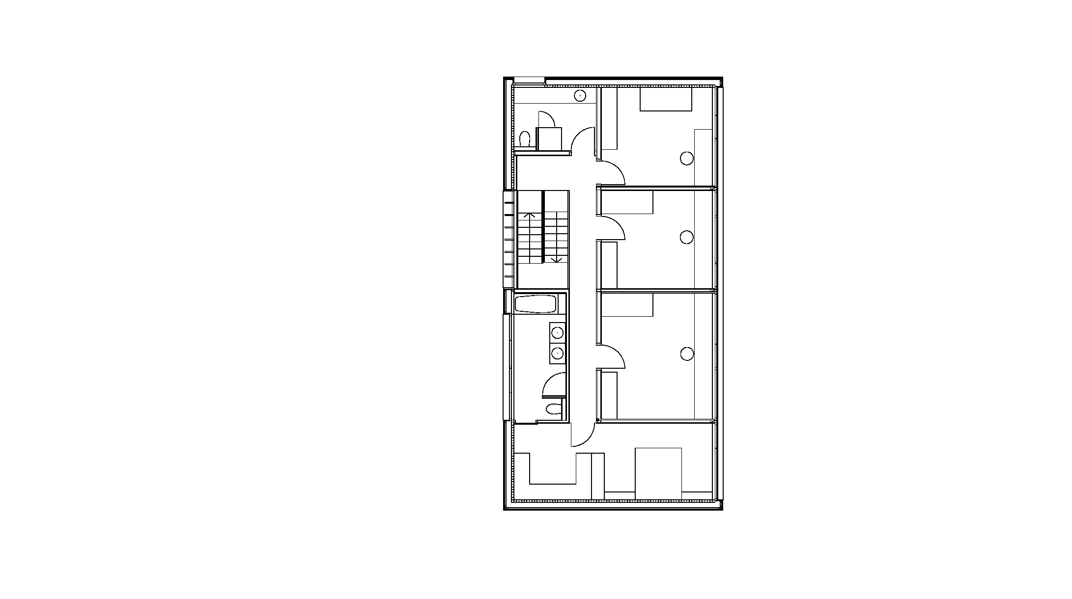
Der Bauherr betreibt im Ort ein Sägewerk, verarbeitet regionale Fichte, Tanne, Lärche zu Fensterholz, Bauholz und Blockhausbohlen, propagiert Massivholzkonstruktionen ohne Verleimungen. Das eigene Familienhaus, sehr ökonomisch in den Hang gesetzt, mit Büro in der Sockeletage, ist ein Prototyp der damals neu entwickelten Massivholzbauweise mit diagonal verdübelten Elementen. Die tafelförmigen Bauteile bestehen aus massiven Kanthölzern (6 mal 10 cm), die senkrecht zu Platten aneinandergereiht sind. Aus ökologischen Gründen sind die profilierten Kant hölzer weder verleimt noch genagelt, sondern mit diagonal versetzten Hartholzstäben verbunden. Die Außenwände, Decken- und Dachtafeln wurden in dieser Art vorgefertigt, die Wände kamen inklusive Dämmung und Außenschalung geschosshoch an die Baustelle. Die Struktur und pure Ma te rialität dieser Technik prägt die Atmosphäre der Innen räume, wobei die Deckenplatten so aufgelegt sind, dass sie den Fugenrhythmus der Wände synchron weiterführen. Die Decke über dem stützenfreien Wohngeschoss ist mit Zugstäben vom Dachtragwerk abgehängt. Mit großen Verglasungen öffnet sich das Haus nach Süden und Westen. Der traditionelle „Schopf“ ist neu definiert, auf die Giebelseite gelegt und durch Schiebefenster geschützt.













