Plastischer Kubus mit Blick und Sonne.
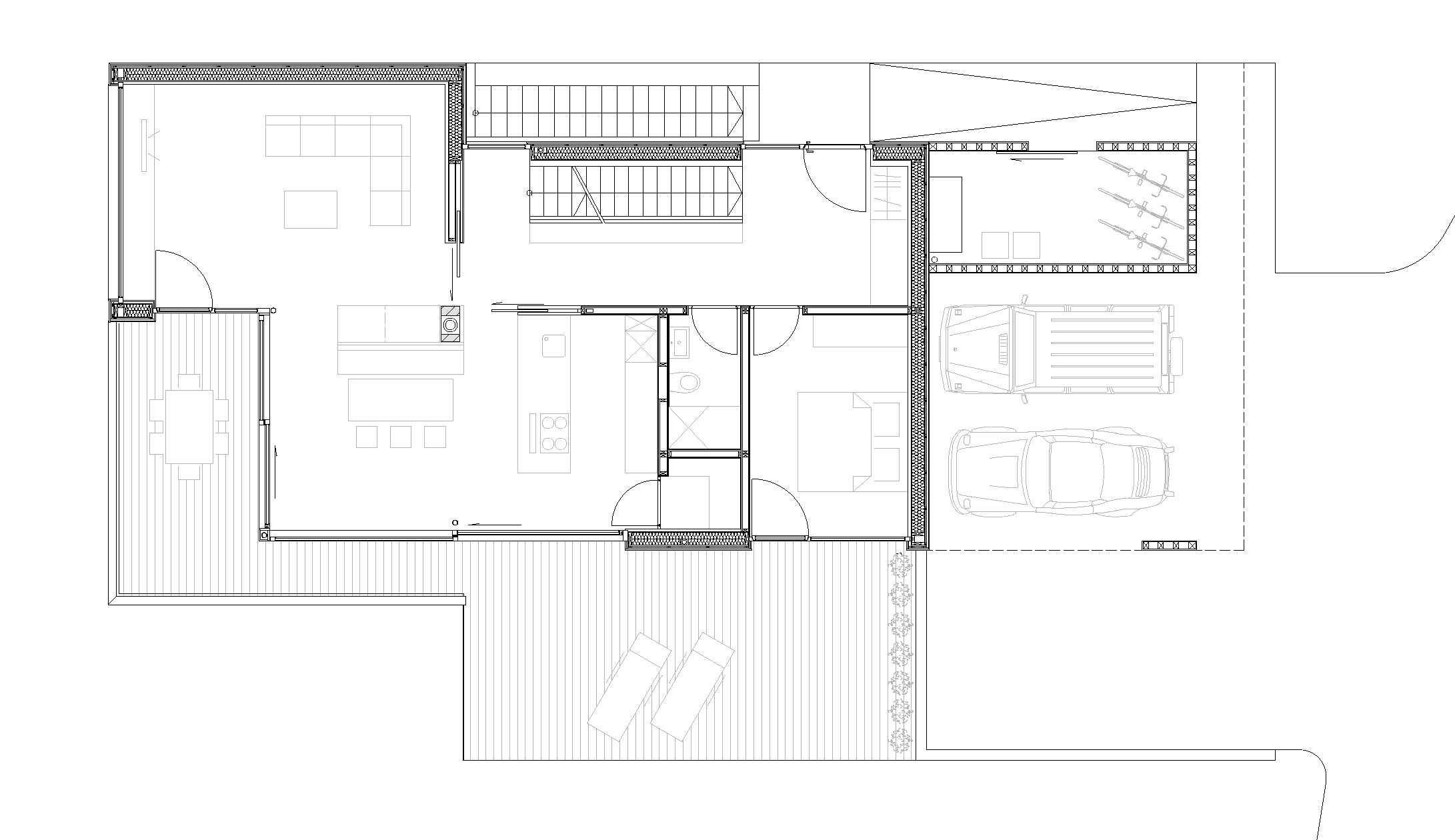
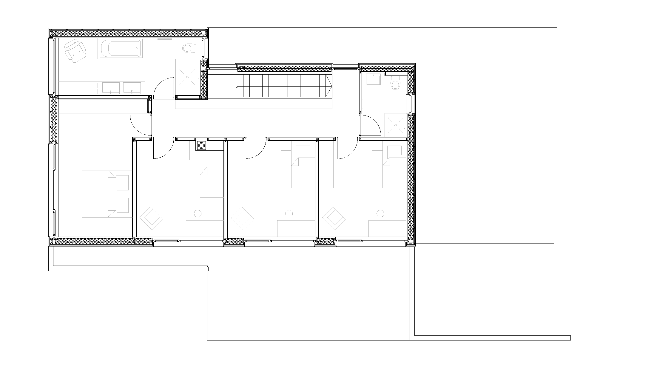
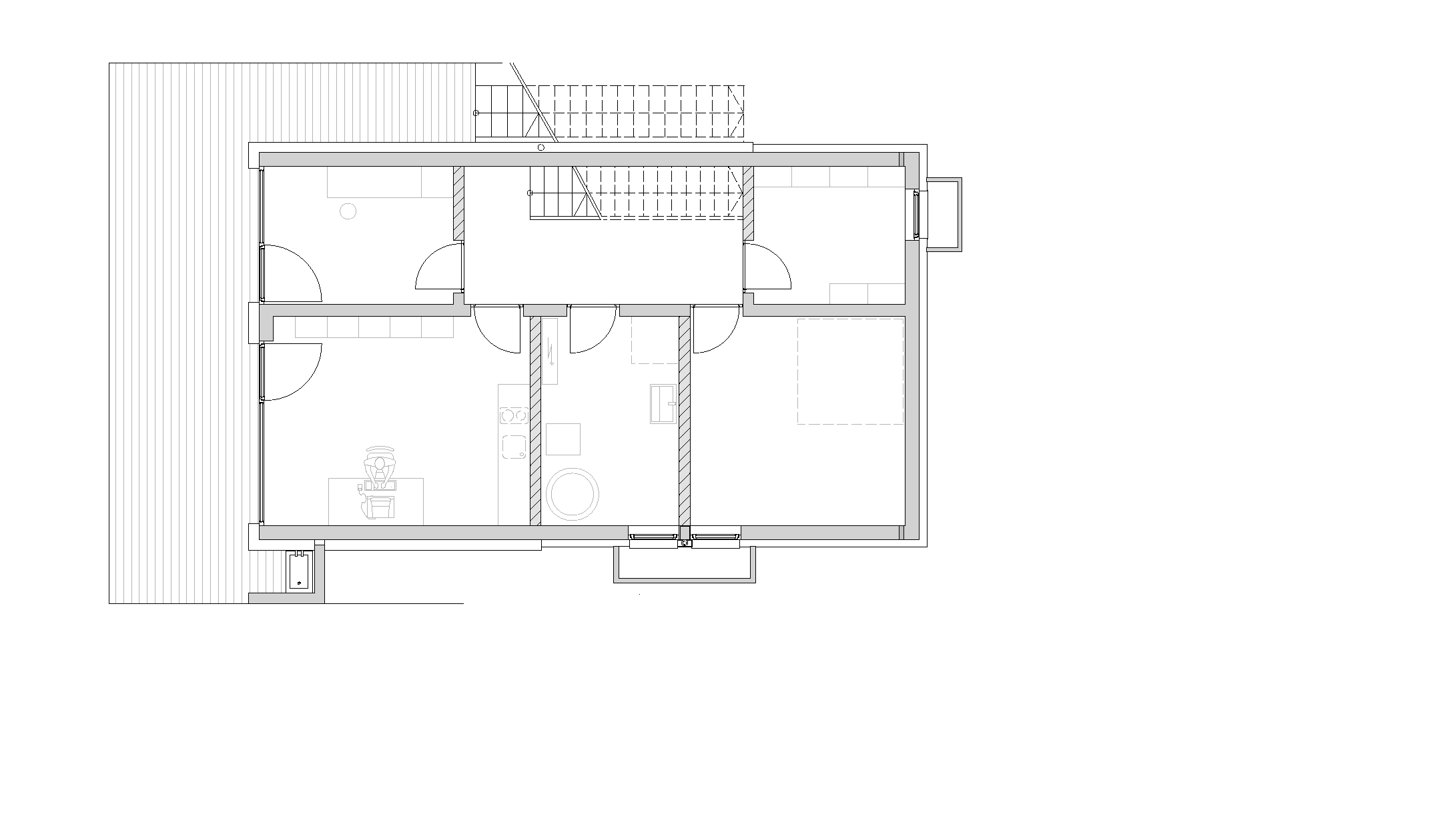
Das kleine Domizil für eine Familie sitzt an einem weich nach Nordwesten abfallenden Hang, der Geländesprung wird vom massiv ausgebildeten Sockelgeschoss aufgenommen. Die beiden oberen Stockwerke sind als prägnanter Holzkubus auf der leicht auskragenden Deckenplatte ausgebildet. Um sowohl den weiten Blick in die Appenzeller Alpen, als auch eine optimalen Besonnung zu gewähren, orientieren sich die konsequent rhythmisierten Öffnungen in zwei Richtungen. Die klaren Linien des plastisch durchformten Bauvolumens werden von einer fein gezeichneten Schalung aus Weisstanne betont, auf der Wetterseite schimmert bereits ihre Patina im matten Silberglanz. Trotz des dichten Raumprogrammes etablieren lichte, helle Materialien im Inneren eine Atmosphäre von Leichtigkeit und Weite.














