Transformation eines landwirtschaftlichen Nutzbaus in einen stimmungsvollen Raum für festliche Anlässe,zur Dokumentation der lokalen Geschichte.
Alberschwende ist eine Gemeinde am Übergang vom Bregenzerwald zum Rheintal, hat 3000 Einwohner, liegt auf über 700 m Seehöhe. Der charakteristische Dorfkern mit Kirche, Rathaus, Gasthaus und Wohnhäusern samt Scheunen und Ställen ist noch erhalten. Allerdings sind gerade die landwirtschaftlichen Nebengebäude in den Dörfern oft längst stillgelegt, ihre Erhaltung und Neunutzung ist dennoch für die Identität der Siedlungsstruktur wesentlich.
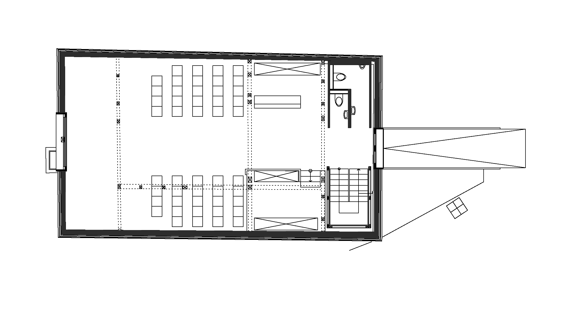
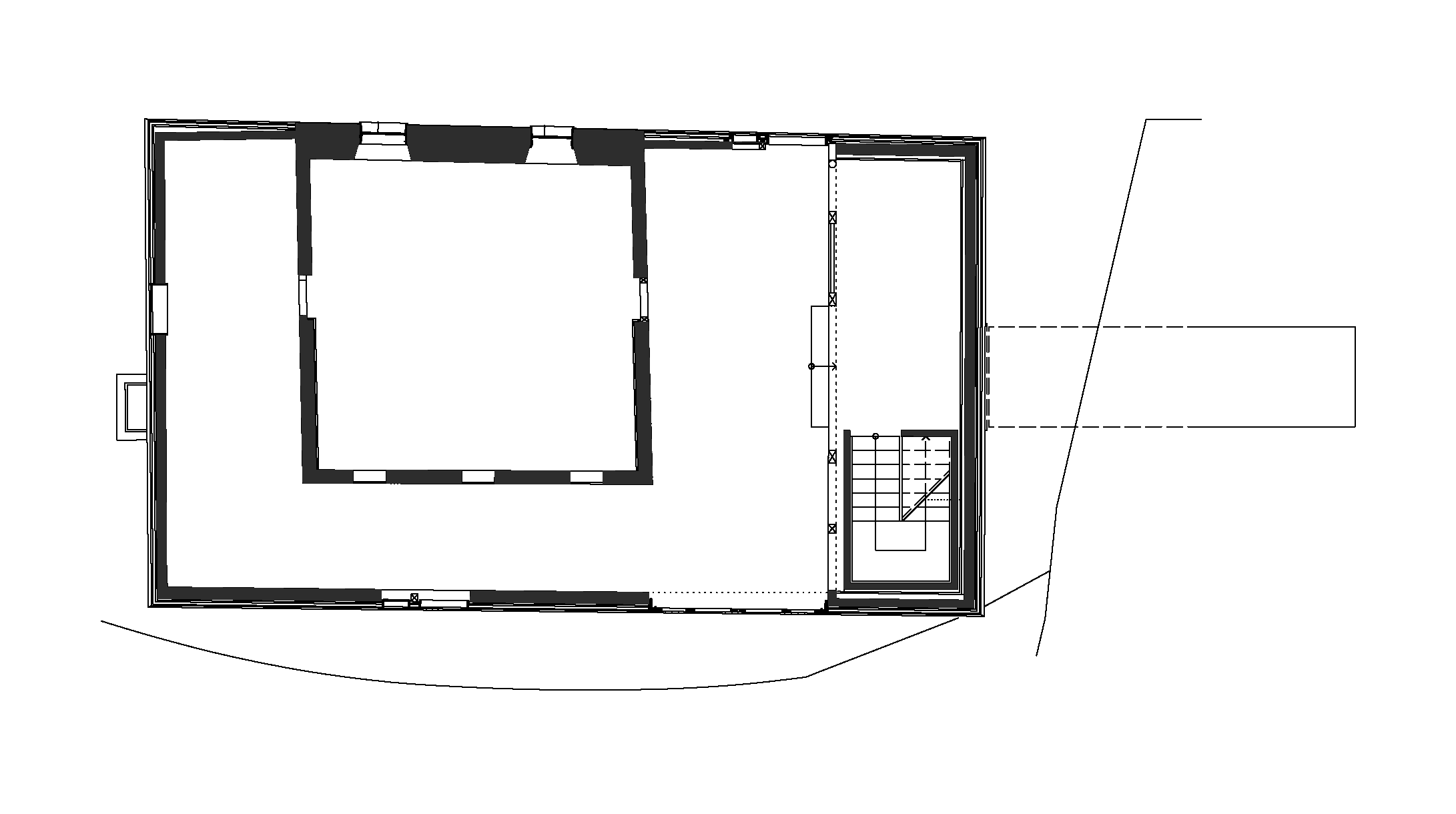
Der alte Stall in Alberschwende gehörte zum so genannten Mesmerhaus und steht in zweiter Reihe zum Dorfkern. Die Gemeinde unter Bürgermeister Walter Rüf beschloss, den Bau als kleines landwirtschaftliches Museum sowie als speziellen Ort für kleine Veranstaltungen, Tagungen, Konzerte, Feste neu zu nutzen. Bei der Adaptierung wurde möglichst viel von der Bausubstanz erhalten, für die nötigen Ergänzungen und Einbauten benutzte man lokale Weißtanne. So entstand auch eine selbstverständliche Erweiterung der Form- und Materialsprache des Ortes, ein Dialog zwischen den abstrahierenden Details der neuen Konstruktionen und den alten Bauteilen mit ihren rohen Oberflächen, die von der Handwerkstradition und den einst viel härteren Lebensbedingungen zeugen. Die neue Nutzung wird vor allem durch zwei große Lichtöffnungen und die breite Zugangsbrücke signalisiert.







