Ein Generationenhaus in Bizau.
Nachdem die Substanz des in den 1950er-Jahren nach einem Brand wieder aufgebaute Wälderhaus aus dem 18. Jh. für eine Sanierung zu marode war, wurde das Haus einschließlich Tenne abgetragen und durch einen Neubau mit gleicher Silhouette ersetzt. Der angebaute Stall ist erhalten geblieben. Trotz Neubau hat das was nun neu da steht, die Selbstverständlichkeit des Gewachsenen.
»Der Bregenzerwald wo Low-Tech auf High-Tech trifft, die traditionellen Milchbauern, welche die Region mit Mitarbeitern aus der Elektronik- und Dienstleistungsbranche teilen. Inmitten dieser progressiven, holzbasierten Architekturbewegung kombiniert die Region mühelos nachhaltige Ziele mit einem eleganten, minimalistischen Look. Das neue Bauernhaus, das für einen Milchbauern in Bizau gebaut wurde, das wäre nicht fehl am Platz in Seattle oder Stockholm.«
Wall Street Journal, 2012
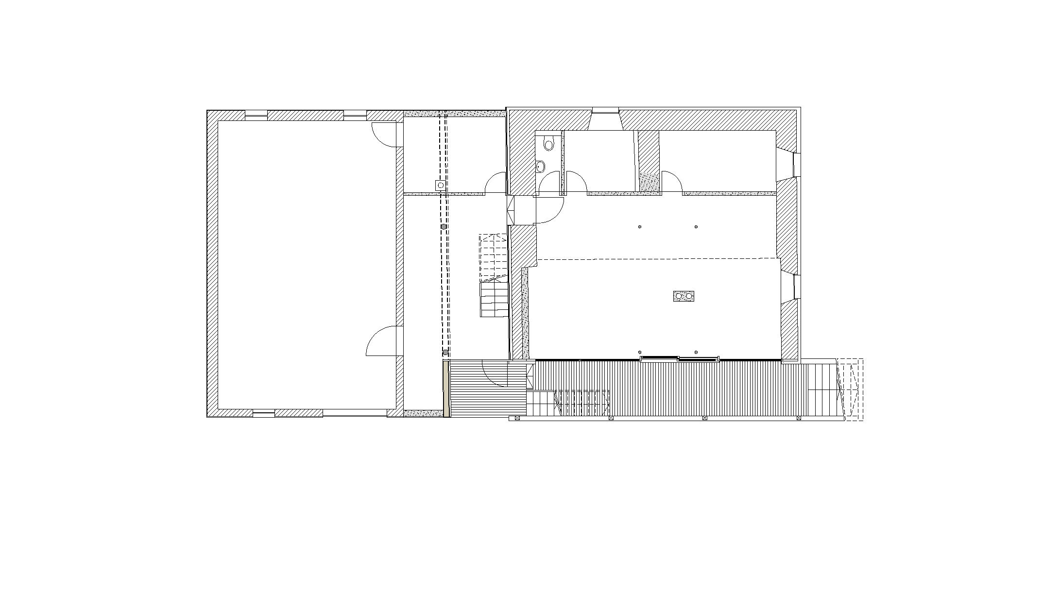
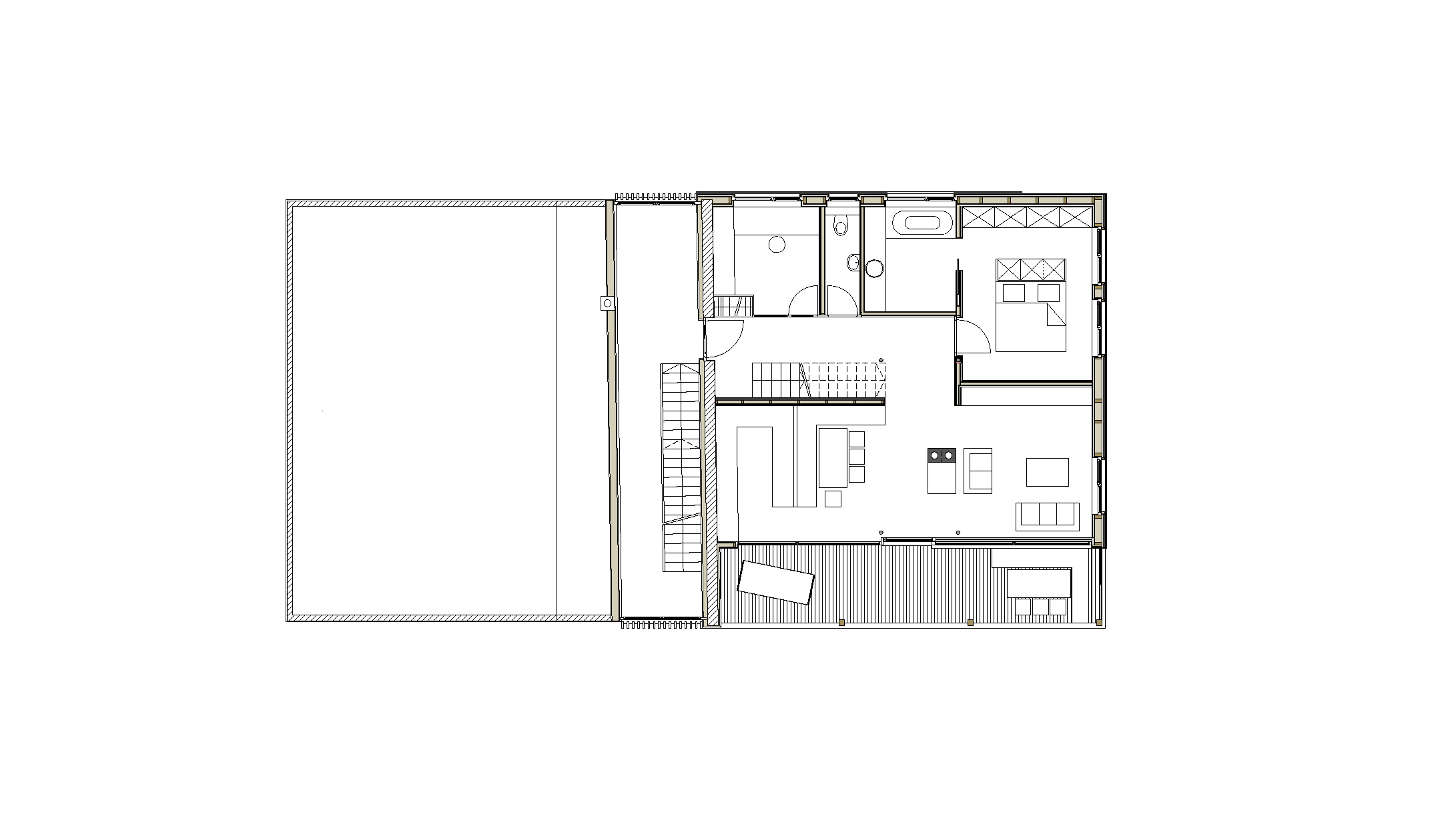
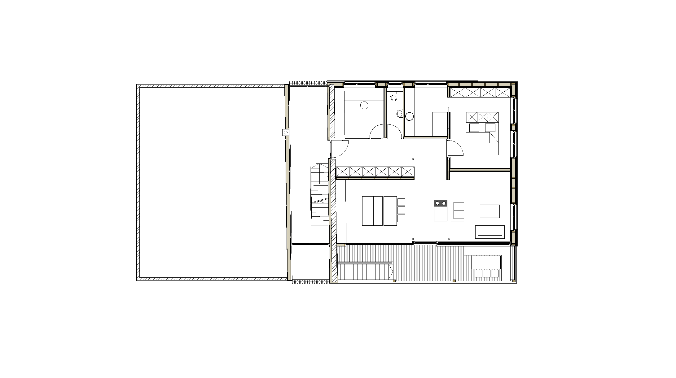
Das Haus wurde so um- bzw. neu gebaut, dass aus einem Bauernhaus mit Landwirtschaft nach den heutigen Bedürfnissen der Familie Moosbrugger ein Mehrfamilienhaus mit drei Wohngeschossen für Eltern und die beiden erwachsenen Kinder und mit einer Werkstatt entstanden ist.
Weiterlesen
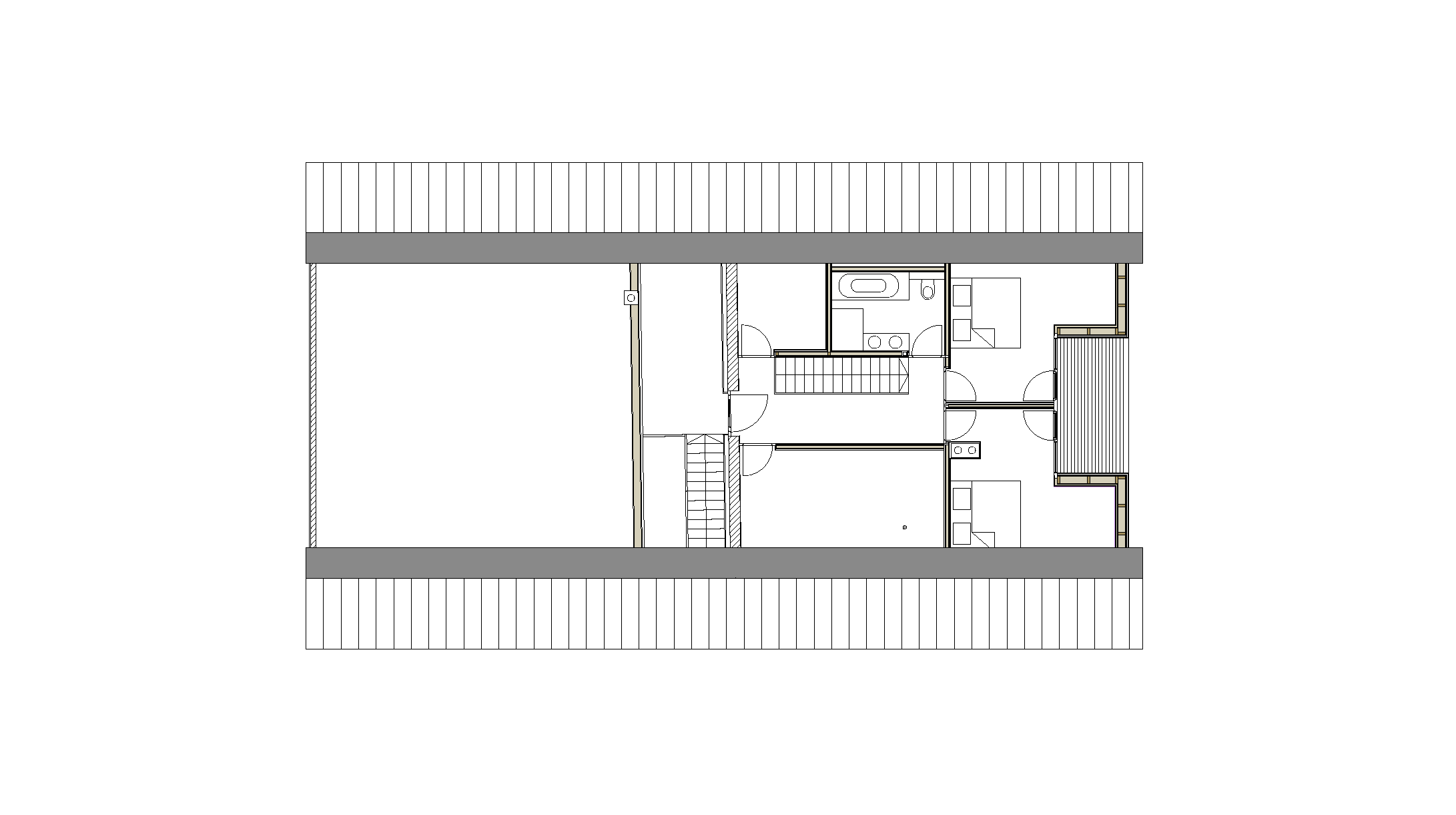
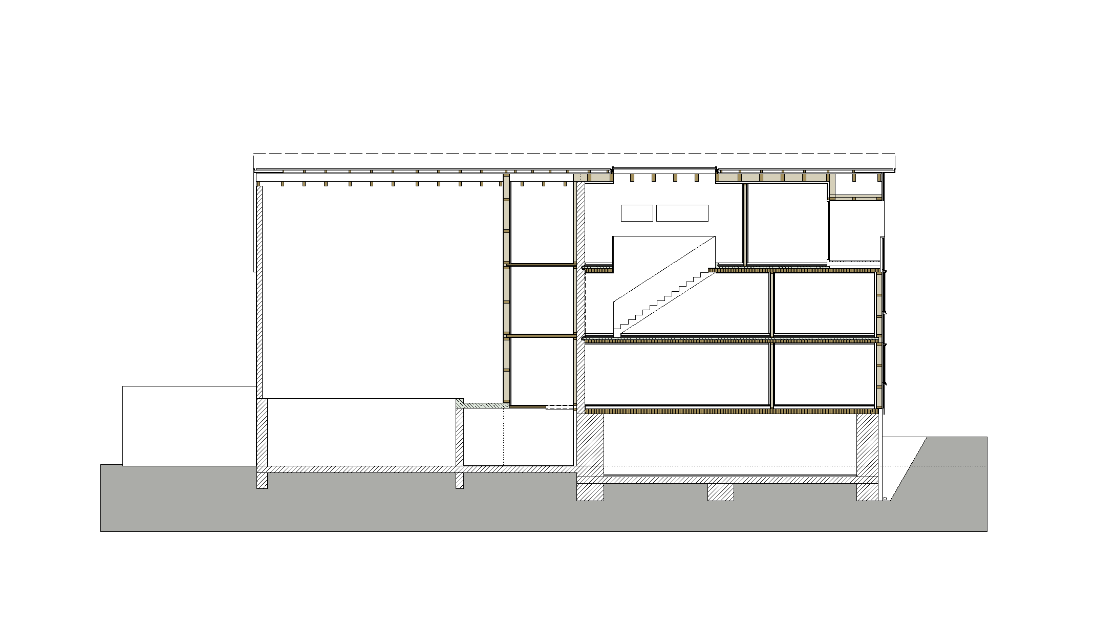
Wohnte man früher zum Dorf, so sind die Wohnungen – mit vorgelagertem, großzügigem Schopf – nun zur Sonne hin ausgerichtet. Die Werkstatt befindet sich im Sockelgeschoß. Ein, von zwei Seiten belichtetes Stiegenhaus, erschließt alle Stockwerke.
Konstruktiv handelt es sich um einen frei entwickelten Skelettbau. Dabei bilden Stahlstützen, Stahlträger und Außenwände aus vorgefertigten, hochgedämmten Holzrahmenelementen mit den Brettstapeldecken die Tragstruktur. Die Innenwände wurden als leichte Holzkonstruktionen ausgeführt.
Die Fassade ist senkrecht verschalt und im Wechsel von Fenster und Brüstung regelmäßig in horizontale Bänder gegliedert. Die auf der Südseite gelegenen Veranden werden in die umlaufenden Bänder mit eingebunden.
Bei der Umsetzung wurde auf heimische Wertschöpfung größten Wert gelegt, so stammt das für den Bau benötigte Fichten- und Weisstannenholz überwiegend aus dem eigenen Wald, die Esche für die Böden kommt aus der Talschaft und der überwiegende Teil der am Bau beteiligten Handwerker kommt aus der unmittelbaren Nachbarschaft.



















