War das Leben im Bregenzerwald einst fest verankert mit einer traditionellen Bauweise, folgte ab Mitte des letzten Jahrhunderts eine Phase, in der diese Einheit von Leben, Gebäude und Landschaft auseinanderzuklaffen begann.
Nun hat sich in den letzten Dekaden das Leben im Bregenzerwald erneut verändert. Die Möglichkeiten sind vielfältiger geworden, die Menschen sehen wieder vermehrt eine Zukunft fernab der Städte. Es stellt sich erneut die Frage: Wie baut man für diese neuen Bewohnerinnen und Bewohner? Wie kann deren Lebensgefühl eine Heimat finden? Die beiden Wohnhäuser in Langenegg zeigen beispielhaft, wie Qualität und Genügsamkeit sich mischen – und sich zu einem Amalgam aus städtischer Eleganz und Landleben vereinen.
Die Bevölkerungszahl von Langenegg lässt einige interessante Schlüsse zu: Die Talsohle wurde 1971 mit 705 Personen durchschritten. Die Zahlen stiegen gegen Ende des Jahrhunderts wieder an, um im Januar 2016 bei beachtlichen 1147 Einwohnern zu landen – das erste Mal weilten wieder mehr Menschen in Langenegg als 1869 mit 1049 Bewohnenden. Nachdem bis in die 1970er-Jahre eine stetige Landflucht stattfand, bietet das Leben im Bregenzerwald offenbar wieder eine valable Option. Was zieht die Menschen an diesen Ort? Es ist sicherlich die schöne Landschaft des Bregenzerwalds, die sich hier in breiten und geschwungenen Hügelzügen zeigt. Als weiterer Faktor kommen die zunehmenden Möglichkeiten hinzu, in der Tourismusbranche ein Auskommen zu finden. Dieses stete Bevölkerungswachstum zog auch eine rege Bautätigkeit in der Region nach sich.
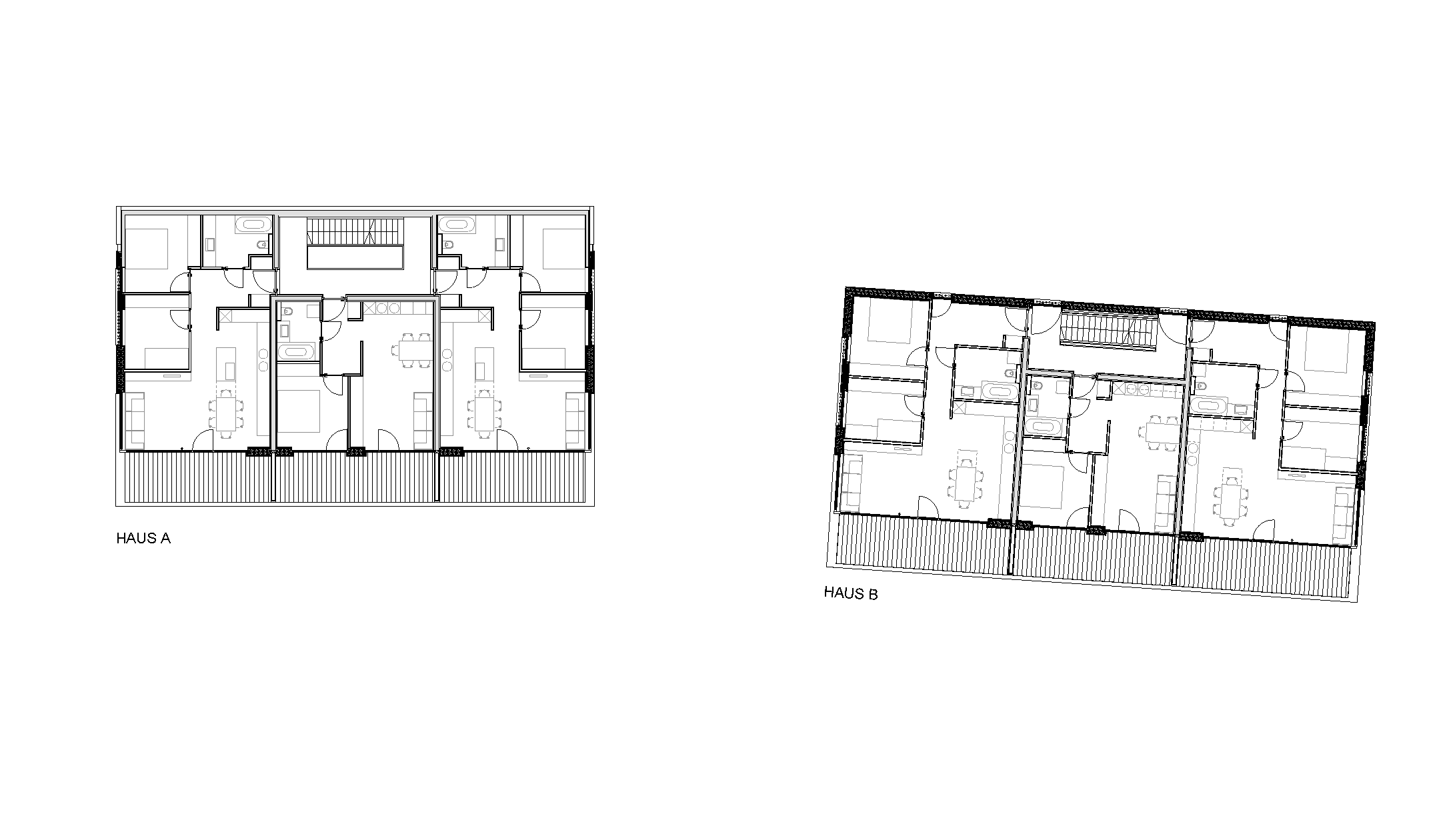
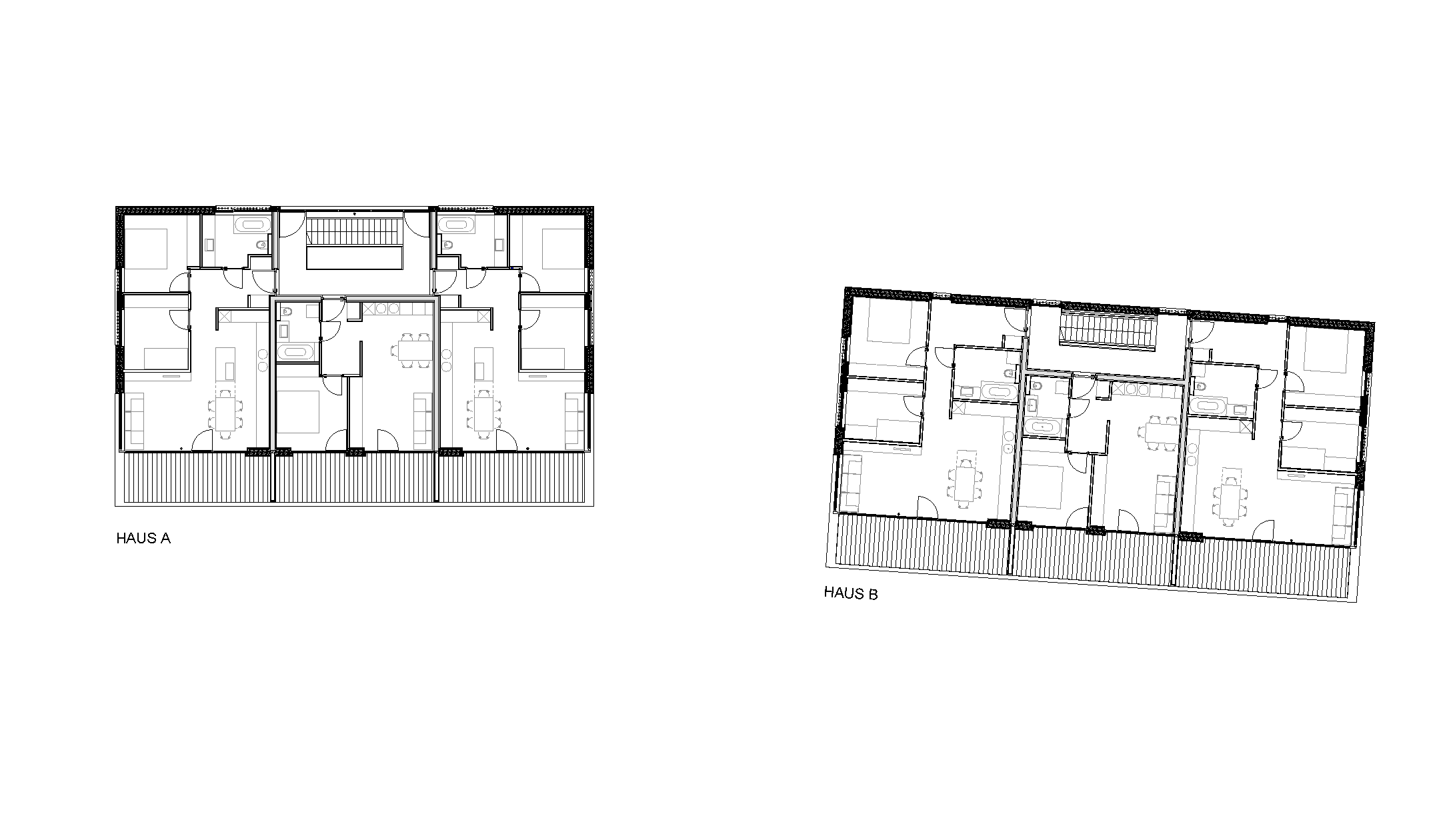
Einen Teil dieser Aktivitäten bilden die beiden Wohnhäuser im Ortsteil Unterstein von Langenegg. Die Morscher Bau- & Projektmanagement GmbH aus Mellau hat sie als Bauträgerin errichten lassen. In ihrem Portfolio sind einige Gebäude zu finden, die sich der sachlich-konstruktiven Ausdruckweise bedienen, für die Vorarlberg bekannt ist. Meistens sind die Fassaden in Holz ausgeführt – so auch diese beiden Gebäude. Morscher nennt die beiden Häuser eine Kleinwohnanlage, wobei sich der Begriff ebenso auf die beiden Gebäude mit je 6 Wohnungen beziehen lässt wie auf die Wohnungen selbst: Die 3-Zimmerwohnungen schlagen mit 80 m² zu Buche, die 2-Zimmerwohnungen mit 50 m².
Weiterlesen
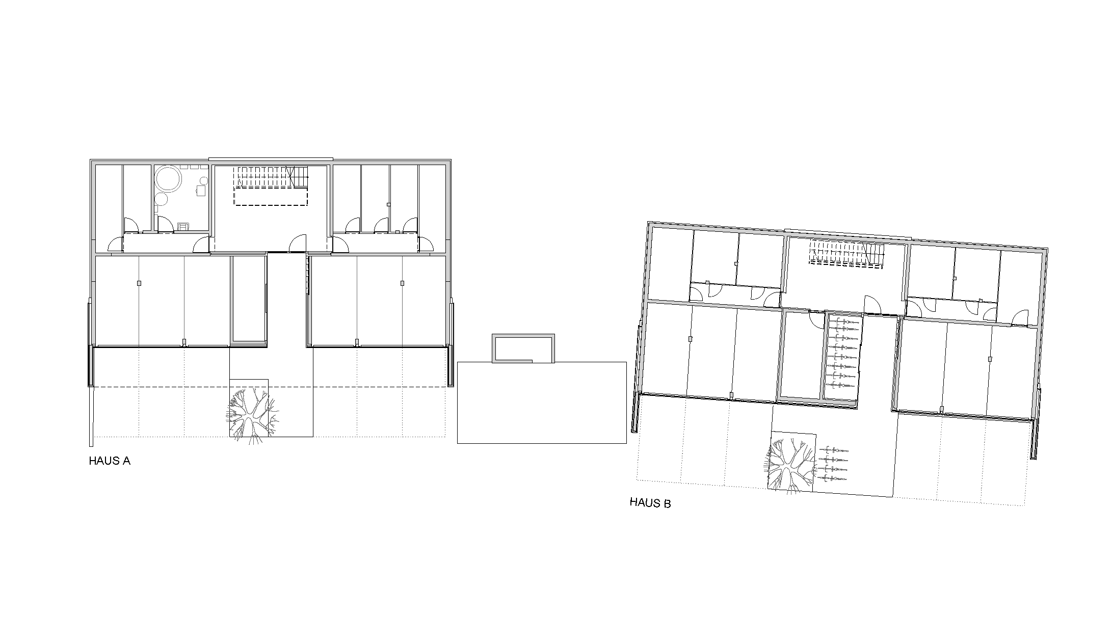
Das steile Grundstück ist lang und schmal. Es war anspruchsvoll, die beiden Häuser auf dieser Parzelle einzupassen: Die einzige Möglichkeit lag darin, die zwei Volumen parallel zum Hang zu stellen. Im Schnitt ist ersichtlich, wie tief der Sockel aus Beton in den Hang hineinreicht; das Haus steht fast bis zum 2. Obergeschoss in der Erde. Der Sockel beherbergt die Erschließung, Kellerräume und die Garagen für die Fahrzeuge. Um dennoch Licht in das rückwärtige Treppenhaus zu holen, ist sein Abschluss im 2. OG verglast.
Die Konstruktion erfolgte in Mischbauweise: die Decken aus Stahlbeton stehen auf Metallstützen, während die Fassaden aus hochgedämmten Holzelementen erstellt wurden. Die Mischbauweise ist effizient und sie erlaubt es, die Stärken der einzelnen Materialien zu nutzen. Die Wohnungen sind effizient als Dreispänner organisiert. Zwischen den beiden Dreizimmerwohnungen an den Enden liegt eine einseitig orientierte Zweizimmerwohnung. Innerhalb der Wohnungen steht ebenfalls Effizienz an oberster Stelle. Durchgehende, großzügige Balkone entschädigen für die Enge der Zimmer – an diesem Ort möchte man seine Zeit ohnehin lieber draußen verbringen.
In den Details zeigt sich das Qualitätsbewusstsein des Bauträgers: Die Fassaden sind mit kleinteiligen Holzschindeln eingedeckt, die Lüftungsanlage ist im unbeheizten Dachboden untergebracht – die dafür notwendige Nachströmöffnung gliedert sich sowohl vom Material wie von den Dimensionen in die Fassade ein. Die Garagenfronten sind bündig eingebaut, das asymmetrische Dach erhält dank der innenliegenden Rinne eine elegante Erscheinung. Selbst die thermischen Kollektoren sind in die Brüstungen der Fassade integriert, während die Photovoltaik-Module flächenbündig in die Dachhaut integriert sind: zeitgemäße Technik ist in die Gestaltung integriert, statt als Fremdkörper am Volumen angehängt zu sein. Und auch dort, wo sonst meistens gespart wird, zeigt sich das Haus von einer herausragenden Qualität: Die Treppenhäuser erfüllen mit schwarz durchgefärbtem Beton und getäferten Wänden hohe Standards. Eine sinnvolle Investition in die Zukunft der Region, denn die neuen Bewohner von Langenegg bringen nicht nur die Sehnsucht nach dem Landleben mit – sie sind auch vertraut mit den Annehmlichkeiten des modernen Lebens.


















