Lichter Solitär in üppiger Parklandschaft.
Die wohltuende Wirkung von Wasser genießt im heilklimatischen Kurort Oberstdorf eine lange Tradition. Daher soll südlich des Kurparks eine neu gestaltete Thermenanlage entstehen. Das städtebauliche Konzept des Projektes lässt über die Grundstücksgrenzen hinwegblicken, indem es die qualitätsvollen Freiräume der Bestandssituation sinnvoll miteinander in Beziehung setzt. So wird ein großzügiger zusammenhängender Grünraum definiert, der von der Öffentlichkeit genutzt werden kann.
Der Baukörper liegt eingebettet in einen üppigen Vegetationsfilter, hier wird ein atmosphärisch dichter Ort geschaffen. Der transparente Solitär evoziert das Bild eines Pavillons, der in einer fließenden Parklandschaft ruht; eine fragile Stabwerkskonstruktion auf massivem Sockel.
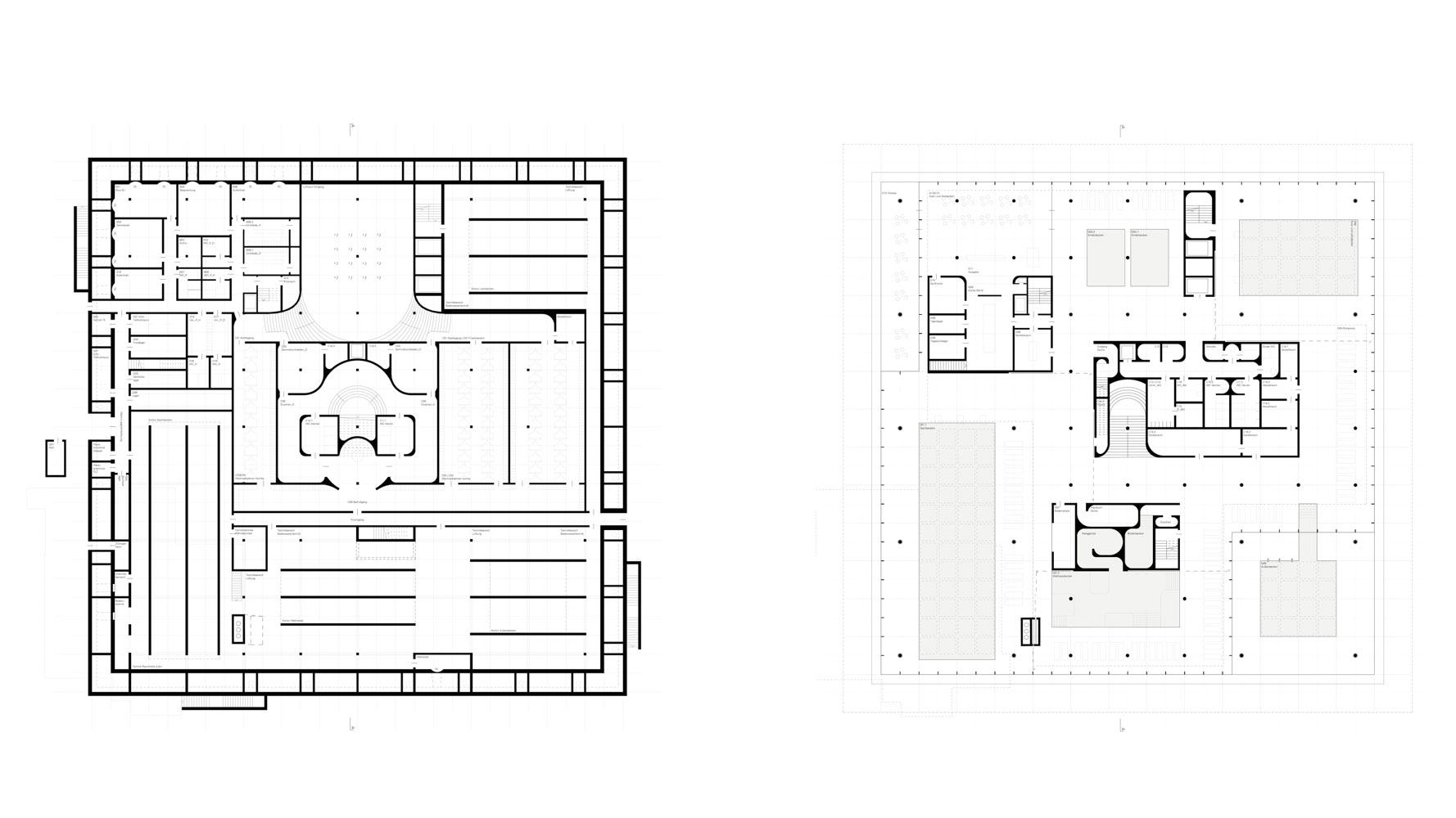
Der Weg des Besuchers führt hinab in die aus Ortbeton gegossenen Untergeschoße mit weiträumig konzipierten Empfangsbereichen, Garderoben und Technikräumen, um schließlich zur Ebene der Bäder emporzusteigen. Er taucht geradezu aus dem bergenden Sockel in eine weite Landschaft des Lichtes. Sein Blick schweift nun frei über die eindrucksvolle Berglandschaft und den Baumbestand des Grünraums, der nach außen hin kontinuierlich dichter angelegt ist, um eine ruhige und intime Atmosphäre zu wahren.
Neben diversen Wasserbecken von unterschiedlicher Größe und Tiefe finden sich hier vier massiv ausgebildete Volumen. Dem Gedanken des vom Wasser gehöhlten Steins folgend, fassen sie verschiedene kleinräumliche Funktionen. Auf diesen Findlingen liegt ein aus Holz gefügtes Geschoß, das Platz bietet für die vielfältige Saunalandschaft mit großzügig ausgeführten Anwendungsbereichen und Erholungszonen.
Das komplexe Raumgefüge wird von einem kassettenförmigen Dachtragwerk aus Brettschichtholz überspannt, auf dem inmitten einer Wildblumenwiese ein kleiner Außenpool angelegt ist. Die fein gegliederte Glas-Metall Fassade bildet eine thermische Hülle, welche die subtile Verschränkung der Innen- und Außenräume behutsam inszeniert.




