Verdichtung mit Augenmaß
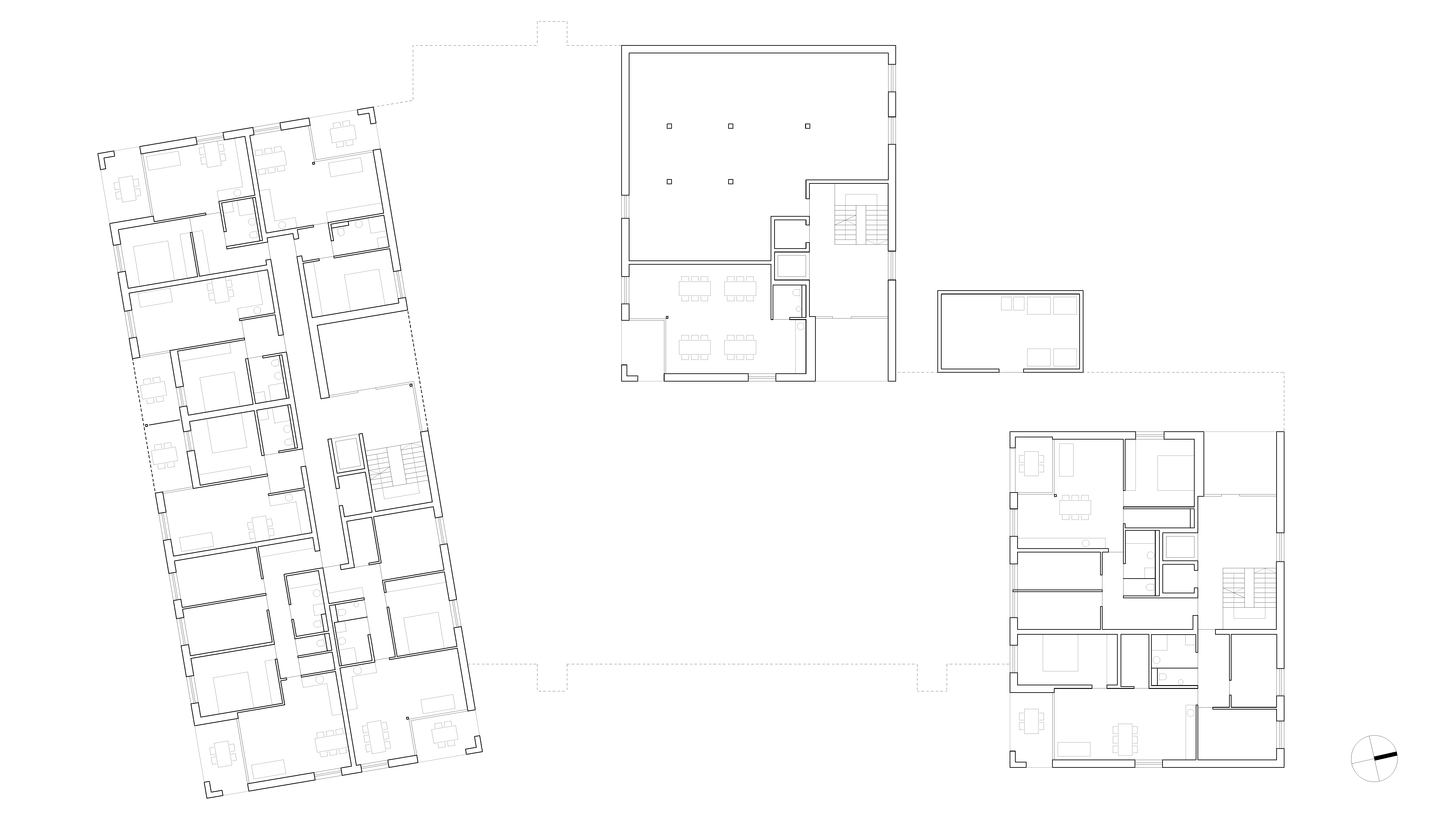
Das engmaschig gewirkte Siedlungsgeflecht des Vorarlberger Rheintales wird von Ackerland, Obstwiesen und Gärten durchgrünt. Im Rahmen einer nachhaltigen Raumplanung erfolgt die behutsame bauliche Verdichtung, um den ursprünglichen Charakter der gewachsenen Mischquartiere zu bewahren. In diesem Sinne entstand im Nordwesten der Marktgemeinde Lauterach eine familienfreundliche und kostengünstige Wohnanlage auf dem Grund der Pfarre im Baurecht.
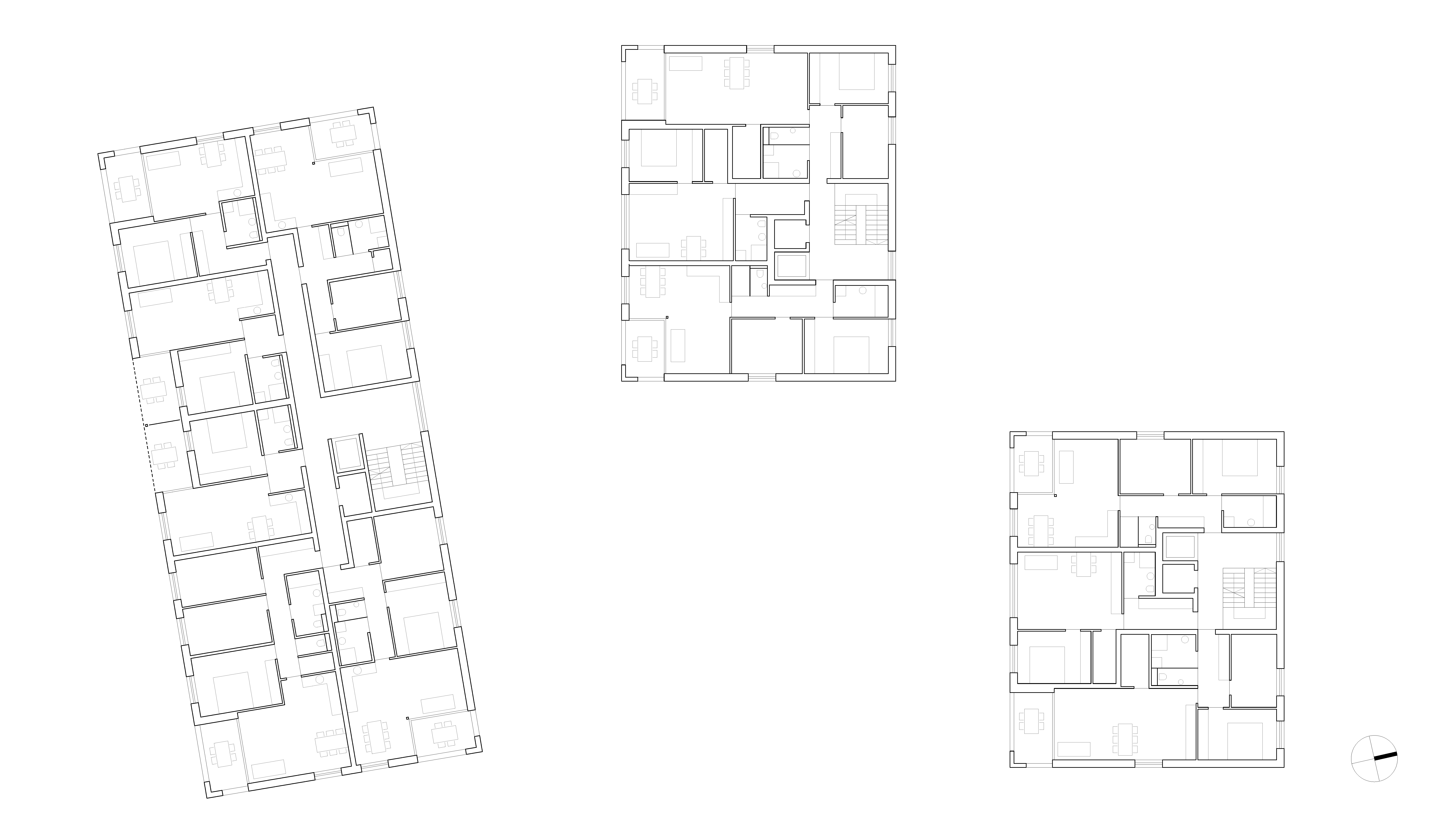
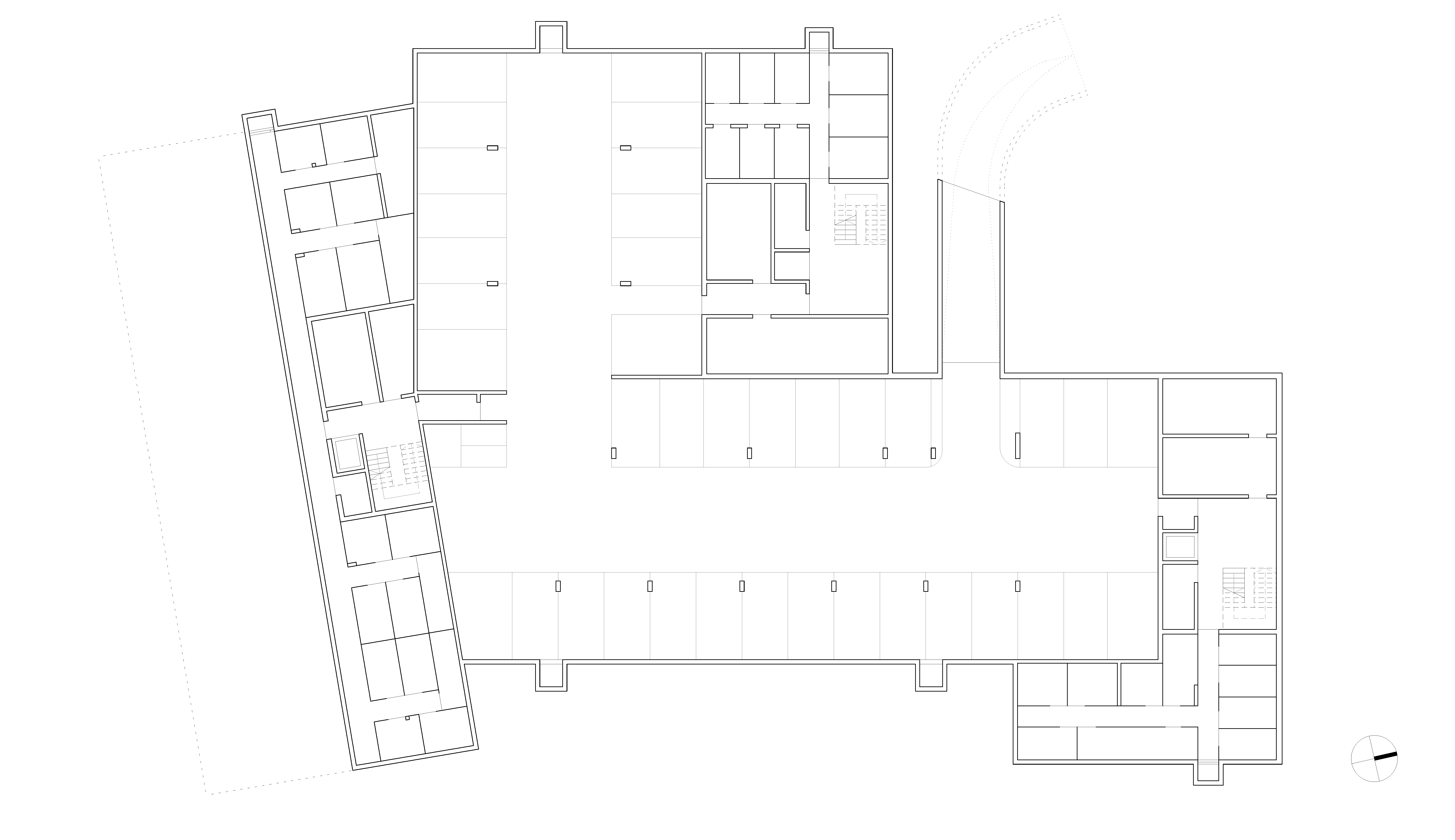
Drei kompakt konzipierte Volumen fügen sich als kleines Ensemble in die nachbarschaftliche Bebauungsstruktur zwischen der beschaulichen Neubaugasse und der Hauptverkehrsachse der Harderstraße. Die Gebäude wurden hinsichtlich der Besonnung wie auch der Erschließung und Durchwegung des Areals mit Bedacht gesetzt, um qualitativ hochwertige, verkehrsfreie Außenräume zu schaffen.
Die Tragstruktur aus Stahlbeton wird von vorgefertigten Holzrahmenelementen umhüllt, die durch Stahlstützen statisch verstärkt und mit fein gearbeiteten Fichtenbrettern verschalt sind. Die Ausführung in Niedrigenergiebauweise mit Solaranlage und Grundwasser-Wärmepumpe garantiert nicht nur die Behaglichkeit der Bewohner, sondern auch die Zukunftsfähigkeit für nachfolgende Generationen.



































