Das Mehrfamilienhaus in Sulzberg gehört zu den 50 innovativsten Gebäuden Österreichs.
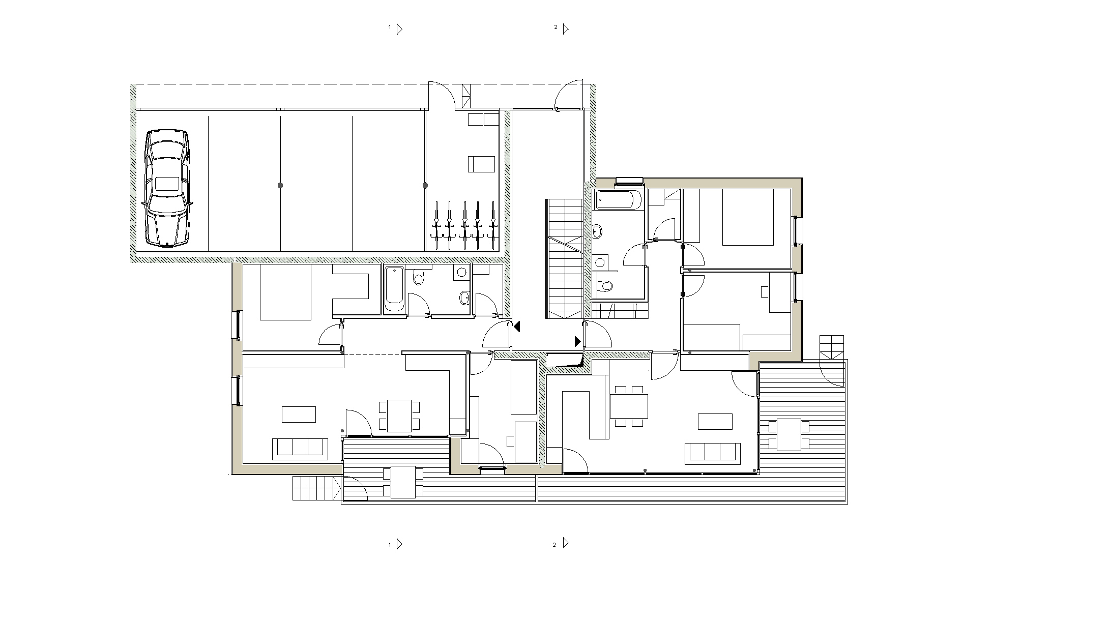
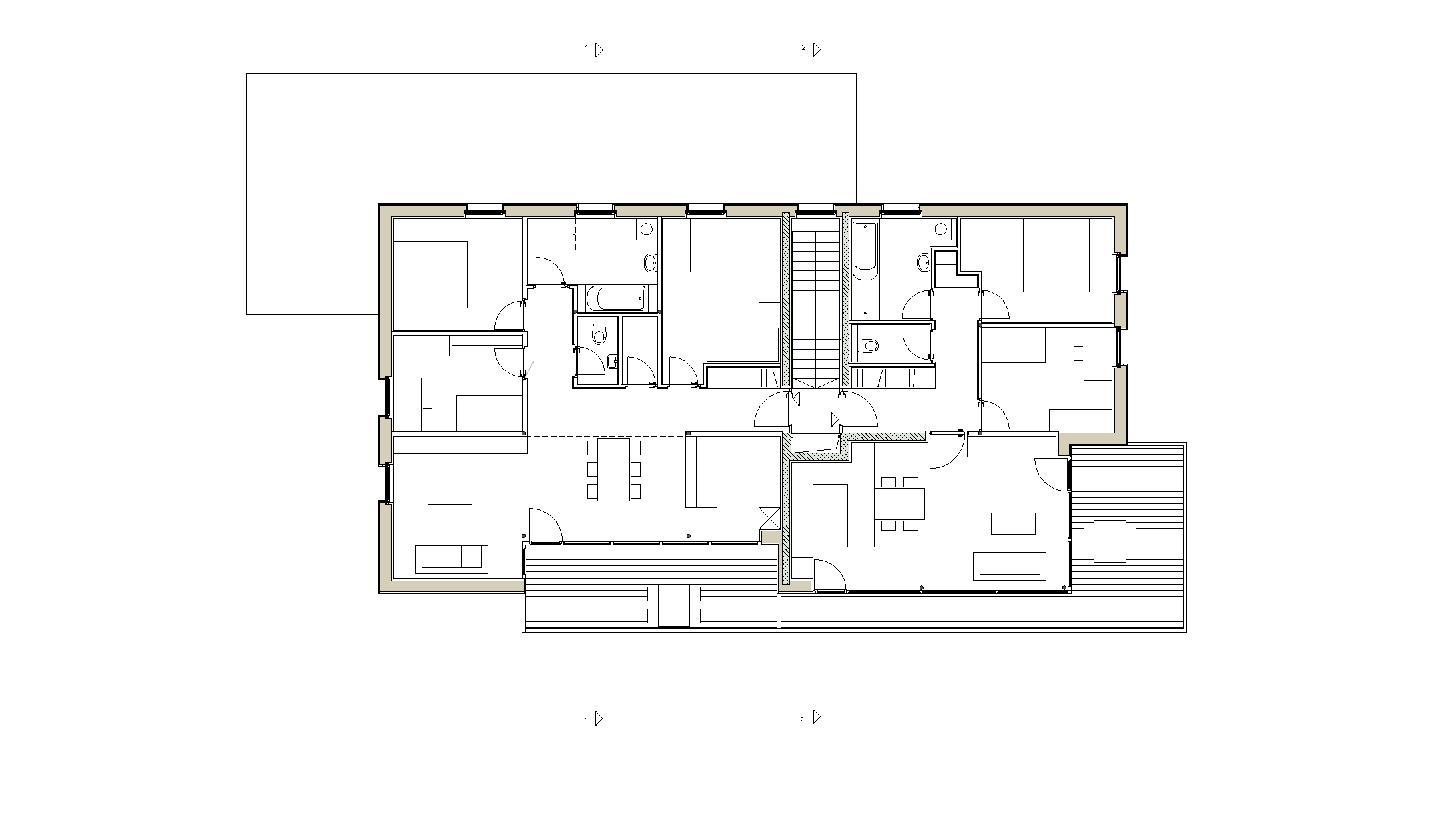
In einer der schönsten Lagen in Sulzberg ist in den vergangenen Monaten eine neue Passivhaus-Kleinwohnanlage mit insgesamt vier Wohnungen entstanden. Großzügige Terrassen, offene, helle Wohnräume und der herrliche Ausblick überzeugen ebenso wie das Energiesystem, das übers Jahr gesehen für eine positive Bilanz sorgt. Die Fertigstellung erfolgt im Dezember, Bauträger ist die Morscher Bau- & Projektmanagement GmbH aus Mellau.
»Wir freuen uns sehr, dass die Verantwortlichen der Messe Ecobuild in London sich entschlossen haben, auch unser Projekt in London vorzustellen. Es war eine große Ehre für uns, uns in einem internationalen Umfeld präsentieren zu dürfen. Das ist eine schöne Bestätigung für unsere Arbeit in den vergangenen Jahren.«
Günter Morscher
In der 4-Zimmer-Wohnung mit 100 m2 sowie den drei 3-Zimmer-Wohnungen mit 71 und 76 m2 gehört eine hochwertige Ausstattung zum Standard, Holz als Baustoff dominiert. Doch nicht nur architektonisch, vor allem auch energietechnisch liegt die Passivhaus-Wohnanlage absolut auf dem neuesten Stand. Die Beheizung und Warmwasserproduktion erfolgt über eine große thermische Solaranlage und eine eigene Fotovoltaikanlage. Eine Besonderheit ist die thermische Solaranlage. Während bei anderen Modellen die Energie zunächst in einen Puffer im Keller geleitet wird und dann erst in die Wohnräume kommt, geht die Energie bei der Anlage in Sulzberg direkt in die Wohnräume. Was nicht gebraucht wird, kommt in den Puffer.



















