Unaufgeregte Eleganz um behaglichen Kern.
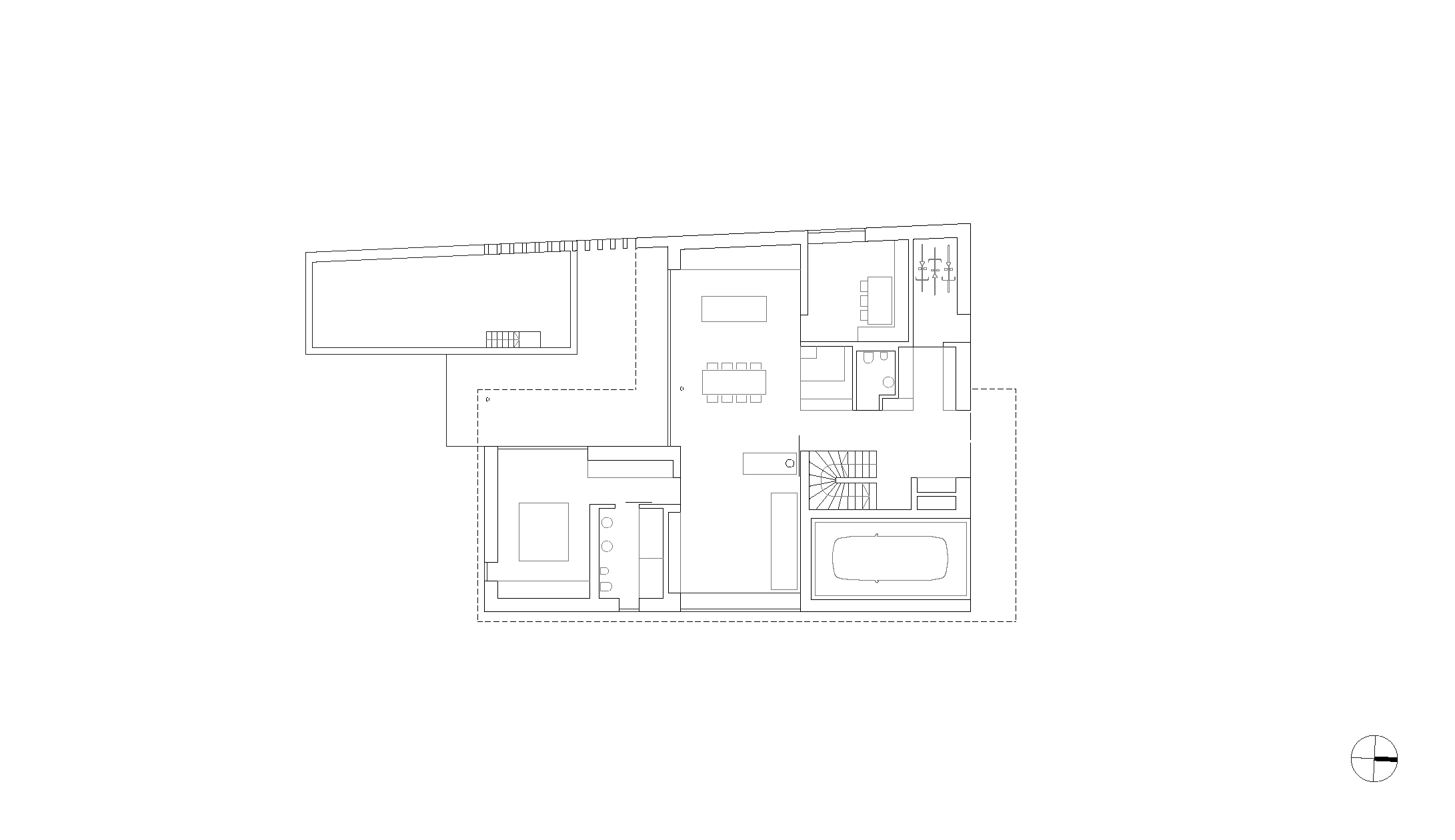
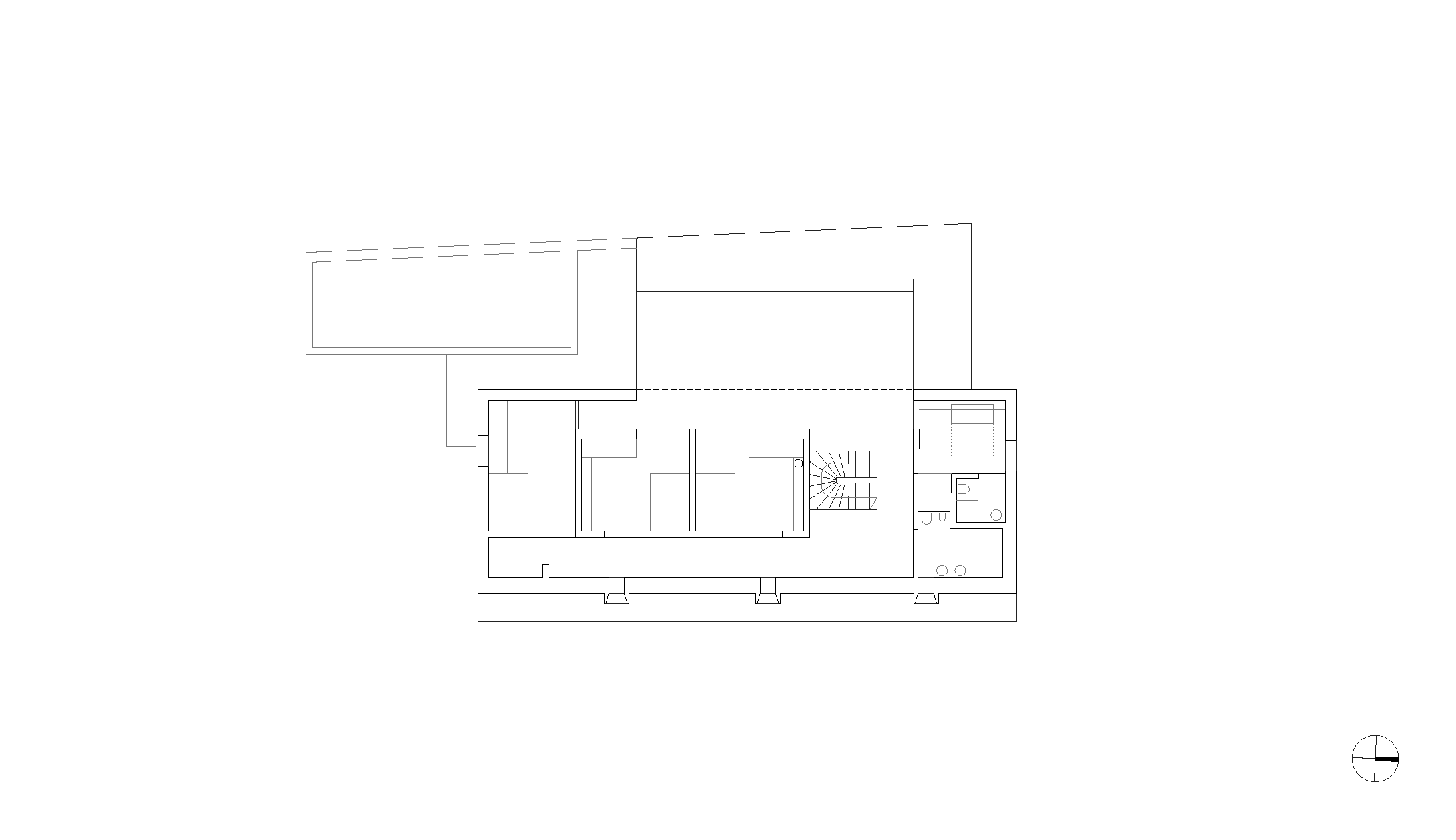
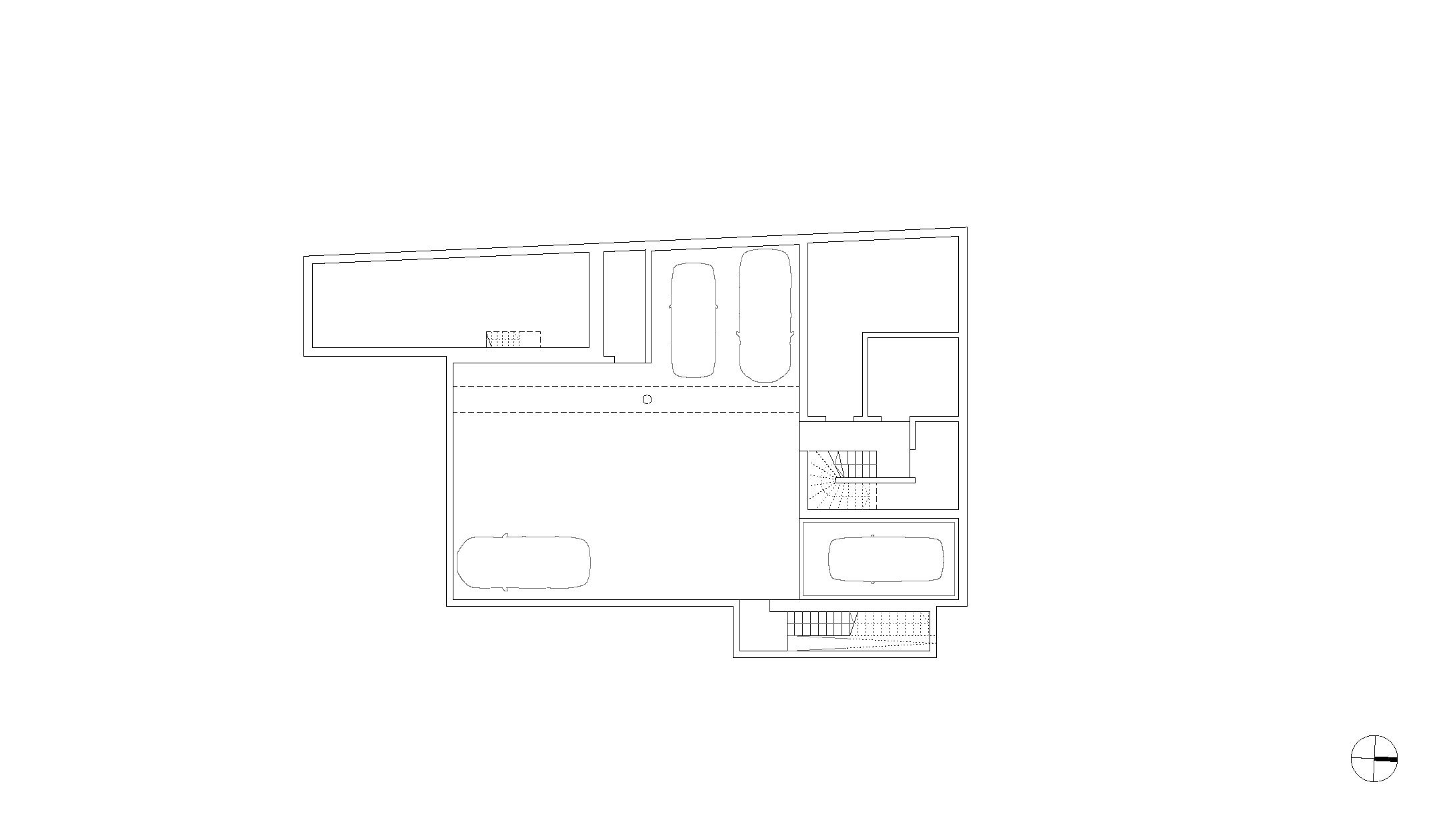
Im dicht bebauten Einfamilienhausquartier wollte die schmale Parzelle optimal genutzt werden. Die Fahrzeuge werden platzsparend in einer geräumigen Tiefgarage mit Autolift verstaut, durch umsichtig geplante Grundrisse besteht die Möglichkeit, das Haus später etagenweise zu trennen. Im Erdgeschoss öffnen sich die Wohnräume und das Elternschlafzimmer zum sonnigen Pool, ein lichter Erschließungsraum führt ins obere Stockwerk, das vier Zimmer und zwei Bäder fasst. Es sitzt als plastisch geformte Massivholzkonstruktion in rauer Schindelhaut auf den beiden Grundgeschossen aus hellem Beton und lässt Raum für eine Terrasse, um die Abendsonne zu genießen. Das Innere des Hauses ist in fein gearbeitetes Täfer aus Weisstanne gekleidet, ein markanter gemauerter Ofen sorgt für Wärme und Behaglichkeit.


















