Neubau Zentrale der Raiffeisenbank Mittelbregenzerwald.
Inmitten des Ortszentrums von Egg im Bregenzerwald entsteht in ca. eineinhalb-jähriger Bauzeit die neue Zentrale der Raiffeisenbank Mittelbregenzerwald.
Ziele des Neubaues sind unter anderem, ein schlichtes aber funktionelles Gebäude mit starkem Bezug zur Region Bregenzerwald zu errichten.
»Wenn vom Bregenzerwald die Rede ist, fallen oft Wörter wie schlicht und einfach. Das ist zunehmend falsch. Tatsächlich sollt man zum Bregenzerwald – nicht nur, was die Architektur betrifft – eher großartig, unglaublich, raffiniert sagen. Auf die Bankbox in Egg zum Beispiel trifft dies auf jeden Fall zu.«
Best of Austria 2010/2011
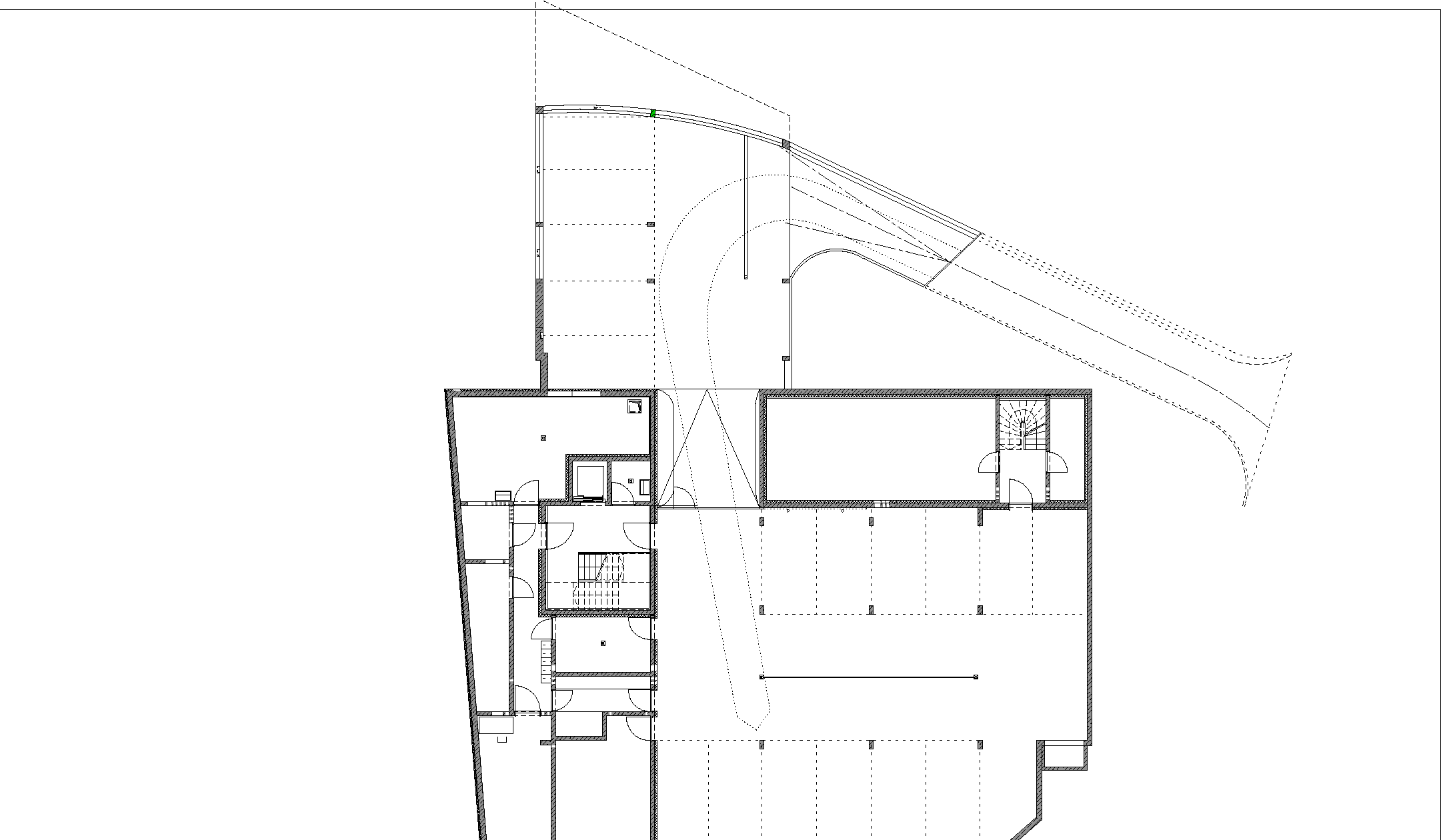
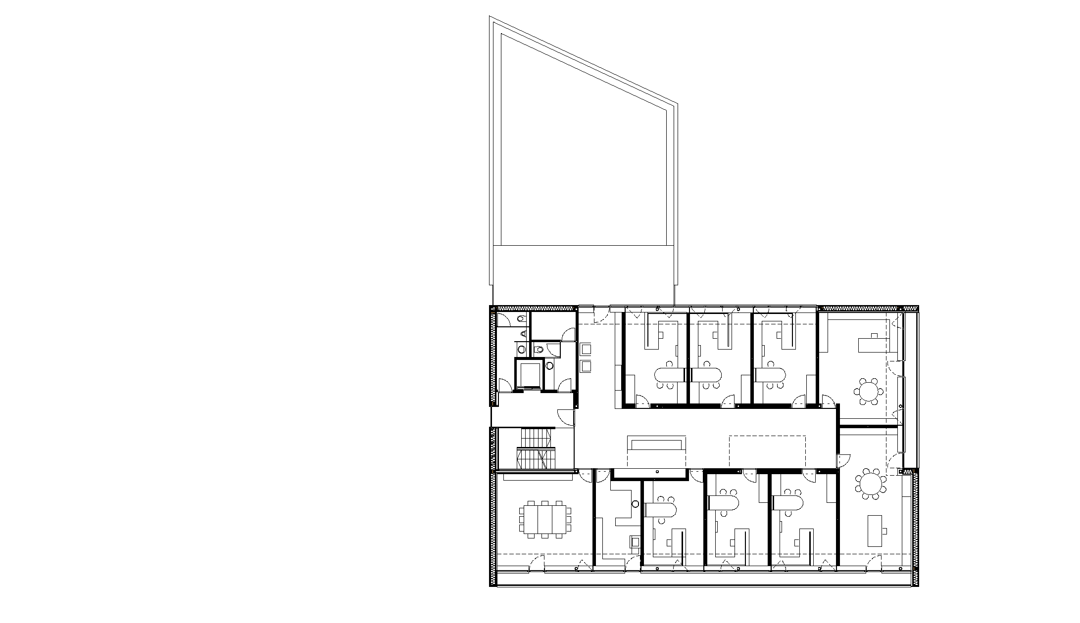
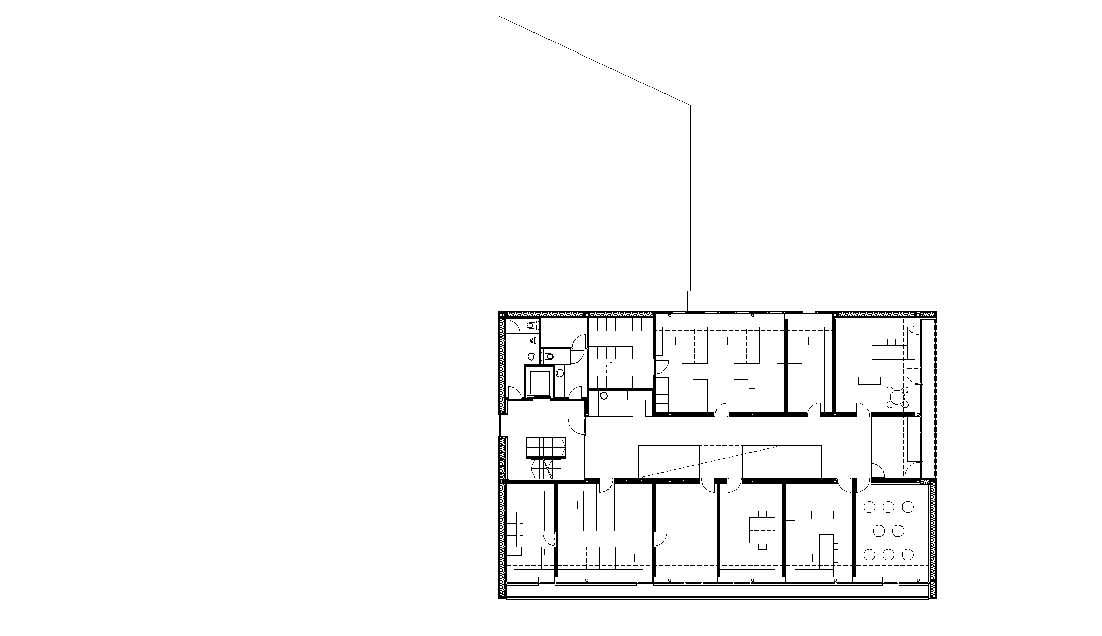
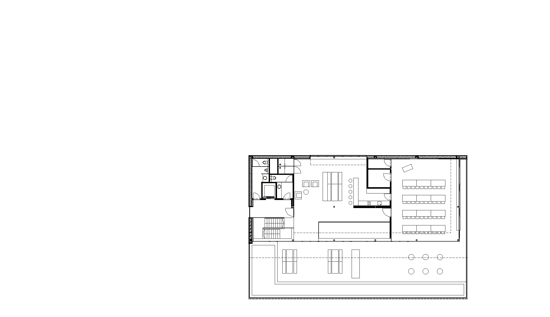
Geplant wurde ein 4-geschossiges Bankgebäude in kompletter Holzbauweise mit einer Gesamtnutzfläche von über 1.400 m².
Die einzelnen Geschosse wurden den jeweiligen Geschäftsabläufen zugeordnet: Das Erdgeschoss bedient das Segment der Privatkundenbetreuung in einer großzügig bemessenen Kundenhalle. Das 1. Obergeschoss beherbergt die Firmenkundenbetreuung und den Vorstand, während im 2. Obergeschoss die Verwaltung Platz findet. Das 3. Obergeschoss wurde als Sozial-Bereich für die Mitarbeiter bzw. für Schulungen vorgesehen, eine großzügige Dachterrasse bietet einen weitläufigen Rundumblick auf Egg.
Die Obergeschosse sind über großzügige Lufträume verbunden, die das Licht aus dem Dachgeschoss in die Gebäudemitte lenken.
Weiterlesen
Die Fassade ist größtenteils in unbehandelter Lärchen-Schindelung ausgeführt. Die insgesamt über 40 cm dicken Holzaußenwände sind mit Zellulose isoliert, im Innenbereich wurde entweder Hanf oder wo es brandschutztechnisch notwendig war Mineralwolle verwendet.
Im Sinne der Nachhaltigkeit bilden auch bei der Innenraumgestaltung heimische Hölzer den Schwerpunkt: Unbehandelte heimische Weißtanne für Wände, Einbauten, Türen, als Ergänzung dazu akzentuiert eingesetzte Eichen-Möbel.
Ein weiterer Schwerpunkt war, ein nachhaltiges und energetisch hochwertiges Gebäude mit Vorbildcharakter zu errichten. Durch die Verwendung einer Photovoltaik-Anlage sowie den Anschluss an das Nahwärmenetz wird ein primärenergetisch ausgeglichener Energiebedarf erzielt, sodass das Gebäude über das Jahr gesehen emissionsfrei ist.
Ein insgesamt sehr ausgeklügeltes Energiekonzept reduziert den Energieaufwand auf ein Minimum, sodass nahezu Passivhaus-Standard erreicht wird.
Die Wertschöpfung für die Region Bregenzerwald ergibt sich aus der Tatsache, dass ca. 85% der Ausführungsarbeiten an Bregenzerwälder Handwerker bzw. hauseigene Kunden vergeben wurden.

















