Alt-Neu als Duett archetypischer Formen: Satteldach versus Flachdach, Lochfassade versus Bandfenster, Schindelpanzer versus Horizontalschalung.
Durch ein intensives Bürgerbeteiligungsverfahren und einen offenen Diskussionsprozess kam man in der Gemeinde zu dem Schluss, Schule und Gemeindesaal am ursprünglichen Standort zu belassen, jedoch neu zu interpretieren.
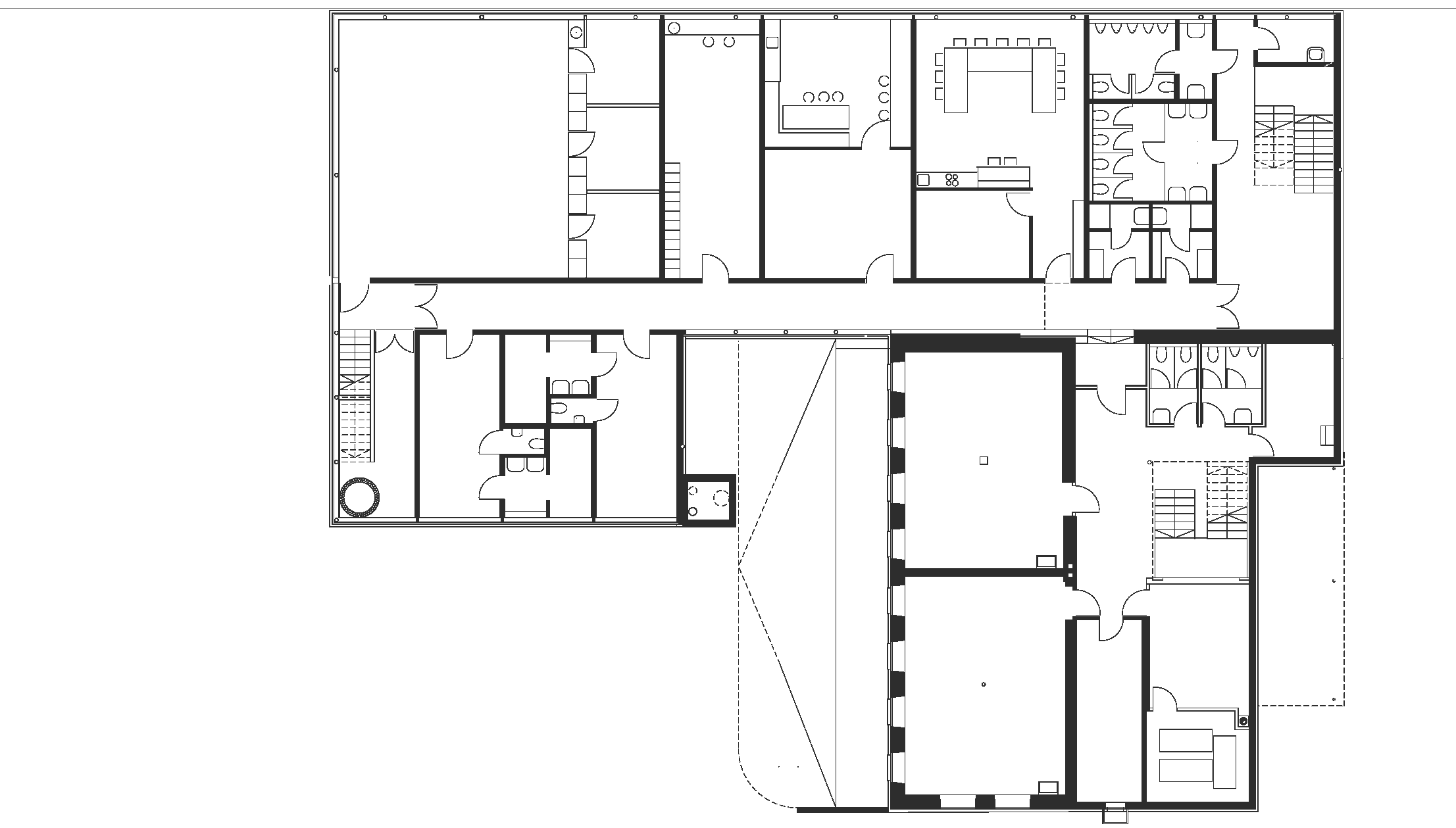
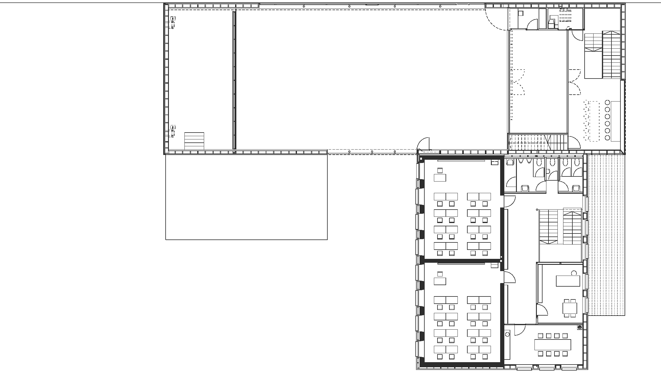
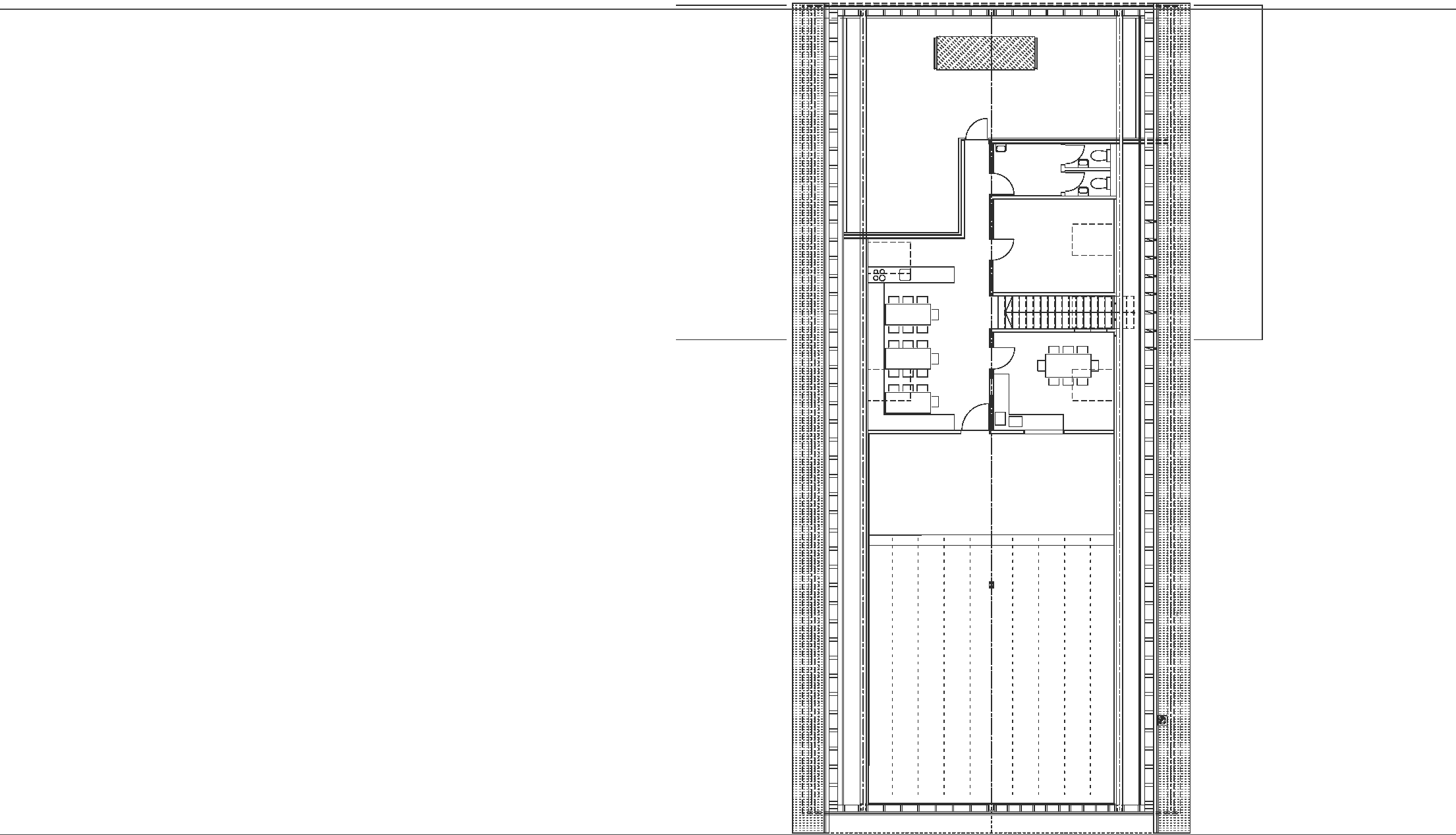
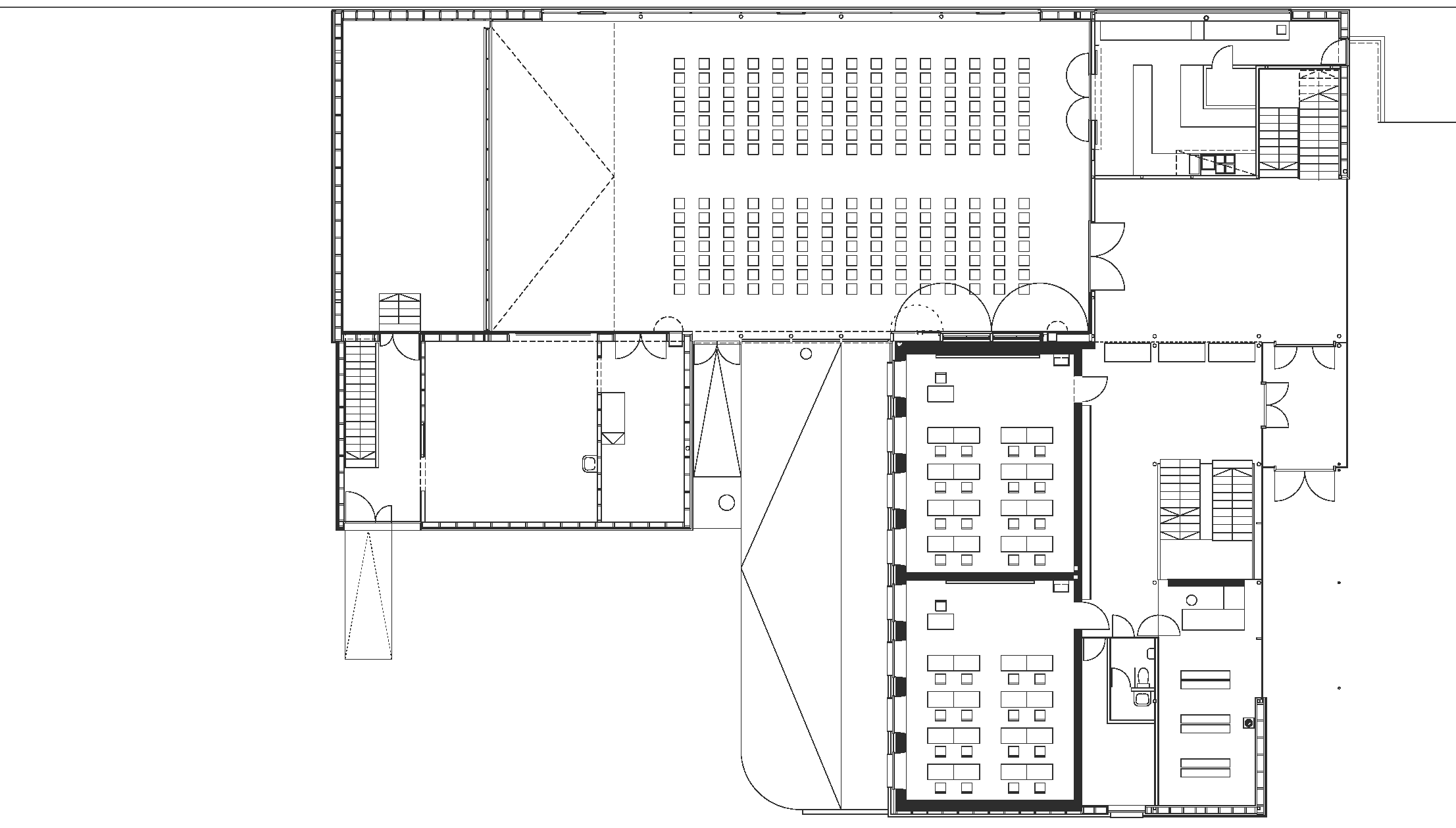
Die bestehende vierklassige Volksschule genügte zwar in der Klassenzahl und -größe, die nötigen Nebenräumlichkeiten fehlten aber gänzlich. Der bestehende Saal war ebenfalls funktional sehr mangelhaft. Deshalb wurde das Gebäude bis auf die Klassen abgetragen. Um die gemauerten, mit Holzdecken versehenen Klassenräume wurden eine neue Hülle und neue straßenseitige Raumschichten in Holz wieder aufgebaut, wobei die äußere Erscheinung in den Proportionen ziemlich erhalten blieb.
Wegen der kurzen Bauzeit kam auch für den Neubau des Saales nur Holz infrage. Er wurde als flachgedeckter Kubus quer an den steilgedeckten Schulteil angesetzt und unter dessen Traufe bis zur Straße „durchgeschoben“. In einer „repetition different“ zur Schindelung des Bestandes ist der Saal mit horizontaler Lärchenverschalung ausgeführt; Wand- und Deckenelemente bestehen aus Tannenholz von den lokalen Gemeindewäldern, die Fassaden aus Lärchenholz. Die Stirn wand ist als thermischer Kollektor ausgebildet, Energie wird in Pufferspeicher und in die massive Kellerdecke eingespeichert, was annähernd dem Niedrigenergiestandard entspricht.










