Ein einzigartiges Feuer- und Rettungszentrum entwickelt den Holzbau in der modernen Architektur fort.
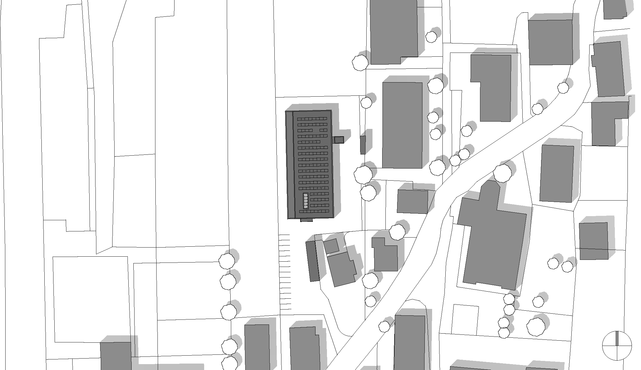
Ausgangspunkt für den Neubau des Sicherheitszentrums war die eklatante Platznot der freiwilligen Feuerwehr Bezau. Bergrettung und Wasserrettung gesellten sich im Funktionsprogramm hinzu. Da die Größe eines Feuerwehrhauses durch den großen Flächenbedarf im Erdgeschoß bestimmt ist, konnte die Polizeiinspektion Bezau, die ebenfalls neue Büroräumlichkeiten suchte, leicht ins Sicherheitszentrum integriert werden. Der Bedarf an Tiefgaragenplätzen im Zentrum der Gemeinde komplettierte die Anforderungen.
»Es ging nicht nur darum, die Bedürfnisse der Stadtresidenz und der Sicherheitsdienste zu erfüllen. Es ging auch darum, dass wir in Vorarlberg ein weiteres Beispiel für moderne Holzarchitektur schaffen, um dieses wunderbare, vielseitige und nachhaltige Baumaterial weiter zu fördern.«
DI Claudia Greußing
Holz hat sich bei den öffentlichen Bauten in Vorarlberg mittlerweile durchgesetzt und dass das Baumaterial hauptsächlich aus eigenen Wäldern stammen sollte, war klar, ebenso der höchste Ökologiestandard im Rahmen von „Nachhaltig: Bauen“ in der Gemeinde. Das einfache Gebäude bildet nun mit Gemeindeamt und Gerichtsgebäude ein Ensemble und markiert den Siedlungsrand nach Westen, wo die große Wiese traditionell bis an das Haus reicht. Der Übungsplatz ist eingefasst von den Nachbargebäuden und orientiert sich zum Dorf, die Zufahrt erfolgt direkt von der Gemeindestraße im Süden.
Weiterlesen
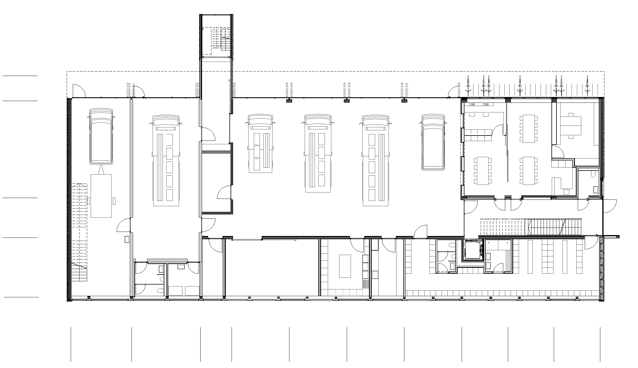
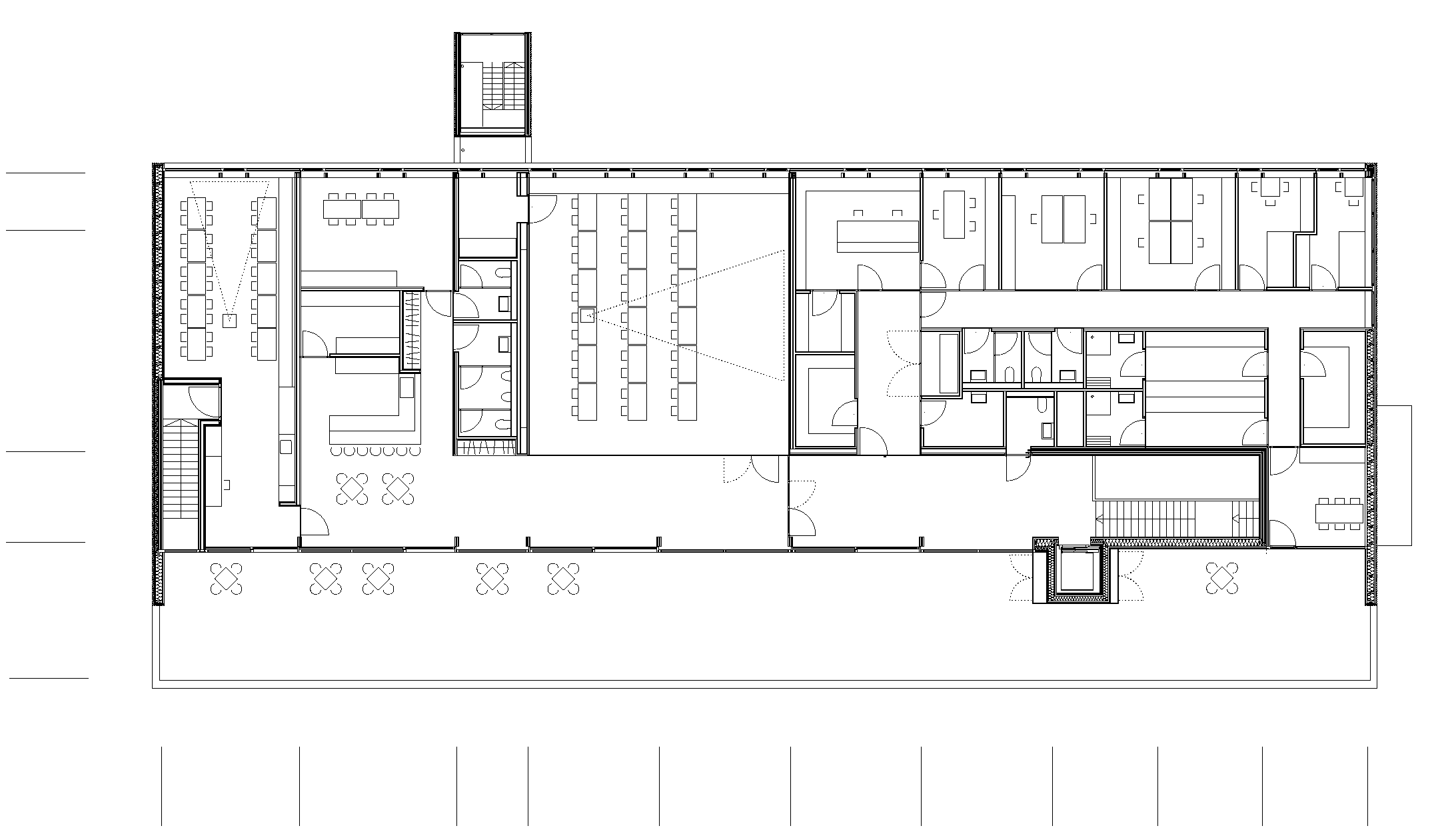
Das Obergeschoß ist gegenüber dem Erdgeschoß versetzt angeordnet, wodurch eine überdachte Zone über den Garagentoren entsteht und nach Westen zur weiten Wiese eine breite Terrasse, deren Mehrwert sich noch in der Nutzung entfalten darf. Der freistehende Schlauchturm auf dem Vorplatz eignet sich auch bestens für Übungszwecke.
Ab der Kellerdecke und bis auf wenige Wandscheiben der Waschbox handelt es sich um eine reine Holzkonstruktion. Sie besteht aus Brettsperrholzelementen für tragende Wände, Holzrahmenelemente für die Außenwände, Holz- Beton-Verbunddecken aus Brettstapelelementen als Decke über dem Erdgeschoß, das Dach als Multibox-Hohlkastenelement. Die Fußböden bestehen unten teils aus geschliffenem, teils aus beschichtetem Betonestrich, im Obergeschoß aus Holz. Werkstoff Holz ist auch beim Innenausbau (Wand-Deckentäfer) vorherrschend. Angenehme Haptik, viel Licht und großzügige angenehme Räume geben dem Haus eine eigene Atmosphäre.
Das Gebäude überzieht ein Fassadenkleid aus Fichte. Bei der sogenannten Rollschalung werden die schmalen Bretter überlappend vertikal aneinandergereiht und erinnern in ihrem Aussehen einem gefältelten Stoff.






































