Drei mal drei.
Die Umsetzung eines gemeinnützigen Wohnbauprojektes im international renommierten Wintersportort Lech am Arlberg stellt eine besondere Bauaufgabe dar. Diese exklusive Lage treibt die Quadratmeterpreise der Mietobjekte in die Höhe und macht leistbares Wohnen zu einer Herausforderung. Die Kosten müssen daher scharf kalkuliert werden, doch dürfen Sparmaßnahmen nicht an den falschen Stellen ansetzen, um Lebensqualität und Wohlbefinden der Bewohner zu gewährleisten.
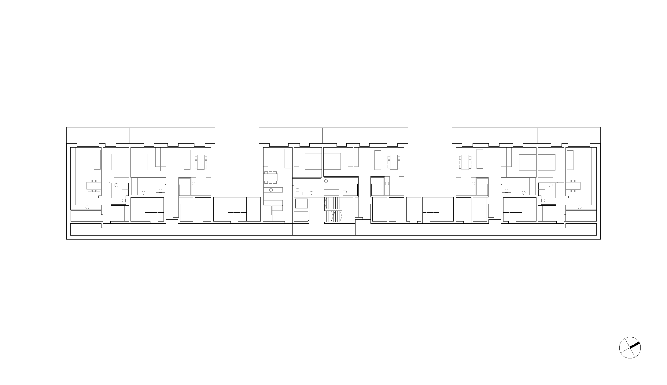
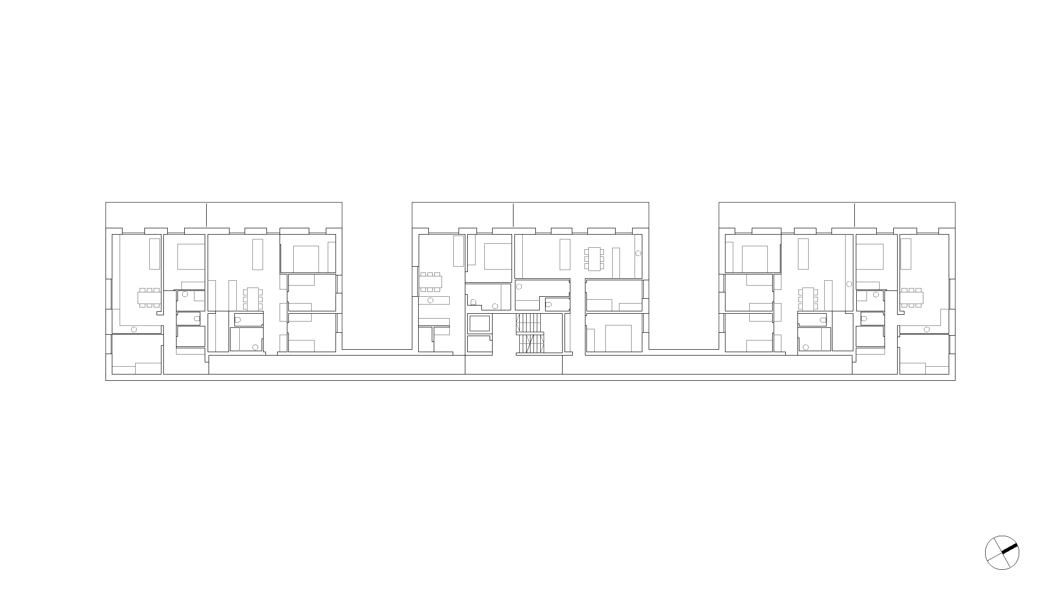
An einem steil nach Westen abfallenden Hang im Ortsteil Stubenbach sollten 18 Wohneinheiten mit je zwei bis vier Zimmern entstehen. Um die Körnung des umliegenden Quartieres aufzunehmen und eine optimale Belichtung sicherzustellen, wurde das Volumen in drei parallel stehende, analog dimensionierte Baukörper gegliedert. Diese sind durch eine Tiefgarage und die kostengünstig konzeptionierte, gemeinsame Erschließungsanlage an der Geländeseite miteinander verbunden. Die Gebäudetrakte verfügen über drei Geschosse, in denen jeweils zwei unterschiedlich geschnittene Wohnungen angelegt wurden, die sich zu großzügigen vorgelagerten Balkonen öffnen. Hier können die Mieter das Bergpanorama und die Nachmittagssonne genießen. Die Einheiten im Erdgeschoss weisen kleinere Dimensionen auf, da auch die allgemeinen Abstellflächen dort untergebracht sind. In den Stockwerken darüber ermöglicht die segmentierte Gebäudestruktur eine Orientierung der Grundrisse nach zwei Richtungen.
Das Gebäude wurde in Massivbauweise errichtet, die asymmetrischen Satteldächer in Blech gedeckt. Eine feine Vertikalschalung aus Fichtenbrettern umhüllt die Volumen, auch Fenster und Türen konnten in Holz ausgeführt werden. Wände und Decken der Innenräume sind ganz in schlichtem Weiss gehalten, die Böden hingegen mit hochwertigem Eichenparkett belegt. Geheizt wird mit Fernwärme aus Biomasse und eine kontrollierte Lüftung sorgt für die Wärmerückgewinnung im behaglichen Niedrigenergiehaus.




















