Go West: Technologietransfer an den Pazifik.
Die University of British Columbia (Vancouver, Kanada) erstellte einen Holzbau mit großen Ambitionen. Das Wohnheim für 400 Studierende von Brock Commons ist bei seiner Fertigstellung mit 53 Metern Höhe das höchste Gebäude aus Massivholz – weltweit. Für die Universität ist es bereits der achte Holzbau in Massivbauweise, für die Holzwirtschaft der Region bringt die Art der Fertigung einen Innovationsschub. Hermann Kaufmann Architekten haben den Bau als „Tall Wood Advisors“ begleitet und ihre Erfahrung mit effizienten Holzstrukturen eingebracht.
»Dieses bemerkenswerte Gebäude, das erste in dieser Art auf der Welt, ist ein weiteres leuchtendes Beispiel kanadischen Einfallsreichtums, eine gute Demonstration wie Kanadas Forstindustrie neue Möglichkeiten durch Technologie und Innovation findet.«
Jim Carr, Kanadas Minister für natürliche Ressourcen
Die Holzwirtschaft dominiert in British Columbia. Die waldreiche Provinz im Westen Kanadas exportiert jedes Jahr Holzprodukte im Wert von rund 10 Mrd. Euro. Wenig erstaunlich, dass der Baustoff in der Region eine lange Tradition hat – was hingegen erstaunt, ist der niedrige Innovationsgrad der Bauindustrie. Es herrschen konventionelle Konstruktionen vor: im kleinen Maßstab kommt die bewährte Baloon-Frame-Bauweise zum Einsatz, und auch bei größeren Gebäuden besteht das Tragwerk meist aus einem herkömmlichen Rahmenbau. Mit massiver Bauweise und der modularen Vorfertigung hat die lokale Bauwirtschaft erst wenig Erfahrungen gesammelt.
Laut der Website des lokalen Branchenverbands naturallywood.com sieht die Holzindustrie in British Columbia ein enormes Potenzial in der Nutzung von massiven Holzbaustrukturen. Sie sind in ihren Eigenschaften vergleichbar mit einer Stahl- oder Stahlbetonkonstruktion, übertreffen diese aber deutlich bezüglich Nachhaltigkeit und Bauzeit. Damit lassen sich insbesondere große Gebäude effizient und wirtschaftlich in Holz erstellen.
Weiterlesen
Die Bauweise in massivem Holz soll nun das Studentenwohnheim der University of British Columbia (UBC) propagieren. Der 18-geschossige Holzbau im Campus Brock Commons demonstriert mit rund 15’000 m² Nutzfläche die Effizienz des Baustoffes. Um Holzbauten in die Höhe wachsen zu lassen, haben die lokalen Behörden bereits 2009 die maximale Geschosszahl von vier auf sechs erhöht. Für das 53 m hohe Wohnheim reichte diese Änderung natürlich nicht. Der Campus verfügt über eine eigenständige Bauverwaltung und das kanadische Baugesetzt kennt Regeln für Ausnahmebewilligungen im Rahmen einer „site-specitic regulation“. Diese beiden Faktoren ermöglichten einen Holzbau in dieser Dimension, doch die Auflagen bezüglich Erdbebesicherheit und Brandschutz waren strenger als bei einem Stahl- oder Stahlbetonbau.
Der Bewilligungsprozess war dementsprechend aufwändig: Neben einem Peer-review beurteilte ein Ausschuss aus Brandschutzexperten, Wissenschaftern, Behörden und Feuerwehrleuten die Konstruktion. Um die Widerstandsfähigkeit der Holzkonstruktion gegen Brand zu erhöhen, sind die Holzbauteile in Gipskarton eingepackt. Lediglich im obersten Geschoss, das als Aufenthaltsraum für die Studierenden dient, ist die Konstruktion sichtbar und bietet einen anschaulichen Blick auf die Bauweise des Hochhauses. Ein redundantes System versorgt die Sprinkleranlage auch dann noch mit Wasser und Strom, wenn die Anschlüsse an das öffentliche Netz unterbrochen sind.
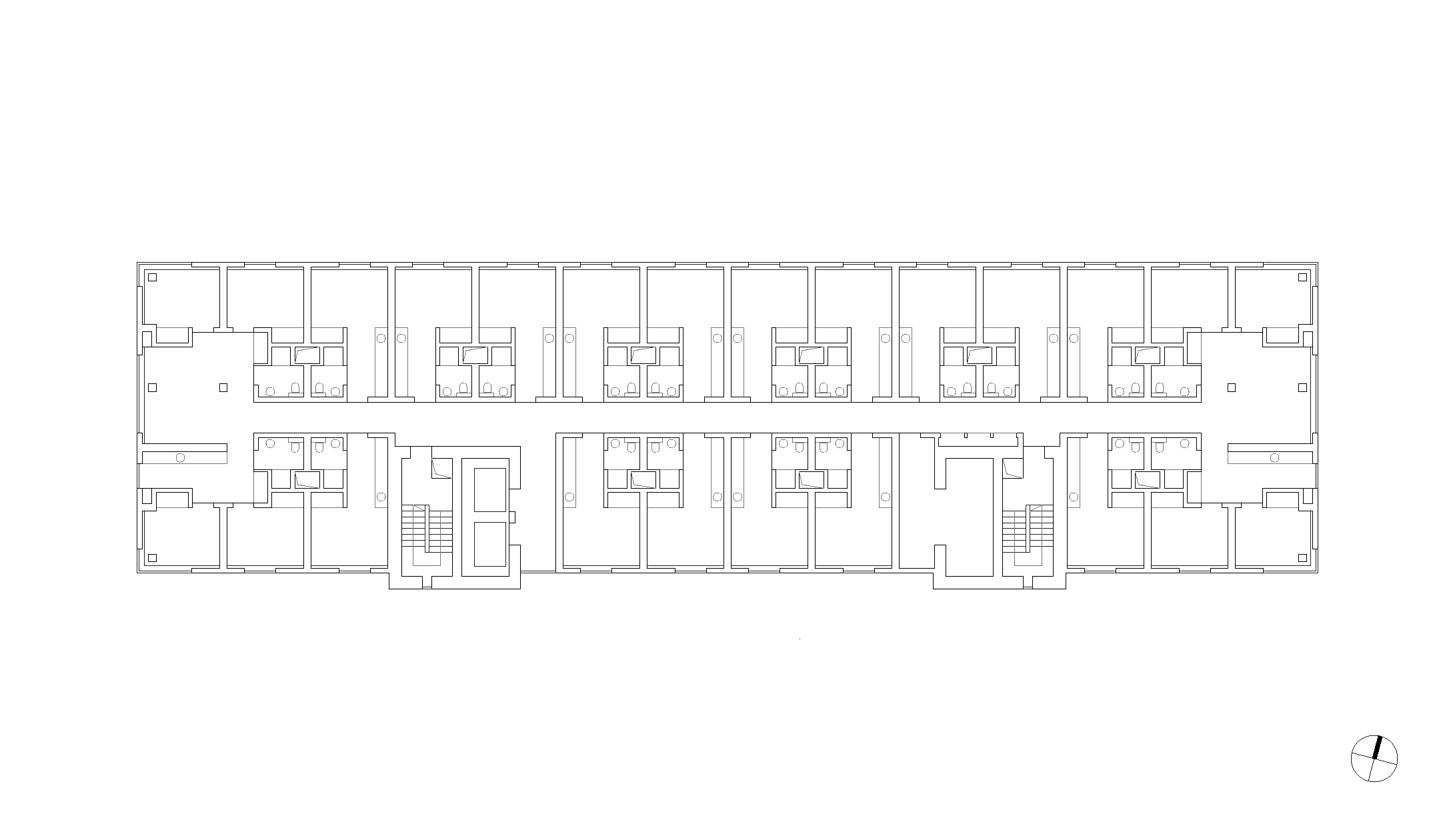
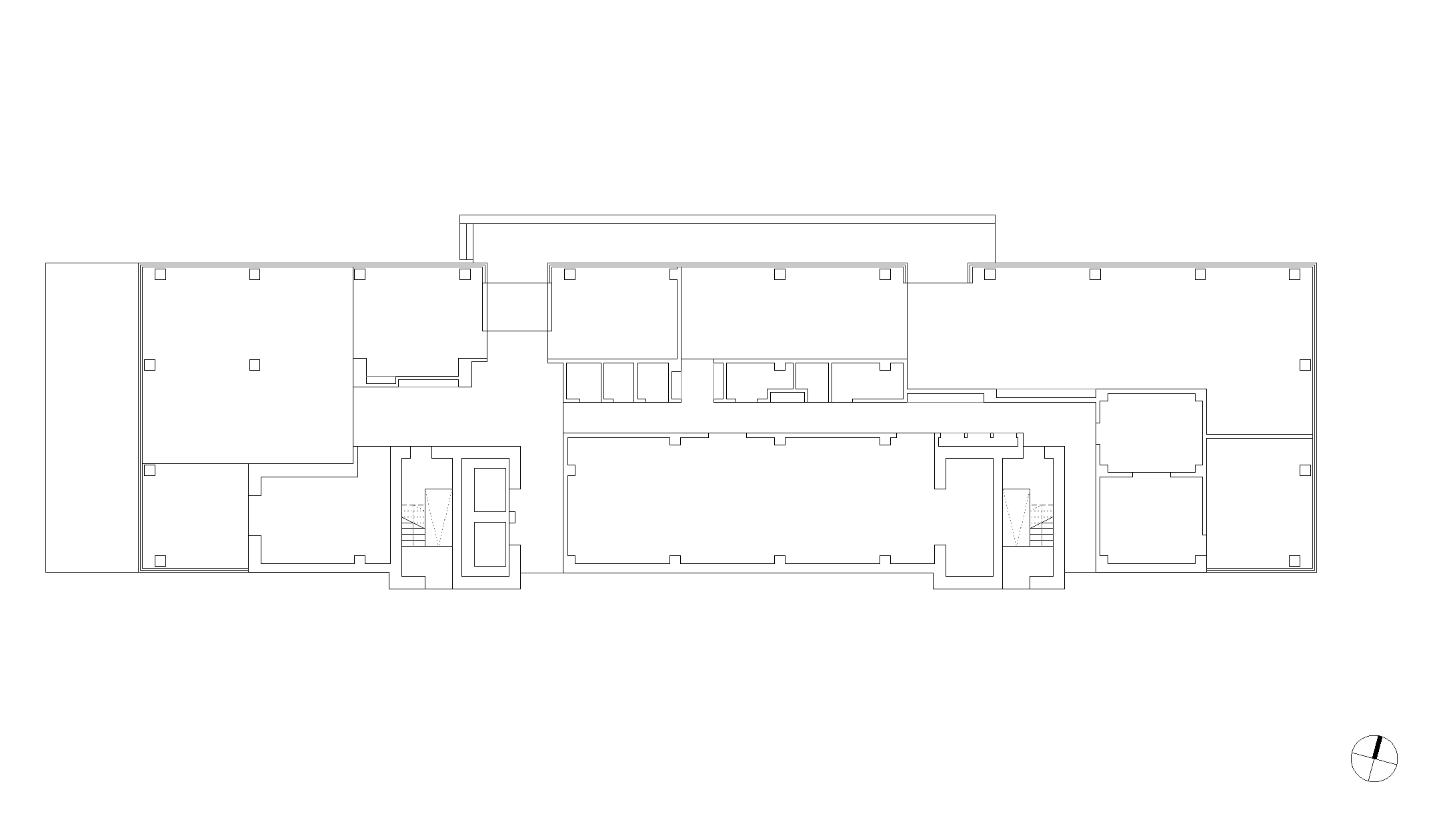
Die Stützen des modularen Holzbaus bestehen aus Leimbindern der Dimension 26 x26 cm. Sie sind auf dem Grundriss von 15 x 56 m in einem Raster von 2.85 x 4 m angeordnet. Auf den Stützen liegen Deckenplatten aus Brettsperrholz, sogenanntem Cross-Laminated-Timber (CLT), in fünf Schichten und einer Gesamtstärke von 16,6 cm. Die versetzt angeordneten Zwei- und Dreifeldplatten sind zweiachsig gespannt und ermöglichen dadurch eine Decke komplett ohne Unterzüge. Neben einer schnellen Montage bringt dies den Vorteil, dass die technische Gebäudeausrüstung einfach verlegt werden kann. Der Schubverbund zwischen den einzelnen CLT Platten wird mit einer versenkten 3-Schicht-Platte hergestellt. Damit entsteht aus den Einzelplatten eine statisch nutzbare Scheibe. Alle horizontalen Kräfte (Wind Erdbeben) werden über Stahlbänder aus dieser Scheibe in die betonierten Stiegentürme übertragen. Die Holzstützen tragen die vertikalen Lasten ab und geben sie weiter auf eine Stahlbetonkonstruktion im Erdgeschoss. Das Wohnhaus konnte innert kürzester Zeit errichtet werden: Pro Woche wuchs die Baustelle um zwei Geschosse an.
Der Ausdruck des Gebäudes passt sich der nüchternen und modernistischen Sprache des gesamten Campus an. Die Fassaden bestehen aus der in Kanada üblichen Stahlrahmen-Konstruktion mit einer Verkleidung aus Hochdruck-Schichtpressstoffplatten aus Holz und Papier, wobei sich Elemente mit großformatigen Trespa Platten und raumhohen Fenstern abwechseln. Verglasungen über Eck lösen das Volumen auf, ein Gesims aus Metall krönt das Gebäude. Ein Sonnendach aus CLT entlang des Sockels trägt die warme Atmosphäre der Gemeinschaftsräume nach außen. Die Vorräume der Aufzüge sind im Bereich der Studentenwohnungen mit dem gleichen material verkleidet wie die Fassaden. Die Korridore weisen Türen aus Holz und farbliche Akzente in Umbra und Ocker auf. Das Interieur der 305 Studios und Vierereinheiten ist sparsam und einfach gehalten: die warmen Farben des Teppichs und des Schreibtisches ergänzen die hochweißen Oberflächen. Die Sicht auf den Ozean und die Berge ist spektakulär.
Neben dem industriellen Know-How-Transfer sind ambitionierte Ziele bezüglich Nachhaltigkeit angestrebt: Das Label LEED-Gold soll erreicht und der Standard ASHRAE 90.1-2010 (Energy Standard for Buildings Except Low-Rise Residential Buildings) erfüllt werden. Gegenüber einem konventionell erstellten Gebäude muss das neue Wohnheim 25% graue Energie und Verbrauch aus dem Betrieb einsparen. Einen wichtigen Beitrag zum Schutz der Umwelt hat die Bauherrschaft bereits mit der Wahl des Baumaterials geleistet: Die Konstruktion aus Vollholz spart ein Volumen von 2.650 m³ Beton ein, was einem Aequivalent von rund 500 Tonnen CO2 entspricht.
Das Studentenwohnheim ist ein wichtiges Pilotprojekt für die Massivbauweise in Holz. Um die ökologischen Qualitäten dieser Bauart zu einem relevanten Faktor zu machen, muss sie jedoch in den unterschiedlichsten Maßstäben und Nutzungen zur Anwendung kommen – sowohl bei sichtbarer Anwendung wie auch als Konstruktionsholz. Um diese Bauweise zu propagieren, wurde das Projekt im Rahmen der „Tall Wool Buildings Demonstration Project Initiative“ finanziell unterstützt, weitere Beiträge stammen von der Provinz British Columbia, dem Binational Softwood Lumber Council und FPInnovations.

































