schlicht & dicht
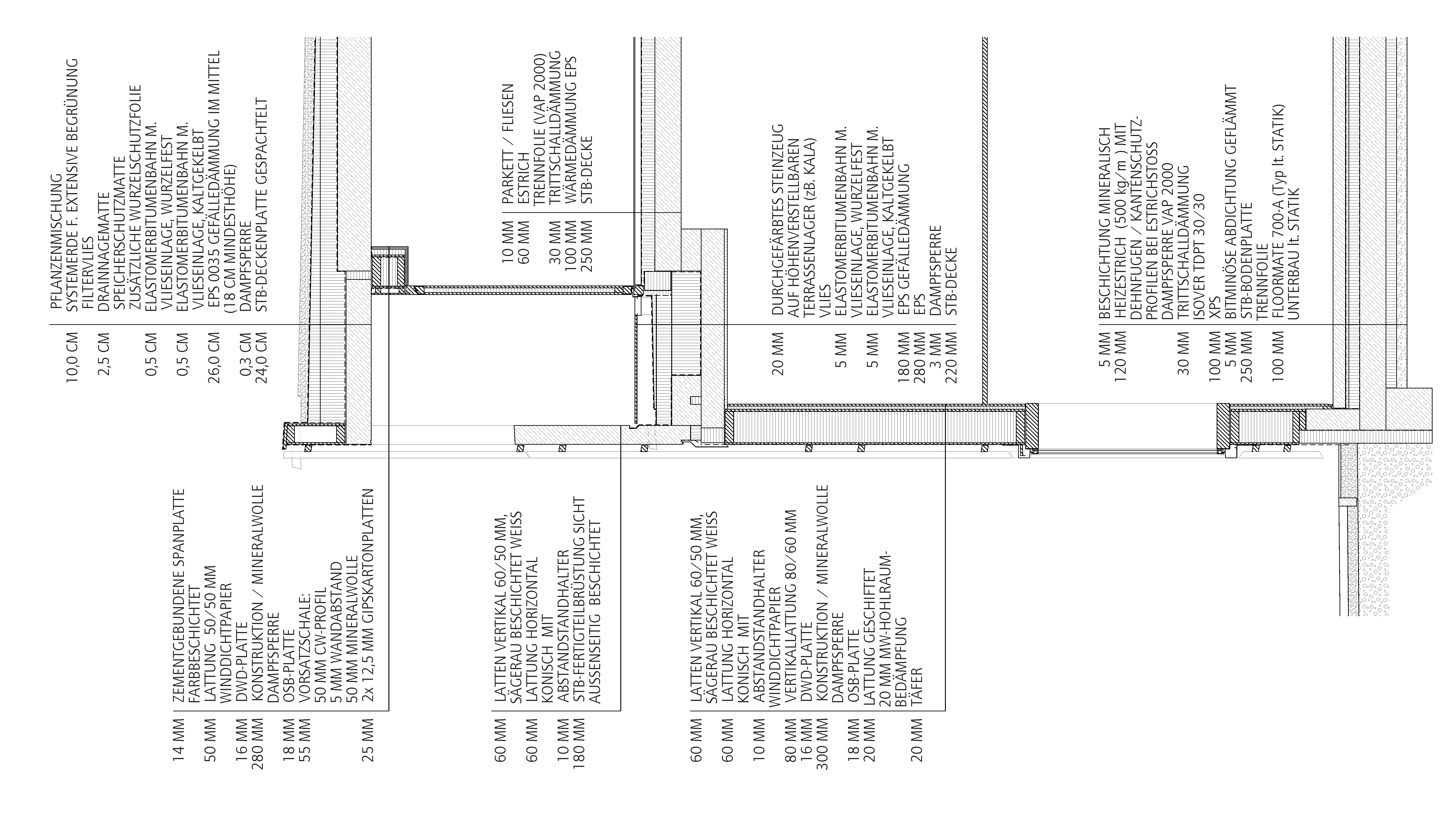
Am Saum zwischen den Gewerbeflächen und Wohnquartieren der Marktgemeinde Frastanz markiert das zurückhaltende Volumen den Kreuzungsbereich von zwei stark frequentierten Hauptverkehrsadern. Die Kunden des regionalen Nahversorgers betreten die doppelstöckige Verkaufshalle vom Parkplatz aus über eine gedeckte Vorzone und den behaglich gestalteten Bistro-Bereich, der sich zur Abendsonne öffnet. Im Sinne einer städtebaulichen Verdichtung konzipierten die Planer im Obergeschoß zehn Wohnstudios. Diese werden durch einen schallabsorbierenden Laubengang auf der Straßenseite erschlossen und orientieren sich über großzügig dimensionierte Loggien nach Süden. Die gesamte Anlage nutzt keine fossilen Energieträger; so erfolgt die Heizung des Marktes ausschließlich über die Wärmerückgewinnung aus der Kühlanlage.

















