Unter Arkaden ruhen und genießen.
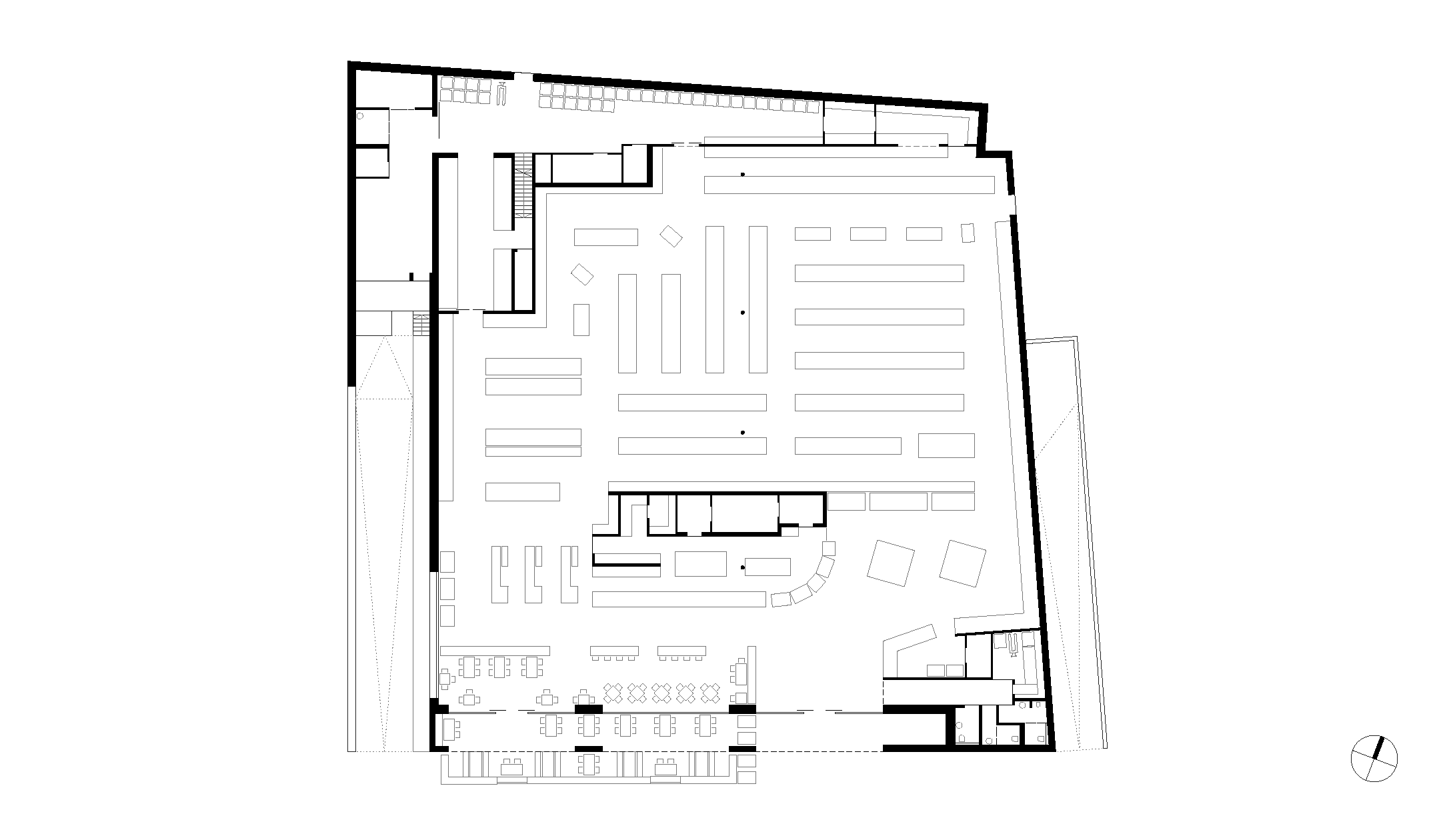
Ein kompakter Baukörper ersetzt den nicht mehr zeitgemäßen großflächigen Supermarkt in der Mischzone nördlich des Bahnhofs von Rankweil. Der frei gespielte Außenraum wird durch sorgfältig gesetzte Bepflanzungen strukturiert, um übersichtliche Erschließungswege und ebenerdige Parkmöglichkeiten zu schaffen.
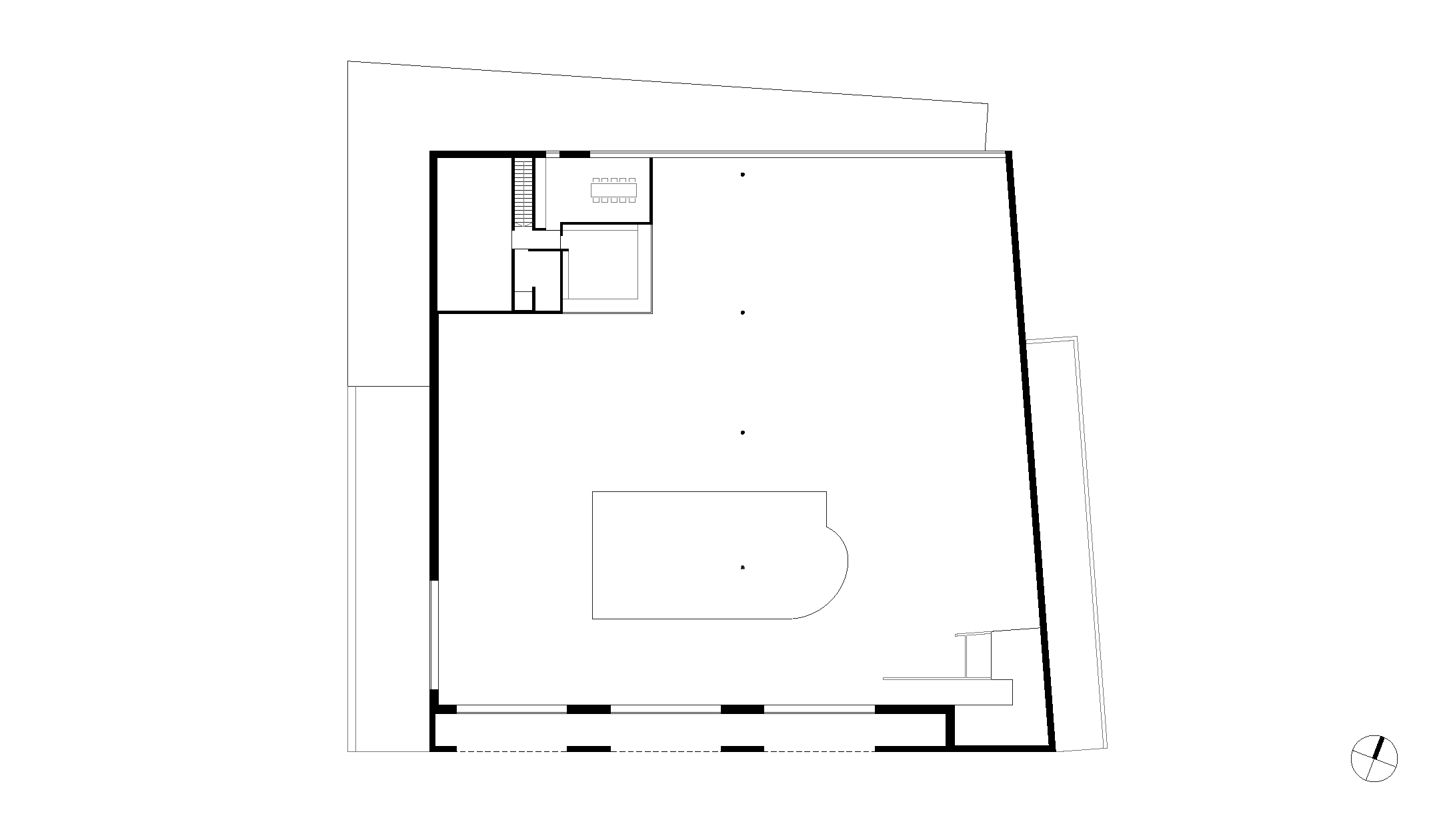
Im massiven Bestand des Untergeschosses sind Technikräume, Personalgarderoben sowie betriebsinterne Tiefgaragenplätze eingerichtet, welche eine Rampe an der Ostseite des Gebäudes erschließt. Der darüber errichtete Neubau ist in Hybridbauweise ausgeführt. Das zentrale Volumen wurde als reine Holzkonstruktion mit weitspannendem Dachtragwerk gefertigt. Der Hauptträger läuft in Längsrichtung durch die Mitte der Halle und verfügt über Stützweiten von etwa 9 Metern zwischen den Auflagern aus Stahl-Hohlprofilen. Die schlank dimensionierten Nebenträger sind in dichten Abständen auf der selben Ebene angeordnet und spannen über 20 Meter zu den Umfassungswänden.
Eine Servicezone legt sich als winkelförmiger Baukörper aus Sichtbeton um die Rückseite des Volumens. Ebenso massiv ausgeführt und als Fertigteilkonstruktion vor das Gebäude gestellt wurde der Arkadengang an der Hauptfassade. Dieses zeitlose Architekturmotiv gliedert den Raum zwischen den Verkehrsflächen und der Verkaufs- und Gastronomiezone der Haupthalle. So entsteht ein Ort der Ruhe, der seine Besucher vor Witterungseinflüssen oder zu starker Sonneneinstrahlung schützt und als Sitzbereich des Bistros zum Verweilen und Genießen einlädt.
Da alle Außenflächen des Hauptvolumens mit lasierten Fichtenbrettern belegt sind, erscheinen nur die Zwischenzone des Bogenganges sowie die feinen parabelförmigen Lisenen an der Fassade als Betonoberflächen. Der Innenraum ist mit Wandelementen aus Grobspanplatten ausgekleidet und wird so in Verbindung mit dem sichtbaren Dachtragwerk als geschlossener Holzkörper wahrgenommen. Die große Halle erfährt dadurch eine warme und behagliche Atmosphäre in der eine angenehme Akustik wirkt.









