Den Marktplatz den Kunden öffnen.
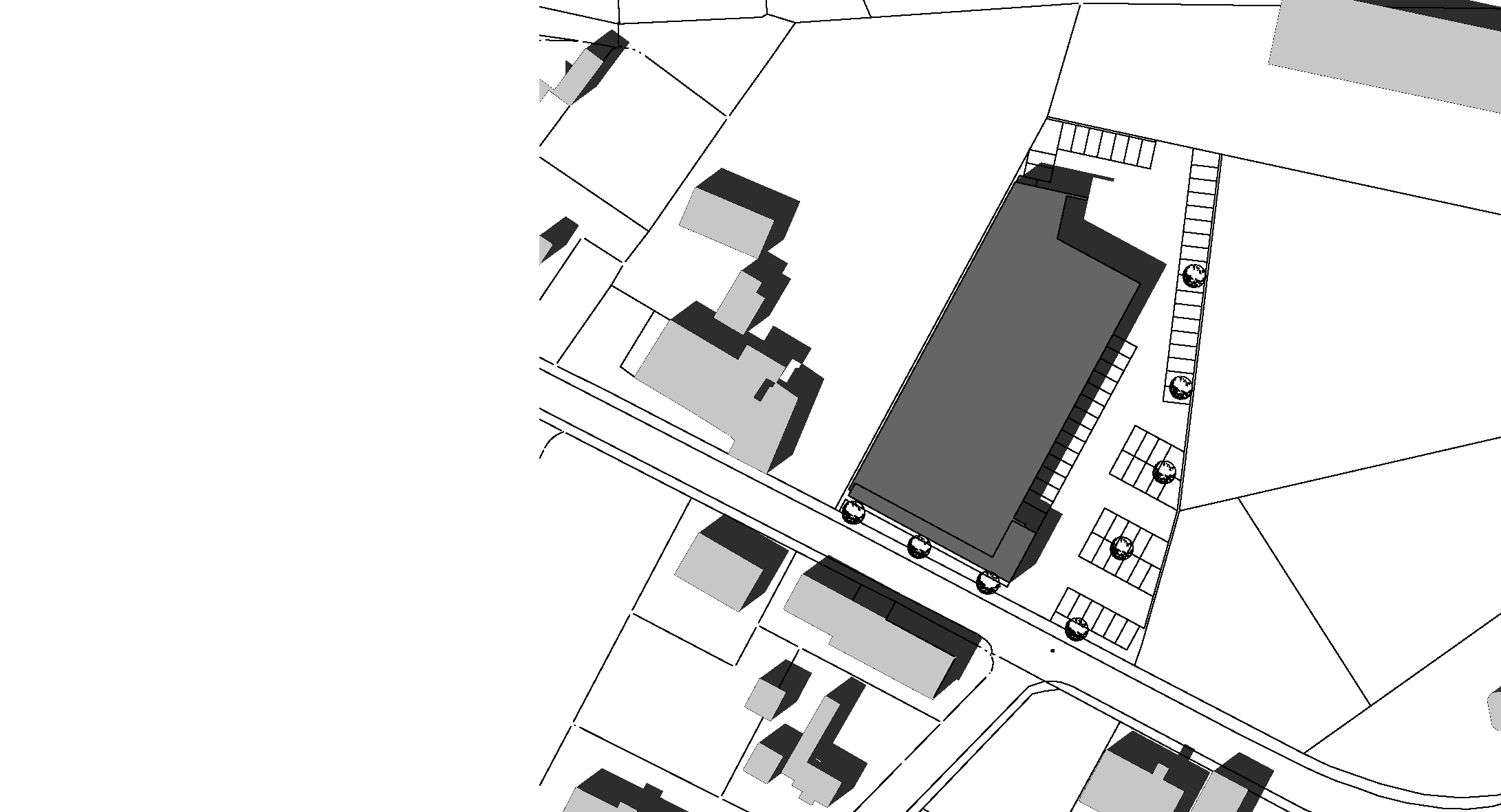
Die Firma Sutterlüty stellt beim Neubau der Filiale in Dornbirn, Rohrbach die Marktidee ins Zentrum ihrer Überlegungen. Sie möchte ihren Kunden das angenehme Gefühl wieder vermitteln, in einer Markthalle den täglichen Einkauf zu erledigen.
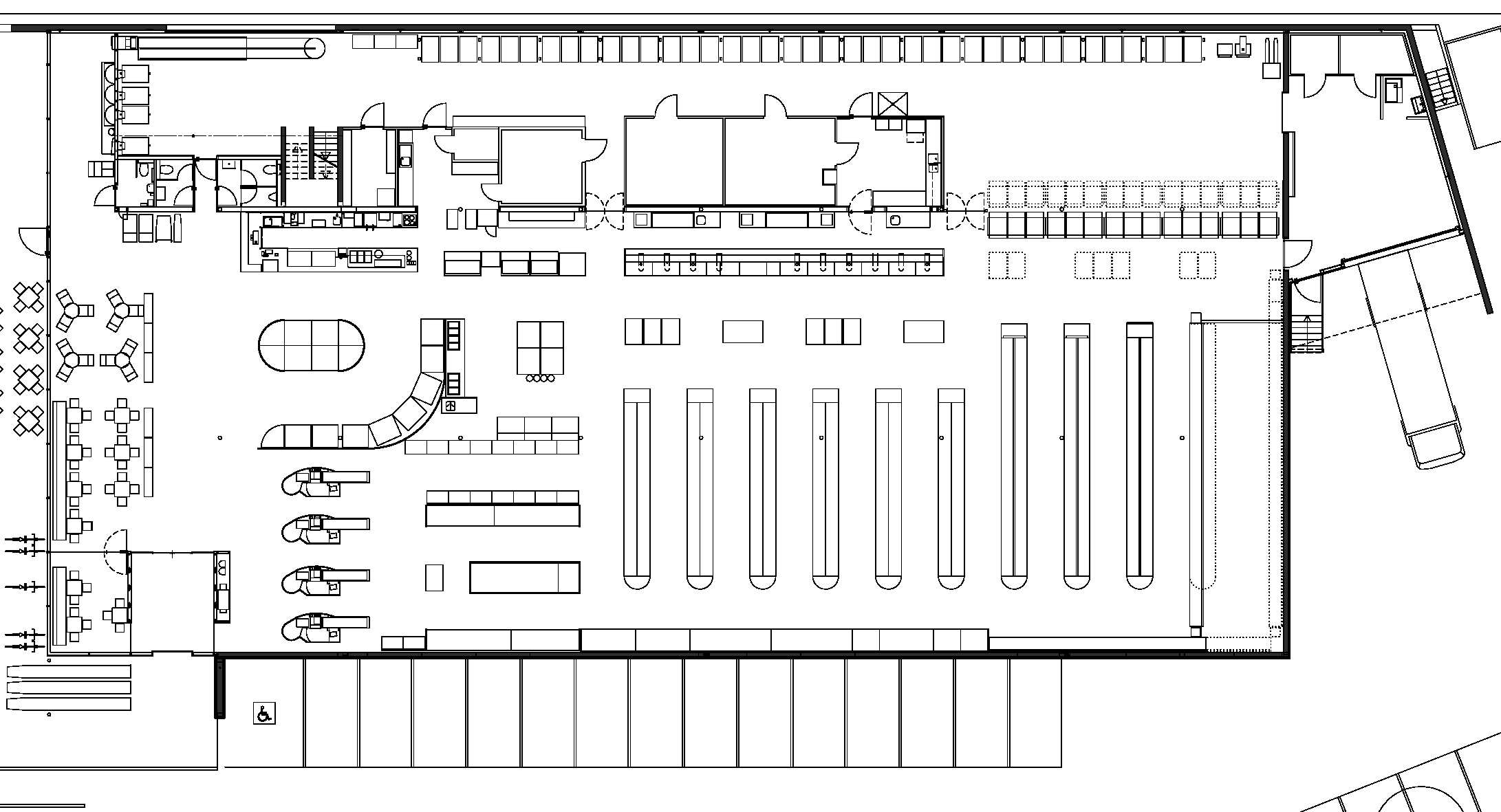
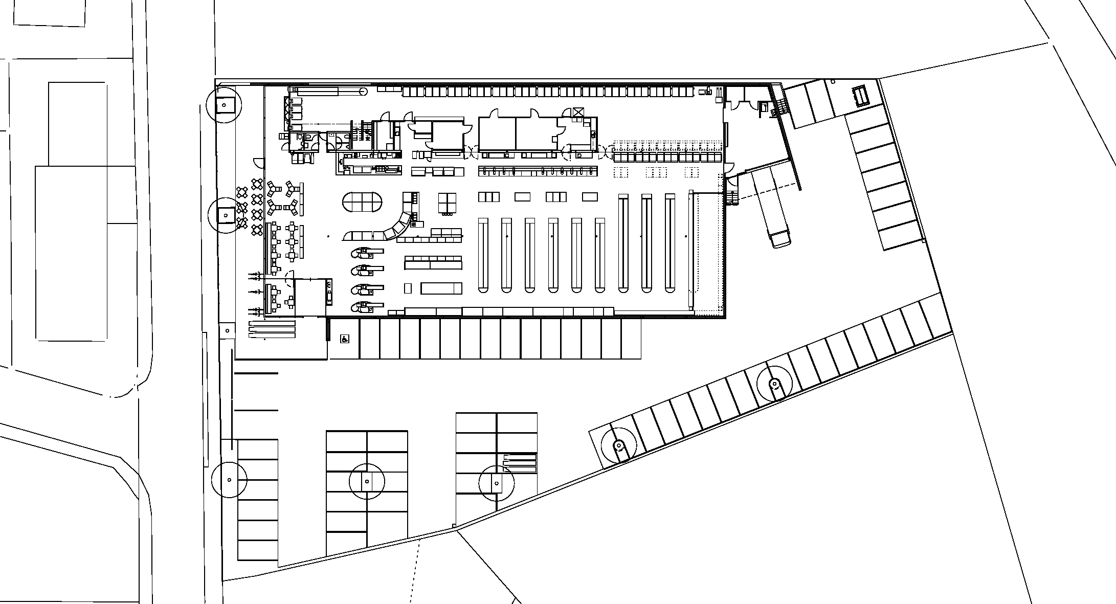
Schon vor dem Eintritt steht man nicht vor einem geschlossenen Gebäude, mit Werbung verklebt und sucht die schmale Öffnung des Einganges, sondern großzügige Glasfronten machen neugierig auf das dahinter liegende. Nach Betreten der Halle wird der Kunde von einer duftenden Cafebar empfangen, die der Anfang der großzügigen Frischeabteilung ist. Hier kann man das ursprüngliche Flair des alten Marktes wieder erleben, einen schnellen Jausen- oder Obsteinkauf tätigen, ohne durch ein Regalla-byrinth laufen zu müssen, mit Verkäufern reden oder sogar mit Freunden oder Bekannten in gemütlicher Atmosphäre einen „Schwatz“ abhalten und einen Kaffee oder Tee trinken. Von diesem Marktplatz hat man die Übersicht auf die Regalzeilen, sodass man seine Waren ohne langes Herumirren auch findet.
Das ganze geschieht in einem hellen, luftigen, hohen Raum, mit Sicht nach außen und gebaut aus Holz, dem Baustoff unserer Region. Dabei wird die Philosophie der Firma Sutterlüty – Ländle und Ländle pur – baulich Ausdruck verliehen, zumal die Architektursprache sich ebenfalls zur regionalen Szene bekennt.







