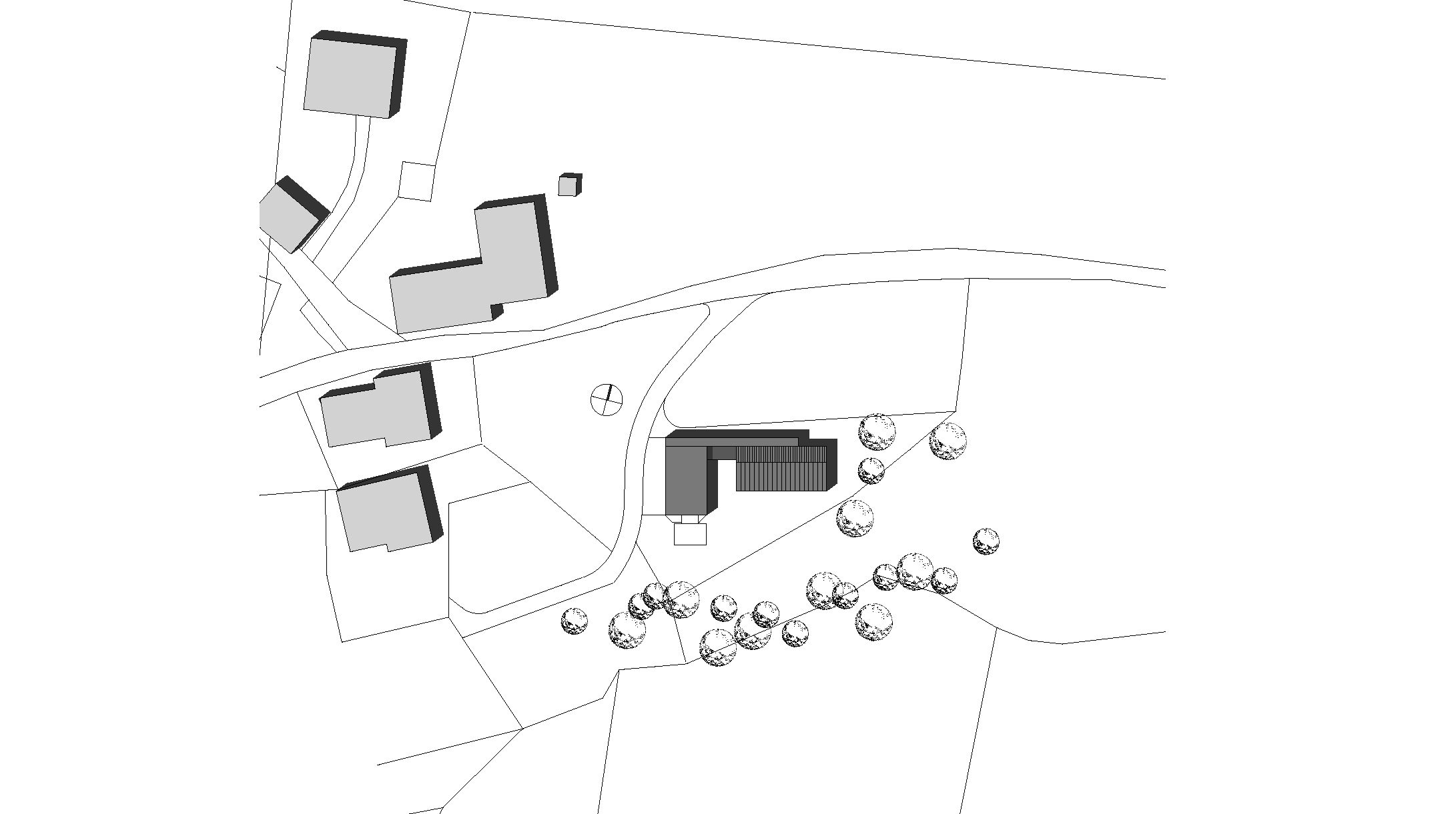
Das Haus ist oberhalb der Gemeinde Egg in einem historischen Weiler situiert. Dieser ist geprägt vom relativ freistehenden alten Bregenzerwälder Bauernhäuser und deren verwitterten Kleidern aus Holz. Somit war es naheliegend, auf diese Situation eine moderne Antwort zu finden. Baumaterial, Proportion und Dachform bilden die Klammer mit den alten Häusern. Die Formensprache sowie die Details sind zeitgemäß entwickelt.
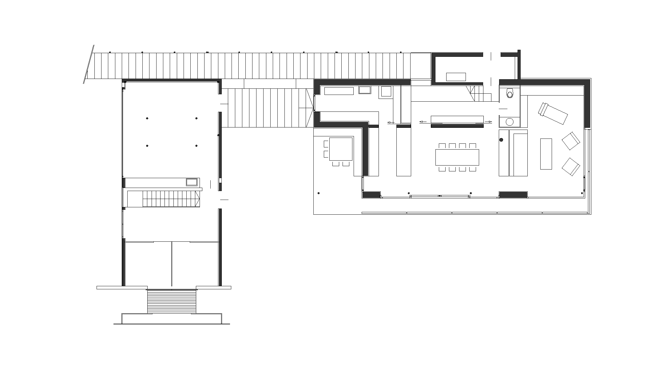
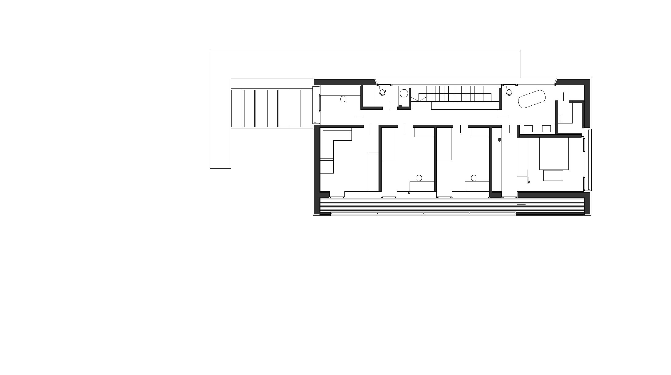
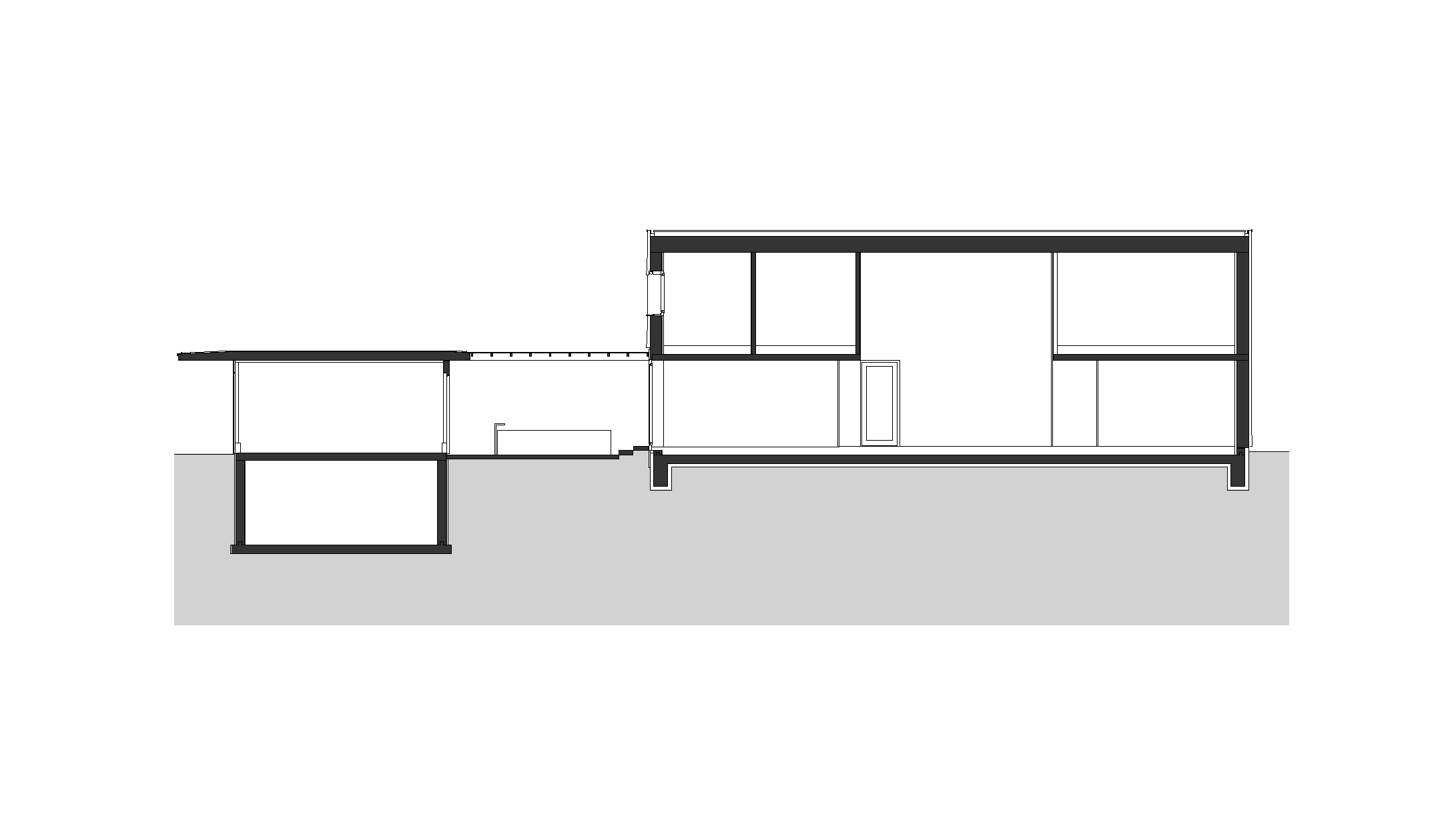
So reagiert das asymmetrische Dach auf die grundrissliche Struktur, die Öffnungen sind nach energetischen und funktionalen Gesichtspunkten wohl überlegt entwickelt. Die glatte und karge Nordseite steht im Kontrast zur offenen und plastisch ausgebildeten Südfassade, ebenso das steile Norddach das mit Holzschindeln gedeckt ist und mit dem flachen Süddach mit Kupferdeckung. Bewusst inszeniert ist auch die energetische Qualität des Passivhauses durch die Ablesbarkeit der stark gedämmten Außenwände.
Die notwendigen Zubauten dieses Hauses für einen Tierarzt sind nur angelehnt und versuchen die Eigenständigkeit des Hauptbaukörpers nicht zu beeinträchtigen. Sie erzeugen durch ihre Situierung windgeschützte Außenbereiche und bewusst setzen sich die Zubauten auch in der Materialsprache ab. Die Innenräume sind ebenfalls von der heimischen unbehandelten Weißtanne geprägt und vermitteln das Wohngefühl der alten Nachbarhäuser.












