Ein Haus für die Wissenschaft in alpiner Höhenlage.
Die Technische Universität München wählte ein Waldstück auf 1.262 Metern Seehöhe über der Nationalparkstadt Berchtesgaden als Baugrund für ihre Forschungsstation. Um den Boden zu schonen und überflüssige Aufschüttungen zu vermeiden, bindet sich das dreistöckige Volumen schlüssig in den Geländeverlauf.
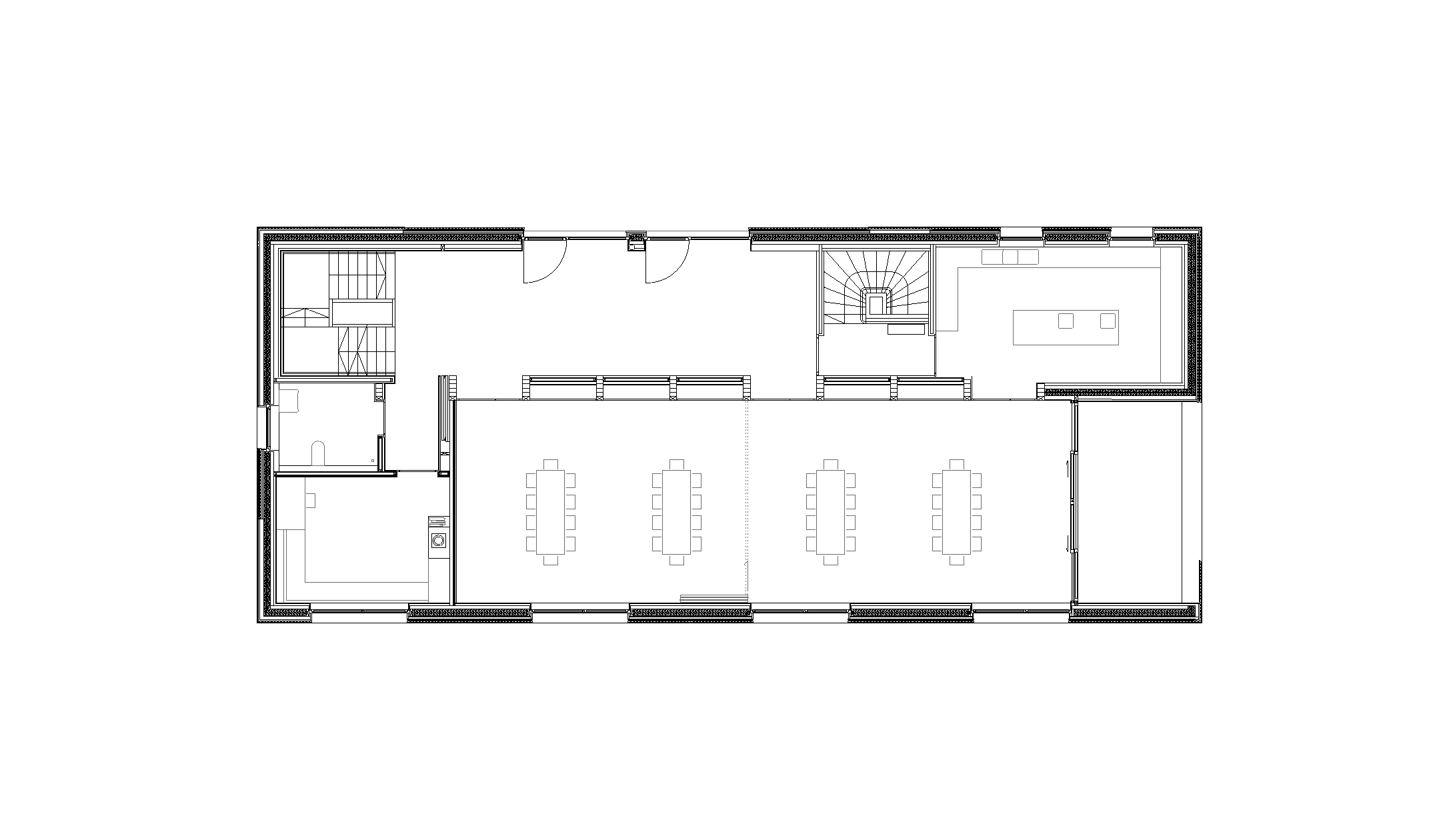
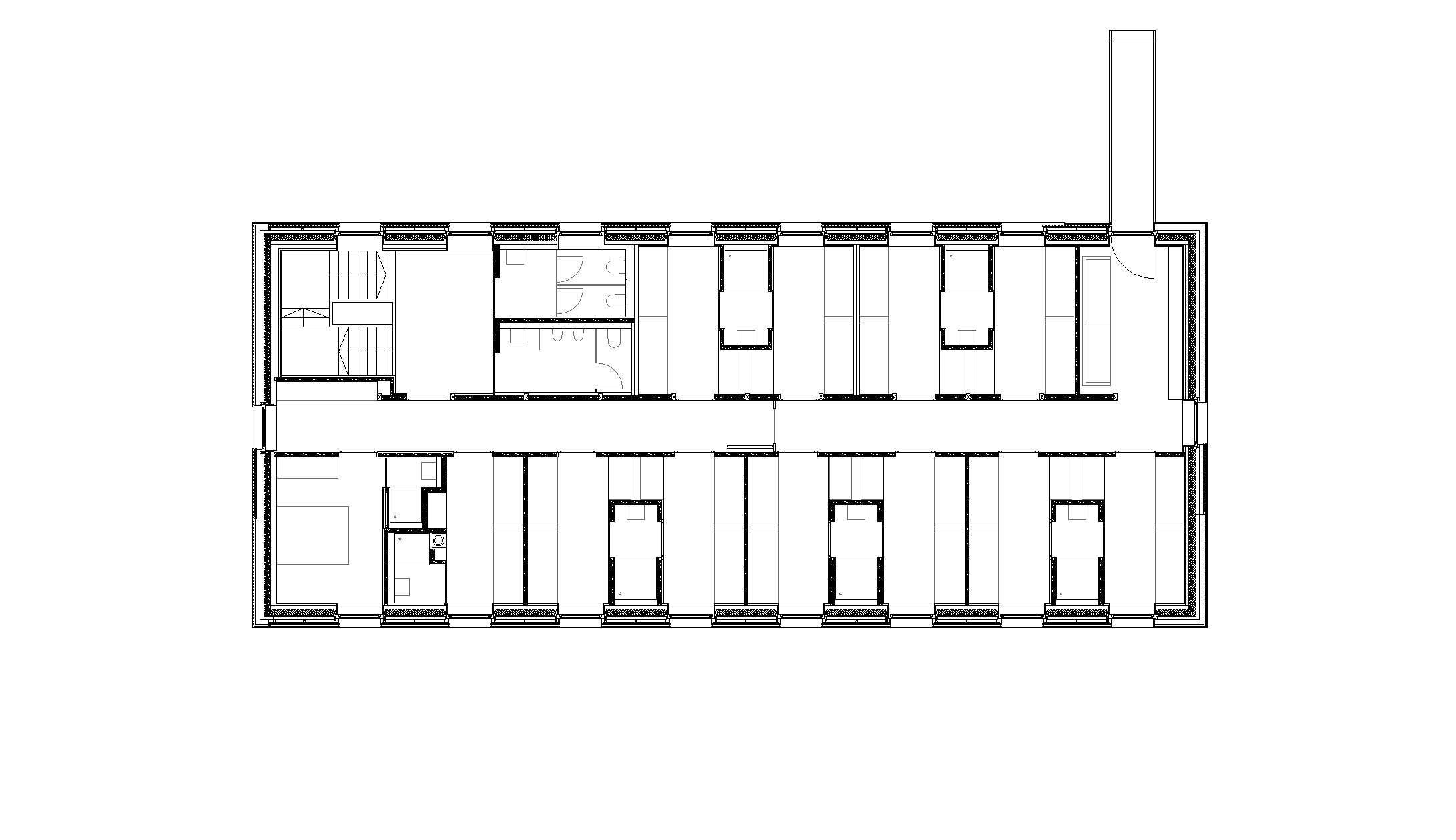
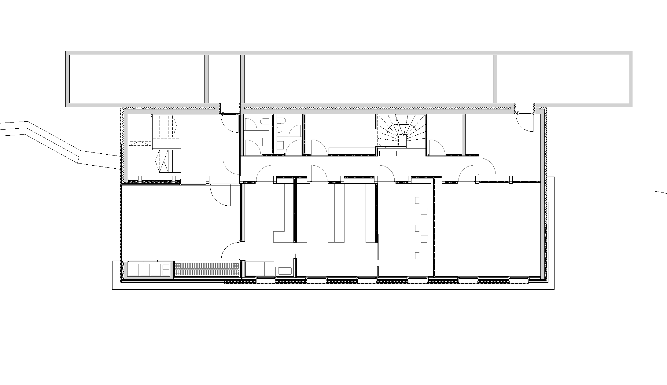
Das Untergeschoss steht an seiner Rückseite im steil abfallenden Hang, so können alle drei Ebenen des Gebäudes direkt erschlossen werden. Durch eine großzügig dimensionierte Eingangshalle gelangt der Besucher entweder direkt in das Stiegenhaus oder über einen Trockenraum zu den Laboratorien und Lagern. Im Bereich der Kühl- und Vorratskammern führt eine zweite Vertikalerschließung mit Treppenlift in das darüber liegende Erdgeschoss, welches so barrierefrei zugänglich wird. Der teilbare Gast- und Seminarraum mit Zugang zur überdeckten Terrasse kann durch eine gut ausgestatteten Gastroküche verpflegt werden. Die angrenzende Bürostube verfügt über eine Nasszelle und ist bei Bedarf als rollstuhlgerechtes Gästezimmer zu nutzen. Im oberen Stockwerk liegen die Schlafbereiche für insgesamt 44 Personen. Je zwei der Vierbett-Kojen werden über eine Duschkammer miteinander verbunden, die Räume für Dozenten haben eigene Badezimmer.
Die erdberührten Strukturen des Gebäudes sind in Stahlbeton ausgeführt, alle anderen raumbildenden Bauteile aber in Massivholz. Die Außenwände wurden aus Kreuzlagerholz-Platten errichtet, die Unterkonstruktion des Blechdaches hingegen aus Massivholzdielen, die auch bei den Geschossdecken im Verbundsystem mit Stahlbeton eingesetzt wurden. Sowohl die hinterlüftete Fassade als auch das Holztäfer der Innenräume sind aus unbehandelten Fichtenbrettern gefügt.
Das Hauses wurde als komplett autark konzipiert. Ein leistungsstarkes Hybridmodul aus Photovoltaik und Solarthermie sowie ein Blockheizkraftwerk auf Rapsölbasis sorgen für die Energie- und Wärmegewinnung, während aufbereitetes Oberflächenwasser und eine biologische Kleinkläranlage die sanitären Bedürfnisse abdecken.
























