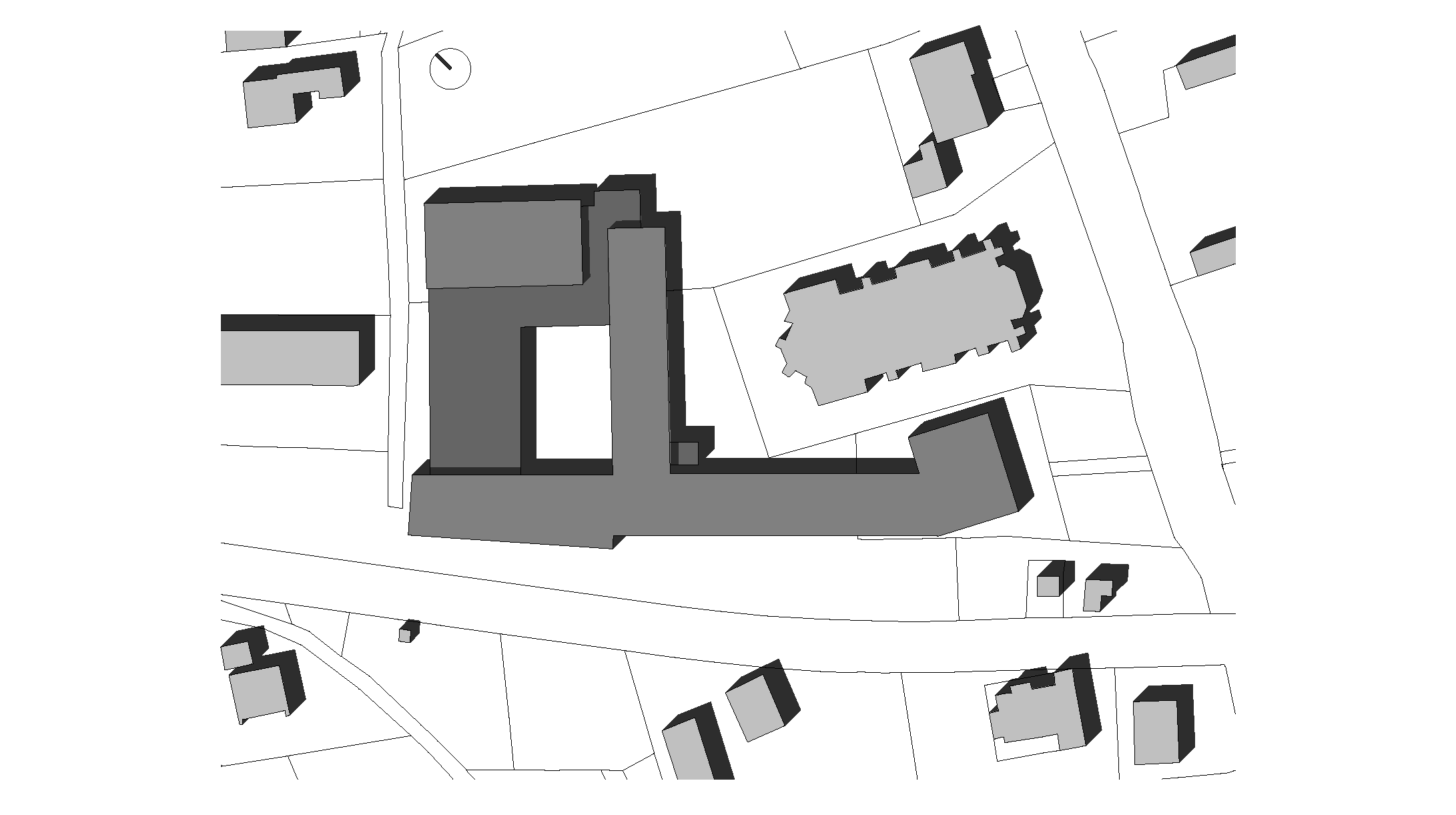
Sanierung und Erweiterung der Volks- und Hauptschule in Schwarzach.
Die bestehende Haupt- und Volksschule, welche in zweiter Reihe hinter der Kirche liegt, kann über klare Wege beidseitig der Kirche erreicht werden.
Durch die Anhebung des Eingangsbereiches wurde eine behindertengerechte Erschließung des Eingangs, welcher sich im Blickfeld und im Bezug zu der Hofsteigstraße befindet sowie eine Neugestaltung des Schul- Kirchhofes möglich.
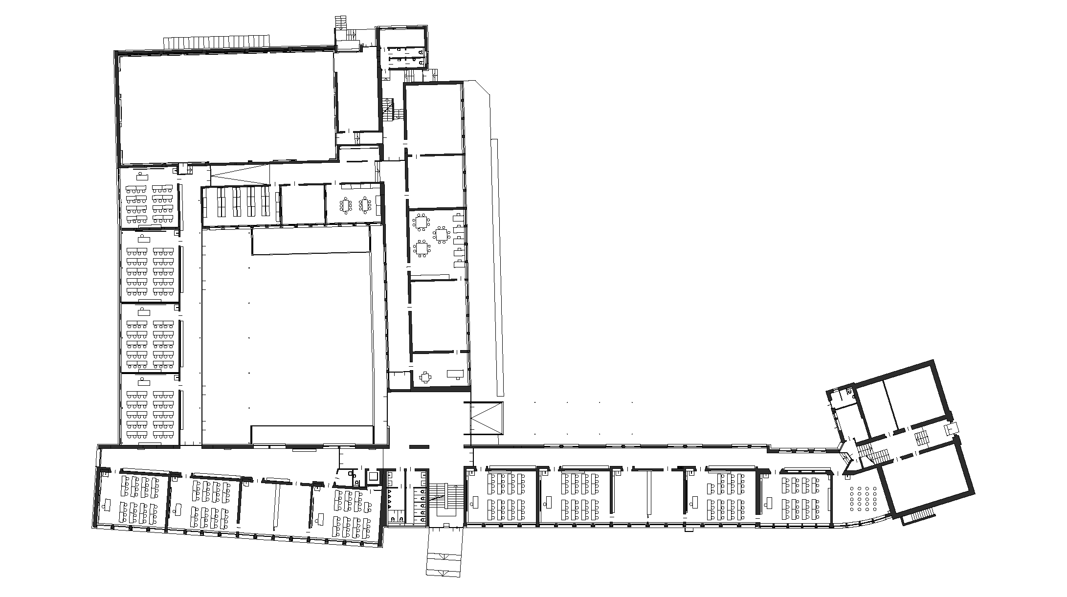
Vom Eingang aus betritt man einen Foyer – Aula Bereich, von welchem auch der neue Innenhof erschlossen wird. Die Erweiterung der Schule erfolgte durch eine Aufstockung in Leichtbauweise in Richtung Westen auf den bestehenden Gymnastikraum.
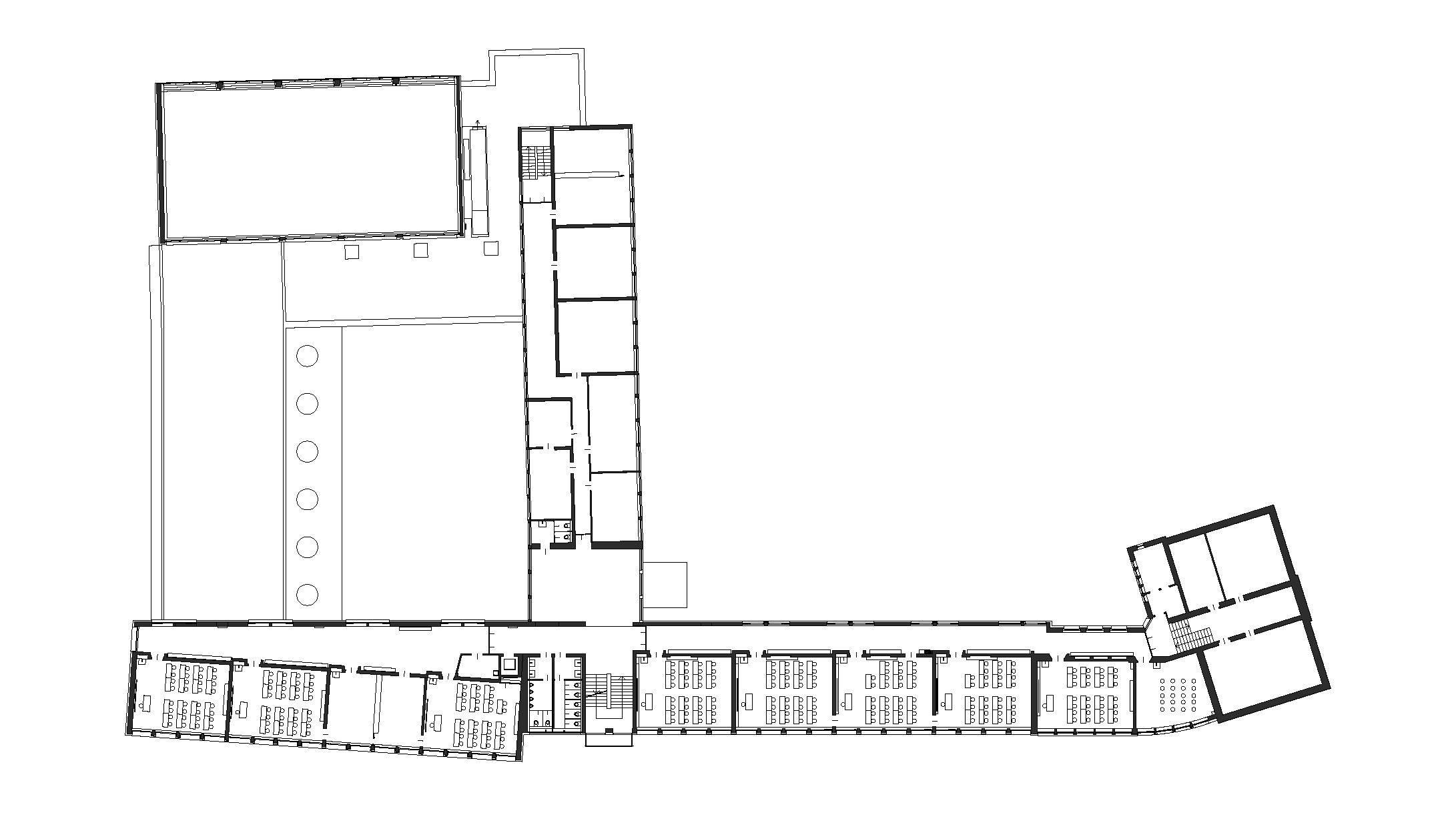
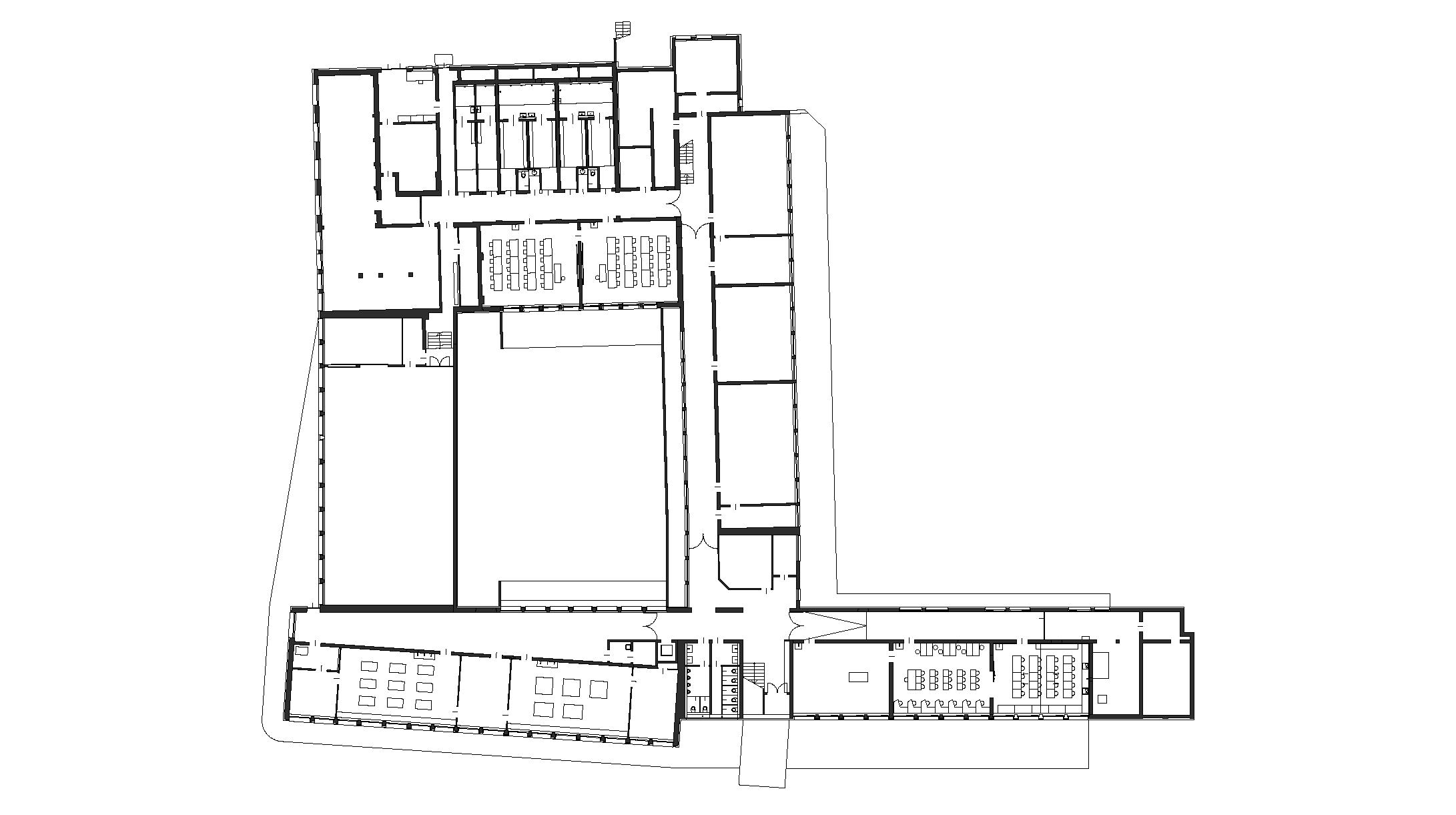
Die Räume für die Volksschule, inkl. der Direktion befinden sich im Obergeschoss, die Räume für die Hauptschule, inkl. der Direktion befinden sich im Erdgeschoss. Die Sonderunterrichtsräume, welche von beiden Schulen benützt werden, liegen gut erreichbar über zwei Stiegenhäuser, sowie den Lift, im Untergeschoss. Die neue intensive Farbgestaltung gibt dem Gangbereichen sowie dem Innenhof ein neues Erscheinungsbild und Raumgefühl.
Durch den sensiblen Umgang mit dem Bestand und der Ausnützung der bestehenden Räume wurde eine kostengünstige Erweiterung, Sanierung sowie architektonische Aufwertung der Haupt- und Volksschule möglich. Der Energiekennwert von ca. 50 – 60 kWh/m²a wurde durch die sanierte Außenhülle sowie eine kontrollierte Qualitätslüftung der Unterrichtsräume erreicht.





