Individualität mit System.
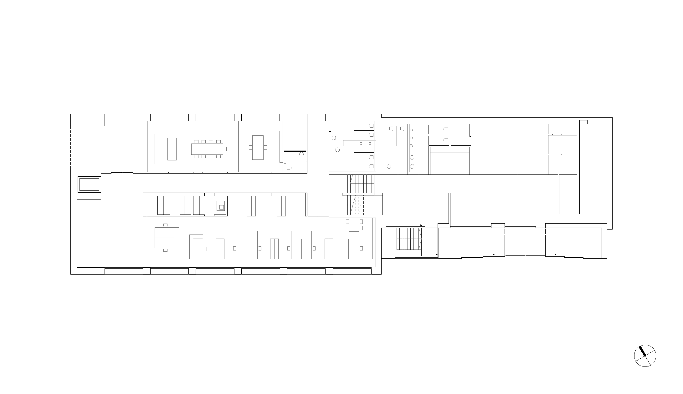
Die Basis der Firma Wagnertec bildet das Säurebad für ihre Chromstahlprodukte: nicht nur betrieblich, sondern auch baulich. Denn das Geschoss mit dem Bad und dem Kleinteilelager bildet den Sockel, auf dem der zweigeschossige Annex mit Büros, Empfang und Sitzungszimmern errichtet wurde.
»Wir wollten wieder einen Schritt zurück zu den Wurzeln des Holzbaus. Dabei schwebte uns eine neuartige Konstruktion mit einer traditionell gezimmerten Tragstruktur und aufgeschraubten, vorgefertigten Betonplatten vor. Diese Bauweise hat entscheidende Vorteile: sie vereint die Vorteile der Vorfertigung mit der Freiheit des Entwurfs; die Träger und Platten sind separat wesentlich wirtschaftlicher zu transportieren als Module; wird der Annex dereinst zurückgebaut, lassen sich die Materialien sauber trennen und wiederverwende.«
DI Christoph Dünser
Weil das Tragwerk nur geringe Reserven bot, musste die Konstruktion sehr leicht sein. Zudem sollte sie möglichst schlank ausfallen, denn die Geschosshöhen waren beschränkt. Der neuartige Verbund aus Holzträgern mit einer aufgeschraubten Betonplatte löst die Anforderungen elegant und zweckmäßig. Und er vereinfacht die Logistik, denn dank der separaten Lieferung von Balken und Betonplatten fallen weniger Fahrten an als bei Modulen. Ein weiteres Plus: Da die Betonplatte der Decke nicht verkleidet werden muss, ist ihre Masse thermisch aktiviert.
Weiterlesen
Die Bauweise bietet eine effiziente und systematische Struktur bei individuellem Ausbau. Die Büroräume sind geprägt von den Deckenträgern aus Holz und der sichtbaren Betondecke, die Fassade vom robusten Mauerwerk mit Fensterlaibungen aus Chromstahl. Die Architektur spiegelt die Werte des Unternehmens: Effizienz, Innovation und präziser Materialeinsatz.
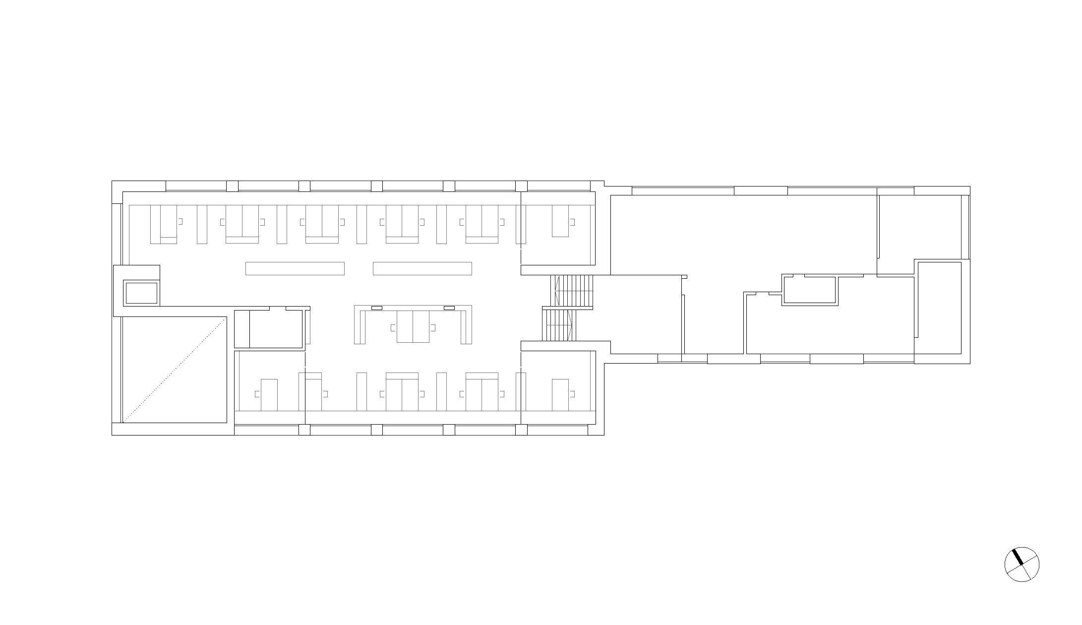
Die Firma Wagnertec in Nüziders fertigt Komponenten aus Chromstahl für Anlagenbau, Energieversorgung und Haustechnik. Um die zukünftige Entwicklung des Betriebs zu ermöglichen – einerseits waren die Büroräume knapp geworden, andererseits sollte eine hochwertige Architektur Mitarbeiter anziehen – musste der Verwaltungstrakt erweitert werden. Das Raumprogramm des Anbaus umfasste im Erdgeschoss auf 373 m² einen Empfang, ein grosses Sitzungszimmer sowie ein Grossraumbüro und Nebenräume. Das zweite Geschoss wurde ebenfalls errichtet, bleibt im Moment aber ungenutzt und befindet sich noch im Rohbau. Zudem besteht die Option, den Anbau um ein drittes Geschoss aufzustocken.
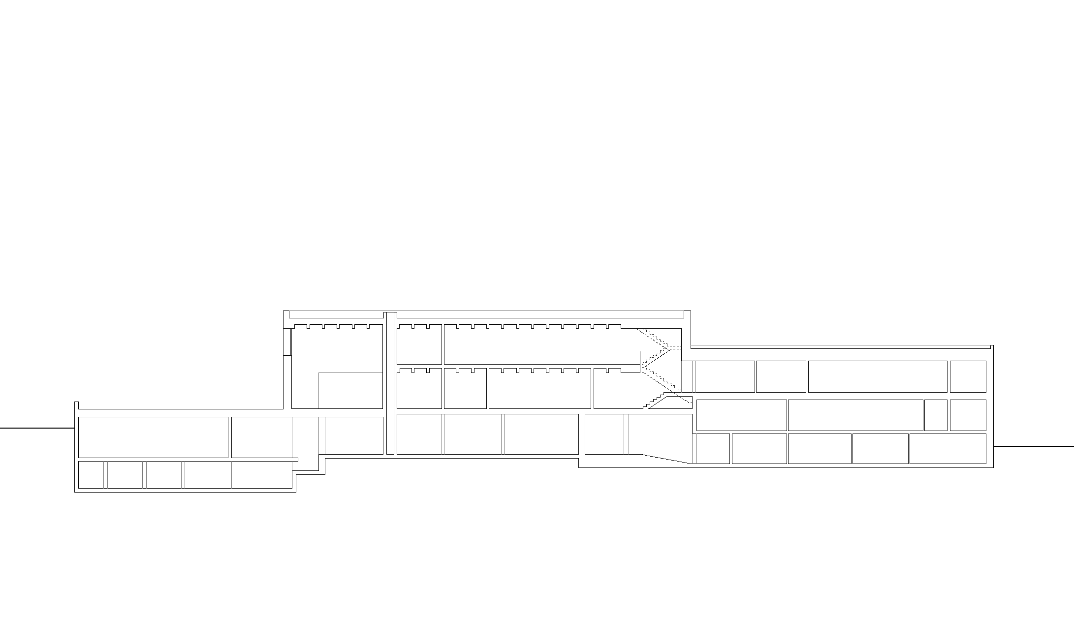
Die Erweiterung wurde auf einem bestehenden, im Geländeverlauf einseitig versenkten Sockelgeschoss errichtet, in dem sich das Kleinteilelager der Firma befindet sowie das Säurebad, wo die Chromstahlkonstruktionen gebeizt werden. Da das Tragwerk der Bestandsbauten nur über geringe Reserven verfügte und die Geschosshöhen beschränkt waren, musste die Konstruktion leicht und die Bauhöhe der Decke gering ausfallen. Das konstruktive Herzstück der Erweiterung bildet deshalb eine neuartige Hybriddecke aus Holz und Beton, die diese beiden Probleme elegant löst. Mit 42 cm Gesamtstärke fällt sie schlank aus, und da die Betonschicht lediglich 10 cm beträgt, bleibt ihr Gewicht niedrig. Analog zum Illwerke Zentrum Montafon und dem LCT ONE – LifeCycle Tower wirken die beiden Baustoffe optimal zusammen: Holzträger werden auf der Unterseite der Decke auf Zug belastet, während der Beton auf der Oberseite den Druck aufnimmt. Dank einem Zuschlag von 1% Polypropylen in der Betondecke ist der Brandschutz (REI90) gewährleistet, auch wenn die gesamte Konstruktion offen und sichtbar ist. Das Holz dient als Tragwerk und bildet gleichzeitig den Innenausbau. Dies macht das System effizient und das Holz im Vergleich zu anderen Baustoffen konkurrenzfähig.
Die Decke bildet eine Weiterführung des Deckenmoduls des Systems LCT. Mittels neu entwickelter Schraubverbindungen SWG HBV-FT-Verbinder in Verbindung mit Würth ASSY plus VG Schraube) können die Betonplatten direkt vor Ort auf die Balken aufgeschraubt werden, während beim LCT-Modul vor dem Verguss in den Holzträger befestigte Schrauben und Schubkerven den Verbund sicherstellten. Die Bauweise, bei der die beiden Baustoffe erst vor Ort und nicht schon im Elementwerk verbunden werden, bietet wesentliche Vorteile: Der Bauablauf wird vereinfacht und rückt wieder einen Schritt näher an die Wurzeln des Holzbaus. Das Tragwerk aus Holz wird von Zimmerleuten vor Ort erstellt und die im Werk vorgefertigten Betonplatten erst danach geliefert und verschraubt. Dadurch wird die Logistik effizienter, denn es wird kaum Luft transportiert. Die Träger können ebenso kompakt geliefert werden wie die Betonplatten. Zudem ist der Entwurf freier in der Form als beim LCT-System, wo das rechteckige Modul die Gebäudeform weitgehend definiert – die Betondecken können jede erdenkliche Form annehmen. Am Ende des Lebenszyklus spielt der verschraubte Verbund einen weiteren Vorteil aus: Wird der Annex dereinst zurückgebaut, lassen sich die Materialien einfach und sauber trennen.
Die Tragstruktur gliedert sich in Stützenpaare aus Leimbindern (680 mm auf 240 mm) in einem Abstand von 758 cm. Die Stützten stehen entlang der Fassaden und in der Gebäudemitte (Achsraster 463 cm), wo ihre Lage auf die gemauerten Pfeiler im Untergeschoss ausgerichtet ist. Auf den Stützen liegen drei Hauptträger (an den Fassaden 30700 mm x 340 mm x 400 mm, in der Gebäudemitte 23420 mm x 580 mm x 400 mm). Dazwischen sind die Sekundärträger (7050 mm x 200 mm x 320 mm) mit einem Raster von 116 cm eingespannt. Im Empfangsbereich ist ein Deckenfeld ausgespart, um einen zweigeschossigen Raum zu erhalten.
Die Fassaden bestehen aus vorgefertigten Elementen, die vor die Tragstruktur gestellt wurden und die jeweils ein Feld zwischen den Stützenpaaren umfassen. Für die Hülle wurde auf Wunsch des Bauherrn ein hinterlüftetes Sichtmauerwerk erstellt, die Dämmung besteht aus 26 cm Mineralwolle. Der Klinker aus den Niederlanden bietet eine pflegeleichte Aussenhaut, und zusammen mit den Fensterlaibungen aus Chromstahl, von der Wagnertec selbst gefertigt, zeigt sich der Anbau robust und belastbar. Eine Besonderheit bieten die grossen Bürofenster (394 cm auf 200 cm), die ganz ohne Lüftungsflügel auskommen. Im Inneren dominieren Oberflächen aus Holz mit Wandverkleidungen in sägerauer Buche und massgefertigten Möbel aus massivem Buchenholz. Die in die Brüstung integrierte Lüftung ist ebenfalls mit sägerauer Buche liegend verkleidet. Für den Boden kam in den Gängen ein gelederter Stein zum Einsatz, in den Büros aufgrund der Akustik Teppichfliesen.
Die einfache, robuste Haustechnik unterstreicht den fokussierten Ansatz, und die thermisch aktivierte Betondecke nutzt die offene Bauweise. In die Betonplatten eingelassene Rohre – ebenfalls von der Wagnertec selbst erstellt und im Betonwerk eingelegt – sorgen dafür, dass die Masse des Betons als Wärmespeicher genutzt werden kann.
Der Anbau in Nüziders vereint großzügige Räume mit einer effizienten Konstruktion – und individuellen Ausbau mit einem modularen Ansatz. Ein lohnender, neuer Weg im hybriden Holzbau, der den Bauherren wie auch den Planern entgegenkommt.















