Feuerwehrhaus, Warth

Feuerwehrhaus, Warth
Bauherrschaft
Gemeinde Warth, Warth
Standort
Warth
Fertigstellung
2008
Projektdaten
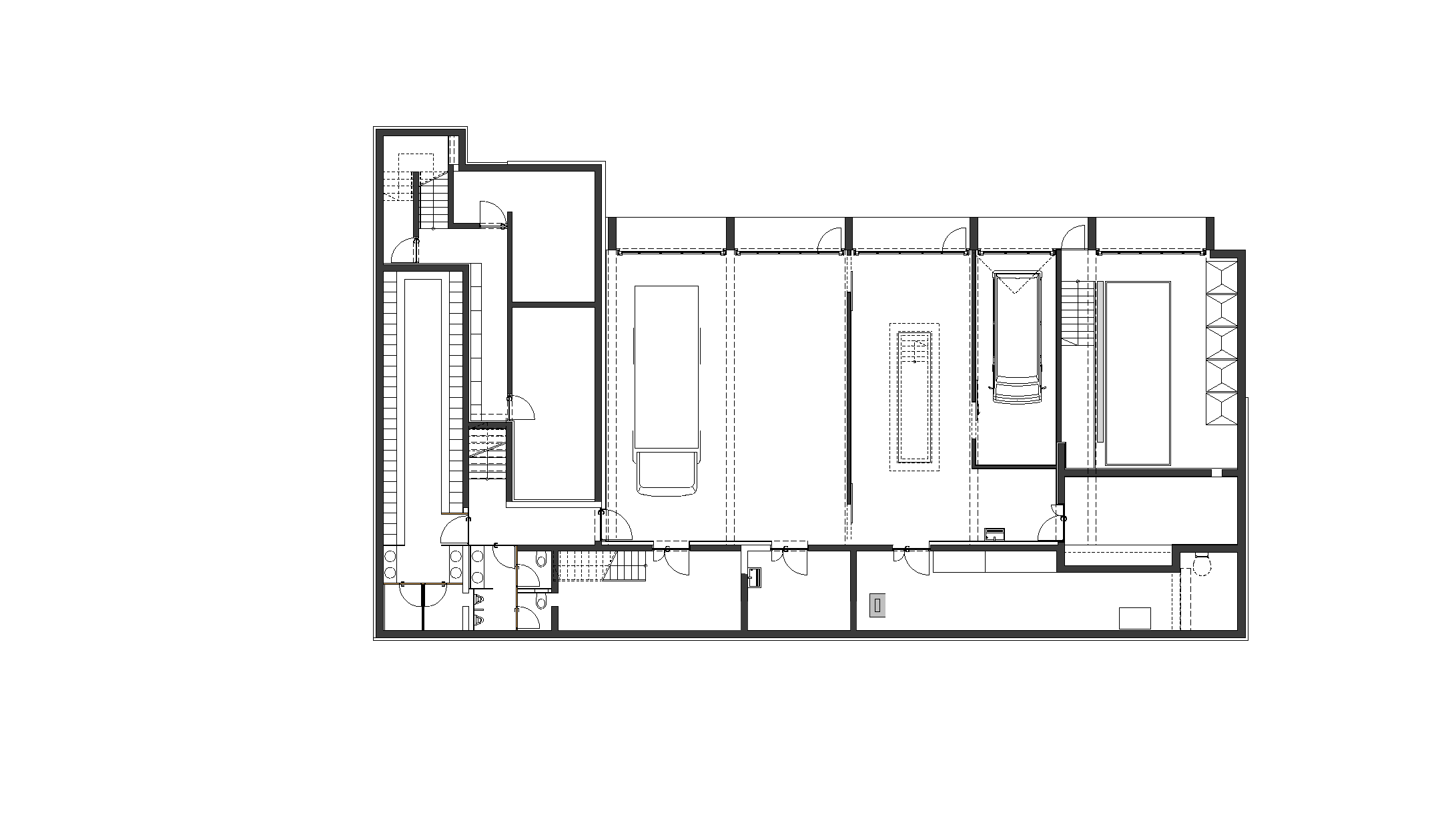
NGF 712,8 m², BGF 419,5 m²,
BRI 3.593 m³
Feuerwehrhaus, Warth
Feuerwehrhaus, Warth
Feuerwehrhaus, Warth
Feuerwehrhaus, Warth

Projektdetails

Feuerwehrhaus, Warth
Feuerwehrhaus, Warth
Weitere Projekte