Ortsräumliche Situation
Aus unserer Sicht kann sich der angedachte Dorfplatz am Besten im Bereich zwischen Kirche, Gemeindehaus und bestehendem Laden entwickeln. Die Baukörper sind einander zugewandt und vom angedachten Platzbereich von überall gut wahrnehmbar. Die bestehende Baukörperkonfiguration erscheint stimmig und spiegelt sich so auch im neuen Entwurf wieder. Das neue Dorfhus, insbesondere die vielen kleinteiligen Funktionen wie das Cafe mit Außenbereich, der Saal, die Infostelle und der Arzt – sozusagen „das Kernhaus“ – sollen sich alle zu diesem Platz hin orientieren. Für den Platz soll auch der eigentliche Haupteingang der Kirche miteinbezogen werden, gleichzeitig wird der Platz aber an anderer Stelle bewusst in seiner Größe und Maßstäblichkeit beschränkt.
Während das „Kernhaus“ dem Platz zugewandt ist, soll der großflächige Laden westlich in einem eigenen Gebäudeflügel untergebracht werden. Dieser Längstrakt generiert durch straßenräumliche Verengung auch eine Torsituation, welche den westlichen Beginn des eigentlichen Dorfplatzes markiert. Hier sind auch eine offene Parkfläche und die Anlieferung für den Laden situiert. Durch diese Zusammenlegung, wird der Bereich zur Straße unmittelbar vor dem Gebäude besser für Fußgänger und Radfahrer nutzbar.
Der Baukörper selbst orientiert sich bei der Höhenentwicklung an der Nachbarbebauung. Um klar zum Ausdruck zu bringen, dass es sich um „Ein Dorfhus“ handelt, sind auch die Trauf- und Firsthöhen der beiden Gebäudeteile gleich ausgebildet. Auch die Sprache der Fassadengestaltung ist einheitlich. Dennoch wird das Gebäude durch den Gebäudeversprung, sowie die aufgelöste Fassade im Eingangsbereich des Ladens gegliedert.
Weiterlesen
Innere Organisation
Es hat sich gezeigt, dass der Bestand den vielfältigen Anforderungen des Auslobers platzmäßig und strukturell nicht Rechnung tragen kann. Für einen Erhalt wären zu viele Kompromisse in Hinblick auf eine optimale Entwicklung des Dorfhus einzugehen. Deshalb, und auf Grund des eher geringen baukulturellen Bestandswerts, wird ein Neubau vorgeschlagen.
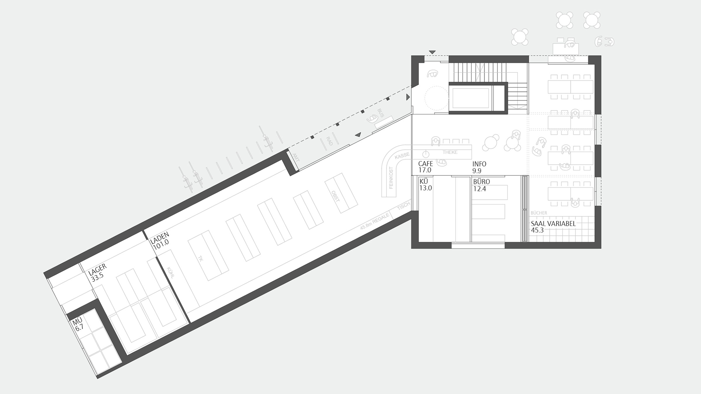
Um den vielfältigen Anforderungen auf beengtem Raum zu begegnen ist die Erschließung sehr flächeneffizient organisiert. Dies schafft Raum für flexible Nutzungen und spart gleichzeitig Baukosten. Der kompakte und zentrale Erschließungskern verbindet alle Bereiche. Über den großen Aufzug können alle Lagergüter und auch Fahhrräder schnell und einfach in den Keller transportiert werden. Zur Entlastung des Treppenhauses während der Ladenöffnungszeiten ist unmittelbar anschließend ein direkter, gedeckter Eingang in den Laden vorgesehen.
Der Entwurf bildet nahezu alle geforderten Kriterien in Hinblick auf die gewünschte Nutzungsvielfalt im Erdgeschoß ab. Aus Erfahrung von abgeschlossenen und laufenden Projekten in Zusammenarbeit mit Gastronomieplanern, raten wir auf Grund der geringen Größe des Projekts, jedoch dringend von der Verpachtung der Gastronomie an zwei Pächter ab. Ein wirtschaftlicher Betrieb des Ladens und der Gastronomie kann nur erreicht werden, wenn das Lokal in „einer Hand“ bleibt, so dass Ressourcen und Personal optimal eingesetzt werden können. Nichtsdestotrotz kann die Gastronomie im vorliegenden Entwurf für Veranstaltungen aller Art untervermietet werden, oder das Ladenpersonal betreut zusätzliche Gäste einfach mit.
„Herzstück“ dieses gesamtheitlichen Konzepts ist eine zusammenhängende Theke für alle Funktionsbereiche mit kurzen Wegen und gutem Überblick. Je nach Tageszeit oder Programm können hier eine oder mehrere Personen zusammenarbeiten. Die zentrale Position liegt am Schnittpunkt von Cafe bzw. Bücherei und Laden. Ankommende Personen die zB den Saal für eine Feier gemietet haben, können an diesem zentralen Punkt durch das Personal empfangen werden. Auch der Infopoint samt Regal des Dreiklang ist hier situiert. Als Rückzugsraum steht das Büro mit Besprechungstisch zur Verfügung.
Cafe und Saal sind in einen Thekenbereich mit Bar und eine große zusammenhängende Fläche gegliedert. Im Regelbetrieb steht der ganze Raum offen zum Lesen und Speisen in Wohnzimmeratmosphäre. Die Fläche kann durch mobile Trennwände fast beliebig gegliedert werden. Die Cafeplätze samt Außensitznische sind allesamt zum Dorfplatz hin orientiert. Sso kann das „Treiben in Düns“ vom Cafe aus bestens beobachtet werden. Die Außenplätze sind als kleines Straßencafe mit Baum konzipiert. Bei Veranstaltungen kann der Außenbereich nach Möglichkeit auch auf den Dorfplatz erweitert werden.
Während der Laden über ein eigenes Lager verfügt, sind alle anderen Lager- und Kellerflächen, sowie Sanitäranlagen im Untergeschoß untergebracht. Die Bewohner der Wohnungen kommen mit dem Aufzug in den Keller. Im Keller ist eine Türe als Abtrennung zur Gastronomie in der Nacht vorgesehen. Diese ist zwar auch Fluchttreppe, aber alarmgesichert.
Die Lagerfläche des Ladens ist aus platzgründen etwas kleiner, erscheint aber durch adaptiertes Anlieferungsmanagement machbar. Ein Lager für „selten Benötigtes“ ist zusätzlich im Keller vorgesehen.
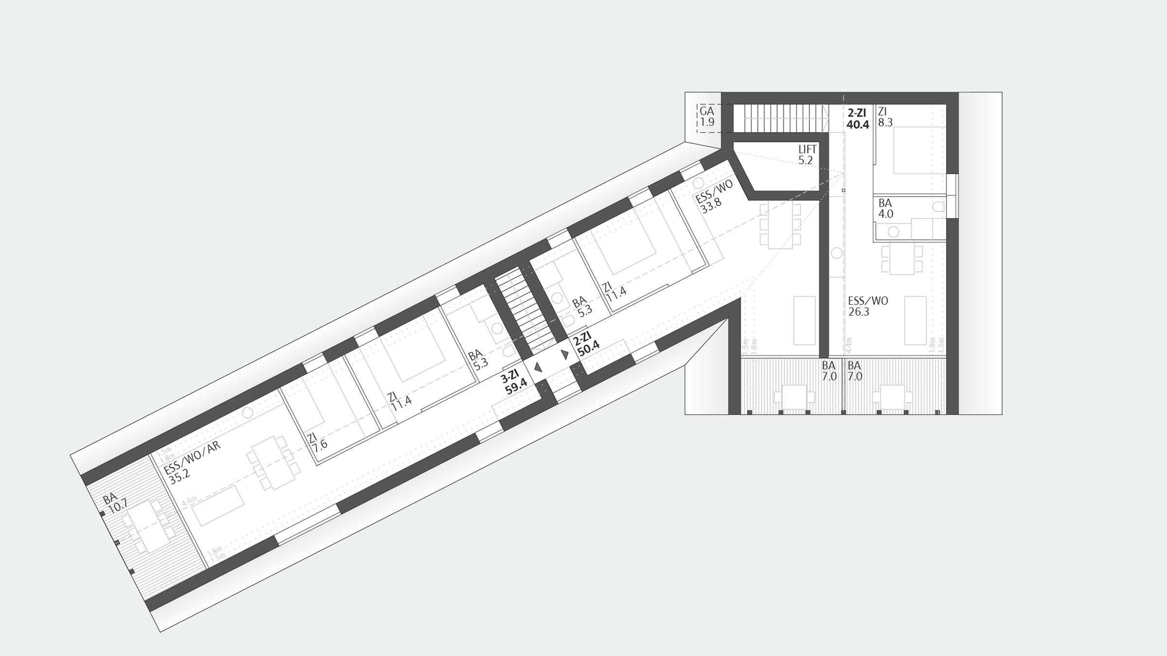
Die Arztpraxis im 1. Obergeschoss ist direkt am Treppenhaus angeordnet und auch zum Dorfplatz hin orientiert. Die beiden weiteren betreuten Wohnungen sind ebenfalls in diesem Geschoß. Im 2. Obergeschoß wurde der steile Dachgiebel für räumlich spannende Startwohnungen genutzt.
Konstruktion und Material
Für die Umsetzung des Dorfhus wird ein konstruktiver Holzbau, aus tragenden Massivholzwänden vorgeschlagen. Zusätzlich gibt es eine Dämmung aus Holzwolle und eine vertikale sägerauhe Fassade.
Dies macht aus vielerlei Hinsicht Sinn. Diese Bauweise ist besonders ökologisch und nachhaltig. Zudem ist Holz in der Gemeinde gut verfügbar, und die physiologische und atmosphärische Qualität des Holzes passen aus unserer Sicht perfekt in das Dorfhus Düns. Bei dieser diffusionsoffenen Bauweise, mit hohem Dämm- und Wärmespeichervermögen, ist in der Projektausarbeitung zu prüfen ob nicht auf eine kontrollierte Be- und Entlüftung für die Wohnungen verzichtet werden kann. Mit dem Anspruch nach mehr Handwerk und Low-Tech statt High-Tech, können hier sehr gute Ergebnisse hinsichtlich Energieeffizienz und Wohnkomfort erzielt werden.
Die Fassadenstruktur, mit den breiten Brettern und den massiven sichtbaren Holzstützen, bringen dieses „massive bauen“ nochmals nach außen zum Ausdruck und ist so nebenbei auch eine kleine Reminiszenz an das jetzige Haus.
Die aufgelösten Fassadenbereiche beim Ladeneingang und bei den Giebeln, gliedern einerseits den Baukörper, schaffen aber auch eine spannende Kombination aus großflächiger Belichtung, bei gleichzeitiger Wahrung des naturnahen und fein strukturierten Charakters des gesamten Gebäudes.




