Die außenräumlichen Qualitäten des historischen Ensembles werden durch wenige präzise Eingriffe herausgearbeitet. Der Turm wird vom massiven Treppenbauwerk befreit, und so in seiner Bedeutung und Wahrnehmung gestärkt. Dadurch wird auch eine direkte Verbindung von Schlosshof zu Schlossgarten geschaffen. Die Stadtmauer im Bereich Schlossscheuer soll durch eine Reduktion der Wand- und Dachöffnungen aus den 1980er Jahren wieder mehr ihrem ursprünglichen Charakter entsprechen.
Der Standort am Schlosshof soll in seiner zentralen öffentlichen Bedeutung uns als Tor zur Altstadt gestärkt werden.Alle Zugänge sind zum Hof orientiert. Die Tiefgaragenerschließung wird vom Schlossgarten in den Schlosshof verlegt. Als räumlicher Abschluss einer Seitengasse zur Marktstraße, soll der Schlosshof zum Verweilen einladen.
Neben dem Rathaus braucht es eine zweite, gut frequentierte Nutzung die den Standort weiter stärkt und auch wirtschaftlich zum Gelingen des Projektes beiträgt. Dazu wird eine möglichst große Gastronomie vorgeschlagen. Die Gastronomie ist direkt an den Sitzungsbereich angebunden, und verfügt zusammen den weiteren Räumlichkeiten im Bischofsturm und der einmaligen Lage über ein hohes Potential für Veranstaltungen aller Art.
Weiterlesen
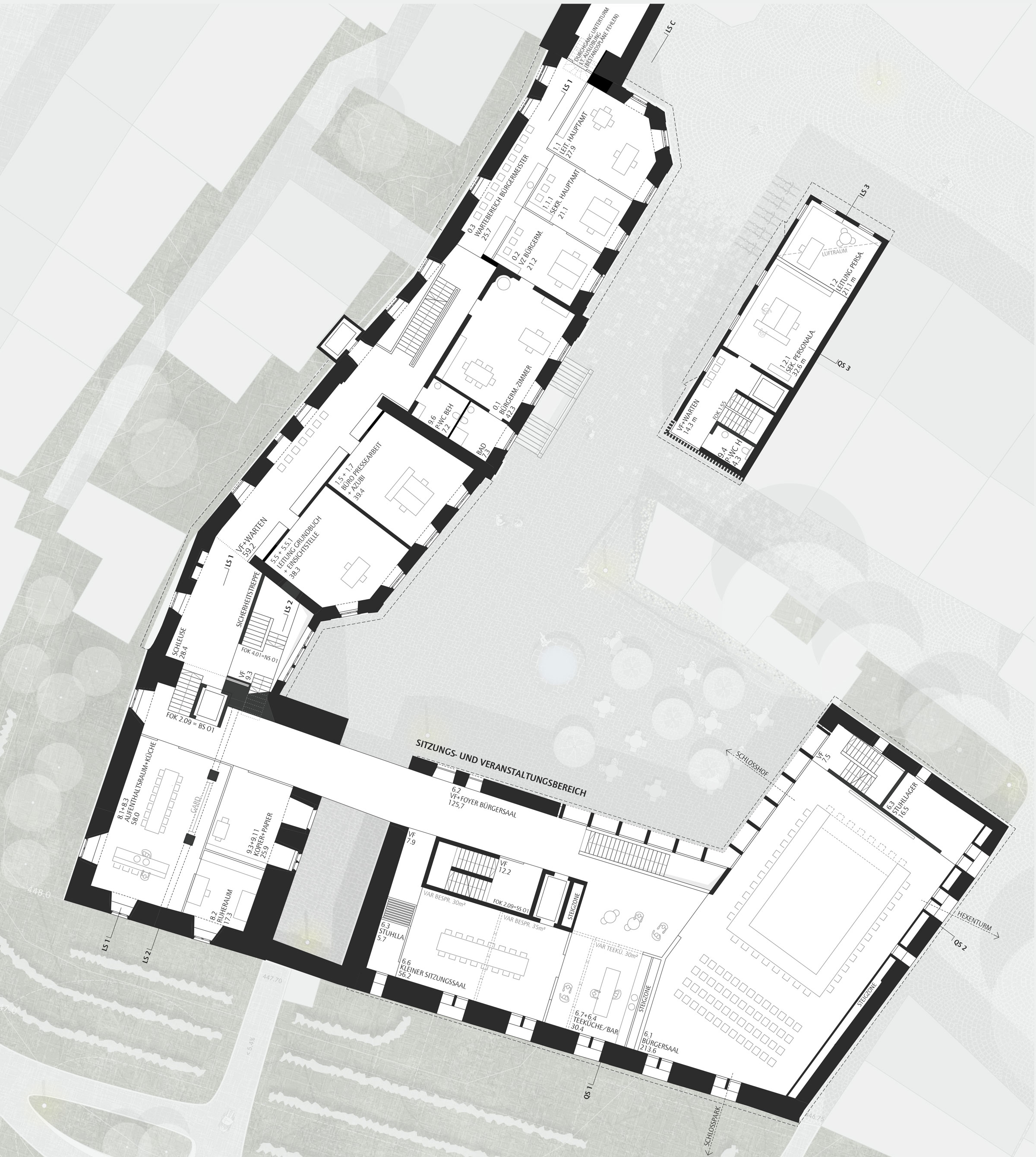
Ein einladendes und klares Erschließungskonzept ist Grundlage für den Erfolg und die Akzeptanz in der Bevölkerung.Der bestehende Eingang in der Symmetrieachse des feudalen Schlosses, ist historisch gewaschen und erscheint auch aus heutiger Sicht als klare Adresse für das Rathaus. Die labyrinthartige Erschließungsstruktur des Hotelkomplexes entspricht nicht den Anforderungen an eine moderne Stadtverwaltung mit einfacher Orientierung und kurzen Wegen. Zur Verbesserung der Erschließungssituation werden das Neue Schloss und der Turm auf allen drei Geschoßebenen direkt miteinander verbunden. Im Verbindungbau wird zudem das gemeinsame Sicherheitstreppenhaus samt Aufzug neu angeordnet. Eine großzügige Erschließungsstraße im 1. Obergeschoss verbindet den Sitzungsbereich in der Schlossscheuer direkt mit der Verwaltung. Mitarbeiter gelangen von der Tiefgarage direkt auf diese Verteilerebene.
Ausgehend vom Empfang mit Bürgerservice werden die weiteren Verwaltungsbereiche über die adaptierte Erschließungsstruktur bedient. Die oberen Geschoße des Neuen Schloss und die Besucher WC im Untergeschoß werden durch neue Treppen direkt vom Foyer aus erreicht.
Die Bereiche Gemeindeorgane und Hauptamt werden in den repräsentativen Barockräumen zentral in Eingangsnähe situiert. Das publikumsintensive Ordnungsamt nimmt das gesamte 2. Obergeschoß ein. Das Bauamt ist im Turm situiert, die Finanzverwaltung im Dachgeschoß der Schlossscheuer. Der Personalbereich ist zentral im Turm angeordnet. Die Marktstraße 17 wird ebenfalls als Teil der Verwaltung genutzt, dies hat mehrerlei Gründe. Zum einen um möglichst viel Platz für die Gastronomie und Eventnutzung im Bischofschloss freizuhalten. Zum anderen bietet sich das Stadtmarketing als Auftakt zur Marktstraße an. Auch erscheint die Integration von Wohnungen, als hinderlich für die zukünftige Entwicklung des Rathaus-Ensembles. Die Personal- und EDV-Abteilung kann aus unserer Sicht am ehesten hier untergebracht werden, da gerade bei Personalgesprächen ein hohes Maß an Diskretion gefragt ist.
Durch die Verlegung des Sicherheitstreppenhauses, werden im Turm die beiden Geschoße mit beeindruckender Eichenkonstruktion freigespielt. Durch die Anbindung an die Erschließung werden diese Räume zudem gut zugänglich und einsehbar. Der Raum im Erdgeschoß kann für Veranstaltungen und Ausstellungen genutzt werden. Ein zusätzliches Fenster auf die stadtabgewandte Westseite erscheint vertretbar und hilft den drückenden Raumeindruck zu verbessern. Die neu geschaffenen Verbindungen von Bischofschloss, Neuem Schloss und Schlossscheuer erfordern lediglich vier neue Wanddurchbrüche. Das Trauzimmer im Rittersaal wird durch das neue Treppenhaus nicht beeinträchtigt, durch ein multifunktionales Möbel sind keine weiteren Raumeinbauten erforderlich. Um die beeindruckenden Dachstühle spürbar zu machen, soll das 6. Obergeschoß im Turm als Büroraum genutzt werden. Auch im neuen Schloss findet der Dachraum als Besprechungsraum eine sinnvolle Nutzung.
Der Sitzungsbereich umfasst das gesamte 1. Obergeschoss der Schlossscheuer und ist durch mobile Trennwände flexibel nutzbar. Der Verwaltungsbereich ist über eine Brücke direkt angebunden. Die Teeküche und das Foyer können für Veranstaltungen direkt von der Küche aus bedient werden. Der Bürgersaal bietet Blickbezüge zum Schlosshof, Schlossgarten und Hexenturm. Die Gastronomie im Erdgeschoß verfügt über einen Gastraum mit Gastgarten. Die Anlieferung erfolgt über den Hof. Die WC-Anlage steht der Gastronomie, dem Sitzungsbereich und auch öffentlich zur Verfügung (zB Adventmarkt). Das gemeinsame Foyer kann außerhalb der Öffnungszeiten vom Tiefgaragenzugang abgetrennt werden. Der Gargenzugang kann so 24h geöffnet bleiben. Um etwaige Nutzungskonflikte auszuschließen ist für die Garage ein separater Aufzug vorgesehen.
Entgegen des Hotelbaus aus den 1980er Jahren wo versucht wurde durch Verschmelzung von Alt und Neu eine Synthese zu schaffen, schlägt der vorliegende Entwurf eine bewusste Trennung der Formensprachen vor. Das architektonische Konzept verfolgt das Ziel durch ein bewusstes Neben- und Übereinander der verschiedenen zeitlichen Sedimentationsschichten einen gestalterischen Spannungsbogen aufzubauen. Dabei fügt sich der Neubau durch stark reduzierte Form- und Materialwahl in das bestehende Ensemble ein.
Für den Turm ist ein Sicherheitstreppenhaus geplant. Die Rauchschleusen werden teilweise über mobile Brandschutzelemente hergestellt. Die Entrauchung der Schleusen erfolgt über die Fassade. Im Neubau der Schlossscheuer sind zwei Fluchttreppenhäuser geplant, welche die Entfluchtung der Tiefgarage und Versammlungstätte gewährleisten. Alle Räumlichkeiten der Schlossscheuer, sowie das Trauzimmer und der Ausstellungsraum im Turm werden mit einer kontrollierten Be- und Entlüftung vorgeschlagen. Zur Beheizung wäre eine Wärmepumpe mit Erdsonden die nachhaltigste Lösung.
Entgegengesetzte Pole ziehen sich an. Im Spannungsfeld von ebenem, hart geprägtem Schlossplatz und geneigtem, grün gefasstem Schlossgarten spannt sich ein sehr deutlich wahrnehmbarer thematischer Bogen auf, der die städtebauliche Bedeutung des Schlossensembles stärkt und unterstreicht.
Der für den Schlossplatz vorgeschlagene Pflasterbelag aus mittel- bis dunkelgrauem Naturstein weicht bewusst vom reststädtischen Porphyrbelag der 1980er Jahre ab. Der graue Belag vermag alle anstehenden Farben und Materialien in sich aufzunehmen und zusammenzubinden. Er bildet damit den notwendigen, optisch zurückhaltenden Rahmen für das Zusammenfassen der deutlich wahrnehmbaren historischen Sedimentationsschichten. Über den pixelartigen Übergang gleitet der Besucher damit stufenlos vom Stadtkörper in die Besonderheit des Schlosskomplexhofes. In Form gezogenes Spalierobst bedeckt die raumbegrenzende Rückwand der Nebengebäude. Ein massives Sitzelement aus Stein und Eiche korrigiert die abgeschrägte Gebäudeecke. Ein niedriger aber großzügiger Brunnen akzentuiert den mit mobiler Möblierung und stilgerechten Kübelpflanzen bespielten Innenhof, der nun für alle Arten von temporärer Nutzung bereit steht.
In Anlehnung an die historisch belegte Gartennutzung der Stadtmauerbereiche wird der Südhang als mit Schmuck- und Repräsentationsfunktion angereicherter Nutzgarten interpretiert. Anstelle der regionaltypischen Weinreben prägt aber eine horizontale, den Höhenschichtlinien folgende Staffel von blauregenbewachsenen Rankrüsten den Hang. Die Horizontalität kontrastiert und unterstreicht den wehrhaft-trutzigen Ausdruck des Turmes. Das Absturzproblem bei Unterführung und Tiefgarage kann zudem mit einem durchlaufenden Rankelement unauffällig gelöst werden.
Der eingelegte Asphaltweg verbindet die anliegenden Einmündungspunkte barrierefrei und ermöglicht ein horizontales und vertikales Erleben der Rankelementlinien. Ein aufgebordetes Sitzelement ermöglicht den kurzzeitigen Aufenthalt im Garten mit Blick auf Turm und Scheuer und den sich durch die Strassen wälzenden Verkehrswurm. Der Frühling färbt den gesamten Hang mittels abertausender Blüten von Scilla, Krokus und Narzisse bunt ein. Darauffolgend wandelt sich der Hang zu einem imposanten Wasserfall aus weissen und blauen Glyzinienrispen. Nach der gelben Herbstfärbung prägen die bizarr und malerisch gewundenen Aststrukturen der Glyzinie die unverwechselbare Erscheinung des nunmehr klassisch – modernen Schlossgartens.




