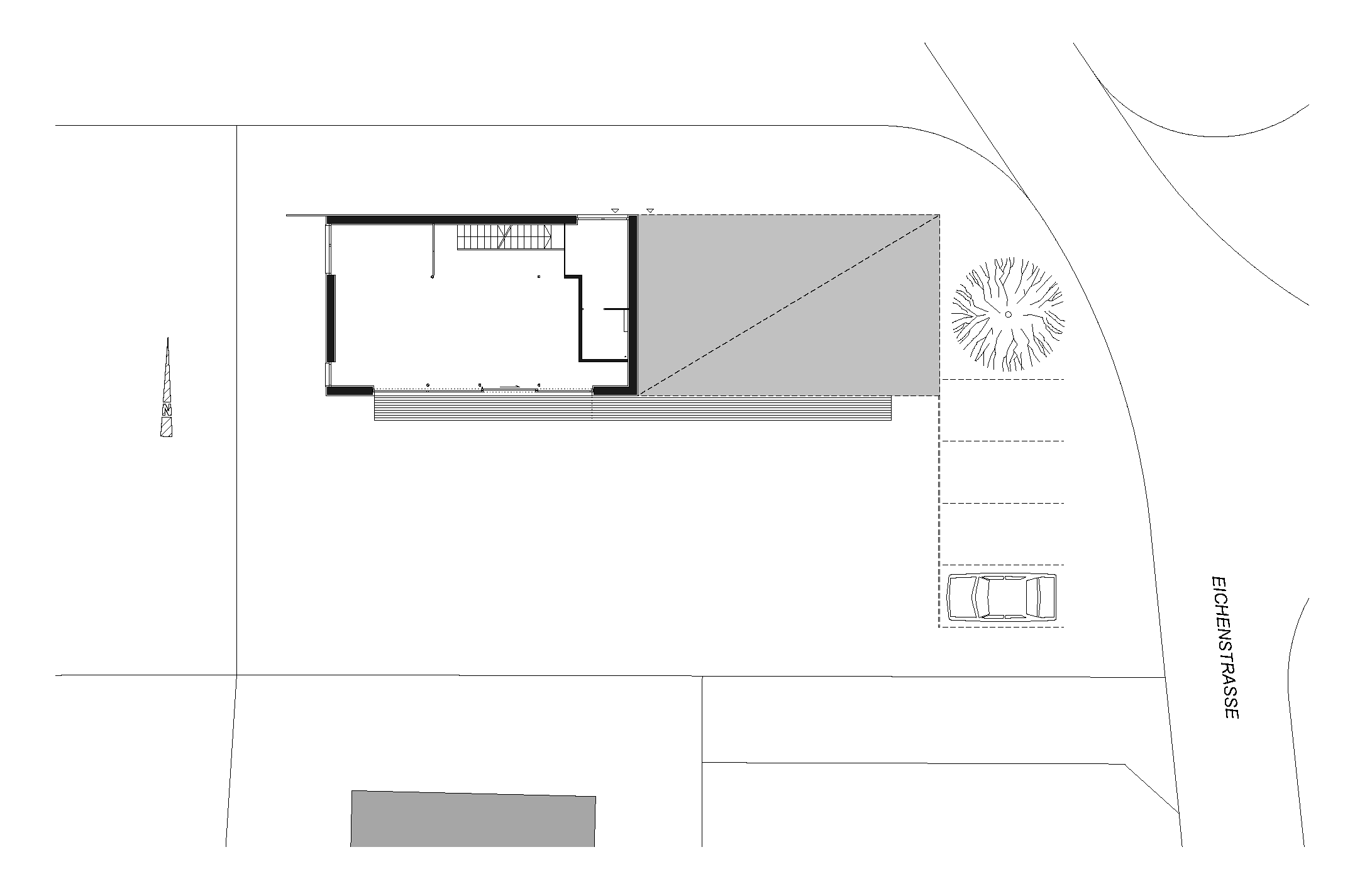
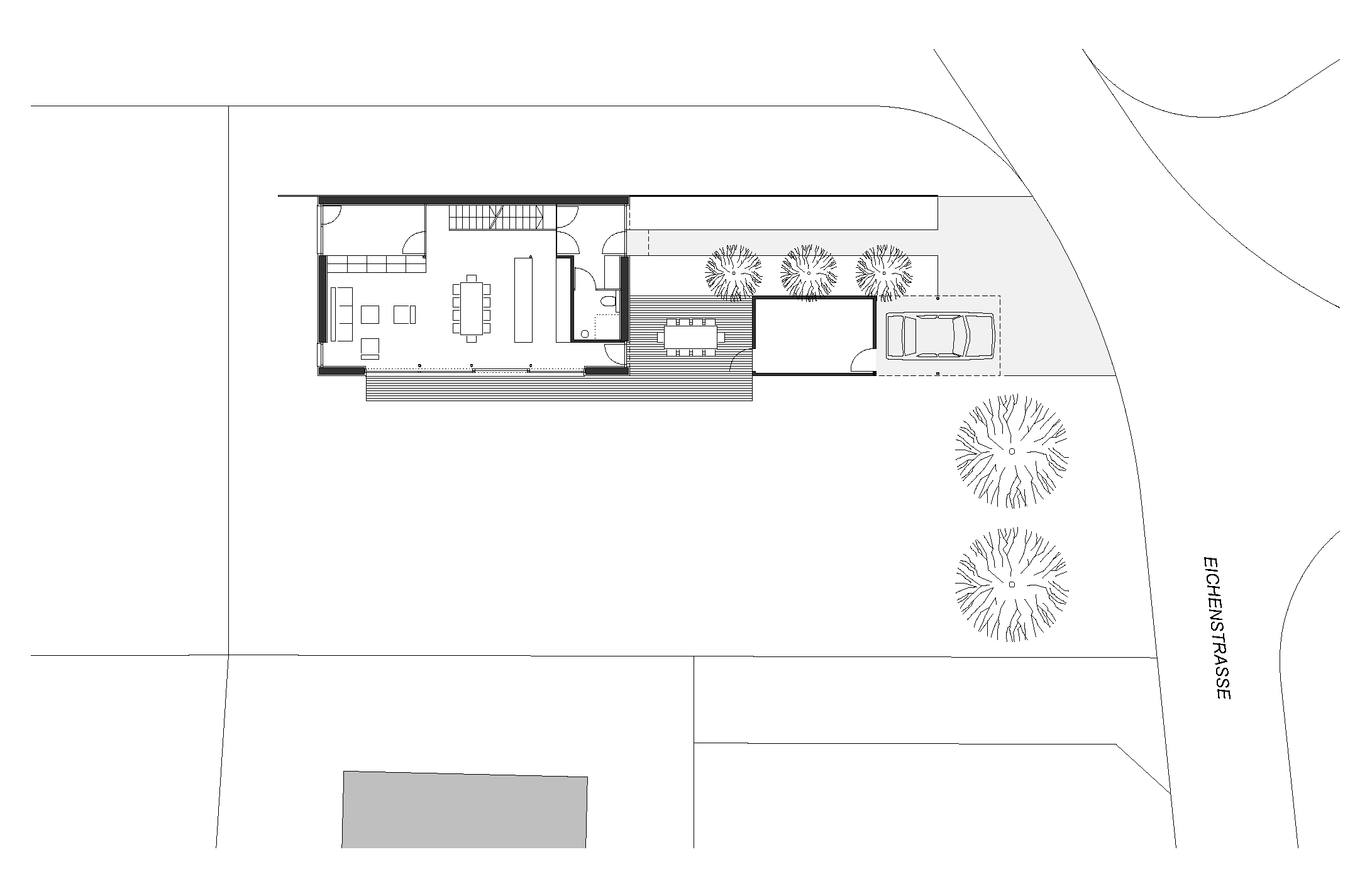
Nachhaltiges Einfamilienhaus mit Erweiterungsmöglichkeit.
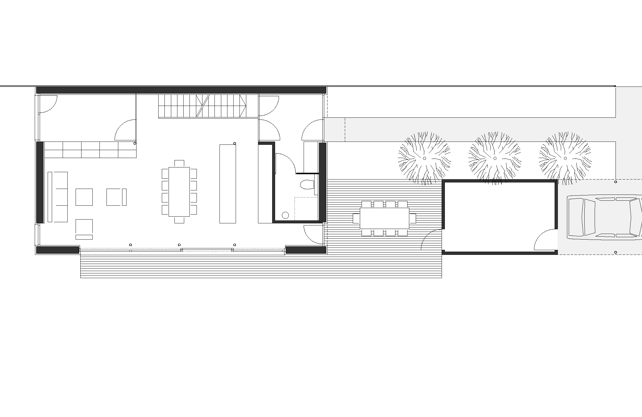
Bei diesem Projekt handelt es sich um ein Einfamilienhaus in Holzbauweise mit Passivhausstandard. Es ist ein sehr kompakter Baukörper mit einer vertikalen Lärchenverschalung und mit südseitig bündig in die Fassade integrierten Solarkollektoren.
Auf dem Dach wurde außerdem eine Photovoltaikanlage mit einer Leistung von 3,4 kWh installiert. Laut Wohnbaurichtlinien des Landes Vorarlberg wurde die höchste Förderungsstufe (140 Punkte nach ÖKO2-Richtlinie, drei Säulen-Modell, bewertet nach: Heizwärmebedarf, Energieversorgung und Warmwasseraufbereitung, ökologische Maßnahmen) mit den erzielten 269 Punkten weit überschritten. Zur optimalen Ausnutzung des Grundstückes ist das Projekt als Doppelhaus konzipiert. Es besteht jederzeit die Möglichkeit, das Projekt in dieser Form zu erweitern.









