Prototyp für die Alpen.
Der Erfolg der Wintersportorte hat für die Einheimischen auch Schattenseiten: Die Preise für Wohnungen und Grundstücke steigen an, junge Menschen können sich kaum eine Wohnung oder gar Eigentum in ihrem Heimatort leisten. Als Folge ziehen sie weg und kommen nur selten wieder zurück – der Ort vergreist. Um den Jungen eine Perspektive zu bieten, hat die Vorarlberger gemeinnützige Wohnungsbau- und Siedlungsgesellschaft (VOGEWOSI) in Warth auf Initiative der Gemeinde ein Mehrfamilienhaus erstellt. Was im Flachland gang und gäbe ist, bedingt im alpinen Raum ein Pionierprojekt – denn es gibt für diese Aufgabe keine Vorbilder.
Doch wie sieht dieser Prototyp für den geförderten Wohnbau in den Bergen aus? Die Grundaufgabe bleibt die gleiche: Effiziente Grundrisse nutzen den begrenzten Raum, die Überlagerung von Funktionen bietet Flexibilität und Anpassungsfähigkeit, ein einfaches Tragwerk hält die Kosten tief. Das Besondere an der Aufgabe sind einerseits die erhöhten Anforderungen an die Statik aufgrund der – oft asymmetrischen –Belastung durch Schneelasten, andererseits die Gebäudeform, die sich an den kleinteiligen historischen Strukturen orientieren muss und nicht zuletzt ein kritischer und auf den Ort angepasster Umgang mit Bedürfnissen und Standards. Das Mehrfamilienhaus in Warth bietet der Jungend in den Alpen eine Perspektive und versucht, ein Modell für diese Bauaufgabe zu finden.
Weiterlesen
Das Mehrfamilienhaus in Warth untersucht zwei Probleme, die typisch sind für touristisch geprägte Orte in den Alpen: Ein Thema ist, dass die Jungen aus den Siedlungen abwandern. Sie können sich die teuren Wohnungen schlicht nicht leisten, und wenn sie einmal in die Stadt gezogen sind, kommen sie nicht mehr zurück. Das zweite Phänomen ist, dass Neubauten in den Bergen meistens zu groß ausfallen. Um wirtschaftlich zu sein, sprengen Ferienanlagen und Mehrfamilienhäuser – oft in einem „regionalen Stil“ fragwürdiger Herkunft – die Körnung der Ortschaften und verändern dadurch ihren Charakter.
Das Haus in Warth bot Gelegenheit, diese beiden Herausforderungen anzugehen und einen Gebäudetyp in die historische Siedlung einzufügen, für den es in den Alpen noch kein befriedigendes Vorbild gibt: ein zeitgenössisches Mehrfamilienhaus ohne Anbiederung.
Da es sich um einen geförderten Wohnbau handelt, waren die Voraussetzungen vergleichbar mit den Bedingungen, wie sie die Walser vorgefunden hatten, als sie die Ortschaft Warth gründeten: Sie mussten genügsam und findig sein – und das kostbare Baumaterial sparsam einsetzen.
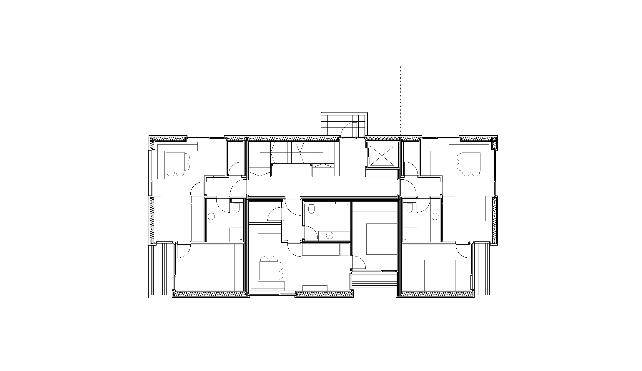
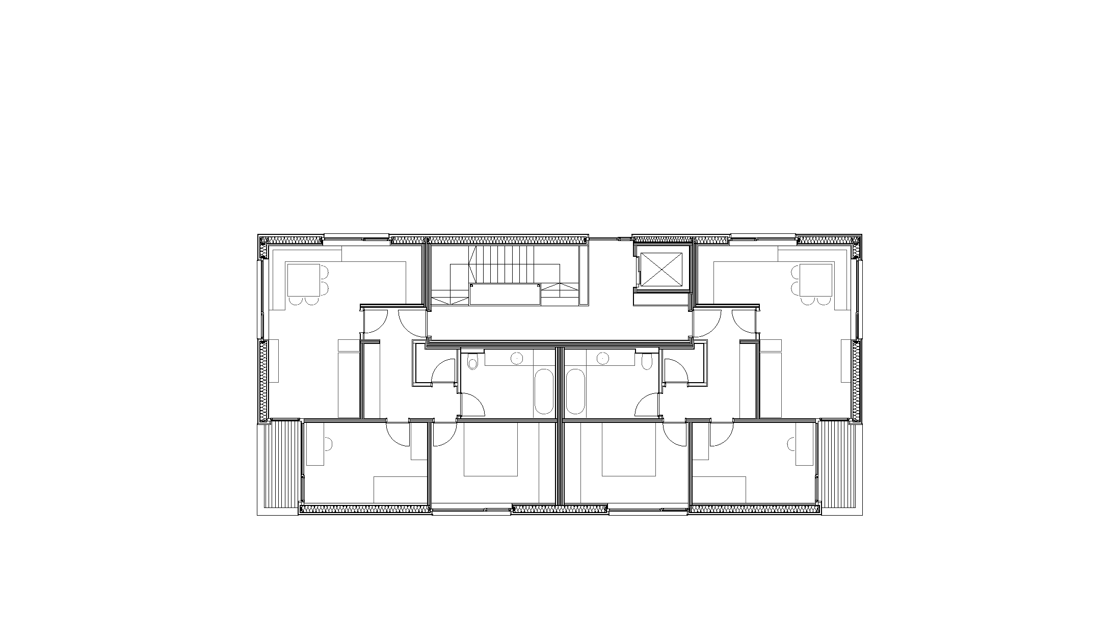
Die Grundstruktur des Gebäudes bildet ein einfaches und effizientes Tragewerk aus Holz mit maximalen Spannweiten von 3,25 m. Das Haus ist in die klassischen Segmente eines Dreispänners aufgeteilt: Zwischen den beiden äußeren Gebäudeteilen liegt ein Abschnitt mit Erschließung und einer einseitig orientierten Wohnung. Diese Aufteilung erlaubt es, pro Geschoss entweder drei 3-Zimmer-Wohnungen (à 49 m2) oder zwei 4-Zimmer-Wohnungen (à 76 m2) zu erstellen. Der Prototyp in Warth bietet acht Wohnungen: sechs 3-Zimmer-Wohnungen im 1. und 2. Obergeschoss und zwei 4-Zimmer-Wohnungen im 3. Obergeschoss.
Die Grundrisse mussten kompakt bleiben. Den Eingang markiert eine Diele, über die Badezimmer und Abstellkammer erschlossen sind. In der 4-Zimmer-Wohnung sind über diesem Eingangsbereich auch die zwei Schlafzimmer zu erreichen. Die Küche ist in einem Winkel angeordnet – als Ergänzung ist eine Eckbank vorgesehen. Sie bietet bei kleinen Abmessungen Platz für bis zu acht Personen: Manchmal führt der Weg in die Zukunft zurück zu bewährten Traditionen.
Eine Besonderheit bilden auch die lediglich 3.0 m tiefen Wohnzimmer. Der Grund liegt in veränderten Sehgewohnheiten: moderne Flatscreens brauchen weniger Raumtiefe wie die analogen Röhrenbildschirme, auf die Wohnzimmer traditionell zugeschnitten waren. Im geförderten Wohnbau zählt jeder Zentimeter und dank dieser Überlegungen konnten im Wohnzimmer entscheidende Flächen eingespart werden.
Eine weitere Erkenntnis bildet der Umgang mit Balkonen. In den Bergen können Außenräume nur selten genutzt werden, denn das Klima spielt meist nicht mit. Und an den Tagen, an denen dies möglich ist, befindet man sich kaum zu Hause: Das schöne Wetter lockt in die Natur. Deshalb sind die eingezogenen Balkone lediglich 5 m2 groß – der Außenraum bekommt in den Bergen eine andere Funktion wie im Flachland. Die Loggien sind in erster Linie als räumliche Erweiterung der dahinter liegenden Räume gedacht. Ihre Brüstung erlaubt es, raumhohe Fenster einzubauen: Ein Gestaltungselement, das eher in die Stadt passt, und das die Bewohner in diesem Umfeld als französisches Fenster zu sehr ausstellen würde. So werden die mit stehenden Latten verkleideten Fassaden nicht durch große Öffnungen unterbrochen. Das Haus passt sich in den Ort ein ohne seine Eigenständigkeit preiszugeben.
Das Gebäude deckt offensichtlich ein wichtiges Bedürfnis in Warth ab: Unmittelbar nach Fertigstellung waren die Wohnungen bereits vergeben. Auf der gleichen Parzelle ist bereits ein zweites Haus geplant – der Prototyp hat seine erste Probe bestanden.












