Ein perfekt optimiertes Einfamilienhaus.
Brände sind erst einmal katastrophen-ähnliche Ereignisse, eröffnen aber manchmal Wege zu neuen Ideen und Perspektiven. So auch der Brand des Stallgebäudes Rheinhof, der zur Landwirtschaftsschule Hohenems zugeordnete bäuerliche Betrieb. Nach eingehenden Abwägungen über die Sinnhaftigkeit eines solchen Ausbildungshofes entschied sich das Land Vorarlberg, dieses wichtige praktische Lernfeld an der Schule zu erhalten. Somit war der Weg frei für ein Vorzeigebeispiel eines modernen Stalles mit biologischer Betriebsführung. Ebenso unklar war bei der Neukonzeption, ob der Betriebsleiter in der Nähe wohnen sollte oder ob seine Unterbringung an irgendeinem kostengünstigeren aber nicht nahe liegendem Ort ausreicht. Sinnvollerweise fiel die Entscheidung für die Neuerrichtung eines kleinen Wohnhauses mit sicht- und Hörbeziehung zum Stall.
Das kleine Einfamilienhaus ist nun also ein modernes Bauernhaus aus Holz gebaut. Es steht auf dem von uns vorgeschlagenen Ort im richtigen Abstand zum bestehenden Baum, verkleidet mit naturbelassener, senkrechter, sägerauer Weisstannen-Schalung. Nach Süden und Westen orientiert, von Norden erschlossen und nicht unterkellert mit kleinen Anbauten für das unumgängliche Auto sowie dem gedeckten Freisitz gibt es sich ruhig und bescheiden, seine Dimension ist das Ergebnis eines eingehenden Optimierungsprozesses. Ebenfalls bescheiden ist der Heizenergieverbrauch durch optimierte Gebäudehülle und gutem Verhältnis von Oberfläche zu Volumen, ungefähr 2 Kubikmeter Holz dürften ausreichen, das Haus warm zu halten. Die tief sitzenden, dadurch geschützten Passivhausfenster zeigen den hohen Dämmstandard und geben dem Holzbau eine ungewöhnliche Plastizität, welche durch das bündig sitzende asymmetrische Dach noch stärker betont wird.
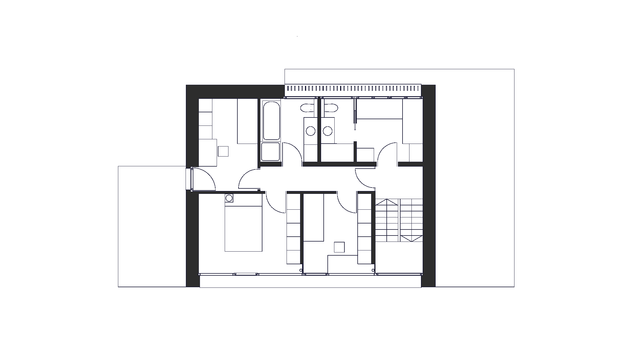
Die innere Organisation ist auf den Alltag einer kleinen Familie abgestimmt, sie wohnt im Erdgeschoss um den zentralen Ofen herum, die kleinen Individualräume im Obergeschoss erhalten eine gewisse Großzügigkeit durch ihr Offenheit in die Dachschräge. Damit erklärt sich auch das ausmittige Dach, denn es reagiert auf die Grundrissdisposition.








