Soziale Anlaufstelle an der Klosterpforte.
Gewerbebauten, Wohnblöcke und zerfahrene Einfamilienhausteppiche reihen sich entlang der vierspurigen Alpenstraße an den südlichen Ausläufern der Stadt Salzburg. Gesäumt von dichtem Auwald und landwirtschaftlich genutzten Flächen entstand diese heterogene Bebauungsstruktur ab den 1950er-Jahren auf den ehemaligen Gründen des Schlosses Herrnau. Als geistliche Mitte des neu gegründeten Stadtteiles wurde im Jahr 1963 die Gottessiedlung zur Heiligen Erentrudis eingeweiht. Das denkmalgeschützte Pfarrzentrum ist von einer wallartigen Mauer umschlossen, welche in ihrem Inneren die expressiv gestaltete Kirche mit Pfarrhof und Kloster birgt.
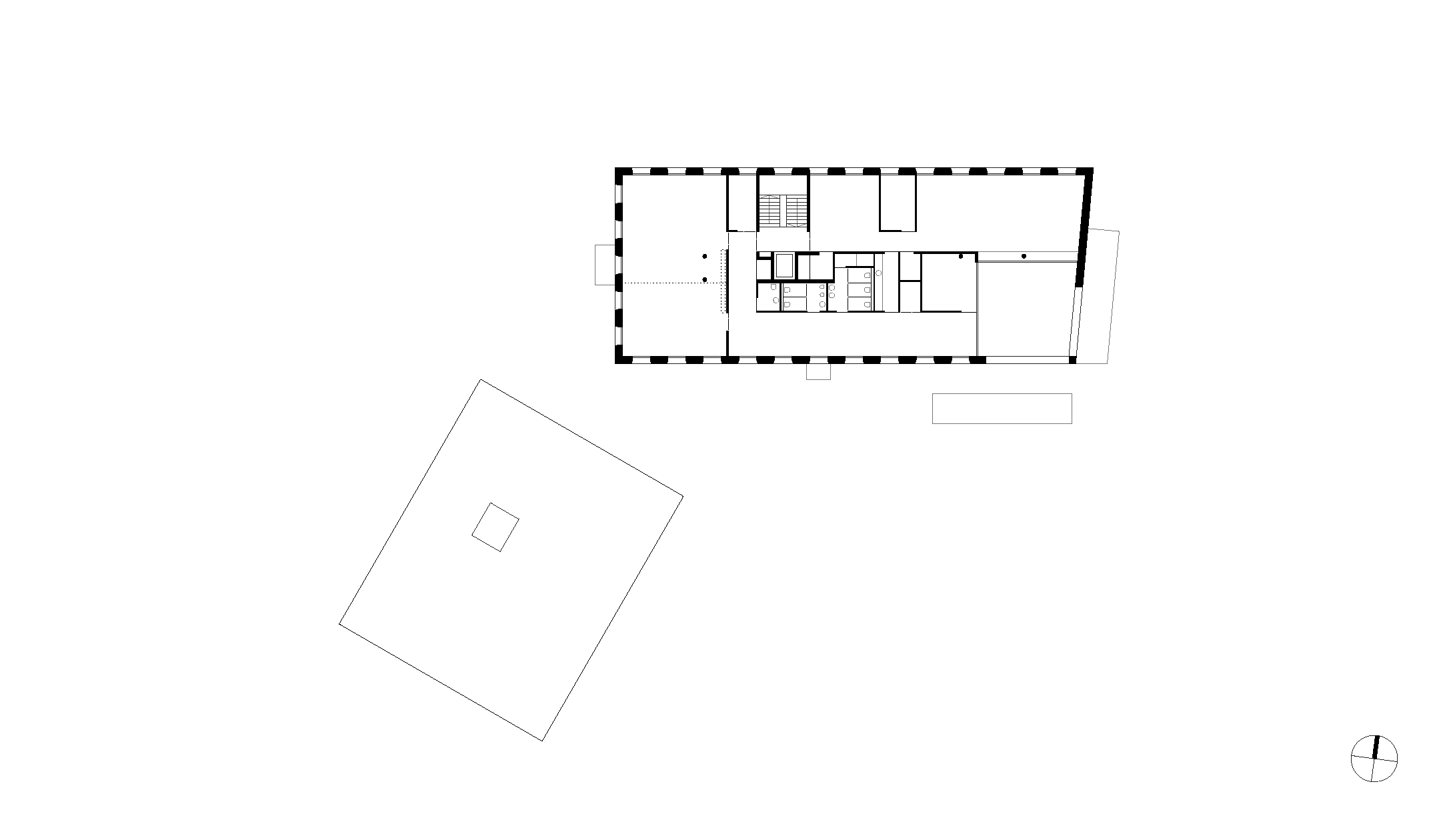
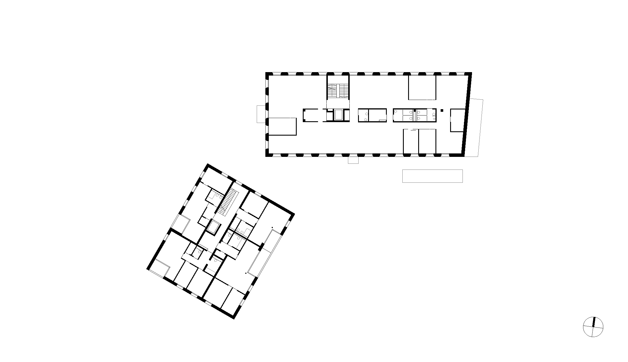
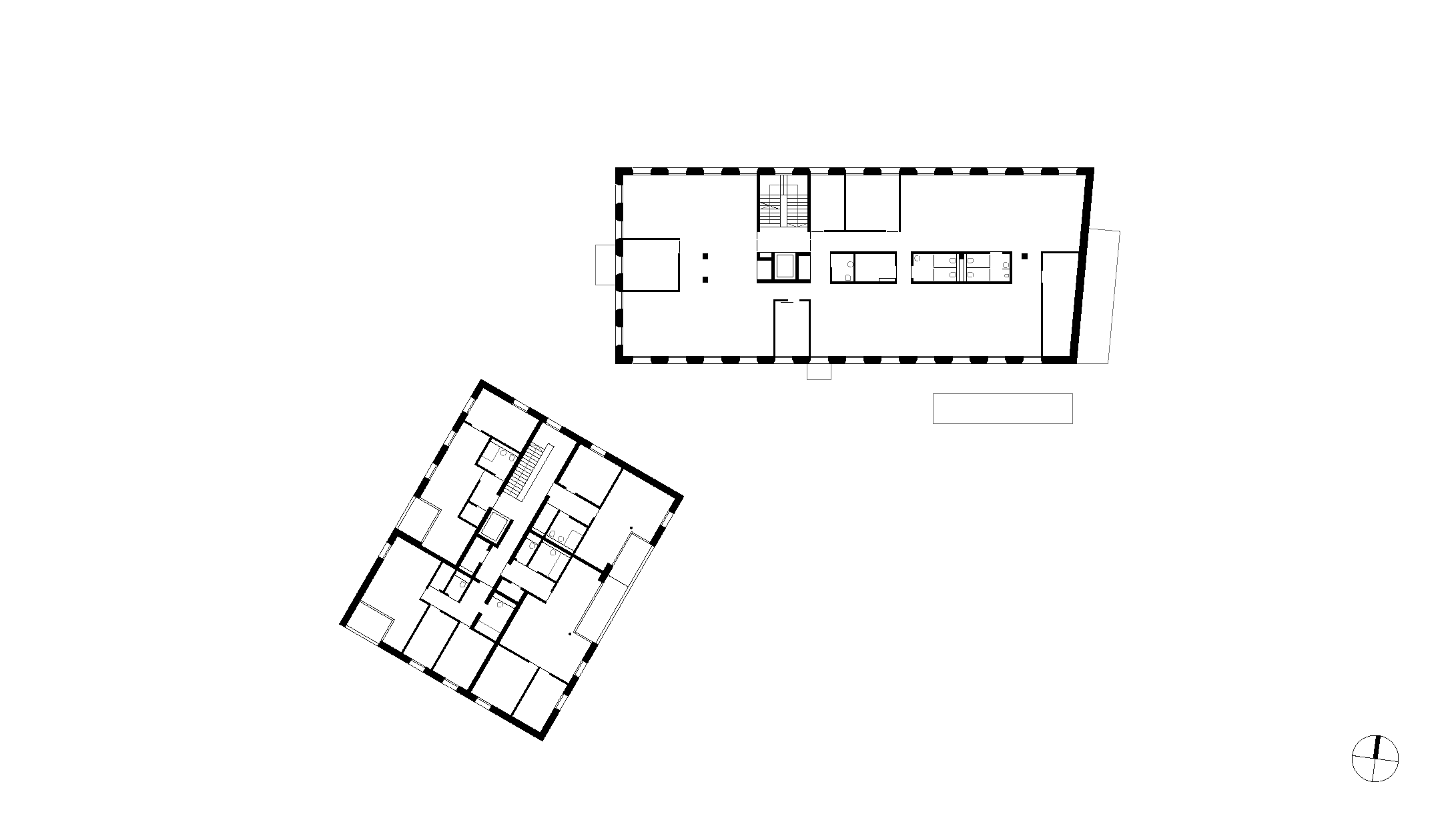
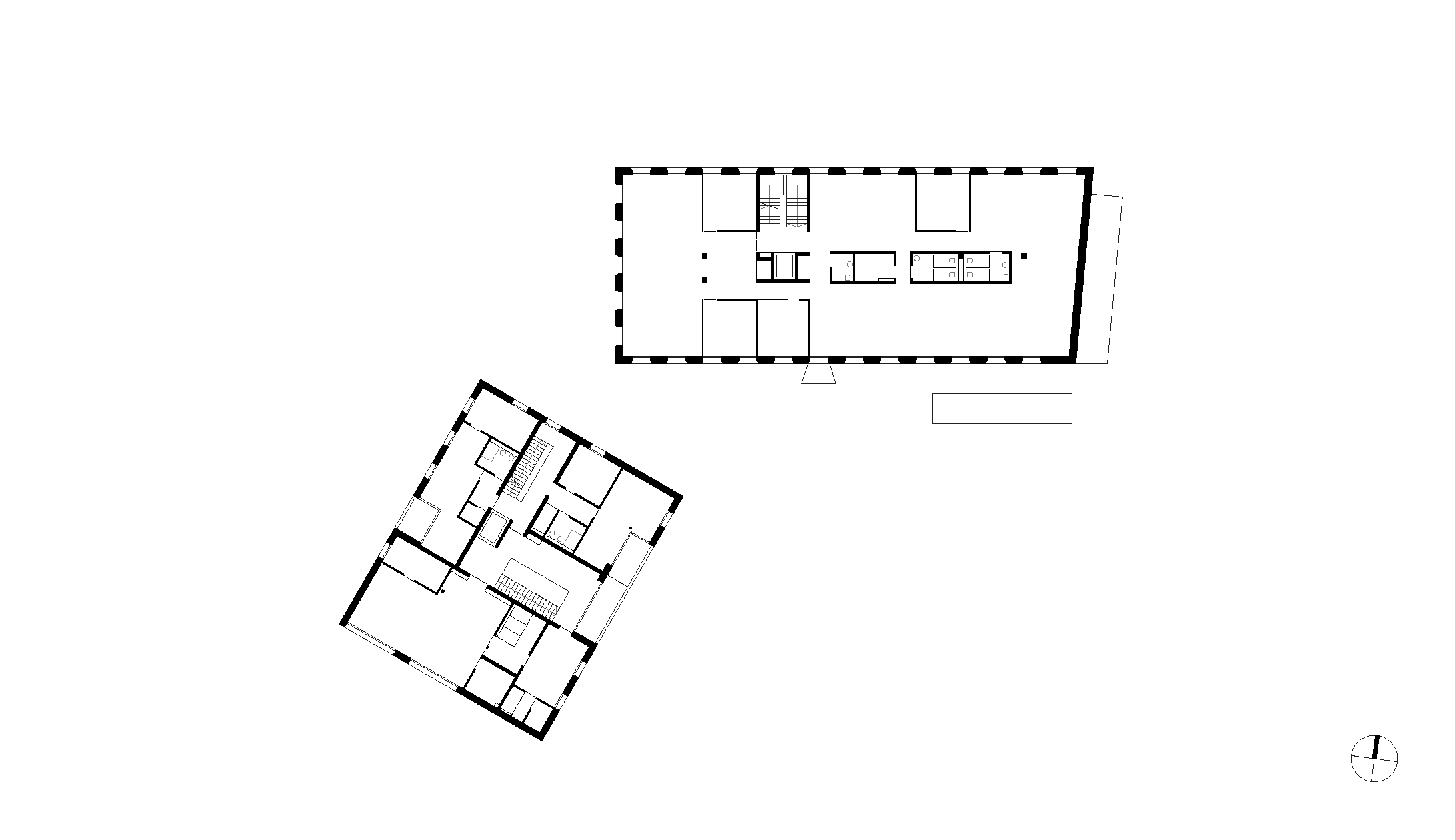
Der bestehende Kindergarten wurde abgetragen, um Raum zu schaffen für eine zeitgemäße Interpretation dieser Bauaufgabe und barrierefreie Wohnungen in den Obergeschossen. Zusätzlich sollten Flächen für die Administration der Caritas mit einem großzügigen Geschäftslokal entstehen. Im Bezug zur städtebaulichen Körnung des Ortes wurde das umfangreiche Raumprogramm in zwei separaten Volumen gefasst, die durch eine Tiefgarage miteinander verbunden sind. Die beiden Gebäude formen eine prägnant artikulierte Pforte in der Klostermauer, um ihre Funktion als soziale Anlaufstellen zu verdeutlichen und den Charakter des Pfarrgartens als allgemein zugänglichen Grünraum auszuweisen.
Der Verwaltungsbau im Passivhaus-Standard ist klar und pragmatisch strukturiert, seine Grundrisse und Fassaden sind zweckmäßig auf die Nutzung als Bürogebäude abgestimmt. Um eine flexible Einteilung der Räume zu ermöglichen, werden die statischen Lasten über einen massiven Kern und die Außenwände abgetragen. Diese sind aus innovativen Wärmedämmziegeln gemauert, auf welche eine Schicht Isolierputz und darüber fein gearbeiteter Deckputz im Besenstrich aufgetragen sind. Das Kindergarten- und Wohngebäude hingegen ist in seiner Gestaltung offen und verspielt ausformuliert und als Hybridbau im Niedrigenergie-Standard konzipiert. Der Tragstruktur aus Stahlbeton und Mauerwerk wurde eine horizontal verschalte Holzfassade vorgehängt, die mit Mineralwolle gedämmt ist. Das Ensemble verfügt über Photovoltaik-Anlagen, nachhaltige Heiz-, Kühl- und Lüftungssysteme und ist mit vier Ladestationen für Elektrofahrzeuge ausgestattet.

























