Symbiose auf der Sonnenseite.
Ein kostengünstiges, innovatives und nachhaltiges Wohnprojekt für mehrere Generationen zu konzipieren, in dem sich Alleinstehende, Familien und auch ältere Menschen zuhause fühlen. Diese Aufgabe stellte sich ein interdisziplinäres Team von Architekten und Mitarbeitern der Universität Innsbruck. Im Projekt INTENSYS wurden vielfältige Aspekte der Fachgebiete Städtebau, Verkehrsplanung, Bauphysik und Soziologie erforscht und miteinander verknüpft.
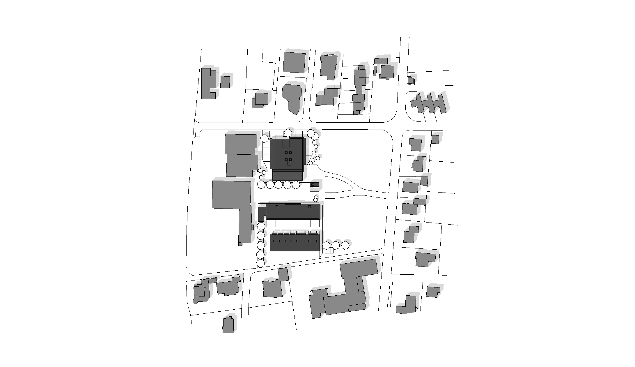
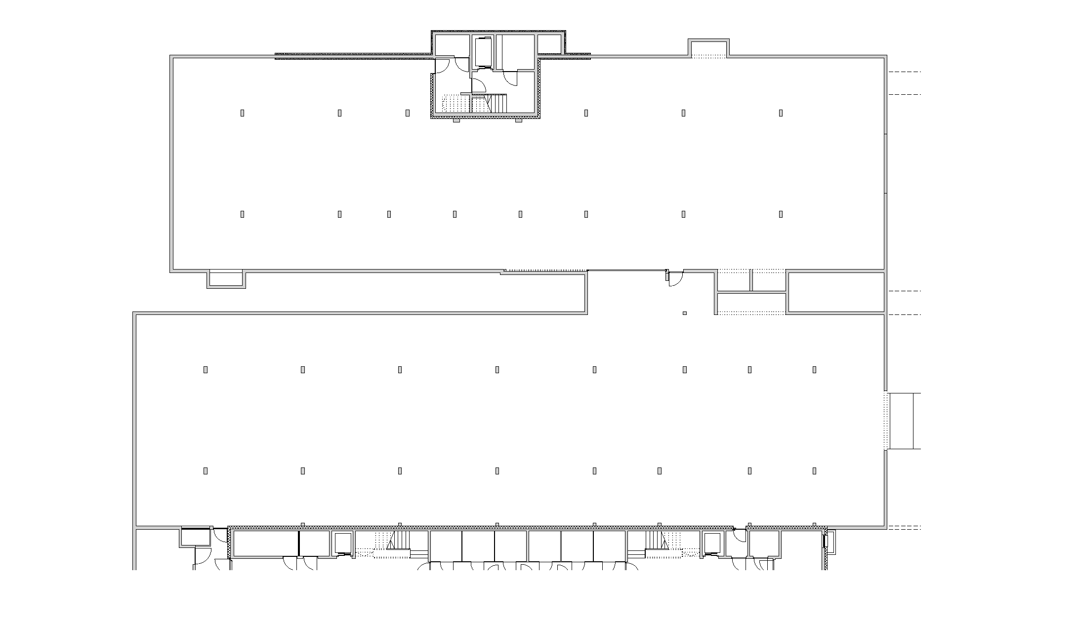
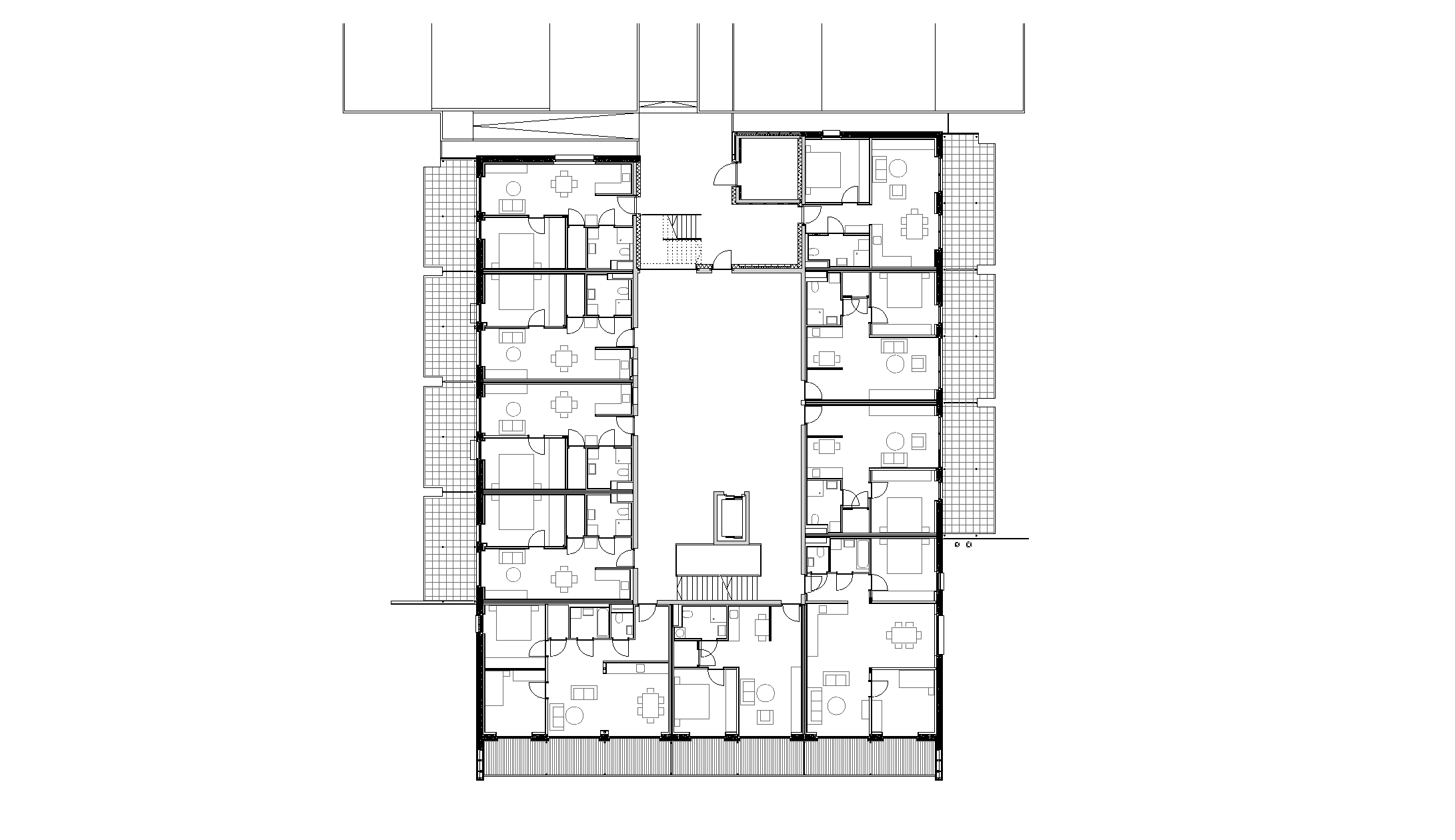
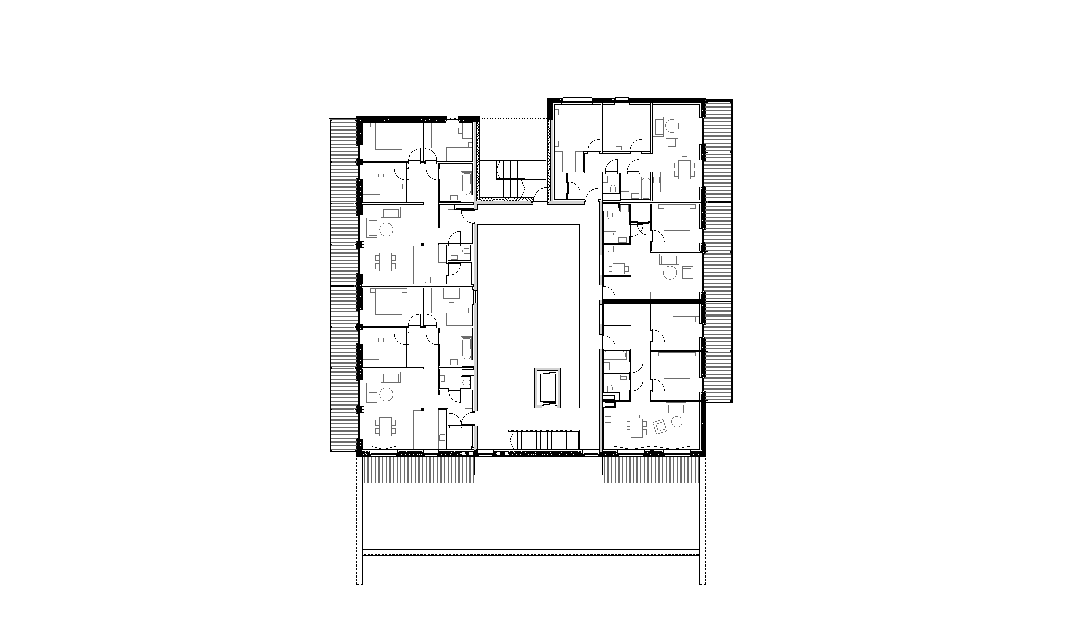
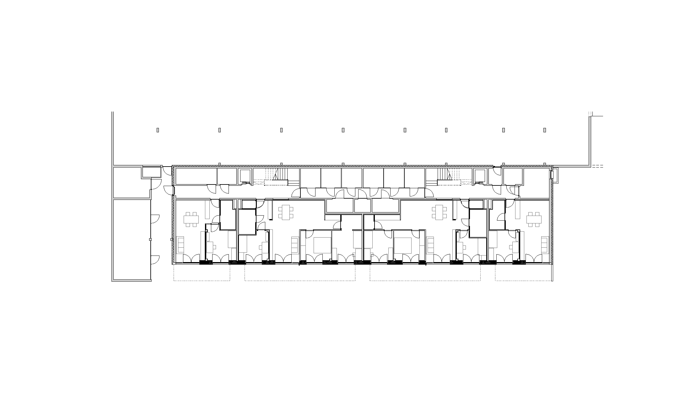
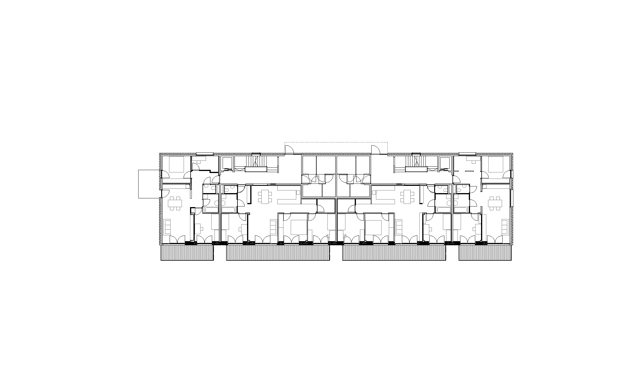
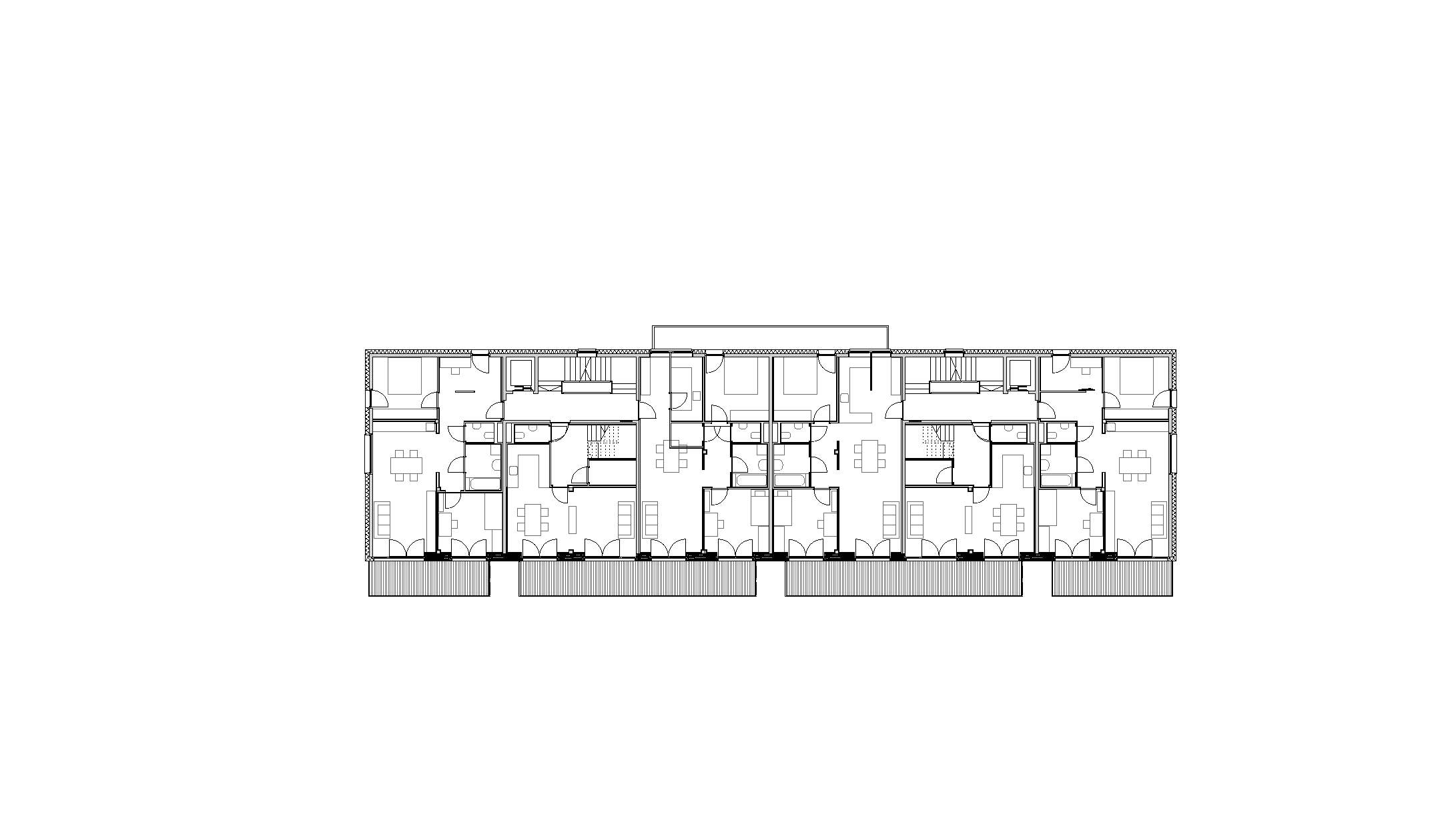
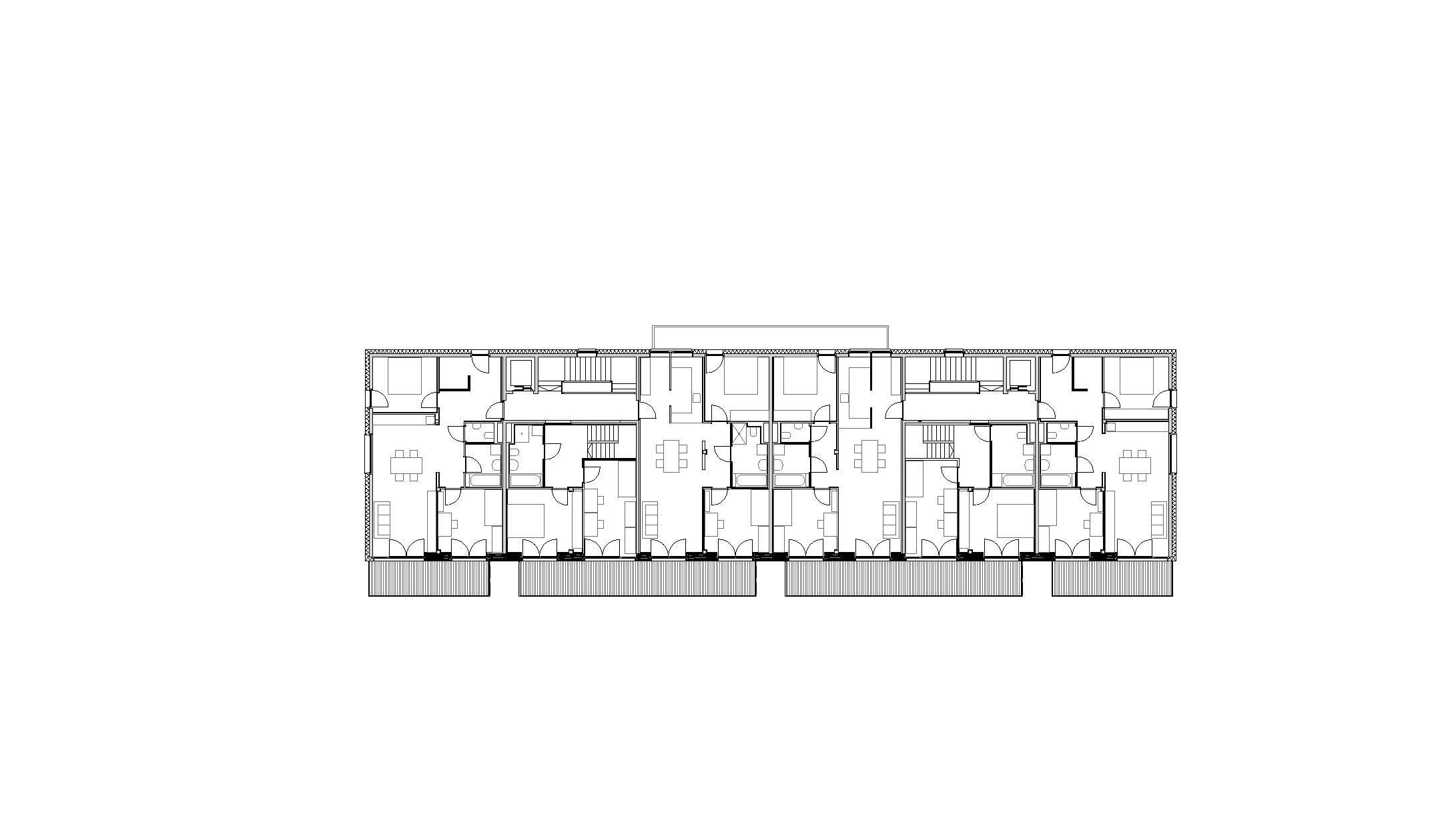
So konnten drei kompakte Baukörper entwickelt werden, die sich am flach abfallenden Hang des Ortsteiles Eichat gegen Süden staffeln. Das oberste Volumen gründet partiell auf der Tiefgarage für das gesamte Areal. Im seinem Erdgeschoss liegen die Räume der Seniorenbetreuung, welche zu einem sonnigen Grünraum ausgerichtet sind. Dieser wird auch von den Kindern als Spielplatz genutzt. In den drei Stockwerken darüber reihen sich 23 Mietwohnungen ringförmig um eine lichte Erschließungshalle. Ein Duzend 2-Zimmer-Apartments wurden barrierefrei geplant, um Möglichkeiten für betreutes Wohnen zu bieten. Südlich des Gebäudes schließt ein markanter Riegel an das Parkgeschoss, der auf vier Etagen 18 Eigentumswohnungen fasst. Davor stehen acht präzise geschnittene Reihenhäuser in kleinen privaten Gärten.
»Mit dem neuen Komplex gelingt eine vernünftige Symbiose von leistbarem Wohnraum mit zukunftsweisenden technischen und soziologischen Ansprüchen.«
Geschäftsführer von Neue Heimat Tirol Hannes Gschwentner
Alle Gebäude sind im Passivhausstandard gebaut und mit einer kontrollierten Lüftung zur Wärmerückgewinnung ausgestattet. Die Heizlastspitzen werden von einer zentralen Anlage abgedeckt, die mit Pellets und Gas betrieben wird. Auf den Dachflächen stehen Sonnenkollektoren, zur Warmwasseraufbereitung und Unterstützung der thermischen Energieerzeugung. Während die beiden südlichen Bauwerke als Massivkonstruktionen errichtet sind, konnte das Mehrgenerationen-Haus komplett in Holzbauweise gefügt werden und erzielt klimaaktiv Gold Standard.





















