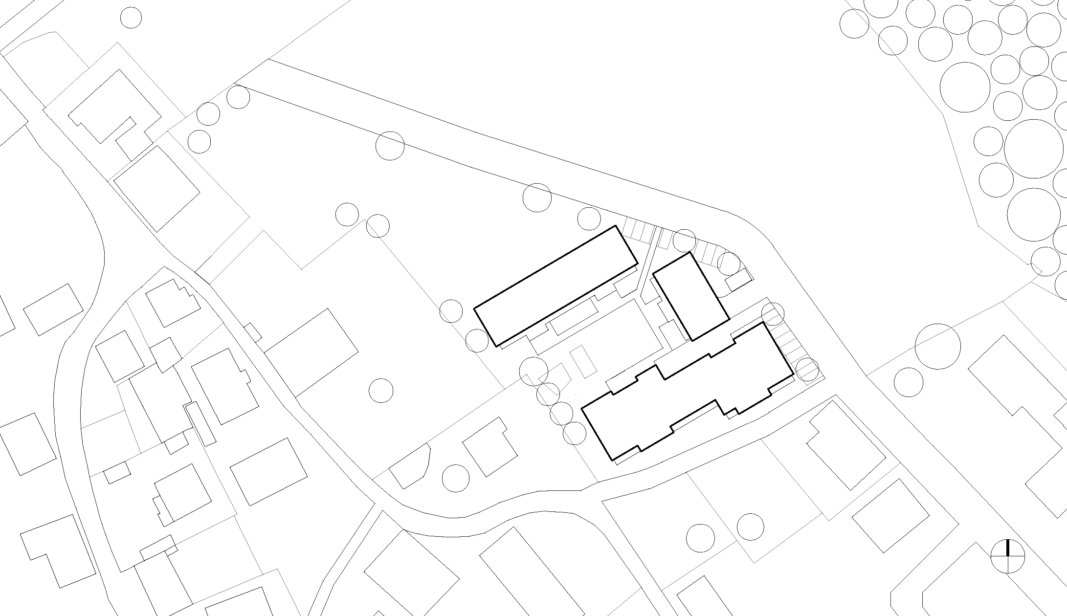
Mehrgeschossige Wohnanlage mit 67 Wohnungen in Holzbauweise und im Passivhausstandard.
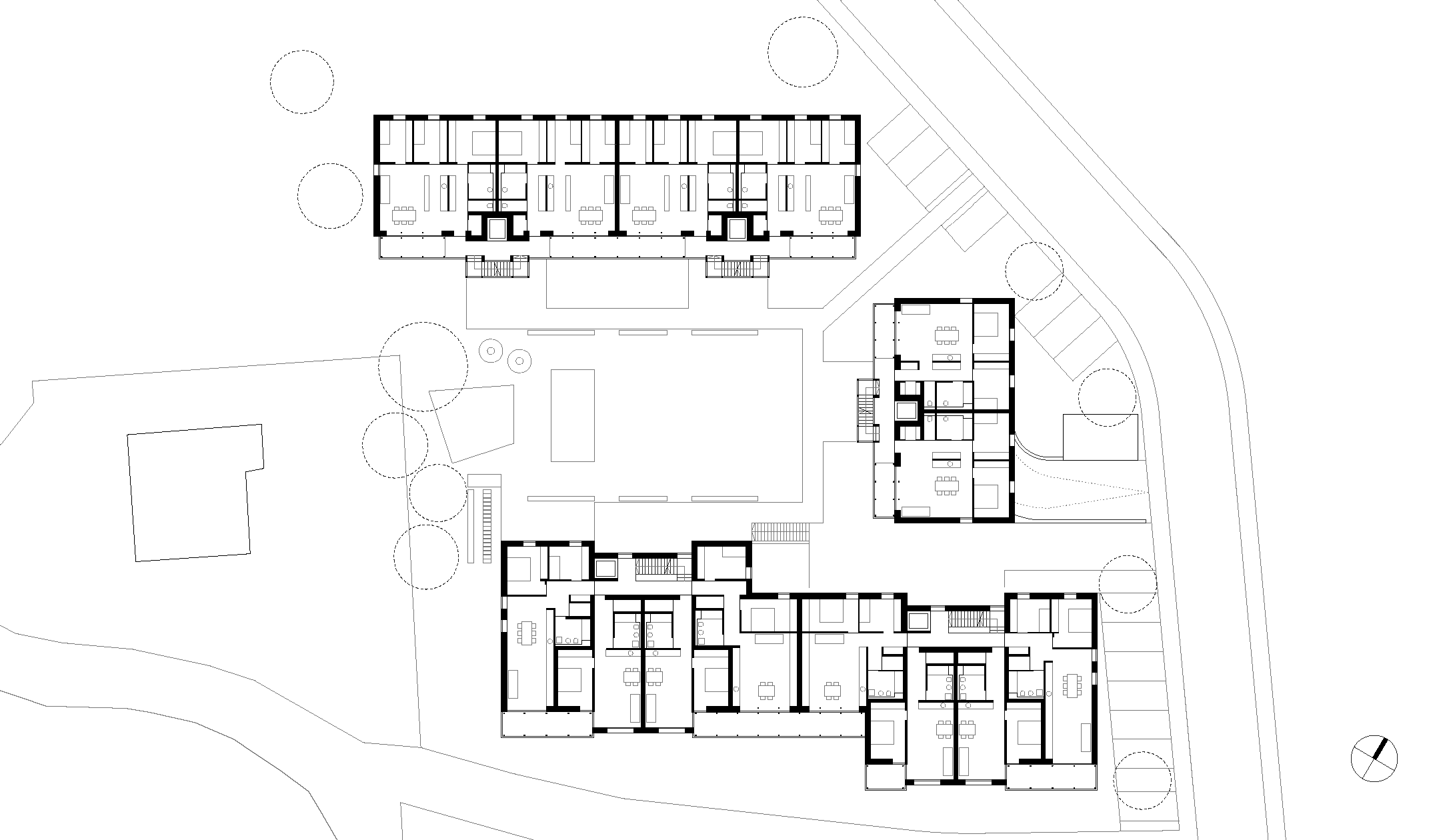
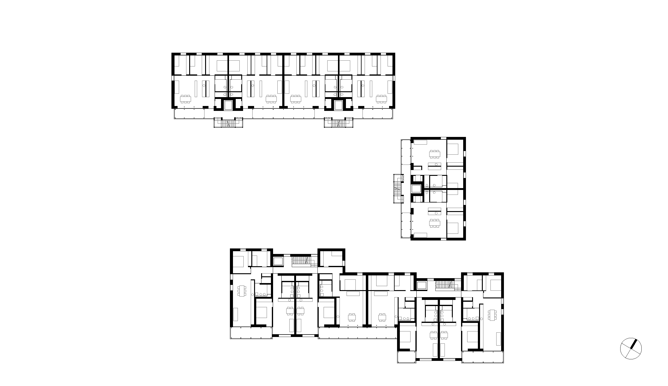
Im ersten Bauabschnitt werden 42 Einheiten errichtet. Dieser bildet einen Hof, von dem aus alle Wohnungen erschlossen werden und der als Kinderspielfläche sowie großer Kommunikationsraum angeboten wird. Es sind hier auch alle großen Wohnungen angeordnet, ein familiengerechtes Wohnen ist hier das Hauptthema.
Der zweite Bauabschnitt mit 25 Einheiten ist auf Grund des Grundstückszuschnittes zeilenförmig mit guter Südorientierung angeordnet. Tiefgaragen mit einem Fassungsvermögen von 107 Stellplätzen übernehmen den Hauptanteil des ruhenden Verkehrs, die Besucherparkplätze sind entlang der Herbert von Pichler Straße situiert.
Alle Wohnungen sind in jeweils drei übereinander liegenden Geschossen untergebracht. Den ebenerdigen Wohnungen ist ein privater Garten zugeordnet. Die Wohnbereiche haben raumhohe Fenster zu den vorgelagerten, überdeckten Terrassen hin, welche nach Süden bzw. Westen ausgerichtet sind. Die vorwiegend nord- und ostseitig gelegenen Schlafräume haben kleinere Fenster mit Klappläden.
Die Wohnhäuser sind als Passivhäuser konzipiert und bekommen eine kontrollierte Be- und Entlüftung mit Wärmerückgewinnung. Der Restenergiebedarf wird mit Gas gedeckt, die Beheizung erfolgt über Fußbodenheizung. Die Warmwasserbereitung erfolgt dezentral über Sonnenkollektoren für jedes Haus getrennt.
Die Außenfassade wird mit naturbelassener Lärchenholzschalung ausgeführt. Als farbliche Differenzierung werden die Drehläden der Fenster farbig gestaltet, eine Reminiszenz an historische Holzbauten. In den Wohnungen ist das Konstruktionsmaterial des Hauses durch die sichtbaren Holzdecken erlebbar.









