Büros, Werkstätten, Lagerhallen und Verkaufsräume: ein gewerbliches Ensemble aus Holz, Glas und Stahl – in die Landschaft gefügt.
In der von landwirtschaftlicher Nutzung geprägten Region sind Gewerbegebiete kaum zu finden. Das Aussehen neuer Bebauungen wird oft dem Zufall überlassen, obwohl ihre Kubaturen das Landschaftsbild sehr verändern.
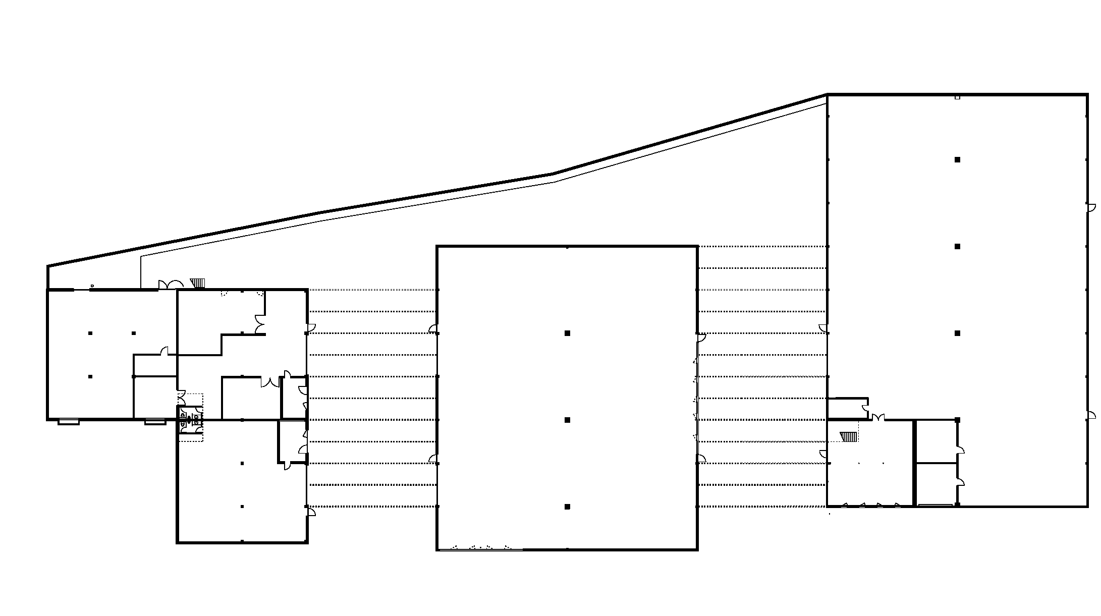
Bei diesem Projekt am Ortsrand von Bezau war es ein glücklicher Umstand, dass Kaufmann dort bereits Holzhallen gebaut hatte, die zusammen mit den neuen Hallen für den Baustoffhändler Wälderhaus eine „Holzstadt“ bilden. Thema des Entwurfs war die Integration der Volumina ins Landschaftsbild durch eine ruhige Formensprache und das naturbelassene Holz.
Wie bei den bestehenden Bauten sind auch hier die typischen Merkmale das unter der Traufe durchgehende Fensterband und die fast bis zum Boden reichende Holzhaut. Lager, Produktion, Schlosserei und Büros sind in die Großform hineinverwoben, erkennbar nur an den Fassadenöffnungen.
Ein winkelförmiger und zwei rechteckige Hallenkörper reagieren in grundrisslicher Staffelung auf den Zuschnitt der Parzelle. Verbunden sind die Hallen durch tonnenförmige Flugdächer, die teilweise verglast und aus Brandschutzgründen in Stahl ausgeführt sind. Die Bögen fassen die Baukörper zu einem Ganzen zusammen, ohne den Maßstab zu sprengen. Vom Dorf aus scheint die Anlage durch den Geländeverlauf noch niedriger; die Landschaft bleibt unter den Tonnendächern kontinuierlich sichtbar.




